Квалитет — Направляющие для выдвижения ящиков
Вид движения: на шариках
Тип выдвижения: Полное
Монтаж: Открытый
Монтажная длина: 300 мм
Цвет: Цинк
Амортизатор: Есть
Несущая способность (на пару): до 30 кг
Шариковые направляющие полного выдвижения с доводчиком. Ведущее достоинство направляющих – наличие доводчика и высокая грузоподъемность: выдвижные ящики выдерживают нагрузку 30 кг. Доводчик обеспечивает плавное закрытие ящика и защиту от выкатывания. За счет шариков и синтетической смазки выдвижные ящики на направляющих обладают мягким бесшумным ходом. Удобный съемный механизм позволяет легко устанавливать и снимать ящик. Механизм доводчика рассчитан на 50 000 циклов открывания / закрывания, что составляет не менее 10 лет эксплуатации.
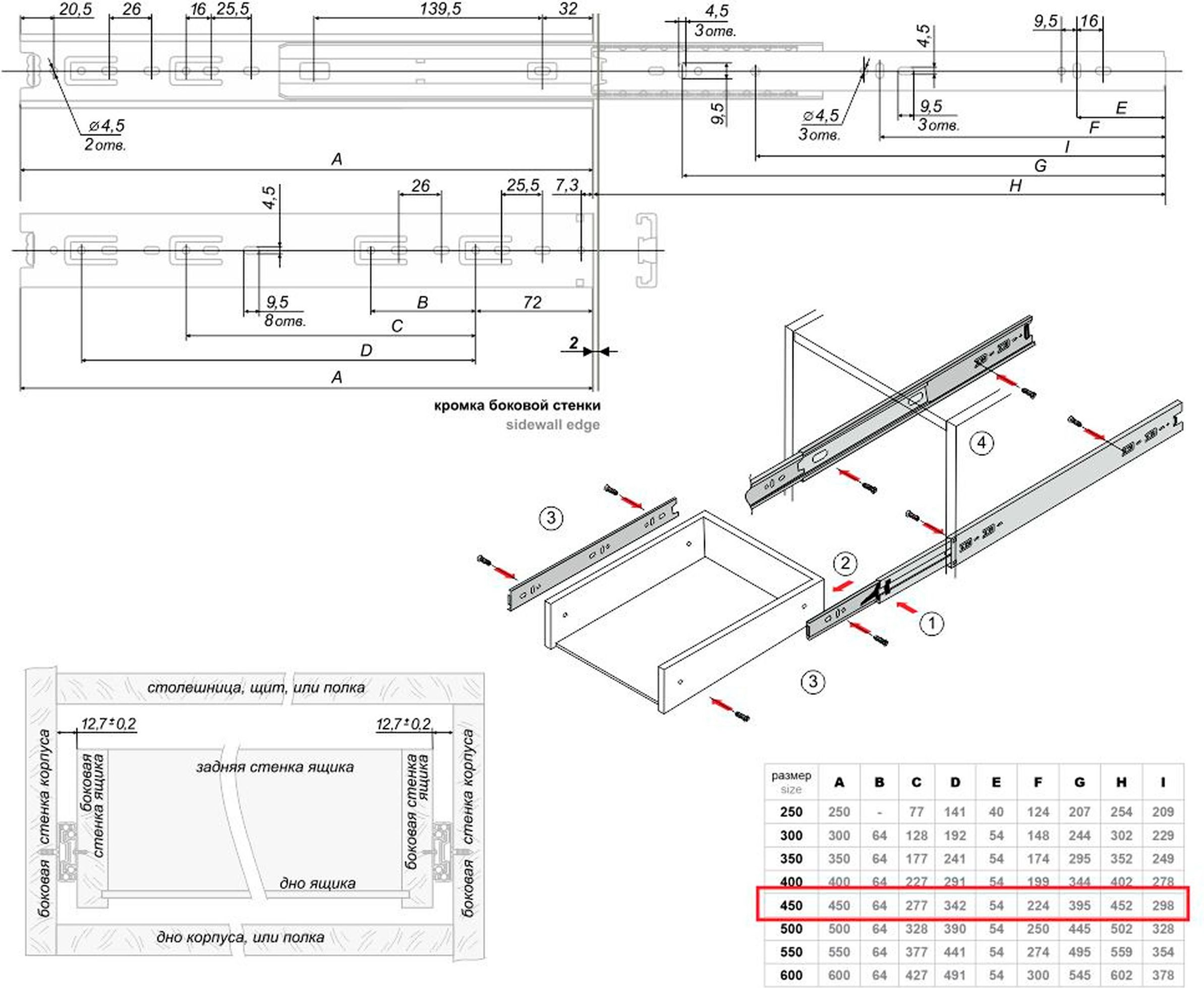
Монтаж шариковых направляющих.
Рассмотрим самый распространенный способ расчета шариковых направляющих, программа не требуется.
Берем нашу базовую тумбу высотой 720 мм без учета ножек и шириной 600 мм с двумя фасадами высотой 356 м, ящиками высотой 150 мм.
Ящики при высоте фасада в 356 мм можно сделать высотой и 200, и 250 мм, всё зависит от вашего или желания заказчика.
Шариковые направляющие обычно крепят по центральной оси боковой стенки ящика, хотя некоторые предпочитают крепить ближе к нижней кромке боковины ящика.
Базовая тумба с ящиками на шариковых направляющих.
Расчет будем вести для варианта монтажа направляющей по оси боковой стенки ящика. Чертим простенький чертежик, можно от руки, как на рисунке. Перед разметкой определитесь, какие будут зазоры между фасадами, в нашем варианте зазор между фасадами примем 4 мм, а сверху и снизу по 2 мм.
Ось сверления первой шариковой направляющей = 2+34+75 = 111 мм,
где:
2 – это зазор 2 мм снизу (фасад накладывается на горизонталь толщиной 16 мм на 14 мм, остается 2 мм)
34 – расстояние от нижнего края фасада до нижнего края ящика
75 – это середина боковой стенки ящика, общая высота ящика 150 мм. Если дно ящика из ДВП накладное, то высота с учетом ДВП будет 153 мм.
Но, для расчетов все равно берем 150 мм.
Ось сверления второй шариковой направляющей = 2+356+4+34+75 = 471 мм,
где:
2 – это зазор 2 мм снизу
356 – высота нижнего фасада
4 – зазор между фасадами
34 – расстояние от нижнего края фасада до нижнего края ящика
75 – это середина боковой стенки ящика
Из схемы следует, что можно точно рассчитать сверление передней стенки ящика и места для насечек для крепления фасада саморезами.
Горизонтальная ось сверления передней стенки ящика = 75 мм, от правого и левого краев передней стенки отступаем по 50 мм и получаем координаты сверления передней стенки.
Точка по оси X под саморезы на фасаде = 34+75=109 мм,
где:
34 – расстояние от нижнего края фасада до нижнего края ящика
75 – это середина боковой стенки ящика
Точка по оси Y, для насечек под саморезы для правого и левого краев фасада = 50+16+13+14 = 93 мм,
где:
50 – отступы по оси X от краев при сверлении передней стенки ящика
16 – толщина боковой стенки ящика
13 – зазор для установки шариковой направляющей
14 – наложение фасада на боковую стенку корпуса (то есть 2 мм остается зазор между краем боковой стенки и краем фасада при толщине боковой стенки корпуса 16 мм).
Обычно расчетов никаких не ведут, а просто сверлят по четыре отверстия в передней стенке ящика, замеряют необходимые отступы, ставят ящик на фасад и прикручиваю первые два самореза. Делают примерку, если нормально, то закручивают оставшиеся два самореза. Нет, откручивают, смещают на необходимо расстояние и снова проверяют.
После расчета переходим к разметке. Разметку ведем с помощью рулетки, железной линейки твердого карандаша. Места крепления направляющих с помощью саморезов керним с помощью керна или делаем насечки с помощью шила.
Максимально точная разметка аккуратность при установке шариковых направляющих позволят избежать перекосов ящиков и иных проблем с дальнейшим креплением фасадов.
Первая точка по оси 37 мм, следующие точки с шагом 32 мм, см схему. Если фасады вкладные, то есть находятся между боковыми стенками, то добавляйте к 37 мм ещё толщину фасада.
Точки крепления шариковых направляющих к боковой стенке.
как установить правильно, чертеж, разметка, примеры, пошаговая инструкция, фото
Направляющие – это комплект технических элементов, обеспечивающих прямолинейное перемещение узла или другой детали по выбранной траектории.
Механизмы для мебельных ящиков делят на несколько типов. Но какой вид конструкции выбрать и как правильно установить направляющие с доводчиком?
Содержание статьи:
- Разновидности направляющих
- Достоинства шариковых направляющих
- Подготовка инструмента и комплектующих для установки
- Разметка
- Установка
- Пошаговая инструкция
Разновидности направляющих
Основные качества домашней мебели, особенно кухонных гарнитуров, – надежность и долговечность, простота и легкость в эксплуатации. Один из главных элементов мебельной фурнитуры – направляющие. Именно они способствуют легкому и бесшумному извлечению ящиков в шкафах, тумбах, комодах. Широко используются при изготовлении выдвижных полок, столешниц. По своей конструкции они делятся на роликовые и шариковые направляющие.
Роликовые еще называют полозками. Они просты как с точки зрения устройства, так и монтажа. Представляют собой 2 металлические пластинки, покрытые эпоксидной смолой.
Перемещаются относительно друг друга с помощью пластикового ролика. Допустимая динамическая нагрузка – до 15 кг. Их применяют для контейнеров размером от 150 до 800 мм.
Чтобы установить устройство, одну пластину монтируют на мебельный блок, вторую закрепляют на боковой части ящика у днища. Затем его вставляют в основание так, чтобы произошла сцепка пластин. При этом между ними должен быть зазор в 12,5 мм с двух сторон. То есть по ширине емкости на 25 мм меньше, чем внутренняя часть шкафа.
Роликовые направляющие популярные и экономичные относительно шариковых механизмов. Используются при сборке дешевой бюджетной мебели. Но есть и минусы – это частичное, при этом довольно шумное, выдвижение ящика. Если ошибиться в расчетах, и неправильно их установить, ролики быстро стираются, конструкцию заклинивает.
Интересно! Мебель своими руками из поддонов: лучшие идеи + пошаговая инструкция по сборке.
Достоинства шариковых направляющих
Они имеют более сложную конструкцию, надежны и долговечны.
Это две штампованные металлические пластины, соединенные перпендикулярными желобками. Вместо пластиковых роликов в них установлены металлические шарики – подшипники. Могут удержать вес до 35 кг, выдвигаются/задвигаются легко и без шума. Их минус – высокая стоимость.
Есть несколько разных типов шариковых направляющих. Они отличаются по высоте (17; 27; 35; 45 мм), длине (300-700 мм), уровню выдвижения. Телескопические механизмы оснащены системой самодоката – доводчиком, демпфером. При открытой емкости до определенного положения, доводчик подхватывает ее и плавно закрывает. Демпфер в этом случае является амортизатором. Он гарантирует плавное и бесшумное закрытие.
Шариковые направляющие полного выдвижения с доводчиком.
Фурнитура полного выдвижения оснащена специальным шарикоподшипником, который дает возможность выдвинуть ящик до конца. Толщина металла при изготовлении не менее 1 мм. Поэтому, чтобы установить подобную систему, важно сохранить целостность деталей. Планки толщиной 0,7 мм прослужат не долго, особенно при значительных нагрузках.
Фурнитура для скрытого монтажа с доводчиком пользуется спросом. Эти устройства удобны, надежны, работают плавно, без посторонних звуков. Крепятся ко дну короба. Но чтобы их установить, потребуется немало времени. Подобное устройство применяют к мебели из дерева, ДСП, МДФ. Система с доводчиком может выдержать вес до 40 кг.
Направляющие скрытого монтажа полного выдвижения.
Направляющие обратного действия мало отличается от выдвижной системы с доводчиком. Отличие заключается в том, что ящик выдвигается самостоятельно после нажатии на фасад. Плюс – ручки или выемки для управления не потребуются. Минус – нельзя установить на детскую мебель. После нажатия на лицевую сторону, бокс выдвигается резко, может испугать и травмировать ребенка. К тому же, чтобы его закрыть, потребуются некоторые усилия.
Метабокс – это выдвижная усовершенствованная система. Она представлена двумя симметричными боковинами и опорными роликами. Они установлены внутрь металлической боковой стенки.
Снабжены доводчиками и демпферами. Выполнены из высокопрочной стали, покрыты эмалью.
Метабокс увеличивает пространство, так как нет необходимости в деревянных боковинах. Имеет крепление для фасада, что позволяет установить его ровно, относительно корпуса. Система с доводчиком может быть выдвинута только на ¾, способна выдержать незначительные нагрузки (10-20 кг).
Тандембокс – это наиболее дорогая выдвижная система. Она разработана на основе направляющих скрытого монтажа. Получится установить только на конструкцию с боковинами из тонкостенной стали. Используется на профессиональных кухнях, в мебели из древесины и других дорогих материалов.
Тандембоксы способны выдержать большие нагрузки. Выдвижение как полное, так и частичное. Бесшумная работа, управление осуществляется нажатием на лицевую панель. При необходимости тандембокс может легко выниматься со своего места.
Интересно! Как сделать шкаф из гипсокартона в домашних условиях.
Подготовка инструмента и комплектующих для установки
Функциональная способность комплекта связана с особенностями его конструкции и качеством.
Выбирая фурнитуру, неплохо учесть следующие рекомендации:
- Установить направляющие с доводчиком будет проще, если их размер совпадает с ящиком.
- Перед покупкой нужно обратить внимание на толщину металла.
- Убедиться в отсутствии дефектов, царапин.
- Проверить комплектацию фурнитуры.
Если Вы приобрели тандембокс с доводчиком, нужно быть уверенным, что сможете установить его самостоятельно. Есть специальное приспособление – кондуктор, который поможет справиться с этой задачей.
Для работы нужна пара зеркально идентичных полозьев, шурупы Ø 3-4мм, длиной 12-16 мм. Установить комплект поможет следующий набор инструментов:
- шуруповерт или отвертка;
- дрель с тонким сверлом или шило;
- карандаш;
- рулетка, линейка;
- уровень.
Система с доводчиком считается съемной.
Это означает, что после ее установки короб может быть полностью вынут. Проем для него ограничен вертикальными стенками шкафчика. Лицевая часть может быть вставлена между боковинами или быть накладной. В любом случае, все торцевые части должны находиться в одной плоскости.
Разметка
Прежде всего определяем высоту размещения, затем наносим разметку. Линия оси проходит через середину ящика. Для этого его высоту делим пополам, ставим отметки с двух концов, по ним проводим линию, вдоль которой нужно установить полозья. Те же действия выполняем на другой стороне. Отталкиваясь от этого наносим метки на боковые части мебельного каркаса.
Мебельный шаблон для разметки направляющих.
Установка
Установить направляющие с доводчиком проще, когда мебель находится в разобранном виде. В комплекте находится две части, одна левая, другая правая. Их нельзя менять местами. Пред монтажом разбираем ее, нажав на пластиковый усик-фиксатор. Самая узкая пластинка крепится по намеченным линиям к боковине ящика.
Широкая – вместе с соединительным элементом (полоска-каретка) на стенку шкафчика.
На направляющих с доводчиком есть овальные отверстия. Горизонтальные нужны для регулирования системы по горизонтали. Вертикальные дают возможность сместить механизм вверх или вниз. Круглые отверстия предназначены для окончательного крепежа.
Прикладывая направляющие с доводчиком по разметке, передний край обеих частей располагаем на одном уровне относительно фасадов. Овальные отверстия помогут правильно их установить. Все линии разметки должны проходить строго по центру.
Если основание выполнено из дерева, ДСП, МДФ, отверстие для самореза или шурупа предварительно высверливают тонким сверлом или намечают шилом, чтобы не допустить растрескивания поверхности.
Пошаговая инструкция
Схема монтажа не сложная, но требует внимательности и последовательности в действиях. Установка направляющих для выдвижных ящиков проводится по следующему алгоритму:
- Определяем и обозначаем место крепления, выполняем разметку.

- Разбираем систему, нажав на стопоры вынимаем внутреннюю полоску.
- Отдельные части крепим шурупами или саморезами (не затягивая), соответственно разметке.
- Устанавливаем ящик.
- При необходимости регулируем механизм.
- Окончательно закрепляем фурнитуру.
Если все сделано верно, емкость становится на место с легким щелчком, свободно выдвигается/задвигается. От правильной установки направляющих с доводчиком зависит удобство при использовании, безопасность и срок службы мебели.
Какие направляющие, с доводчиком или без него, вы использовали в своей мебели? Самостоятельно ли занимались установкой? Оставьте свой комментарий, поделитесь статьей в социальных сетях, закрепите ее в закладках.
Интересно! Установка дверного доводчика своими руками.
Какие бывают шариковые направляющие?
Существует два вида шариковых направляющих: двухсекционные и трехсекционные.
Шариковые направляющие могут быть полного (трехсекционные) и частичного (двухсекционные) выдвижения. Также в продаже имеются шариковые направляющие с доводчиком.
Какой длины бывают шариковые направляющие?
Стандартный размерный ряд: 250 мм, 270 мм, 300 мм, 400 мм, 450 мм, 500 мм, 550 мм. Чтобы не ошибиться, перед покупкой измерьте глубину ящика. Например, в прикроватной тумбе выкатные ящики редко бывают глубже 300 мм – подойдут мебельные направляющие 250-300 мм.
Почему шариковые направляющие туго ходят?
Если ящик ходит туго, качество направляющих никакой роли не играет. Все направляющие изготовлены по одной схеме. Низкое качество напомнит о себе через год, а то и два года эксплуатации. Важен правильный расчет самого ящика и грамотная установка.
Как правильно вставить ящик в направляющие?
Для того чтобы установить ящик на место, необходимо выдвинуть до конца подвижную часть направляющих, установить на них ящик и закрыть его. При этом, когда ящик будет закрыт, Вы услышите характерный щелчок, сигнализирующий о том, что ящик зафиксирован и находится в рабочем положении.
Почему ящик криво закрывается?
Чаще всего причиной является недостаточно прочный и продуманный крепеж. Дно крепится гвоздиками к передней и задней части, а с боковых частей его держат направляющие. Первое время такая схема вполне сносно работает, однако со временем гвозди разбалтываются и дно отходит, даже если ящик не перегружается.
Список 10 мастеров-рисовальщиков и чему они нас учат
Величайший рисовальщик в мире мог быть ученицей другого художника в стиле рококо во Франции или рисовальщиком эпохи Возрождения, ставшим невидимым из-за взгляда признанного мастера из более могущественного близлежащего города-государства или скромного инструктора по искусству, который в настоящее время работает в Миннесоте.
Выбор 10 лучших ящиков всех времен — салонная игра сомнительной ценности. Вместо этого мы решили подсчитать, сколько раз исторические личности упоминались или воспроизводились в первых 10 выпусках 9 выпусков.0003 Drawing Журнал и продемонстрируйте их с яркими комментариями от вдумчивого работающего художника и представителя одного из самых уважаемых художественных учреждений в стране.
Каждый из 10 художников, представленных здесь, предлагает рисунки изысканной красоты; но, что более важно для наших целей, каждый из них предлагает идеи и уроки, которые может использовать любой рисовальщик. Мы исследуем, почему работа этих людей так вдохновляет.
Леонардо да Винчи
Голова молодой женщины Леонардо да Винчи , металлический наконечник, перо и коричневые чернила, кисть и коричневая заливка, выделенная белой гуашью, 11 x 7 1/2. Собрание Галерея Уффици, Флоренция, Италия. Рисунок черным мелом в левом нижнем углу был нарисован другим художником. «Он дразнит вас маленьким уголком глаза», — комментирует Рубенштейн. — Он мог бы дать тебе полный профиль, но не сделал этого. Леонардо изолировал некоторые части и ударил по ним, а другие части отпустил. Это не портрет конкретного человека; это идеализированная форма. Как сказал Кеннет Кларк, с классической точки зрения обнаженная натура не относится к конкретному человеку. Это не портрет, это дизайн».
Леонардо да Винчи (1452–1519) был первой бесспорной суперзвездой искусства, и его гениальность бесспорна. Но Эфраим Рубинштейн, художник, преподающий в Лиге студентов-художников Нью-Йорка на Манхэттене, смешивает свое восхищение Леонардо с тем, что даже этот великий ренессанс не возник из вакуума.
«Леонардо так много получил от Андреа дель Верроккьо, которая была потрясающим учителем, — говорит Рубинштейн. «Все происходит из традиции; никто не приходит из ниоткуда. Леонардо научился основам сфумато от [своего учителя], среди прочего».
Родившийся внебрачным сыном юриста в тосканском городе Винчи, Италия, Леонардо был ученым, изобретателем, пионером в изучении анатомии и художником шедевров Тайная вечеря и Мона Лиза — прототип человека эпохи Возрождения.
Рубинштейн называет свои строки «сладкими, нежными и изящными. Он не делает ничего, что не имеет самых красивых изгибов». Но именно его альбомы для рисования делают Леонардо новатором.
«Он был одним из первых, кто заговорил о том, чтобы взять блокнот на улицу, — объясняет Рубенштейн.
- Мастер рисования Леонардо да Винчи, с картины Кармен К. Бамбах (Метрополитен-музей, Нью-Йорк, Нью-Йорк)
- Леонардо да Винчи: Полное собрание картин и рисунков Франка Зольнера и Йоханнеса Натана (Ташен, Кельн, Германия)
Микеланджело Буонаротти
Голова молодого человека (?) Микеланджело , ок. 1516 г., красный мел, 8 х 6 1/2. Собрание Ashmolean Museum, Оксфорд, Англия. «Этот рисунок предполагает влияние Леонардо, — говорит Рубенштейн. «Это более тонально и деликатно, чем многие другие его рисунки». Его потолок Сикстинской капеллы — одно из самых знаменитых достижений в истории искусства, но те, кто интересуется рисунками, сосредоточатся на более чем 90 работах мелом и тушью, которые Микеланджело (1475–1564) создал в рамках подготовки к этому и другим заказам.
Некоторые художники проводят параллель между работами этого итальянского мастера и фантастическими мускулистыми формами из комиксов. Но если какой-либо начинающий рисовальщик за последние 50 лет с восхищением подходил к волнообразной человеческой анатомии в комиксах, то к работам Микеланджело он отнесся с благоговением.
«С его мастерством в живописи, скульптуре и архитектуре ни один художник — за возможным исключением Леонардо — не был более технически одаренным», — говорит Рода Эйтель-Портер, заведующая отделом рисунков в библиотеке Моргана в Нью-Йорке. .
«Его фигуры всегда напрягаются», — замечает Рубенштейн. «Они стремятся к чему-то, но связаны. Все мышцы напрягаются одновременно, что анатомически невозможно, но глубоко поэтично. Микеланджело создал пейзаж человеческого тела».
Причина логична: Микеланджело был скульптором. Разделение между тактильным и визуальным нарушается; художник видит и рисует в трех измерениях. «Микеланджело [понимал], что конкретная мышца имеет яйцеобразный характер, и он [находил] мелом эту форму», — говорит Рубинштейн, указывая на то, что отметки на его рисунках все больше и больше затачиваются на более законченных участках формы в манера, которая параллельна линиям долота на незаконченной скульптуре.
- Рисунки Микеланджело: ближе к мастеру Хьюго Чепмена (издательство Йельского университета, Нью-Хейвен, Коннектикут)
- Уроки Микеланджело, Майкл Бербан (Watson-Guptill Publications, Нью-Йорк, Нью-Йорк)
Альбрехт Дюрер
Рыцарь, Смерть и Дьявол Альбрехт Дюрер , 1513, гравюра, 9 3/4 x 7 3/8.
Альбрехт Дюрер (1471–1528), возможно, величайший гравер в истории. Он опубликовал более 350 гравюр и гравюр на дереве и написал не менее 35 картин маслом, создав в процессе более 1000 предварительных рисунков и акварелей.
Дюрер создал ряд широко известных и знаковых гравюр, а нюрнбергский художник пользуется большим уважением и влиянием среди рисовальщиков. Его тонкое изображение форм — нелегкий подвиг с жестким, неумолимым гравировальным инструментом — является причиной, по которой так много рисовальщиков изучают и восхищаются его работами.
«Его рисунок исходит из чувствительности гравера», — комментирует Рубенштейн. «Он не может задать тон; он должен вылупиться. И никто не держит форму с безжалостностью Дюрера».
Он был виртуозным, но, возможно, не новаторским.
[fw-capture-inline кампания=”RCLP-confirmation-pencil-sketch-drawing” спасибо=”Спасибо за загрузку!” интерес = «Искусство» предложение = «/wp-content/uploads/pdfs/PencilSketchDrawingGheno.pdf»]
«Вы реагируете на интенсивность и плотность изображения», — говорит Рубенштейн.
«Дюрер [изображал] причудливые явления природы в мельчайших деталях, и все же он [был] в состоянии сохранить ясность и силу большой композиции при всем этом происходящем. Он [знал], что даже среди корявых деревьев ему [пришлось] немного отступить, чтобы песочные часы [могли] выйти вперед. Он [контролировал] так много — он как жонглер, у которого в воздухе 30 мячей». Ресурсы :
- Полное собрание гравюр, офортов и игл Альбрехта Дюрера Альбрехта Дюрера (Dover Publications, Mineola, New York, New York)
- Альбрехт Дюрер и его наследие: графические работы художника эпохи Возрождения Джулии Бартрум (издательство Принстонского университета, Принстон, Нью-Джерси)
Питер Пауль Рубенс
Молодая женщина, смотрящая вниз (этюд головы св. Аполлонии) Питер Пауль Рубенс , 1628, черный и красный мел, усиленный белым, ретушь пером и коричневыми чернилами, 16 5/16 х 11 1/4. Собрание Галерея Уффици, Флоренция, Италия.
Красный мелок вызывает теплоту тела на лице субъекта, а черный мелок служит акцентами и изображает волосы. «Совместить эти два тона сложнее, чем вы думаете», — комментирует Рубинштейн. «Сравните это с женщиной Леонардо: это ангел; Рубенс — настоящая женщина. Ты можешь прикоснуться к ней». Художник поворачивал мелок или заострял его, чтобы получить четкую линию, варьируя ширину штрихов и делая точные блики. Согласно стереотипу, художники ведут бедный богемный образ жизни, но Питер Пауль Рубенс (1577–1640) свидетельствует о том, что некоторые художники добиваются огромного успеха. По мнению большинства, Рубенс был уважаемым, богатым и счастливым художником, который также собирал антиквариат, создал большую семью и заключил один или два мирных договора, будучи дипломатом высокого уровня. Он был занятым человеком действия, и на бумаге никогда не рисовали легкомысленно — почти все его рисунки были предварительными набросками для более крупных заказов.
Еще больше поражаешься уверенным, красивым линиям рисунков Рубенса в свете осознания того, что он наверняка счел бы их рабочими документами, непригодными для выставки.
- Питер Пауль Рубенс: рисунки Анн-Мари С. Логан (Музей искусств Метрополитен, Нью-Йорк, Нью-Йорк)
- Питер Пауль Рубенс: блестящее прикосновение Михаила Пиотровского (Prestel Publishing, Мюнхен, Германия)
Рембрандт ван Рейн
Женщина, несущая ребенка по лестнице, Рембрандт , ок.
1636 г., перо и коричневые чернила с коричневой заливкой, 7 3/8 x 5 3/16. Коллекция библиотеки Моргана, Нью-Йорк, Нью-Йорк. «Простыми жестами, движениями и выражениями Рембрандт уловил достоинство повседневной жизни — здесь нежный момент между матерью и ребенком, — говорит Эйтель-Портер, — хотя его изображение совсем не обычное». «Он был наследником Леонардо в том, что всегда делал зарисовки с натуры», — говорит Рубинштейн о Рембрандте (1606–1669). «Его жесты были такими искренними и полными жизни».
Если Рубенс был художником власти и королевского двора, то Рембрандт был художником человечества. Одаренный такой же способностью рисовать линии, голландский художник и рисовальщик умел рисовать очень быстро и уверенно добавлять простые штрихи, которые эффективно создавали темные и светлые узоры.
Неумолимая среда чернил не мешала Рембрандту в погоне за сиюминутным действием; задняя часть халата его жены убедительно сметается с лестницы в 9Например, 0003 Женщина, несущая ребенка по лестнице .
Матери и дети представляли для художника особый интерес, возможно, отчасти потому, что он потерял троих детей в младенчестве; и смерть его жены прервала счастливый брак.
«Человечность его рисунков… вы не чувствуете ее так сильно в работах кого-либо еще», — замечает Рубинштейн. «Он [казалось] знал, что [чувствовала] мать, что [чувствовал] ребенок — что происходит в этой сцене. И у него [была] спонтанная, невероятная линия, которая могла показать структуру чего-то, и все же [имела] свой собственный каллиграфический смысл». Ресурсы :
- Путешествие Рембрандта: художник, рисовальщик, гравер, Клиффорд С. Экли (издания MFA, Бостон, Массачусетс)
- Рисунки Рембрандта и его школы, Vol. I, автор Jeroen Giltaij (Thames & Hudson, Нью-Йорк, Нью-Йорк)
- Рисунки Рембрандта и его школы, Vol. II, автор Jeroen Giltaij (Thames & Hudson, Нью-Йорк, Нью-Йорк)
Шарль Лебрен
Этюд Муция Сцеволы перед Порсенной Шарля Лебрена , ок.
1642 г., красный мел на коричневой бумаге, 15 3/4 х 9 1/2. Собрание Schlossmuseum, Веймар, Германия.Шарль Лебрен (1619–1690), стоявший на ногах как в эпоху классицизма, так и в эпоху барокко, был художником, который рано добился успеха и обладал политическими навыками, чтобы оставаться доминирующей фигурой при французском дворе и в Академии до самой поздней жизни. Лебрен был учеником Вуэ и другом Пуссена, и его композиции были построены на основных, простых массах, как в классицизме. И все же его фигуры могли ощетиниться энергией искусства барокко, как показано в змеевидной форме на S 9.0003 этюд Муция Сцеволы Перед Порсенной .
Святое семейство со святым Иоанном Крестителем Шарля Лебрена , ок. 1648–1650, красный мел с контуром стилуса, 12 1/4 x 10 1/2. Коллекция Прата, Париж, Франция. Лебрен сделал больше, чем кто-либо, для установления однородного французского стиля искусства в течение трех десятилетий XVII века. Он добился этого как с помощью политики, так и с помощью живописи — Лебрен основал Французскую академию в Риме, и к 1660-м годам любой значительный заказ брался за него.
Два рисунка, представленные в этом разделе, хорошо иллюстрируют, как стиль Лебрена прагматично менялся со временем — как с художественным, так и с материальным успехом. «Одно изображение показывает простую концепцию всех форм, очень уравновешенных и позированных как Рафаэль; а на другом изображена фигура, которая так сильно борется», — восхищается Рубинштейн.
«Даже без указания трупа, который поднимает эта фигура, мы чувствуем, сколько усилий ему приходится прикладывать, чтобы удержать этого тяжеловеса». О уверенности Лебрена в обращении с инструментами для рисования ходили легенды; один миф утверждал, что этот сын скульптора начал рисовать в колыбели. Ресурсы :
- Шарль Лебрен: первый художник короля Людовика XIV, Мишель Гаро (Гарри Н. Абрамс, Нью-Йорк, Нью-Йорк)
- Выражение страстей: происхождение и влияние конференции Шарля Лебрена по общему и частному выражению, Дженнифер Монтегю, (Издательство Йельского университета, Нью-Хейвен, Коннектикут)
Эдгар Дега
Эскиз «Танцовщица в трико» Эдгара Дега , ок.
1900 г., черный мелок, 23 5/8 x 18. Собрание Национального музея, Белград, Сербия. «Обратите внимание, как Дега сделал более темные линии и, таким образом, больше акцентировал внимание на стабилизирующей ноге и на нижней стороне другой ноги, несущей вес», — комментирует Рубенштейн. Переход рисовальщика от рисования четких, детализированных форм к более свободным, более жестовым линиям является обычным явлением, но эти примеры показывают, что эта эволюция у Илера-Жермена-Эдгара Дега (1834–1917) была особенно естественной.
Красота пронизывает обе работы, даже если у типичного зрителя обе работы могут не ассоциироваться с одним художником. «Он пытался определить фигуру на своих ранних рисунках, — объясняет Рубинштейн, — а на более поздних рисунках он отвязывал ее».
Музой Дега была балерина, а движения и движения танца требовали свободных жестовых зарисовок. Рубинштейн отмечает, что даже в быстрых набросках, таких как Эскиз танцовщицы в трико, Дега демонстрирует свой талант к композиции — колени почти касаются краев бумаги, а отрицательные формы, образованные конечностями танцора, создают мощный рисунок.
Красота спонтанной композиции выдает многолетний опыт, стоящий за этим исследованием. Ресурсы :
- Дега и танец, Джилл ДеВоньяр и Ричард Кендалл (Гарри Н. Абрамс, Нью-Йорк, Нью-Йорк)
- Эдгар Дега: жизнь и творчество, Дени Саттон (Rizzoli International Publications, Нью-Йорк, Нью-Йорк)
Винсент Ван Гог
Дикая растительность Винсента Ван Гога , 1889, тростниковое перо, перо, кисть и тушь на тканой бумаге, 18 1/2 x 24 5/8. Собрание Музея Ван Гога, Амстердам, Нидерланды. Это произведение, возможно, является предшественником абстрактного искусства или автоматического рисования. Помимо того, что Винсент Ван Гог (1853-1890) был типичным голодающим художником, он был повитухой в рождении абстрактного искусства, о чем свидетельствует его «Дикая растительность ». Как художник он известен своим ярким и смелым цветом, но риск, на который он пошел в композиции, возможно, в равной степени ответственен за его репутацию.
Для ящиков Ван Гог также важен из-за его марки.
«Ван Гог развил невероятный словарный запас с тростниковым пером, — говорит Рубинштейн. «Он [придумал] язык со всеми этими различными знаками: точками, тире, завитушками, длинными и короткими линиями. Но поскольку он [был] в таком контроле, это [имело] смысл. Он [создавал] ритмы. У природы нет таких знаков».
Сравнение Pollard Birches с Wild Vegetation показывает рост голландского художника от репрезентативного до почти полностью абстрактного. Переход в меньшей степени виден в портрете Зуав , в котором большая часть лица изображена с неким пуантилизмом, а отдельные черты, такие как нос, образованы классическими линиями. «Это очень личный язык, который он [придумал]», — комментирует Рубинштейн. «Но сами отметки [завораживают]».
Ресурсы :
- Винсент Ван Гог: рисунки Колты Айвз (Музей Метрополитен, Нью-Йорк, Нью-Йорк)
- Ван Гог: мастер-рисовальщик, Сьерраар ван Хейгтен (Гарри Н. Абрамс, Нью-Йорк, Нью-Йорк)
Эгон Шиле
Боец Эгона Шиле , 1913 г., гуашь и графит, 19 1/4 x 12 5/8. Частная коллекция. Сравните это изображение с «Этюдом Муция Сцеволы перед Порсенной» Лебрена. В Le Brun субъект что-то несет. У Шиле нагрузка подразумевается — или внутри.
«Это очень интроспективно, — говорит Рубенштейн. «Свернутое напряжение, голова повернута, чтобы смотреть прямо на вас, удлиненный торс. Он выглядит диким». Уроженец Австрии Эгон Шиле (1890–1918) был денди в богемной одежде, предполагаемым порнографом, решительным нарциссом и одним из самых провокационных и необычных рисовальщиков современности.
«По сравнению, скажем, с Рембрандтом, диапазон невелик, — говорит Рубенштейн. «Но вы всегда знаете, если что-то Шиле. Как это произошло? Об этом стоит подумать».
«Все его преувеличения глубокомысленны, — продолжает Рубинштейн. «Его искажения на деньгах — углубление бедра, выпуклость бедра, линия, которая явно связана с подколенными сухожилиями. Искажения основаны на очень точных анатомических ориентирах. Вот что делает их такими тревожными. Это, а также тот факт, что скелет часто присутствует».
Шиле оклеветали за некоторые откровенные рисунки несовершеннолетних девушек, но игнорирование всего его эротического искусства может быть ошибкой. Рубенштейн указывает, что не каждый может успешно заниматься эротикой.
Искусство Шиле бросает вызов не только своим предметом, но и положением его предметов, блуждающими линиями, которые вибрируют от напряжения, и буйными красками, которые он использовал.
«Посмотрите на красный цвет рядом с зеленым, проходящий через цифру 9.0003 Истребитель », — отмечает Рубенштейн. — Это говорит о чем-то невыразимом.
Эйтель-Портер соглашается: «Использование им неестественных цветов и его жестовое нанесение краски с видимыми мазками, чтобы подчеркнуть выражение, отличают Шиле». Ресурсы :
- Эгон Шиле: Полное собрание сочинений Джейн Каллир (Гарри Н. Абрамс, Нью-Йорк, Нью-Йорк)
- Эгон Шиле: рисунки и акварели Джейн Каллир (Thames & Hudson, Нью-Йорк, Нью-Йорк)
Кете Кольвиц
Домашний работник Кете Кольвиц , уголь на желтоватой бумаге, 22 7/8 x 17 5/8. Коллекция неизвестна. Кете Кольвиц (1867–1945) видела много страданий и изображала их с редко встречающимся сочувствием. Ее муж был врачом для бедных в Берлине, что, вероятно, сыграло свою роль в ее симпатиях к социалистам.
Потеря сына в Первой мировой войне вызвала длительную депрессию. Она также потеряла внука во Второй мировой войне. В результате ее душераздирающие образы матерей, плачущих над умершими младенцами, вызывают резонанс.
«И она была таким замечательным рисовальщиком», — говорит Рубенштейн. «Коллвиц мог так много сделать с помощью простых форм. Здесь могут быть несколько тонких отметин, обозначающих волосы; а потом — бум, ты прикован прямо к этому глазу несколькими сильными линиями.
Кольвиц была в первую очередь художником-графиком, ограничивая свою работу в основном черно-белыми изображениями. «Ее смелый графический стиль отражает огромную человеческую боль и страдания обездоленных», — комментирует Эйтель-Портер. «Это основа ее предмета. Мир, который она изображает, окутан тенью; лишь изредка вводятся цветовые штрихи».
Вторит Рубинштейну: «С такой простотой, с такой экономией средств она внушала большое сочувствие. Она могла сделать невероятное человеческое заявление с помощью только обожженной древесины [древесного угля] на бумаге».
Ресурсы :
- Каталог полных графических работ Кете Кольвиц, автор Август Клипштейн (Oak Knoll Press, Нью-Касл, Делавэр)
- Рисунки Кете Кольвиц, Герберт Биттнер (Томас Йоселофф, Нью-Йорк, Нью-Йорк)
*Статьи добавлены Бобом Баром
*** Для получения дополнительных советов по рисованию, инструкций, экспертных идей и вдохновения ознакомьтесь с прошлыми выпусками Drawing magazine.
Программа для рисования мебели для ящиков
Блог, Программное обеспечение для проектирования мебели SketchList 3D – руководства, обучение, версия 4, видео версии 4
6 ноября 2015 г.
Программа для рисования мебели для ящиков.
Выдвижной ящик трудно вытянуть вручную с любой точностью. В ящике довольно много деталей. По крайней мере, это займет у вас много времени.
Я получаю довольно много вопросов о создании ящиков в SketchList 3
В самой первой версии SketchList у меня была функция вставки ящиков, которая работала достаточно хорошо.
И как только третий пользователь посмотрел на это, я услышал старый рефрен — «Я не так делаю свои ящики!» Поэтому я отказался от мастера, зная, что вам проще сделать один ящик и сохранить его как стандарт, чтобы использовать его снова и снова.
Таков процесс.
- Вставьте ящик в сборку.
- Найдите ящик и выберите размер. Я вспомнил, что ящик перекрывает лицевую рамку на полдюйма влево и вправо, чтобы учесть наложение спереди, НО я забыл те же полдюйма сверху и снизу. В видео я добавил минуту в конце, чтобы показать, как сделать это исправление задним числом.
- Перетащите доски в ящик, находя и определяя их размер по ходу дела. Левая и правая боковые доски ящиков смещены на полдюйма для ползунков. Конечно, вы используете любой размер, который требует ваше оборудование.
- Фрезерование деталей коробки, что в данном случае означает выполнение паза по дну, чтобы поместиться в нижнюю доску.
- Нанесите контур на плату передней панели.
- Вставьте выдвижной ящик из библиотеки стандартов.

- Сохраните новый ящик как собственный стандарт для повторного использования.
Кажется, весь процесс занял около 10 минут. Единственное, что я хотел бы добавить, это возможность зеркального отображения спереди назад. Когда я сделал левую сторону, я просто клонировал и отразил ее справа. Было бы неплохо сделать то же самое после обрезки переда. Конечно, я мог бы повернуть сторону на 90 градусов. Я стараюсь держаться подальше от вращения, если это не что-то иное, чем шаг на 90 градусов.
Вот видео. Дайте мне знать, если у вас есть вопросы по изготовлению ящиков в нашем бесплатном программном обеспечении для проектирования мебели.
Совет.
Вы можете использовать функцию пакетного перемещения SketchList 3D, чтобы переместить все в сборке назад, скажем, на 8 дюймов. Сначала убедитесь, что проект достаточно глубокий. Затем выделите ящик и установите его переднюю часть на ноль. Presto – эффект открытого ящика.
Моя любовь к деревообработке началась в 6-м классе в школьном классе. У меня есть степень бакалавра в области промышленных технологий и степень магистра делового администрирования. На своей первой работе я компьютеризировал систему производственного учета — результаты были положительными, и мне нравились вызовы. Я ушел из корпоративного мира, чтобы полностью посвятить себя работе с деревом, и одним из моих первых решений было использовать САПР для своих проектов. Я обнаружил, что САПР не отвечает всем моим потребностям. Я написал спецификацию того, что хотел, и превратил ее в прототип. SketchList 3D зарегистрирован в 2007 году. Мы завершили программирование и запустили. Сегодня тысячи плотников используют SketchList 3D.


