Кровати king size и queen size
Самая полная информация по теме: «кровати king size и queen size» с полным описанием и комментариями от профессионального мастера.
Содержание
- 1 Кровать кинг сайз: особенности, размеры, характеристики
- 2 Удобная и функциональная кровать размера queen size
- 3 Что такое “кровать king size”?
- 4 Queen size или King: какой должна быть кровать в вашей спальне
Кровать – это неотъемлемый атрибут каждого жилого дома. На рынке сегодня представлено множество модификаций, которые отличаются размерами и предназначением. Особой популярностью среди многих владельцев пользуются кровати «King size». Они позволяют сделать отдых намного приятней и комфортней.
Кроватями «Queen size» называют двуспальные ложа, отличающиеся комфортом и большими габаритами. Подобная конструкция имеет размеры 160х200 см.
Эти кровати прекрасно вмещают в себе двух человек стандартной комплекции.
Кровати «Queen size» являются очень популярными как среди молодых пар, так и одиночек, любящих простор. Конструкция такого типа имеет несколько положительных сторон:
- Ложе очень практично, так как увеличенный размер позволяет использовать пространство более комфортно. Если человек спит на ней сам, то свободное место он может использовать для размещения ноутбука или других подобных устройств. Это позволяет совмещать отдых и уют.
- Длина каркаса немного больше, что позволяет разместиться на поверхности всем, независимо от роста человека.
Но все-таки конструкция имеет несколько негативных сторон:
- Ширина кровати всего на 6 дюймов больше стандартной двуспальной модели.
Это дает двум спящим всего по 3 дюйма преимущества. В некоторых случаях это не очень удобно. - В большинстве случаев ее рекомендуют для сна только одного человека.
- Нестандартные размеры постельного белья иногда бывает сложно подобрать на отечественном рынке. Многие производители под видом этой продукции продают изделия с меньшими габаритами.
Нет тематического видео для этой статьи.
| Видео (кликните для воспроизведения). |
На современном рынке можно найти кровати, которые отличаются очень большими габаритами. Их также можно отнести к разновидностям двуспальных моделей. Габариты этих изделий в зависимости от типа кровати варьируются в широком диапазоне. Так, размерами продукции «King size» считается значение 200*200 см (американская классификация). Более лаконичные англичане относят к этому типу ложе с размерами всего 180*200 см. Следует понимать, что эти значения не являются универсальными и каждый производитель может делать конструкции с различными параметрами.
Так, на рынке присутствуют модели «Super King Size», которые можно отнести к самым большим спальным поверхностям. Они могут выполняться в нескольких типоразмерахи:
Все эти характеристики являются стандартными в определенных странах. Поэтому при выборе кроватей данного типа следует учитывать доступность комплектующих для них на отечественном рынке. Некоторые производители могут называть данные конструкции своими именами, но обязательно с употреблением слова «King».
Следует выделить несколько преимуществ такой мебели:
- Ложе является оптимальным вариантом для сна двух человек. Здесь они будут иметь достаточно личного пространства, которое позволит оптимально провести время отдыха.
- Длина каркаса подходит под рост большинства людей. Это исключает неудобную позу или замену конструкции на более длинное изделие.
Но все-таки мебель типа «King Size» имеет несколько весомых недостатков:
- Конструкция отличается большими габаритами и весом.
Поэтому перемещать ее будет очень сложно одному человеку. Зачастую их устанавливают в одно место и затем не двигают. - Мебель в квартиру можно доставить только в разобранном виде.
- Постельное белье стоит очень дорого, что не всегда является оптимальным вариантом для семей со средним доходом.
- Для комплектации кровати следует использовать не менее 3-х подушек, что также несет дополнительные финансовые затраты.
- Нестандартные размеры поверхности не всегда позволяют найти соответствующий тип матраса, который подойдет для изделия.
Кровати «королевского» размера прекрасно вписываются в любой интерьер, а также обеспечивают оптимальный уровень комфорта.
При покупке двуспальных кроватей одной из важных характеристик является размер. От этого параметра зачастую зависит комфорт и практичность поверхности. Рассчитать оптимальные характеристики можно, следуя нескольким простым правилам:
- Длина рассчитывается в зависимости от роста человека.
К габаритам спящего нужно добавить лишних 30 см, которые будут выступать в качестве запаса. К полученному значению следует также прибавлять расстояние, которое занимают подушки. Важно учитывать то, как именно вы располагаете голову на подложке. - Ширина кровати рассчитывается при лежащем на спине человеке. При этом локти его должны быть раскинуты, а пальцы располагаться на животе. Расстояние от краев матраса до локтей должно быть не меньше 10 см. Если же вы спите на боку, то спина должна располагаться от края кровати не меньше 15 см.
Когда вы приобретаете современную двуспальную модель («Ashley» и т. д. ), важно полученные значения рассчитывать на двух человек. При этом следует учитывать, что минимальное расстояние между спящими может приводить к дискомфорту. Поэтому лучше покупайте максимально широкие кровати.
Особенностью двуспальной кровати является наличие большой площади. Поэтому конструкция этой мебели включает в себя центральную опорную планку.
Она как бы делит ложе на две половинки. С ее помощью распределяется нагрузка по всей поверхности более равномерно. Это позволяет не только увеличить габариты, но и продлить срок эксплуатации мебели.
Изготавливают «королевские» кровати с применением нескольких материалов:
- Массив дерева. Массив характеризуется высокой прочностью и долговечностью. Его легко обрабатывать, вещество приятно на ощупь. В качестве материалов для таких изделий используют ценные породы (дуб, красное дерево, ясень, граб и т. д. ). Дорогая мебель дополнительно может украшаться резьбой на спинках или ножках.
- Металл. Конструкции отличаются высокой прочностью и долговечностью. Большие кровати способны спокойно выдерживать двух человек даже со значительным весом. При этом каркас не придет в непригодность даже спустя несколько десятков лет (при правильной эксплуатации и уходе). Чтобы украсить мебель, ее дополняют коваными декоративными элементами.
Зачастую это спинки, которые играют роль опорных ножек. Следует понимать, что металл очень хорошо сочетается с деревом. Поэтому многие кровати формируют именно из этих веществ. - Древесные материалы. Сюда можно отнести ДСП и МДФ. Кровати из них очень часто встречаются на рынке. Но следует понимать, что материал не обладает высокой прочностью. Поэтому подобные «королевские» конструкции не прослужат долго. Этот тип мебели является одним из самых дешевых и редко встречается на рынке.
Нет тематического видео для этой статьи.
| Видео (кликните для воспроизведения). |
Кровати «King size» и «Queen size» можно использовать практически в любом интерьере спален:
- Оптимальным вариантом все-таки будет большое помещение. В такой комнате можно с легкостью поместить ее в соответствии со стилистическими решениями. Подобные конструкции очень часто комбинируют с гардеробными.

Такой подход позволяет создать максимальный комфорт в одной комнате. - Что касается маленьких спален, то королевские кровати можно располагать и здесь. Важно только подобрать оптимальный их размер и форму. Специалисты не рекомендуют устанавливать в небольших спальнях круглые ложа, так как они отнимают много полезного места. Если есть возможность, можно приобрести встроенную конструкцию. Ее размер может соответствовать любому королевскому типу, но она будет прятаться в стену или шкаф.
- Большие кровати с мягкой обшивкой подойдут же для минималистических интерьеров в современном стиле. Эти изделия минимизируют вероятность случайных повреждений. Также специалисты рекомендуют дополнять такой тип мебели боковыми тумбочками. Прекрасно будет смотреться светильник, прикрепленный у изголовья.
- Если вы планируете создавать классический интерьер, тогда вам не обойтись без деревянных кроватей. Лучше отдавать предпочтение мебели с резьбой, которая дополнена роскошной обивкой из атласа или бархата.

«Королевские» кровати можно использовать практически в любых дизайнерских решениях. Главное, правильно подобрать их внешнее оформление, которое станет центральным местом в спальне. При покупке подобных изделий важно учитывать не только их внешний вид, но и технические параметры. Отдавайте предпочтение только продукции известных производителей, учитывая положительные отзывы пользователей.
О том, как сделать кровать «King size» в японском стиле своими руками, вы узнаете из следующего видео.
Кровать кинг сайз: особенности, размеры, характеристики
Королевский размер кровати поражает воображение, представляется роскошным и недоступным ложе из опочивальни Людовика XIV. Так ли это на самом деле? Что представляет собой формат king size? Откуда он пришел к нам? Возможно ли размещение такой кровати на стандартной жилплощади? В данной статье поясним интересующие вопросы и расскажем об особенностях спального места королевского размера.
Кинг сайз – это термин, заимствованный европейцами с просторов Америки.
Дословно переводится как “королевский размер”, применяется для обозначения параметров двуспальных кроватей.
Всем известно, что американцы неутомимы в любви ко всему большому. Огромные машины, дома, фермы, изобилие еды, провоцирующее большие объемы и размеры одежды. Все это постепенно привело к выходу за стандартные рамки и спального места. Производители, чутко отзываясь на потребности своих клиентов, стали выпускать кровати формата кинг, увеличенные, в зависимости от модели, в ширину, длину, или доведенные до параметров квадрата.
Со временем, европейцы переняли этот формат в собственное производство, несколько скорректировав его под привычную систему измерения – сантиметры. Таким образом, термин вошел в обиход нашего мебельного рынка, и стал синонимом заграничной, роскошной, не всегда доступной мебели.
Особенности кроватей кинг сайз, в зависимости от страны производителя
Такой формат производят на двух континентах: Европе и Америке. Их самое важное различие – система измерения. Первые используют сантиметры, вторые – дюймы. Из-за этого возникает путаница в параметрах кроватей. Имея одинаковую приставку king, они отличаются шириной, а иногда и длиной, что вводит отечественных потребителей в заблуждение.Какие габариты имеют кровати формата king в Европе:
- европейский кинг: 160 х 200 см.;
- европейский супер кинг: 180 х 200 см.
Американский king size отличается такими параметрами:
- standard king: 198 х 203,2 см.;
- eastern king: 193 х 203,2 см.;
- california king: 183 х 213,3 см.;
Если европейские мебельщики увеличивают только ширину ложа, то американские меняют оба показателя. Меньше 180 см. формат king в Америке не предусматривает. Это по-настоящему большие кровати, доходящие в своих параметрах до квадрата. На них может поместиться не только 2 взрослых, но и ребенок, поэтому их иногда называют трехспальными.
Формат queen, хоть и позиционируется как двуспальный, все же является аналогом нашей полуторки, поскольку его ширина маловата для двоих взрослых. Размеры такой кровати, в привычной нам единице измерения, равны 152,4 х 203,2 см. Сравнивая квин сайз со стандартным параметром кинг, можно увидеть, что они имеют одинаковую длину, более чем достаточную для среднестатистического европейца. Но различие в ширине ложа достигает 40 см.
Такая кровать считается хорошим вариантом для небольшого помещения. Чаще всего ее выбирают молодые супружеские пары, не испытывающие дискомфорта от близкого расположения партнера. Она является выгодной и по экономическим соображениям. Матрас и постельное белье на такое ложе будут стоить дешевле, чем на кровати формата кинг сайз.
Как подобрать размер постельного белья для кровати кинг сайз
Если вы хотите приобрести кровать кинг сайз европейских производителей, проблем с подбором белья не возникнет. Привычные, не дробные размеры отшиваются у нас в большом количестве.
Главное, всегда просматривать указанные параметры на соответствие с габаритами ложа.
Американский кинг сайз является самым длинным, в некоторых вариантах очень широким. Белье для таких габаритов у нас найти трудно, и стоить оно будет недешево. Также следует учитывать, что двух стандартных подушек для такой ширины недостаточно. Придется использовать три, или приобретать 2 увеличенных, что тянет за собой дополнительные расходы.
Постельное белье европейских производителей, для больших кроватей имеет маркировку “king size”, т.е. в комплекте идет увеличенная простынь и большее количество наволочек. Отечественные изготовители придерживаются собственной маркировки. Для большой кровати рекомендуют белье с пометкой “евро” (простынь 240х220 см.), или “дуэт”, семейный комплект с двумя пододеяльниками, одной простыней (240х220 см.) и двумя наволочками.
Удобная и функциональная кровать размера queen size
Полноценный отдых возможен только на удобном спальном месте. Превосходно чувствовать себя утром может только хорошо выспавшийся человек.
Для реализации своих идей и планов на день просто необходим здоровый и полноценный отдых. На кровати размера queen size полное восстановление сил гарантировано. Габариты такого спального места позволяют комфортно чувствовать себя во сне двум людям, а тем более одиночкам. Спать в любимой позе, не стесняя при этом партнера, – возможность, доступная каждому с таким ложем. Ведь приобрести кровать размера queen size по сходной цене можно в любом мебельном магазине страны.
В настоящее время габаритные кровати становятся все популярнее. С появлением корпусной мебели, которая вмещает в себя большое количество вещей и при этом не занимает много места в комнате, появилось достаточно свободного пространства для установки спального места больших размеров. Правильное расположение элементов интерьера позволяет не загромождать площадь комнаты, освобождая пространство для кровати размера queen size.
Такая мебель прекрасно подойдет для малогабаритных квартир, в которых проживают молодые пары.
Размеры постели предполагают комфортное размещение на ней двух человек.
Европейские модели имеют размеры двуспальной постели до 160 см в ширину. Они отличаются удобством, функциональностью и приемлемой стоимостью.
Стандарт кровати размера queen size составляет 153*203 см. Стоит отметить, что, приобретая мебель для сна, покупатель приобретает только основу, к которой потребуется еще и дополнение – матрас. Стоимость этих изделий зависит от их внутреннего состава и размеров. В этом отношении размер кровати queen size bed более экономичен.
Основное различие между кроватями состоит в единицах измерения и размерной сетке. Размер кровати king size и queen изначально были введены европейскими производителями мебели. Но также они производятся и в США. Учитывая то, что привычная для нас система измерения метрическая, может возникать путаница при заказе, так как в США длина измеряется дюймами.
Итак, кровать размера queen size имеет габариты 160*205 см. Она немногим больше привычной для нас полуторной постели.
King size предполагает соотношение ширины и длины 180*203 см. Европейские варианты моделей имеет более скромные размеры, чем американские.
В США существует такая размерная градация этих кроватей:
- standard king: 198 х 203,2 см;
- eastern king: 193 х 203,2 см;
- california king: 183 х 213,3 см.
Американские производители мебели увеличивают не только ширину, но и длину моделей. Тогда как привычные нам европейские изменяют только ширину.
Для производства каркаса кроватей применяется брус твердых пород дерева, металл, ДСП и МДФ.
Подъемные механизмы бывают:
- пружинный – работает на растягивание узлов пружин, минусом его является недолгий срок службы;
- подъемник с амортизатором газовым – долговечный и бесшумный.
Каркас выполняется из прочного металла, после изготовления он обшивается плитами. Подъемная часть дополняется ламелями.
Обшивка кровати может быть выполнена из ткани, кожи, ее заменителей или дерева.
В зависимости от модели и пожеланий клиента изменяется материал, его структура и цвет.
Отдельно покупатель приобретает матрас, производители рекомендуют обращать внимание на пружинные независимые блоки. Они обладают нужными эргономическими свойствами, не скрипят и имеют долгий срок службы.
Конструкция изделия обеспечивает ровное спальное место и большой короб для постельных принадлежностей и прочих вещей. Это является компенсацией за занятие достаточно большого пространства.
Дизайн кроватей размера queen size предлагается достаточно разнообразный: классические низкие спинки или высокие, обитые мягкими тканями или имеющие резной орнамент по дереву. Изделие может иметь встроенные полки в основание или подобие зависимой боковой стенки, как у углового дивана. Дополняют спинки подсветкой. Ниши в основании моделей используются для хранения вещей. Это значительно экономит место в доме и позволяет спрятать от посторонних глаз личные вещи.
Поднимается спальное место на механизме, выполненном из прочного материала, покрытого металлическим порошком.
Устройство фиксирует угол подъема так, чтобы удобно было уложить все нужные вещи в короб.
Стандартным для кровати размера queen size является использование ламелей, на которых размещается матрас. Гибкие и прочные бамбуковые досочки имеют достаточную ширину и расположены на нужном расстоянии, чтобы выдерживать нагрузки до 320 кг на одно спальное место.
Во многих отелях страны и мира клиентам предлагают номер с кроватью размера queen size. Такая постель очень гармонично вписывается в гостиничную обстановку, делая акцент на простоте убранства комнаты.
Так как кровать с параметрами 160*200 см является двухспальной, она также устанавливается в номерах для двоих.
Лаконично и просто расставленные элементы интерьера, дополняющие изысканность постели, позволят насладиться отдыхом.
Многие люди, выбирающие себе двуспальную кровать, сталкиваются с не совсем понятными определениями размеров кроватей, например, Queen size bed или King size bed. Это связано с принятыми производственными соглашениями между мебельными фабриками.
Вполне естественно, что покупатели желают разобраться в этих определениях и понять, что же это такое, кровать Queen size и кровать King size. Оба эти понятия относятся к так называемым королевским размерам кроватей. Их особенностью является то, что они имеют большую, по сравнению с обычными кроватями ширину. Но размеры кровати Квин сайз гораздо меньше, примерно на 40 сантиметров.
По американским стандартам кровать Queen size имеет сплаьное место 160×200 а King Size – 180×200. В английской традиции есть только размер King Size 150×200 и размер Super King Size 180×200.
Поэтому выбирать кровать следует исходя из размеров спальной комнаты. При относительно небольшой спальне лучше всего подойдет кровать квин сайз. Да и в целом размер кровати Queen size является наиболее оптимальным решением для любителей большого пространства.
Ложе Devon Nickel либо Majesty от салона London Beds предоставляет много свободы для двух человек, но занимает не так много места в спальне и позволяет разместить в комнате и другую необходимую мебель, например, прикроватные тумбочки, комод и т.
д. Именно поэтому данный тип кровати будет идеальным выбором для спален среднего размера.
Что такое “кровать king size”?
Кровати для сна сегодня бывают самых разнообразных форм, размеров, расцветок. Современные производители предлагают потребителям множество вариантов постелей стандартного и нестандартного размера, которые отличаются также внешним видом или технологией производства. Какую же мебель сегодня предпочитает покупать большинство людей?
Любителям большого пространства придется по вкусу кровать king size, которая займет почётное место в любом мебельном салоне. Так называемые «королевские размеры» king и queen size – это самые большие габариты, которые может предложить производитель. Главное отличие – квин сайз уже по ширине на 40 см. Согласно американским стандартам, двуспальные кровати типа queen имеют спальное место 160 см по ширине и 200 см в длину, а king size – 180 см*200 см. По английской системе измерения king size – 150 см*200 см, а superking size – 180*200.
Формат и параметры мебели в США отличаются от параметров в Великобритании, однако объединяет их одно – средняя длина ложа составляет 2 метра.
Существует множество типов мебели, которые отличаются параметрами и видом рамы. Наиболее распространенные типы рам:
- плоская рама без пружин;
- капитанская рама с занавесками и пространством между самой рамой и полом;
- прочная рама для моделей с надувным матрасом.
Спинку, а также изножье постели выполняют из дерева, металла, декорируют различными способами – тканью, кожей, украшают стразами, драгоценными или полудрагоценными камнями.
Когда размеры спальной комнаты позволяют и хочется простора, остановите свой выбор на модели king size, которая даст абсолютную свободу для сна сразу двум!
Опытные специалисты компании Matrason предлагают большой выбор моделей на сайте, среди которых каждый покупатель может выбрать «свою» особенно понравившуюся. Огромный ассортимент товаров и грамотные советы менеджеров помогут сделать правильный выбор.
Большое, просторное ложе позволяет экспериментировать с другой мебелью в спальне, обстановкой, дизайном комнаты.
Кровать занимает центральное, главное место, является сердцем спальни, и в зависимости от её внешнего вида подбирается вся дополнительная обстановка. Правильным решением будет установить прикроватные тумбочки в едином стиле, подобрать комод, туалетный столик, другие предметы интерьера в похожей стилистике и цветовой гамме.
При нынешнем бешеном ритме жизни, ежедневной загруженности делами на работе и дома, человеку необходимо полноценно отдыхать. Здоровый отдых и как следствие – хорошее настроение, самочувствие – обеспечивается только при правильном ночном отдыхе. Недостаточное количество сна может стать причиной возникновения многих хронических болезней, поэтому оборудование спальной комнаты имеет первостепенное значение.
Просторное спальное место – это возможность отлично выспаться обоим партнерам, не мешая друг другу во время сна. Бывает так, что один из супругов ворочается, не может долго уснуть.
Кровать king size позволяет иметь достаточно много места для двоих, а специальный ортопедический матрас удовлетворит пожелания самых требовательных покупателей. Идеально ровное, просторное ложе позволяет принять любую удобную позу для отдыха, расположиться с максимальным комфортом.
Queen size или King: какой должна быть кровать в вашей спальне
22.05.2018, 11:00 EST
Главное правило, которым нужно руководствоваться при выборе супружеского ложа — и мужу, и жене должно быть удобно.
Фото: Depositphotos
В расчет необходимо принимать комплекцию супругов, то, как каждый из них привык спать и размеры спальни, пишет Rambler. При выборе ширины кровати можно руководствоваться правилом — одна двуспальная равна двум односпальным.
Стандартный размер односпальной кровати — 80–90 см. Именно такое пространство, по мнению специалистов, необходимо человеку для полноценного сна. Чтобы проверить минимальный комфортный размер двуспальной кровати, не стесняйтесь прямо в магазине лечь на нее.
Лежа на спине, соедините пальцы рук на животе и выставьте локти в стороны. Расстояние от края кровати до локтя должно быть не менее 10–15 см, и еще столько же должно быть от вашего локтя до локтя партнера. Еще один способ — лечь на бок и подтянуть ноги к животу. Колени не должны свешиваться с кровати, а за вашей спиной должно остаться еще не менее 15 см свободного пространства. Так вы сразу поймете, подходит вам конкретная кровать или стоит поискать вариант побольше.
Стандартные размеры двуспального супружеского ложа начинаются от 140 см. Однако, некоторые молодожены, предпочитающие спать, тесно прижавшись друг к другу, обходятся так называемой «полуторкой» — кроватью, шириной от 100 до 140 см. Для супружеских пар со стажем «полуторка» не подойдет. Долго живущие вместе супруги начинают ценить личный комфорт даже во сне, поэтому для них лучшим выбором будет полноценная двуспальная кровать. Это же касается тех пар с детьми, которые очень часто берут малышей на ночь в свою постель. Дополнительные сантиметры в этом случае вовсе не помешают.
Самый популярный размер двуспальной кровати — 160 см. Этого вполне достаточно, чтобы не беспокоить супруга как во время приготовлений ко сну, так и во время сна. У обоих есть место, чтобы уютно свернуться калачиком или раскинуться на своей половине кровати. Если супруги отличаются небольшой комплекцией, то можно ограничиться и шириной 150–155 см. Для крупных людей или тех, кто во всем предпочитает «королевский размах» существуют кровати шириной 180 см, так называемый Queen size и даже 200 см — Kingsize. Однако, такие размеры подойдут не всем: те, кто на подсознательном уровне боится больших пространств, на кровати двухметровой ширины будет чувствовать себя крайне неуютно.
Зависит размер супружеской кровати и от размеров спальни. Невозможно в маленькую комнату втиснуть большую кровать, поскольку необходимо оставить свободное место на проходы с каждой стороны. Ширина такого прохода должна быть не менее 70 см. Так что перед выбором кровати необходимо провести тщательные замеры спальни.
Кстати, ширина кровати считается по ширине матраса, а не по ширине всех ее конструктивных элементов.
Если есть желание, можно заказать и кровать нестандартной ширины. Но при этом помните, что и матрац, и белье вам тоже придется заказывать по индивидуальным меркам. Гораздо практичнее обойтись стандартными размерами, выбрав ту ширину, которая оптимальна именно для вас.
Какой должна быть удобная кровать? Попробуйте представить этот идеальный предмет мебели. Для многих важно, чтобы он был создан исключительно из экологически чистых материалов или соответствовал определённой стилистике интерьера. Возможно для вас важна ещё какая-то характеристика спального места. Но наверняка вы не в последнюю очередь вспомнили и о габаритах. Ведь хорошее место для сна — это всегда большая, просторная кровать. Ложе размера king size.
«Королевский размер» — вот как переводится этот термин. В прошлом, действительно, кровати таких габаритов могли себе позволить только люди, принадлежащие к самой верхушке элиты.
Сейчас этот уровень комфорта доступен каждому.
Повсеместное распространение кроватей king size началось в Америке — там любят всё большое. Однако позднее европейцы позаимствовали данные модели мебели, немного скорректировав их размеры в соответствии с собственной системой измерения, метрической. Теперь в магазинах можно найти королевские кровати с длиной и шириной и в дюймах, и в сантиметрах.
Впрочем, все модели кинг сайз представляют собой большое просторное ложе, на котором удобно спать вдвоём. И даже втроём — ребёнок в любой момент может присоединиться к родителям.
СПРАВКА! В магазинах, на фотографиях в модных журналах, в фильмах про красивую жизнь можно иногда увидеть круглые кровати. Они тоже являются разновидностью моделей king size. Диаметр стандартного ложа такого типа составляет 200 см.
Особенности европейских и американских кроватей кинг сайз
Европейские и американские модели отличаются размерами.
Произведённые в Европе кровати могут обладать габаритами:
Аналоги из Америки бывают:
- 78х80 дюймов (198х203,2 см) — стандартный королевский размер;
- 76х80 дюймов (193х203,2 см) — восточный королевский размер;
- 72х84 дюйма (183х213,3 см) — калифорнийский королевский размер.
Словом, различие невелико. Однако его следует иметь в виду при выборе предмета мебели для спальни. Ведь в этой ситуации значение зачастую имеет каждый сантиметр. Особенно, для компактных городских квартир.
ВАЖНО! Прежде чем приобретать кровать, стоит произвести замеры помещения, куда вы собираетесь её поставить. Необходимо точно представлять, каким пространством вы располагаете, войдёт ли туда ложе? Прикроватные тумбочки? И сколько места останется?
У кровати королевского размера есть и близкая родственница — модель с пометкой «квин сайз». Эта разновидность спального места миниатюрнее — её ширина меньше примерно на 40 см.
Как и у моделей king size, у данной кровати есть две версии:
- европейская — 160х200 см;
- американская — 60х80 дюймов (152,4х203,2 см).
Qween size зачастую используют как максимально комфортное спальное место для одного. Или в качестве супружеского ложа для молодой семьи, располагающей жильём небольшой площади.
Зачем нужная такая кровать и на что обращать внимание при покупке
Есть 4 аргумента в пользу того, чтобы задуматься о приобретении постели королевского размера:
- Удобна для сна двух человек. На широком двухметровом ложе спящие не будут мешать друг другу, для каждого окажется достаточно личного пространства. Благодаря этому на такой кровати вы будете лучше высыпаться.
- Помещается третий. Например, ребёнок. Часто маленькие дети испытывают потребность спать вместе с родителями. Это их способ почувствовать себя любимыми и защищёнными.
- Легко подобрать качественный матрас. Производители матрасов часто имеют в виду данную размерную линейку, изготавливая свои модели.
Это упрощает для покупателей задачу подобрать такой матрас, какой нужно. - Большое количество вариантов — есть из чего выбирать. Существует много вариаций кроватей king size — следствие высокого спроса на эту категорию товара. Их делают в любых стилях, из разных материалов, с балдахинами, без балдахинов, с ящиками, на ножках.
ВАЖНО! Материал — очень значимая характеристика изделия. Деревянные или металлические предметы мебели обычно прочные и долговечные, однако и более тяжёлые, дорогие. Демократичное ДСП гораздо дешевле и по внешнему виду может не отличаться от натуральной древесины. Однако они существенно менее устойчивы к повреждениям.
Обратите внимание на модели со встроенными ящиками. Это хороший способ более рационально использовать пространство. Главное, кровать должна понравится. Изучайте разные предложения, рассматривайте. А лучше — попробуйте прилечь. Королевский размер — это атрибут высокого качества жизни, доступный практически каждому.
Автор статьи: Борис Купинов
Здравствуйте. Меня зовут Борис. Я уже более 7 лет работаю прорабом в строительной компании. Я считаю, что в настоящее время являюсь профессионалом в своей области и хочу помочь всем посетителям сайта решать разнообразные вопросы. Все материалы для сайта собраны и тщательно переработаны с целью донести как можно доступнее всю нужную информацию. Перед применением описанного на сайте желательна консультация с профессионалами.
✔ Обо мне ✉ Обратная связь
Оцените статью:
Ліжко кінг сайз: особливості, розміри, характеристики
Королівський розмір ліжка вражає уяву, представляється розкішним і недоступним ложе з опочивальні Людовика XIV. Чи так це насправді? Що являє собою формат king size? Звідки він прийшов до нас? Чи можливо розміщення такого ліжка на стандартній житлоплощі? У даній статті пояснимо, що цікавлять і розповімо про особливості спального місця королівського розміру.
Визначення терміна king size і його джерела
Кінг сайз — це термін, запозичений європейцями з просторів Америки. Дослівно перекладається як & ldquo; королівський розмір & rdquo ;, застосовується для позначення параметрів двоспальних ліжок.
Всім відомо, що американці невтомні в любові до всього великого. Величезні машини, будинки, ферми, достаток їжі, що провокує великі обсяги і розміри одягу.
Все це поступово призвело до виходу за стандартні рамки і спального місця. Виробники, чуйно відгукуючись на потреби своїх клієнтів, стали випускати ліжка формату кінг, збільшені, в залежності від моделі, в ширину, довжину, або доведені до параметрів квадрата.
З часом, європейці перейняли цей формат у власне виробництво, кілька скорегувавши його під звичну систему вимірювання — сантиметри. Таким чином, термін почали вживати на нашому меблевому ринку, і став синонімом закордонної, розкішної, не завжди доступної меблі.
Особливості ліжок кінг сайз, в залежності від країни виробника
Ми з’ясували, що таке ліжко king size, тепер пропонуємо поговорити про особливості розмірів. Такий формат виробляють на двох континентах: Європі та Америці. Їх найважливіше відмінність — система вимірювання. Перші використовують сантиметри, другі — дюйми. Через це виникає плутанина в параметрах ліжок. Маючи однакову приставку king, вони відрізняються шириною, а іноді і довжиною, що вводить вітчизняних споживачів в оману.
Які габарити мають ліжка формату king в Європі:
- європейський кінг: 160 х 200 см.;
- європейський супер кінг: 180 х 200 см.
Американський king size відрізняється такими параметрами:
- standard king: 198х203,2 см;
- eastern king: 193х203,2 см;
- california king: 183х213,3 см;
Якщо європейські меблевики збільшують тільки ширину ложа, то американські змінюють обидва показники. Менше ніж 180 см. Формат king в Америці не передбачає. Це по-справжньому великі ліжка, які доходять до своїх параметрах до квадрата. На них може поміститися не тільки 2 дорослих, але і дитина, тому їх іноді називають трьохспальну.
Чим відрізняється ложе king size від queen size
Формат queen, хоч і позиціонується як двоспальний, все ж є аналогом нашої полуторки, оскільки його ширина замала для двох дорослих.
Розміри такої ліжка, в звичній нам одиниці виміру, рівні 152,4х203,2 см. Порівнюючи квин сайз зі стандартним параметром кінг, можна побачити, що вони мають однакову довжину, більш ніж достатню для середньостатистичного європейця. Але відмінність в ширині ложа досягає 40 см
Таке ліжко вважається хорошим варіантом для невеликого приміщення. Найчастіше її вибирають молоді подружні пари, які не відчувають дискомфорту від близького розташування партнера. Вона є вигідною і з економічних міркувань. Матрац і постільна білизна на таке ложе коштуватимуть дешевше, ніж на ліжку формату кінг сайз.
Як підібрати розмір постільної білизни для ліжка кінг сайз
Якщо ви хочете придбати ліжко кінг сайз європейських виробників, проблем з підбором білизни не виникне. Звичні, що не дробові розміри обшиваються у нас у великій кількості. Головне, завжди переглядати вказані параметри на відповідність з габаритами ложа.
Американський кінг сайз є найдовшим, в деяких варіантах дуже широким.
Білизна для таких габаритів у нас знайти важко, і коштувати воно буде недешево. Також слід враховувати, що двох стандартних подушок для такої ширини недостатньо. Доведеться використовувати три, або купувати 2 збільшених, що тягне за собою додаткові витрати.
Постільна білизна європейських виробників, для великих ліжок має маркування “king size ”, тобто в комплекті йде збільшене простирадло і більшу кількість наволочок. Вітчизняні виробники дотримуються власного маркування. Для великого ліжка рекомендують білизна з позначкою “ євро ” (Простирадло 240х220 см), Або “дует”, сімейний комплект з двома підковдрами, одним простирадлом (240х220 см) І двома наволочками.
Тепер ви знаєте всі особливості ліжка кінг сайз, чим відрізняється вона від квин сайз, і на що орієнтуватися при виборі постільної білизни для такого ложе. Хочеться додати, що велич і розкіш даних меблів здатні проявитися в потрібному за розміром приміщенні. Якщо спальня невелика, кінг сайз в ній буде виглядати безглуздо, до того ж ускладнить пересування по кімнаті.
Для просторих спалень з високими стелями, ліжко королівського розміру стане вдалим рішенням, вона підкреслить величність простору, додасть йому певну стильовий напрям. Такі ложе пропонує до перегляду zlatamebel.ua, великі, якісні і розкішні.
Королівський розмір від Zlatamebel
Анабель
Нью-Йорк
Рафаелла
Натуральні
матеріали
Ми використовуємо тільки найкращі та безпечні матеріали. Ви можете бути спокійні за Ваше здоров’я і здоров’я Ваших дітей.
Система контролю з якості
П’ятиступінчаста система контролю якості — «5Q» практично виключає випуск готового виробу з недоліком.
Навантаження на диван
600 кг — оптимальне навантаження на наш диван.
Гарантія на каркас
Ми настільки впевнені в якості наших меблів, що даємо гарантію на каркас — 10 років.
Надійність
Понад 100 магазинів по Україні та за кордоном, понад 2500 співробітників, більш як 10 мільйонів відвідувачів щороку.
КРЕДИТ
или рассрочка
Ви можете придбати наші меблі в розстрочку або кредит. Для цього зверніться до менеджера будь-якого нашого фірмового салону.
Размер постельного белья queen. Особенности комплектации
Содержание
- Размер постельного белья queen. Особенности комплектации
- Размер постельного белья для кровати 160 на 200. Подбор постельного к матрасу
- Размеры односпального постельного белья. Российские стандарты комплектов для взрослых
- Размер постельного белья для кровати 180 на 200. Какие размеры постельного белья бывают?
- Детское постельное белье
- Постельное белье для новорожденных
- Постельное белье кинг сайз размер. Double, Full, и Queen-размеры постельного белья
Размер постельного белья queen. Особенности комплектации
Выбирая комплект принадлежностей для сна в американских интернет-магазинах, стоит помнить, что наборы практически никогда не комплектуются пододеяльниками. Стандартный двуспальный комплект включает по две наволочки и простыни, из которых одна используется для одеяла (flat sheet).
В ней может быть предусмотрены крепления (заклепки, пуговицы, молнии). Некоторые модели просто заворачиваются сверху. Вторая простынка застилается на матрац (fitted sheet). Наши соотечественники ее называют европростынью.
Названия матрасов для подбора комплекта белья с размерами (в дюймах) — смотрите таблицы ниже
Переводим размеры постельного белья США на русский:
- Односпальные – single (может быть twin).
- Полуторные – extra long single.
- Двуспалка – full (может быть double).
- Белье увеличенных параметров маркируется как king size или queen.
- Самый большой комплект постельного промаркирован названием сalifornia king.
- Sheet – обычная простынь.
- Sheet set – набор из простыней.
- Bedspread – покрывало больших параметров.

- Duvet cover – пододеяльник.
- Coverlet – стандартное покрывало.
- Comforter – одеяло.
- Mattress – матрас.
- Featherbed – наматрасник стеганный.
- Fitted sheet – простынь для матраса.
- Flat sheet – простынка для заворачивания одеяла.
- Mattress pad – простой наматрасник.
- Pillow – подушка.
- Pillow case – обычная наволочка.
- Thread-count – обозначение плотности плетения.
- Throw – маленькое покрывало.
Как узнать комплектацию? Словарь терминов поможет узнать, что входит в постельный комплект из маркировки на упаковке. Вместе с тем из словаря мы узнаем, как называются на английском другие постельные принадлежности. Итак:
Размер постельного белья для кровати 160 на 200. Подбор постельного к матрасу
Задавая себе вопрос какой нужно выбрать размер постельного белья, следует замерять свою кровать в длину и ширину. Постельное разделяют на 3 вида: двухспальное, односпальное и полуторное, приобрести которое можно перейдя по ссылке в интернет магазине Vende. Но не стоит при покупке зацикливаться на виде, в обязательном порядке необходимо учитывать размер матраса, постельное должно быть немного больше. Ведь, например, двухспальный комплект для кровати размером 180 на 200 не подойдет для двухспальной кровати размером 200 на 200 см.
Производители иногда указывают на своих постельных принадлежностях размеры матраса/ кровати, для которого они подходят. Кровати изготавливаются с соблюдением следующих размеров:
- 80×200,
- 90×200,
- 100×200,
- 120×200,
- 40×200,
- 160×200,
- 180×200,
- 200×200.
Размеры указаны в сантиметрах. Первое значение указывает на ширину кровати, второе — на длину. Самой большей популярностью пользуются кровать с размером 160×200 см.
Большой популярностью пользуются комплекты белья следующих размерах:
- 160×200,
- 220×200 или 200×220
- 140×200,
- 180×200 (самый меньший выбор).
В случае с постельным 220×200 или 200×220 следует учитывать что является длиной и шириной. Конечно, в этом случае ничего не мешает повернуть его на 90 градусов и получить другой размер. Только нужно считаться с тем фактом, что поменяется вся конструкция. Все пуговицы, застежки-молнии или вкладки будут перемещены — вместо нижней части они будут находится на стороне.
Точно так же обстоит дело с размером 200×220.
Обычно комплект с размером 140×200 см предназначен для одного человека и включает в себя простыню, одну наволочку для подушки и пододеяльник. Остальные комплекты включают в себя простыню, двойной пододеяльник и две наволочки. Иногда постельное размером 160х200 см также предназначено для одного человека, особенно если речь идет о детском и юношеском возрасте.
Для кроватей с размерами 80×200, 90×200, 100×200 или односпальных кроватей подходит постельное белье размером 140×200 или 160×200. Раскладные диваны 120х200 следует устилать наборами размером 160×200 или 180×200 см.
Для двуспальных кроватей с размерами 160х200, 180х200 200х200 понадобятся комплекты на 220х200, 200×220. Возможным решением является покупка двух комплектов 140×200 или 160×200. Как правило, постельное белье должно быть больше, чем матрас, чтобы иметь возможность удобно его обернуть простыней.
Размеры односпального постельного белья. Российские стандарты комплектов для взрослых
Хотя в России размеры постельного белья сведены в ГОСТ, многие изготовители отходят и от такого стандарта, и даже от распространенных габаритных сеток.
Дело в том, что заводы стараются закрыть все ассортиментные позиции. В результате разница по сравнению с типовой размерной сеткой может составлять 10 см в меньшую либо в большую сторону. Также стоит отметить, что 1-спальные комплекты постельного белья перестали выпускаться уже довольно давно. Они доказали свою недостаточную практичность. Ознакомившись с таблицами, характеризующими комплекты постельного белья, можно заметить, что наволочки чаще всего делаются размером 70х70 см. Но некоторые из них могут быть 50х50 или 40х60 см.
Полутораспальный набор включает:
- пододеяльник 145х215;
- простыню 150х220;
- наволочки 70х70 см.
Наволочки в двухспальном формате тоже имеют размер 70х70. Двухспальные пододеяльники – 175х215 см. Рассчитанные на двух человек простыни – 220х240 см. В семейном виде комплектов используются простыни двухспального и пододеяльники полутораспального габарита. Что касается европейского стандарта (который указывают российские производители), в нем они имеют размер 220х240 см.
На односпальную кровать кладут чаще всего полутораспальные комплекты постельного белья. Более крупные недостаточно удобны. «Королевская» ветвь европейского стандарта включает пододеяльники и простыни размером 220х240 см. При этом в такие наборы входят 1 наволочка 70х70 и 2 наволочки 50х50 см. Для подростков пододеяльники должны быть 145х215, а простыни – 150х215 см.
Также в подростковые наборы входят не пары, а единственные наволочки габаритом 70х70 м. Что касается постельного белья для новорожденных детей, в его состав входят уменьшенные наволочки – 40х60 см. При этом сокращаются размеры пододеяльника до 115х147. А вот формат простыней варьируется: есть размеры 100х150 и 120х150 см. В ГОСТ указано, что пододеяльник в одинарном комплекте не употребляется. Простыня в нем должна быть 203х120, наволочка – 214х120 см. Для полуторного формата предусмотрены габариты:
- 215х143;
- 215х153;
- 214х130 см.
Отвечающие российскому государственному стандарту изделия двуспального формата более разнообразны.
Так, пододеяльник в них может иметь габариты 215х163 или 215х175 см. Простыни отличаются размерами:
- 214х145;
- 214х15;
- 23х15 см.
Есть пять форматов двуспальных наволочек:
- 40х40;
- 60х60;
- 70х70;
- 75х75;
- 80х80 см.
Размер постельного белья для кровати 180 на 200. Какие размеры постельного белья бывают?
encoding=»utf-8″ ?
Ассортимент комплектов постельного белья сегодня просто огромен. В том числе и с точки зрения размеров изделий. В зависимости от производителей параметры могут меняться, и разница порой достигает 20 сантиметров. Потому важно обращать внимание на этикетку, где указываются точные размеры выбранного комплекта постельного белья, соотносить данные с длиной и шириной именно ваших матраса, одеяла и подушек.
Итак, какие размеры постельного белья бывают? Здесь все зависит от типа комплекта.
полуторное постельное белье
полуторное постельное белье предназначено для односпальной или полутороспальной кровати.
1,5-спальное белье рассчитано на одного человека.
В полуторный комплект обычно входят:
- одна или две наволочки размером 50х70, 60х60 или 70х70 сантиметров;
- простыня размером 150х215, 160х220 или 160х210 сантиметров;
- пододеяльник размером 145х210, 150х210, 160х220 или 150х215 сантиметров.
двуспальное постельное белье
двуспальное постельное белье подходит для стандартных двуспальных кроватей. 2-спальный комплект может использовать как один человек, если спит на широкой кровати, так и вдвоем.
2-х спальное белье включает:
- две или четыре наволочки размером 50х70, 60х60 или 70х70 сантиметров;
- простыню размером 175х210, 175х215, 180х210, 180х215, 210×230, 215х240, 220х215 или 220х240 сантиметров;
- пододеяльник размером 175х210, 175х215, 180х210 или 180х215 сантиметров.
постельное белье евро
постельное белье евро становится все более популярным, подходит для очень широких кроватей.
евро постельное белье рассчитано на двух человек. ширина пододеяльника в евро-комплекте вполне достаточна, чтобы у каждого из спящих под ним не было потребности «тянуть одеяло на себя».
В комплект евро белья входят:
- две или четыре наволочки размером 50х70 или 70х70 сантиметров;
- простыня размером 215х240, 220х270, 220х250, 230х250, 240х260 или 240х280 сантиметров;
- пододеяльник размером 200х220, 200х230 (евро-стандарт), 220х240 или 225х245 ( евро-макси ).
семейное постельное белье
семейное постельное белье (дуэт) идеально для супружеских пар, которые отказались от ночных битв за тепло и вместо одного большого купили два полуторных одеяла.
Соответственно, семейный комплект предоставляет вам:
- две или четыре наволочки размером 50х70 или 70х70 сантиметров;
- простыню 240х260 или 240х280 сантиметров;
- два пододеяльника размером 145х210, 150х210, 150х215, 150х220 или 160х220 сантиметров.

Детское постельное белье
Детское постельное белье соответствует стандартам полуторного постельного белья.
Чаще всего детский комплект имеет:
- одну или две наволочки размером 50х70 или 70х70 сантиметров;
- простыню размером 150х215, 160х220 или 160х210 сантиметров;
- пододеяльник размером 143х215, 150х210, 153х215 или 160х220 сантиметров.
Постельное белье для новорожденных
Постельное белье для новорожденных рассчитано специально под стандартные детские кроватки.
В комплект для кроватки входят:
- наволочка размером 40х60 сантиметров;
- простыня размером 105х170 или 120х180 сантиметров;
- пододеяльник размером 100х140, 110х140 или 115х145 сантиметров.
Некоторые производители дополняют комплекты для новорожденных специальными детскими подушками, одеяльцами, балдахинами, бортиками.
Размеры постельного белья бывают самые разные, важно, чтобы они подходили именно для вашей кровати.
Постельное белье кинг сайз размер. Double, Full, и Queen-размеры постельного белья
Любой из этих размеров вписывается в обычную комнату, но многие американские пары считают, что полная, или двуспальная кровать (что по сути одно и то же) слишком узка для чего-то большего, чем просто случайный сон. Малый королевский размер уже обеспечивает побольше места, не занимая слишком много пространства.
Вот основная разница между кроватями Full и Queen:
Двойные кровати на 15 дюймов (38 см) шире, чем Твин, но если два поделить кровать пополам, каждый займет только 27” (чуть меньше 70 см) личного пространства — гораздо меньше, чем в предыдущем пункте! Вообще размер Full соответствует нашему варианту спального места, который выходит с раскладного дивана-книжки. То есть, что-то типа полуторки. Full были наиболее распространены для двуспальных кроватей до 1960-х годов.
- Постельное размера «queen-size» на 6” шире (чуть больше 15 см).
- Габаритные размеры: длина 54” x 75” (137 см на 190 см)
- Ширина спального места на одного: 68 см.

- Плюсы: подходит для небольших комнат. Может быть, подходит для одного спящего, который хочет спать на более просторном месте. Простыни дешевле малого и большого королевского размера.
- Минусы: многие люди считают, что double слишком узкий и короткий для 2 взрослых.
Малый королевский комплект (и, соответственно, матрас) на 21 дюйм ( 53 см) шире и на 5 дюймов (13 см) длиннее кровати Twin. Хотя эта дополнительная ширина и длина имеют большое значение для хорошего сна, у каждого взрослого человека по-прежнему спальное место уже на 9 дюймов, чем если бы каждый спал в одной кровати. Размер Queen прекрасно подходит для гостевых комнат и небольших хозяйских спален, это станет хорошим выбором для пар, которые любят спать в обнимку.
- Габаритные размеры: 60” в ширину х 80″ в длину (153 на 203 см)
- Ширина спального места на одного: 30” (76 см)
- Плюсы: дает двум спящим больше места. Дополнительная длина хорошо подходит для роста большинства взрослых.
Простыни и одеяла легко найти по доступной цене. - Минусы: для каждого человека не так много личного пространства (всего 10 см больше, чем Double), малый королевский матрас может быть слишком узким для для пары. Некоторые постельные комплекты маркированы как «Full/Queen» и не подходят на деле ни для одного из них.
Сравните роскошные номера и люксы отеля в Осака — Swissotel Nankai, Осака — Swissotel Nankai, Осака
Во всех 546 номерах и люксах вас ожидают самая современная техника и удобства, а также современный швейцарский дизайн. Обои с пиксельными узорами и традиционная деревянная мебель на клубных этажах «Swiss» отражают дух и Осака, и Швейцарии, а также создают комфортную и стильную атмосферу. Приехали по работе? Забронируйте клубный номер или люкс «Swiss» и посещайте клубную гостиную.
ПОЖАЛУЙСТА, ОБРАТИТЕ ВНИМАНИЕ:
С 19 марта 2018 г. в отеле Swissotel Nankai, Осака не курят.
Всего 28 номеров на 1 этаже из 546 номеров отеля были забронированы желающими курить в номере.
Кроме того, в последнее время повысился спрос на номера для некурящих, в связи с чем этим 28 номеров будут сдаваться некурящим гостям с 19 марта 2018 г.
Благодарим за терпение и понимание.
Номера
Номер Swiss Advantage
Двуспальная кровать (размера 2х2), квин-сайз или две односпальные кровати
22 кв. м
Вид на город
Номер Swiss Select
Двуспальная кровать (размера 2х2), квин-сайз или две односпальные кровати
22 / 26 / 32 кв. м
Вид на город
Комната для детей от HOPPL (Kids’ Grand Room)
Двуспальная кровать (размера 2х2)
57 кв. м
Вид на город
Клубный номер с доступом в Эксклюзивный швейцарский клуб (двуспальная кровать (размера 2х2))
Двуспальная кровать (размера 2х2)
Вид на город, с 32 по 34 этаж
Клубный номер (с двумя односпальными кроватями)
Две раздельные односпальные кровати
32–34 кв. м
Вид на город, с 32 по 34 этаж
Клубный номер с доступом в Эксклюзивный швейцарский клуб (тройной)
Тройной
45 кв.
м
Вид на город, с 32 по 34 этаж
Номер Люкс Junior
Большая двуспальная или две раздельные односпальные кровати
Вид на город, с 16 по 31 этаж
«Waon»
Двуспальная кровать (размера 2х2)
Вид на город, 14-й этаж
«Waraku»
Две раздельные односпальные кровати
Вид на город, 14-й этаж
Номер люкс Deluxe
Большая двуспальная или две раздельные односпальные кровати
Вид на город, с 32 по 34 этаж
Люкс Prestige
Большая двуспальная или две раздельные односпальные кровати
Вид на город, верхний этаж
Номер люкс категории Imperial
Двуспальная кровать (размера 2х2)
181 м²
Вид на город, верхний этаж
Тип номера
Тип кровати
Площадь
Вид
Номера
Номер Swiss Advantage
Большая двуспальная кровать (размера 2х2), двуспальная кровать квин-сайз или две односпальные кровати
22 кв.
м
Вид на город
Номер Swiss Select
Большая двуспальная кровать (размера 2х2), двуспальная кровать квин-сайз или две односпальные кровати
22 / 26 / 32 кв. м
Вид на город
Комната для детей от HOPPL (Kids’ Grand Room)
Двуспальная кровать (размера 2х2)
57 кв. м
Вид на город
Клубный номер с доступом в Эксклюзивный швейцарский клуб (двуспальная кровать (размера 2х2))
двуспальная кровать (размера 2х2)
Вид на город, с 32 по 34 этаж
Клубный номер (с двумя односпальными кроватями)
Две односпальные кровати
32–34 кв. м
Вид на город, с 32 по 34 этаж
Клубный номер с доступом в Эксклюзивный швейцарский клуб (тройной)
Трехместный номер
45 кв. м
Вид на город, с 32 по 34 этаж
Номер Люкс Junior
Двуспальная кровать (размера 2х2) или две раздельные односпальные кровати
Вид на город, с 16 по 31 этаж
«Waon»
двуспальная кровать (размера 2х2)
Вид на город, 14-й этаж
«Waraku»
Две односпальные кровати
Вид на город, 14-й этаж
Номер люкс Deluxe
Двуспальная кровать (размера 2х2) или две раздельные односпальные кровати
Вид на город, с 32 по 34 этаж
Люкс Prestige
Двуспальная кровать (размера 2х2) или две раздельные односпальные кровати
Вид на город, верхний этаж
Номер люкс категории Imperial
двуспальная кровать (размера 2х2)
181 м²
Вид на город, верхний этаж
Тип номера
Тип кровати
Площадь
Вид
Номера
Номер Swiss Advantage
Двуспальная кровать (размера 2х2), квин-сайз или две односпальные кровати
22 кв.
м
Вид на город
Номер Swiss Select
Двуспальная кровать (размера 2х2), квин-сайз или две односпальные кровати
22 / 26 / 32 кв. м
Вид на город
Комната для детей от HOPPL (Kids’ Grand Room)
Двуспальная кровать (размера 2х2)
57 кв. м
Вид на город
Клубный номер с доступом в Эксклюзивный швейцарский клуб (двуспальная кровать (размера 2х2))
Двуспальная кровать (размера 2х2)
Вид на город, с 32 по 34 этаж
Клубный номер (с двумя односпальными кроватями)
Две раздельные односпальные кровати
32–34 кв. м
Вид на город, с 32 по 34 этаж
Клубный номер с доступом в Эксклюзивный швейцарский клуб (тройной)
Тройной
45 кв. м
Вид на город, с 32 по 34 этаж
Номер Люкс Junior
Большая двуспальная или две раздельные односпальные кровати
Вид на город, с 16 по 31 этаж
«Waon»
Двуспальная кровать (размера 2х2)
Вид на город, 14-й этаж
«Waraku»
Две раздельные односпальные кровати
Вид на город, 14-й этаж
Номер люкс Deluxe
Большая двуспальная или две раздельные односпальные кровати
Вид на город, с 32 по 34 этаж
Люкс Prestige
Большая двуспальная или две раздельные односпальные кровати
Вид на город, верхний этаж
Номер люкс категории Imperial
Двуспальная кровать (размера 2х2)
181 м²
Вид на город, верхний этаж
Кровать кинг сайз — Строй журнал artikagroup.
ru Рейтинг статьиЗагрузка…
5 вариантов кровати Кинг Сайз с размерами
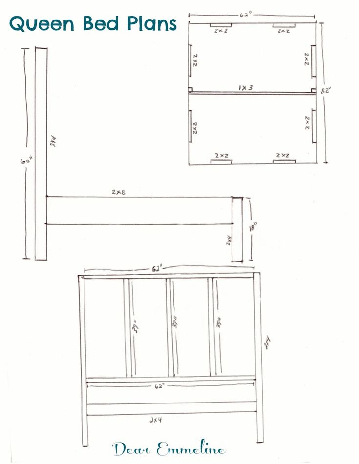
Удобная и просторная кровать – залог комфортного полноценного отдыха и отличного настроения человека. Поэтому популярность приобретает модный вариант Кинг Сайз.
В данной статье я расскажу, что представляет собой изделие под многообещающим названием «Кинг Сайз». Как данный вариант сочетается со стилистикой интерьера, каковы ее особенности и из какого материала выполнена качественная мебель.
Особенности кровати Кинг Сайз
Это поистине королевские кровати, отдыхать на которых просторно и комфортно.
Актуальны такие варианты в спальне. Качественный ночной отдых человека — залог успешной трудовой деятельности и хорошего самочувствия. Такие цели преследует габаритное ложе.
Такое ложе выполнено из прочного каркаса, в который подбирают ортопедический, или анатомический матрац. На нем не будет тесно, в любом положении тела, поэтому отдохнуть на ней можно комфортно.
King Size станет не только удобным местом отдыха, но и украшением спальни в любой стилевой направленности.
Габариты
Вариантов размерной сетки обычно три:
- Ложе размером 180х200 см.
- Кинг Сайз размером 200х200 см.
- Королевский вариант 200х220 см.
Ложу каких габаритов отдать предпочтение зависит от потребителя. Но по стандарту считается максимально удобной длинна на 20 см больше роста человека. Что касается ширины, то в этом вопросе никаких стандартов не существует, все зависит от личных предпочтений.
По стандарту считается максимально удобной длинна на 20 см больше роста человека
Материалы изготовления
Такие типы изготавливаются из разных материалов:
- Натурального дерева.
- Древесных материалов.
- Металла.
Самыми качественными, прочными и экологичными являются варианты из массива дерева. Они имеют долгие сроки эксплуатации, но и по стоимости это самые дорогие изделия.
Доступные по цене варианты выполнены из ДСП и МДФ. Внешне они похожи на деревянные, но их качество значительно уступает натуральным. Сроки эксплуатации значительно короче, относиться к таким изделиям стоит бережно, так как они подвержены механическим повреждениям. Да и качество фурнитуры у них значительно уступает фурнитуре на натуральных деревянных кроватях.
Металлическая также износоустойчива и имеет долгие сроки эксплуатации. Она не подвержена никаким механическим повреждениям. Но изделие из металла подходит не для всех стилевых направлений.
Металлическая кровать износоустойчива и имеет долгие сроки эксплуатации
Матрасы для больших кроватей
От него зависит комфортные ощущения человека и полноценный отдых. Часто Кинг Сайз уже укомплектованы матрасами. Но если изделие реализуется без этой важной детали, то необходимо выбрать его самостоятельно.
Матрасы для больших вариантов бывают 2 типов: ортопедические и анатомические.
Обе разновидности подходят для качественного отдыха.
Ортопедические матрасы повторяют форму человеческого тела, поэтому отдыхать на них удобно и комфортно.
Варианты оформления изголовья
Производители предлагают множество вариантов его оформления, в зависимости от типа самого ложа. Поэтому выбор за самим покупателем.
Изголовье у ложа Кинг Сайз правильной прямоугольной формы, оформлено сдержанно. Такие варианты подходят для интерьера в современных стилях Минимализма, Хай – тек и т.д.
Ложе с большим фигурным изголовьем выглядит по-королевски в классических стилях оформления комнаты.
Ложе с большим фигурным изголовьем выглядит по-королевски в классических стилях оформления комнаты
Кровать Кинг Сайз и интерьер
Ложе Кинг Сайз изготавливается в приглушенных мягких светлых тонах, или темных серых, коричневых и черных.
Такие цветовые решения подходят для разностилевых интерьеров. Главное условие для размещения большой кровати – просторная комната.
Сдержанные варианты правильной формы подходят ко всем современным стилевым направлениям. Главное правильно сочетать цвета. Если комната оформлена в светлых тонах, то ложе в холодных темных оттенках станет ее изюминкой и главным акцентом.
Ложе King или Queen Size с большим мягким фигурным изголовьем станет украшением классического стиля. Гармонично выглядят возле такого ложа большие картины в стиле Барокко.
Королевская кровать Кинг или Квин Сайз – это не просто предмет мебели для комфортного полноценного отдыха, но и изысканное украшение комнат в разных стилевых направлениях. Неброская цветовая гамма позволяет изделию вписаться в любой интерьер. Сладкий сон на королевской кровати гарантирован ее владельцам.
Кровати «King size» и «Queen size»
Кровать – это неотъемлемый атрибут каждого жилого дома. На рынке сегодня представлено множество модификаций, которые отличаются размерами и предназначением. Особой популярностью среди многих владельцев пользуются кровати «King size».
Они позволяют сделать отдых намного приятней и комфортней.
Кровать для королевы
Кроватями «Queen size» называют двуспальные ложа, отличающиеся комфортом и большими габаритами. Подобная конструкция имеет размеры 160х200 см.
Эти кровати прекрасно вмещают в себе двух человек стандартной комплекции. Модель такого типа примерно на 6 дюймов превышает ширину стандартной двуспальной кровати. Таким образом двое спящих на ней могут себя чувствовать намного комфортней и свободней.
Преимущества и недостатки
Кровати «Queen size» являются очень популярными как среди молодых пар, так и одиночек, любящих простор. Конструкция такого типа имеет несколько положительных сторон:
- Ложе очень практично, так как увеличенный размер позволяет использовать пространство более комфортно. Если человек спит на ней сам, то свободное место он может использовать для размещения ноутбука или других подобных устройств.
Это позволяет совмещать отдых и уют. - Длина каркаса немного больше, что позволяет разместиться на поверхности всем, независимо от роста человека.
Но все-таки конструкция имеет несколько негативных сторон:
- Ширина кровати всего на 6 дюймов больше стандартной двуспальной модели. Это дает двум спящим всего по 3 дюйма преимущества. В некоторых случаях это не очень удобно.
- В большинстве случаев ее рекомендуют для сна только одного человека.
- Нестандартные размеры постельного белья иногда бывает сложно подобрать на отечественном рынке. Многие производители под видом этой продукции продают изделия с меньшими габаритами.
Ложе короля
На современном рынке можно найти кровати, которые отличаются очень большими габаритами. Их также можно отнести к разновидностям двуспальных моделей. Габариты этих изделий в зависимости от типа кровати варьируются в широком диапазоне.
Так, размерами продукции «King size» считается значение 200*200 см (американская классификация). Более лаконичные англичане относят к этому типу ложе с размерами всего 180*200 см. Следует понимать, что эти значения не являются универсальными и каждый производитель может делать конструкции с различными параметрами.
Так, на рынке присутствуют модели «Super King Size», которые можно отнести к самым большим спальным поверхностям. Они могут выполняться в нескольких типоразмерахи:
Все эти характеристики являются стандартными в определенных странах. Поэтому при выборе кроватей данного типа следует учитывать доступность комплектующих для них на отечественном рынке. Некоторые производители могут называть данные конструкции своими именами, но обязательно с употреблением слова «King».
Положительные стороны
Следует выделить несколько преимуществ такой мебели:
- Ложе является оптимальным вариантом для сна двух человек. Здесь они будут иметь достаточно личного пространства, которое позволит оптимально провести время отдыха.

- Длина каркаса подходит под рост большинства людей. Это исключает неудобную позу или замену конструкции на более длинное изделие.
Но все-таки мебель типа «King Size» имеет несколько весомых недостатков:
- Конструкция отличается большими габаритами и весом. Поэтому перемещать ее будет очень сложно одному человеку. Зачастую их устанавливают в одно место и затем не двигают.
- Мебель в квартиру можно доставить только в разобранном виде.
- Постельное белье стоит очень дорого, что не всегда является оптимальным вариантом для семей со средним доходом.
- Для комплектации кровати следует использовать не менее 3-х подушек, что также несет дополнительные финансовые затраты.
- Нестандартные размеры поверхности не всегда позволяют найти соответствующий тип матраса, который подойдет для изделия.
Кровати «королевского» размера прекрасно вписываются в любой интерьер, а также обеспечивают оптимальный уровень комфорта.
Определяемся с габаритами
При покупке двуспальных кроватей одной из важных характеристик является размер. От этого параметра зачастую зависит комфорт и практичность поверхности. Рассчитать оптимальные характеристики можно, следуя нескольким простым правилам:
- Длина рассчитывается в зависимости от роста человека. К габаритам спящего нужно добавить лишних 30 см, которые будут выступать в качестве запаса. К полученному значению следует также прибавлять расстояние, которое занимают подушки. Важно учитывать то, как именно вы располагаете голову на подложке.
- Ширина кровати рассчитывается при лежащем на спине человеке. При этом локти его должны быть раскинуты, а пальцы располагаться на животе. Расстояние от краев матраса до локтей должно быть не меньше 10 см. Если же вы спите на боку, то спина должна располагаться от края кровати не меньше 15 см.
Когда вы приобретаете современную двуспальную модель («Ashley» и т.
д. ), важно полученные значения рассчитывать на двух человек. При этом следует учитывать, что минимальное расстояние между спящими может приводить к дискомфорту. Поэтому лучше покупайте максимально широкие кровати.
Материалы
Особенностью двуспальной кровати является наличие большой площади. Поэтому конструкция этой мебели включает в себя центральную опорную планку. Она как бы делит ложе на две половинки. С ее помощью распределяется нагрузка по всей поверхности более равномерно. Это позволяет не только увеличить габариты, но и продлить срок эксплуатации мебели.
Изготавливают «королевские» кровати с применением нескольких материалов:
- Массив дерева. Массив характеризуется высокой прочностью и долговечностью. Его легко обрабатывать, вещество приятно на ощупь. В качестве материалов для таких изделий используют ценные породы (дуб, красное дерево, ясень, граб и т. д. ). Дорогая мебель дополнительно может украшаться резьбой на спинках или ножках.

- Металл. Конструкции отличаются высокой прочностью и долговечностью. Большие кровати способны спокойно выдерживать двух человек даже со значительным весом. При этом каркас не придет в непригодность даже спустя несколько десятков лет (при правильной эксплуатации и уходе). Чтобы украсить мебель, ее дополняют коваными декоративными элементами. Зачастую это спинки, которые играют роль опорных ножек. Следует понимать, что металл очень хорошо сочетается с деревом. Поэтому многие кровати формируют именно из этих веществ.
- Древесные материалы. Сюда можно отнести ДСП и МДФ. Кровати из них очень часто встречаются на рынке. Но следует понимать, что материал не обладает высокой прочностью. Поэтому подобные «королевские» конструкции не прослужат долго. Этот тип мебели является одним из самых дешевых и редко встречается на рынке.
Место в интерьере
Кровати «King size» и «Queen size» можно использовать практически в любом интерьере спален:
- Оптимальным вариантом все-таки будет большое помещение.
В такой комнате можно с легкостью поместить ее в соответствии со стилистическими решениями. Подобные конструкции очень часто комбинируют с гардеробными. Такой подход позволяет создать максимальный комфорт в одной комнате. - Что касается маленьких спален, то королевские кровати можно располагать и здесь. Важно только подобрать оптимальный их размер и форму. Специалисты не рекомендуют устанавливать в небольших спальнях круглые ложа, так как они отнимают много полезного места. Если есть возможность, можно приобрести встроенную конструкцию. Ее размер может соответствовать любому королевскому типу, но она будет прятаться в стену или шкаф.
- Большие кровати с мягкой обшивкой подойдут же для минималистических интерьеров в современном стиле. Эти изделия минимизируют вероятность случайных повреждений. Также специалисты рекомендуют дополнять такой тип мебели боковыми тумбочками. Прекрасно будет смотреться светильник, прикрепленный у изголовья.

- Если вы планируете создавать классический интерьер, тогда вам не обойтись без деревянных кроватей. Лучше отдавать предпочтение мебели с резьбой, которая дополнена роскошной обивкой из атласа или бархата.
«Королевские» кровати можно использовать практически в любых дизайнерских решениях. Главное, правильно подобрать их внешнее оформление, которое станет центральным местом в спальне. При покупке подобных изделий важно учитывать не только их внешний вид, но и технические параметры. Отдавайте предпочтение только продукции известных производителей, учитывая положительные отзывы пользователей.
О том, как сделать кровать «King size» в японском стиле своими руками, вы узнаете из следующего видео.
Кровать кинг сайз: особенности, размеры, характеристики
Королевский размер кровати поражает воображение, представляется роскошным и недоступным ложе из опочивальни Людовика XIV.
Так ли это на самом деле? Что представляет собой формат king size? Откуда он пришел к нам? Возможно ли размещение такой кровати на стандартной жилплощади? В данной статье поясним интересующие вопросы и расскажем об особенностях спального места королевского размера.
Определение термина king size и его истоков
Кинг сайз — это термин, заимствованный европейцами с просторов Америки. Дословно переводится как “королевский размер”, применяется для обозначения параметров двуспальных кроватей.
Всем известно, что американцы неутомимы в любви ко всему большому. Огромные машины, дома, фермы, изобилие еды, провоцирующее большие объемы и размеры одежды. Все это постепенно привело к выходу за стандартные рамки и спального места. Производители, чутко отзываясь на потребности своих клиентов, стали выпускать кровати формата кинг, увеличенные, в зависимости от модели, в ширину, длину, или доведенные до параметров квадрата.
Со временем, европейцы переняли этот формат в собственное производство, несколько скорректировав его под привычную систему измерения — сантиметры.
Таким образом, термин вошел в обиход нашего мебельного рынка, и стал синонимом заграничной, роскошной, не всегда доступной мебели.
Особенности кроватей кинг сайз, в зависимости от страны производителя
Мы выяснили, что такое кровать king size, теперь предлагаем поговорить об особенностях размеров. Такой формат производят на двух континентах: Европе и Америке. Их самое важное различие — система измерения. Первые используют сантиметры, вторые — дюймы. Из-за этого возникает путаница в параметрах кроватей. Имея одинаковую приставку king, они отличаются шириной, а иногда и длиной, что вводит отечественных потребителей в заблуждение.
Какие габариты имеют кровати формата king в Европе:
- европейский кинг: 160 х 200 см.;
- европейский супер кинг: 180 х 200 см.
Американский king size отличается такими параметрами:
- standard king: 198 х 203,2 см.;
- eastern king: 193 х 203,2 см.;
- california king: 183 х 213,3 см.
;
Если европейские мебельщики увеличивают только ширину ложа, то американские меняют оба показателя. Меньше 180 см. формат king в Америке не предусматривает. Это по-настоящему большие кровати, доходящие в своих параметрах до квадрата. На них может поместиться не только 2 взрослых, но и ребенок, поэтому их иногда называют трехспальными.
Чем отличается ложе king size от queen size
Формат queen, хоть и позиционируется как двуспальный, все же является аналогом нашей полуторки, поскольку его ширина маловата для двоих взрослых. Размеры такой кровати, в привычной нам единице измерения, равны 152,4 х 203,2 см. Сравнивая квин сайз со стандартным параметром кинг, можно увидеть, что они имеют одинаковую длину, более чем достаточную для среднестатистического европейца. Но различие в ширине ложа достигает 40 см.
Такая кровать считается хорошим вариантом для небольшого помещения. Чаще всего ее выбирают молодые супружеские пары, не испытывающие дискомфорта от близкого расположения партнера.
Она является выгодной и по экономическим соображениям. Матрас и постельное белье на такое ложе будут стоить дешевле, чем на кровати формата кинг сайз.
Как подобрать размер постельного белья для кровати кинг сайз
Если вы хотите приобрести кровать кинг сайз европейских производителей, проблем с подбором белья не возникнет. Привычные, не дробные размеры отшиваются у нас в большом количестве. Главное, всегда просматривать указанные параметры на соответствие с габаритами ложа.
Американский кинг сайз является самым длинным, в некоторых вариантах очень широким. Белье для таких габаритов у нас найти трудно, и стоить оно будет недешево. Также следует учитывать, что двух стандартных подушек для такой ширины недостаточно. Придется использовать три, или приобретать 2 увеличенных, что тянет за собой дополнительные расходы.
Постельное белье европейских производителей, для больших кроватей имеет маркировку “king size”, т.е. в комплекте идет увеличенная простынь и большее количество наволочек.
Отечественные изготовители придерживаются собственной маркировки. Для большой кровати рекомендуют белье с пометкой “евро” (простынь 240х220 см.), или “дуэт”, семейный комплект с двумя пододеяльниками, одной простыней (240х220 см.) и двумя наволочками.
Размер кровати и матраса King size и Queen size
Кровать – основное изделие во всей мебельной композиции для спальни. Привлекательный внешний вид – далеко не самое важное, на что следует обращать внимание при выборе кровати. Основными критериями являются: функциональность, практичность и удобство. Также важное значение имеет размер кровати. На удобных и просторных моделях Кинг Сайз, либо Квин Сайз ваш сон будет комфортным и спокойным.
Эти удобные изделия получили свое название, благодаря внушительным размерам.
«King size» в переводе означает – «королевский размер», его используют производители для нестандартных двуспальных моделей.
Впервые она появилась в США, несколько позже они пришлись по вкусу европейцам.
В наши дни королевские кровати пользуются повышенным спросом в разных странах мира.
King size и Queen size отличаются размерами. Длина такого изделия составляет – 200 сантиметров, ширина – от 180 до 200 сантиметров. Именно такое спальное место является универсальным и практичным для просторных помещений, выполненных в разных стилях. Некоторым дизайнерам удается установить кровать King size в небольшую спальню.
Ложе королевы или Queen size имеет длину 200 сантиметров и ширину – от 153 до 160 см. Такая модель кровати идеально подойдет людям стандартной комплекции, которые не испытывают дискомфорт от прикосновений партнера во время сна. Также многие люди приобретают кровать такого размера для одного человека, которые желают спать в роскошном ложе. Такое изделие следует устанавливать в небольшой спальне, где важен каждый свободный сантиметр. Кровать Queen size – это выгодное вложение средств для многих семейных пар с небольшим материальным доходом.
голоса
Рейтинг статьи
Оценка статьи:
Загрузка.
..
Adblock
detector
Размер матраса Queen: все, что вам нужно знать
Если вы ищете новый матрас, вам нужно знать основы, когда вы начнете искать информацию в Интернете. Это включает в себя понимание типа вашего сна, знание типа кровати, которую вы хотите, и определение наилучшего размера матраса для вашего пространства. Матрас размера «queen-size» — лучший выбор для большинства американских спален.
В ходе опроса, проведенного Better Sleep Council, 47% потребителей подтвердили, что спят на матрацах размера «queen-size». Так почему именно матрас размера «queen-size» является любимым размером матраса в Америке, и как узнать, подходит ли он вам?
Имея это в виду, мы составили подробное руководство по матрасам размера «queen-size», от преимуществ владения кроватью размера «queen-size» до альтернатив, которые вы, возможно, захотите выбрать вместо нее. Вот все, что вам нужно знать:
Содержание
- Размеры матраса размера «queen-size»
- Полный размер против матраса размера «queen-size»
- King Size против матраса Queen Size
- Типы матрасов размера «queen-size»
- Варианты матрасов Puffy Queen Size
- Часто задаваемые вопросы
Размеры матраса размера «queen-size»
Стандартный матрас размера «queen-size» имеет ширину 60 дюймов и длину 80 дюймов.
Это делает их идеальным размером матраса для одиноких людей, которым нужен более комфортный сон, а также для пар, которые имеют меньшую площадь комнаты, но все же хотят хорошо выспаться.
Размеры матраца Olympic Queen немного больше, и чаще всего его можно найти в жилых автофургонах и прицепах для кемперов. Они на целых шесть дюймов шире стандартных матрацев размера «queen-size», но такой же длины.
Преимущество олимпийских кроватей размера «queen-size» в том, что они обеспечивают немного больше места, хотя для них труднее найти постельное белье.
Полноразмерный матрас по сравнению с матрасом размера «queen-size»
Полноразмерная кровать или двуспальная кровать имеет размеры около 54 дюймов на 75 дюймов для своих кроватей и имеет ту же длину, что и матрасы двойного размера, но шире, с дополнительным пространством для сна. удобно. Полноразмерный матрас — идеальный матрас для подростков и одиноких взрослых, а для семей с более чем одним ребенком отличным вариантом может стать каркас двухъярусной кровати.
Помимо цены, одним из ключевых моментов, которые следует учитывать, если вы пытаетесь выбрать между полной кроватью и кроватью размера «queen-size», является фактический размер вашей спальни и размеры кровати. Большинство дизайнеров рекомендуют оставлять по крайней мере два фута с каждой стороны кровати для достаточного количества пространства для ходьбы.
Это означает, что вам понадобится комната размером не менее 10 на 10 футов, чтобы ваша двуспальная кровать имела смысл в вашем пространстве. Если вы работаете с немного меньшим размером комнаты, хорошей альтернативой будет полноразмерная кровать.
Также необходимо убедиться, что размеры кровати соответствуют размеру матраса. Если вы приобретете матрас большего размера, чем размеры вашей кровати, он со временем выйдет из строя.
Кинг-сайз и квин-сайз матрас
Хотя матрасы королевского и королевского размеров предлагают одинаковое пространство в длину, их основное различие заключается в ширине.
Стандартный король предлагает дополнительные 16 дюймов ширины, чем королева, и считается лучшим для пар, которым нравится больше места.
Кровать размера «king-size» — это великолепный роскошный выбор , который идеально подходит для тех, кто крепко спит, или для тех, у кого в комнате немного больше места. Если вы ищете небольшую дополнительную длину, то матрасы California King — ваш лучший выбор: они имеют длину 84 дюйма и ширину 72 дюйма.
Вам понадобится главная спальня размером не менее 12 на 12 футов, чтобы размер матраса королевского размера соответствовал вашему пространству. Имейте в виду, что кровати размера «king-size» также, как правило, остаются в более высокой ценовой категории, чем кровати размера «queen-size», поэтому, если у вас есть бюджет на спальню, ваш выбор может быть немного проще.
Типы матрасов размера «queen-size»
Несмотря на то, что размер вашего матраса важен, когда речь идет об общем виде и ощущении вашей спальни, когда речь идет о вашем сне, вы не можете игнорировать тип матраса, в который вы решили инвестировать.
На рынке представлено множество вариантов, если вы ищете самый удобный матрас для сна. По правде говоря, лучший матрас для вас, как правило, почти полностью сводится к вашим личным предпочтениям, и все, от вашего положения во сне до температуры в вашей комнате, может повлиять на ваш выбор.
Матрасы Queen с эффектом памяти становятся все более популярными среди тех, кто ищет универсальные матрасы. Они обеспечивают хороший баланс между поддержкой и комфортом, охлаждают тех, кто спит в горячем состоянии, и обеспечивают изоляцию движения, что является находкой для пар, которые делят кровать.
Матрасы Hybrid Queen , с другой стороны, обеспечивают немного большую поддержку благодаря внутреннему поддерживающему слою, состоящему из витков в пенопластовой оболочке.
Они отлично подходят, если вы ищете более целенаправленное снижение давления, хотите что-то с немного большим отскоком, не жертвуя преимуществами кровати из пены с эффектом памяти.
Варианты матрасов Puffy Queen Size
Матрасы Puffy queen представлены в трех полных вариантах:
Матрас Puffy — это наша оригинальная разработка. С 5 слоями и высотой 10 дюймов это доступный вариант для тех, кто не хочет идти на компромисс в отношении качества своего отдыха. В нем есть все, что вам может понадобиться, в том числе гипоаллергенные и грязеотталкивающие чехлы, пеноматериал Climate comfort™ для регулирования температуры тела и ощущение сна на облаке, которое вы не найдете больше нигде.
Puffy Lux Hybrid — наш самый продаваемый матрас. Он состоит из 6 слоев и имеет высоту 12 дюймов. Он включает в себя нашу специально разработанную для тела адаптирующуюся к телу пену с двойным облаком, которая сводит к минимуму напряжение и работает, обволакивая ваше тело, когда вы ворочаетесь, поворачиваетесь и спите. позиции. Puffy Lux идеально подходит для всех типов спальных мест .
Если вы любите изысканные вещи, кровать Puffy Royal – это то, что вам нужно.
Этот вариант с 7 слоями и высотой целых 14 дюймов обеспечивает целевую поддержку с технологией контурной адаптации и включает в себя гелевый охлаждающий слой, который идеально подходит, если вы живете в более жарких районах или просыпаетесь ночью в поту.
Матрасы Queen — это отличный стартовый матрас для нового дома, а также настоящая инвестиция в хороший ночной сон. Не уверены, подходит ли вам матрас размера «queen-size»? Продукты Puffy имеют бесплатную доставку и пробный период сна в течение 101 ночи, поэтому, если вы не спите лучше или не чувствуете себя хорошо после покупки, вы можете отправить ее обратно.
Вы можете просмотреть различные размеры и размеры матрасов, сравнить матрасы и прочитать последние обзоры матрасов, чтобы сделать правильный выбор.
Часто задаваемые вопросы
Все ли матрасы размера «queen-size» одного размера?
Существует три разных типа матрасов размера «queen-size»: стандартный матрас размера «queen-size», раздельный матрас размера «queen-size» и олимпийский матрас размера «queen-size».
Стандартный размер королевы является самым популярным размером, его размеры составляют 60 дюймов на 80 дюймов . Размер олимпийской королевы немного больше стандартной королевы, он на 6 дюймов шире и 80 дюймов в длину. Разделенная королева регулируется, поскольку состоит из двух отдельных матрасов, каждый из которых имеет ширину 30 дюймов и длину 80 дюймов.
Что такое королевский размер?
Матрас размера «queen-size» идеально подходит для пар, его размеры составляют 60 дюймов в ширину и 80 дюймов в длину. Это отличный размер для одиноких спящих, которые ищут дополнительное спальное место, или для пары с небольшой комнатой.
Что такое кровать 60×80?
Кровать размером 60×80 дюймов представляет собой кровать размера «queen-size». Матрас размера «queen-size» — самый популярный тип матраса на рынке . Он подходит для одиночных спящих, пары или двух взрослых и ребенка. Это идеальный вариант для пар с небольшой или средней комнатой, которые хотят спать с комфортом.
Поиск лучшего матраса является ключом к тому, чтобы спать прохладнее, спокойнее и без помех — удачных покупок!
Выберите свой матрас
Магазин с наибольшим рейтингом. в США
Купить сейчас
Размеры и размеры кроватей | Выбор матраса правильного размера
Руководство покупателя по выбору матраса, подходящего для вас и вашей спальни
- Последнее обновление: 8 июля 2022 г.
В этой статье
Размеры и размеры кроватей США
Все матрасы разные; от используемых материалов до того, насколько они мягкие или твердые. Даже процесс строительства может немного отличаться от кровати к кровати. При параллельном сравнении может показаться, что самые популярные кровати имеют больше различий, чем сходств. Однако, как правило, все они имеют один общий, но очень важный фактор при выборе правильного матраса, а именно размер и габариты кровати.
Таблица размеров матрасов
Размеры и размеры матрасов могут значительно различаться в разных странах мира, поэтому, если есть сомнения, всегда лучше обратиться непосредственно в компанию для получения точного размера. Или просмотрите наши обзоры матрасов, где мы указываем размеры каждой кровати в деталях покупки.
В США существуют добровольные рекомендации по размерам, установленные Международной ассоциацией товаров для сна (ISPA). Это означает, что в большинстве случаев матрасы сохранят одинаковые размеры независимо от того, где вы покупаете (если не указано иное).
Выбор нового матраса
Так почему это так важно и какой размер матраса выбрать для своей семьи? Во многих случаях размер кровати является фактором, когда дело доходит до установки нового матраса в вашем пространстве. Вы не хотите, чтобы комната казалась меньше, чем она есть, но вам также нужен достаточно большой матрас, чтобы удовлетворить ваши потребности во сне.
Даже если пространство не является проблемой, расширение может быть или не быть правильным выбором. Итак, давайте поговорим о стандартных размерах кроватей в США и их размерах, чтобы увидеть, кто больше всего выигрывает от каждого размера. Выбор размера кровати будет зависеть от следующего:
- Пространство внутри комнаты
- Размер и форма тела
- Положение для сна
- Одноместный или общий
И, конечно же, личные предпочтения. В то время как некоторые пары могут захотеть спать как короли и королевы на кровати размера «king-size» или «California King size», другие могут предпочесть близость матраса размера «queen-size». С другой стороны, те, кто спит в одиночестве, могут насладиться роскошью пространства, которое предоставляет матрас королевского размера. Тем не менее, другие могут найти кровать размера «king-size» слишком большой. Давайте сломаем это!
Связано: Найдите и оптимизируйте наилучшее положение для сна
Размеры двуспальной кровати
Лучшее для ограниченного пространства и бюджета.
Это самый маленький из доступных матрасов для взрослых размером , размеры которого составляют 38 дюймов (ширина) x 75 дюймов (длина). Кровати Twin Size чаще всего используются теми, у кого мало места, но они также могут подходить для ребенка, который просто перерос своего малыша. матрас. Из-за размера он также делает его отличным выбором для тех, кто покупает матрас с ограниченным бюджетом.
Этот размер кровати идеально подходит для братьев и сестер, живущих в одной комнате, двухъярусных кроватях, комнатах для гостей и общих комнатах. Рекомендуемый минимальный размер комнаты для двуспальной кровати составляет 7 футов на 10 футов.
Размеры двуспальной кровати размера XL
Подходит для людей с ограниченным пространством и бюджетом, для высоких людей.
Матрас Twin XL имеет ту же ширину, что и матрас Twin size, но на 5 дюймов длиннее, имеет размеры 38 дюймов (ширина) x 80 дюймов (длина).
бюджет, чтобы подняться на размер до полноразмерного матраса. С Twin XL вам не придется беспокоиться о том, что ваши ноги свисают с края кровати!
Имея ровно половину размеров кровати размера «king-size», 2 кровати Twin XL можно комбинировать на одном основании или основании, чтобы получить матрас размера «king-size». Это делает Twin XL отличным выбором для пар, предпочитающих разные ощущения и жесткость. Для тех, кто использует регулируемое основание, это также популярный вариант, если матрас Split King size недоступен.
Минимальный размер комнаты для одноместного матраса Twin XL должен составлять 9 футов на 9 футов .
Размеры полноразмерной кровати
Лучше всего подходит для пар с ограниченным пространством и бюджетом.
Полноразмерные кровати представляют собой хороший компромисс между матрасами Twin и Queen. Имея размеры 54 дюйма (ширина) x 75 дюймов (длина), , они станут хорошим выбором для пар, у которых не так много свободного места, или для тех, кто спит в одиночестве и предпочитает больше кататься на большей площади.
Для некоторых пар это все еще может считаться тесным сжатием, но также может быть отличным выбором для тех, кто любит прижиматься или обниматься со своим партнером.
Пары, выбравшие полноразмерный матрас, захотят найти кровать с отличной опорой по краям, позволяющую спящим использовать всю поверхность матраса и создающую ощущение большего пространства. Пружинные и гибридные матрасы, как правило, обеспечивают лучшую поддержку краев, чем пена с эффектом памяти. В то же время эти матрасы обычно обеспечивают лучшее охлаждение и воздухопроницаемость, что может быть особенно важно при совместном использовании такого интимного пространства.
Рекомендуемый минимальный размер комнаты для полноразмерной кровати: 9 человек.футов на 9,6 футов.
Размеры двуспальной кровати
Подходит для пар, средняя площадь поверхности.
Мне нравится называть это золотой серединой, с размерами 60 дюймов Ш X 80 дюймов Д кровать размера «queen-size» — хороший шаг вперед по сравнению с полноразмерным матрасом.
Благодаря большей площади поверхности это еще более популярный выбор для пар или одиноких спящих, которые делят кровать с детьми или домашними животными. Более крупные люди и/или те, кто предпочитает больше места для движения, оценят дополнительные 6 дюймов в ширину, которые обеспечивает этот размер матраса.
Королева — одна из самых популярных покупок размера кровати. Немного больше, чем полноразмерная кровать, рекомендуемый минимальный размер комнаты для матраса размера «queen-size» составляет 10 футов на 10 футов.
Размеры матраса King Size
Лучше всего подходит для пар, большая площадь поверхности, роскошь.
Размеры матраса King Size составляют 76 дюймов (ширина) x 80 дюймов (длина) , что делает его одной из самых больших поверхностей, доступных для сна. Популярный выбор для пар, которые предпочитают немного больше места, чтобы разложиться, матрас размера «king-size» также является идеальным выбором для семей, предоставляя достаточно места для детей и / или домашних животных, чтобы прийти и прижаться.
В конечном счете, спите ли вы в одиночестве или делите свою кровать с кем-то еще, кровать размера «king-size» обязательно обеспечит роскошный сон.
Для комфортного размещения матраса King size минимальный рекомендуемый размер комнаты составляет 12 на 12 футов. Это обеспечивает достаточно места для тумбочек с обеих сторон и позволяет легко перемещаться по кровати.
Раздельный матрас King Size Размеры
Лучше всего подходит для пар с разными предпочтениями сна или для тех, кто использует регулируемое основание.
Во многих случаях кровать Split King представляет собой одну кровать с разделенной только верхней половиной матраса. Это особенно популярный выбор для пар, которые используют регулируемое основание, но одинаково предпочитают жесткость и ощущение. Split King позволяет спящим независимо регулировать каждую сторону основания. Например, такая регулировка может позволить одному спящему сидеть прямо для чтения, в то время как его партнер может предпочесть наслаждаться настройкой невесомости.
Сплит-кровать также можно создать, соединив вместе 2 матраса Twin XL, чтобы получился матрас королевского размера. Как мы упоминали ранее, размер каждой кровати Twin XL ровно в два раза меньше размера восточноевропейской кровати размера «king-size». Это популярный выбор для пар, которые имеют очень разные предпочтения в отношении сна и изо всех сил пытаются найти матрас, который удовлетворит потребности обоих спящих. С кроватью Split King каждый спящий может выбрать кровать, которая ему больше всего подходит, но при этом наслаждаться совместным сном. В конечном счете, Split King — это индивидуальная настройка и независимость для каждого спящего.
*Если вам не нравится идея разделения посередине кровати, но вы хотите получить высокий уровень персонализации, мы рекомендуем регулируемый надувной матрас. Регулируемые надувные кровати, также доступные в вариантах Split King, позволяют спящим независимо регулировать уровень жесткости своей стороны кровати.
California King Size Размеры
Подходит для пар и высоких людей, большая площадь поверхности.
Матрас California King, как и кровать King Size, имеет большую площадь поверхности с 9Размеры 0003: 72 дюйма (ширина) x 84 дюйма (длина). Матрас California King немного уже, чем кровать Eastern King, на 4 дюйма, а его длина увеличивается на 4 дюйма, что делает его прекрасным вариантом для высоких спящих людей или тех из вас, у кого есть домашние животные, которые любят спать. у основания кровати. Простыни для матраса California King найти сложнее, и они часто дороже, чем стандартные простыни King Size, поэтому имейте это в виду, прежде чем принять решение.
Немного более длинные размеры кровати размера «king-size» California: лучше всего подходит для помещения размером не менее 12 на 12 футов.
Какой матрас мне подходит?
Как видите, существует множество решающих факторов при выборе размера матраса для вашего помещения.
Для детей и подростков отличным выбором будет матрас Twin, Twin XL или даже полноразмерный.
В то время как одинокие взрослые могут чувствовать себя наиболее комфортно с матрасами Twin XL, Full, Queen или даже King size, чтобы получить наибольшую площадь поверхности. Кровать размера «queen-size», «king-size» или «California King» наиболее удобна для пар, но если бюджет и пространство являются важными факторами, вы можете выбрать полноразмерную кровать. Просто убедитесь, что вам нравится обниматься со своим партнером, так как это будет тесно для некоторых более высоких или крупных пар. В конце концов, полноразмерные матрасы когда-то были нормой для пар.
Выбор матраса King, California King или Split King Size
Если бюджет и пространство не являются решающим фактором, матрасы King и California King Size обеспечат много места и роскоши. Хотя оба эти стиля хороши, если вы делите свою кровать с детьми и/или домашними животными, кровать размера «king-size» California — явный победитель для более высоких людей.
Для тех, кто ниже 6 футов ростом, вы можете предпочесть дополнительные 4 дюйма в ширину, которые обеспечивает стандартный матрас королевского размера.
Наконец, для пар с очень разными предпочтениями в отношении сна мы рекомендуем приобрести два матраса размера Twin XL. Вместе эти кровати можно разместить на раме или на регулируемом основании, чтобы создать такие же размеры поверхности, как и у восточных двуспальных кроватей. Как и в варианте Split King, 2 кровати размера Twin XL можно использовать с регулируемым основанием, позволяющим каждому спящему независимо отрегулировать свою сторону кровати. Это действительно лучший вариант для пар, которые любят индивидуальность.
Резюме
Нет правильного или неправильного ответа, когда дело касается выбора размера матраса. Размер комнаты, телосложение и предпочтения — это лишь некоторые из решающих факторов при выборе того, что лучше всего подходит вам и вашей семье. Как только вы поймете плюсы и минусы каждого выбора, вы можете быть уверены в принятии решения о следующей покупке матраса, не беспокоясь о том, подойдет ли он для вашей спальни.
В чем разница между кроватью размера «queen-size» и «king-size»
21 июня 2022 г.
от Hasa
Чтение через 4 мин.
Основное различие между кроватью размера «queen-size» и кроватью размера «king-size» заключается в том, что кровать размера «queen-size» меньше, чем кровать размера «king-size». Кровать размера «queen-size» обычно имеет ширину 60 дюймов и длину 80 дюймов, тогда как кровать размера «king-size» имеет ширину 76 дюймов и длину 80 дюймов.
Выбор правильного размера кровати является важным шагом в выборе правильной кровати для вашей комнаты. Есть много факторов, которые вы должны учитывать при выборе размера кровати: наличие места, количество людей, спящих на ней, уровень комфорта и т. д. Размер кроватей размера «queen-size» и «king-size» — это два самых больших и удобных размера кроватей, доступных на рынке. В этой статье мы поможем вам выбрать между кроватями размера «queen-size» и «king-size».
Ключевые области, покрытые
1.
Что такое кровать Queen Led
— Определение, Особенности
2. Что такое кровать King
— Определение, особенности, используйте
3. Различия и Королева и Королева и Королева и Королева и Королева и Королева и Королева и Королева и Королева и Королева и Королева и Королева Кровать размера «king-size»
– Сравнение основных различий
Основные термины
Кровать размера «queen-size», кровать размера «king-size», размеры кровати
Что такое кровать размера «queen-size» меньше размера «king-size»
90 кровать размера , но больше, чем двуспальная кровать. Его размеры составляют примерно 60 дюймов (5 футов) в ширину и 80 дюймов (6 футов 8 дюймов) в длину. Следовательно, его площадь поверхности составляет 4800 квадратных дюймов. На двуспальных кроватях могут разместиться как одиночки, так и пары. Они популярны среди односпальных кроватей, так как предлагают больше места для ног.
Кровать размера «queen-size» обеспечивает 60 дюймов спального места для односпальных гостей. Если он используется парой, он обеспечивает 30 дюймов спального места на человека.Кровать Queen обычно имеет глубину 9 и 16 дюймов. Однако для матрасов не существует стандартной толщины, и глубина будет варьироваться в зависимости от используемых слоев и материалов. Кровати размера «queen-size» более популярны, чем кровати размера «king-size», потому что они могут поместиться в более тесном пространстве. Они идеально подходят для домов с небольшими спальнями. Кроме того, аксессуары для кроватей размера «queen-size» (одеяла, каркасы кроватей, наматрасники и т. д.) более доступны в различных цветах, тканях и принтах, чем аксессуары для кроватей размера «king-size».
Что такое кровать размера «king-size»
Кровать размера «king-size» — это очень большая кровать, обычно это самый большой размер, доступный для кроватей. Его размеры составляют примерно 76 дюймов (6 футов 4 дюйма) в ширину и 80 дюймов (6 футов 8 дюймов) в длину.
Следовательно, его площадь поверхности составляет 6080 квадратных дюймов. Он такого же размера, как два матраса Twin XL. Он обеспечивает 38 дюймов спального места на человека, если его делит пара.
Кровати размера «king-size» идеально подходят для пар, которым нужно больше места, или для пар, которые спят с детьми или домашними животными. Их можно использовать в просторных спальнях, но они могут быть слишком большими для небольших спален. Известно, что большие кровати помогают при болях в суставах и мышцах, а также при таких проблемах, как бессонница и беспокойство. Поэтому сон на большой кровати может помочь решить эти проблемы.
Разница между кроватью размера «queen-size» и кроватью размера «king-size»
Определение
Кровать размера «queen-size» меньше, чем кровать размера «king-size», но больше, чем двуспальная кровать, а кровать размера «king-size» — это самая большая из доступных кроватей.
Размеры
Кровать размера «queen-size» обычно имеет ширину 60 дюймов (5 футов) и длину 80 дюймов (6 футов 8 дюймов), тогда как ширина кровати размера «king-size» составляет 76 дюймов (6 футов 4 дюйма).
и длиной 80 дюймов (6 футов 8 дюймов).
Площадь поверхности
Площадь поверхности кровати размера «queen-size» составляет 4800 квадратных дюймов, а площадь поверхности кровати размера «king-size» — 6080 квадратных дюймов.
Идеально подходит для
Кровати размера «queen-size» идеально подходят для спящих в одиночку или пар, а кровати размера «king-size» идеально подходят для пар с детьми или домашними животными.
Пространство
В то время как кровати размера «queen-size» могут поместиться в небольших помещениях, кровати размера «king-size» больше подходят для просторных главных спален.
Транспортировка
Кровати размера «queen-size» легче перемещать и транспортировать, чем кровати размера «king-size».
Поиск принадлежностей
Аксессуары для кроватей размера «queen-size» более доступны благодаря большому выбору, чем аксессуары для кроватей размера «king-size».
Стоимость
Кровати размера «queen-size» дешевле, чем кровати размера «king-size».
Заключение
Основное различие между кроватью размера «queen-size» и кроватью размера «king-size» заключается в том, что кровать размера «queen-size» меньше, чем кровать размера «king-size». Кровать размера «queen-size» обычно имеет ширину 60 дюймов и длину 80 дюймов, тогда как кровать размера «king-size» имеет ширину 76 дюймов и длину 80 дюймов.
Ссылка:
1. «Что такое мебель для большой двуспальной кровати? Преимущества большой двуспальной кровати.» Wakefit, 29 сентября 2021 г.
2. Карман, Малик. «Размеры двуспальной кровати». Everynight, 7 мая 2022 г.
Изображение предоставлено:
1. «В помещении-дом-спальня» (CC0) через
2. «Кровать королевского размера» (CC0) через Raw Pixel
Об авторе: Хаса
Хаса имеет степень бакалавра в области английского, французского языков и переводоведения. В настоящее время она учится на степень магистра английского языка. В сферу ее интересов входят литература, язык, лингвистика, а также еда.
Просмотреть все сообщения
Вам также могут понравиться эти
Что такое кровать | Сколько футов в ширину кровать размера «queen-size» | Стандартные размеры кроватей
Важный момент
Что такое кровать?
Мебель, которая используется как место для отдыха, сна и расслабления, называется кроватью. В настоящее время на каркасе кровати в большинстве современных кроватей используется мягкий матрас с подкладкой. На кровати мягкий матрац опирается на деревянные рейки, твердое основание, а в соответствии с гражданскими знаниями либо пружинное основание.
Во многих кроватях во внутреннем пружинном основании имеется пружинный блок, который обеспечивает подвеску и дополнительную опору для матраса большого размера, содержащего пружину и дерево.
На рынке есть много типов кроватей в зависимости от размера и ассортимента, то есть для одного человека или взрослого есть небольшая кровать, с другой стороны, для двух или трех человек большие кровати размера «king-size» и «queen-size».
доступны на рынке. Каркас большинства корпусных кроватей имеет односпальный матрас.
На рынке есть другие типы кроватей, такие как диван-кровать, после использования которого мы можем сложить как диван, другой тип, который складывается в стену, называется кроватью Мерфи, а другой тип представляет собой двухъярусную кровать, в которой на двух ярусах предусмотрено два матраса, так называемая двухъярусная кровать. В этой кровати на верхнем ярусе добавлена лестница для доступа к ней.
Также прочтите: 10 лучших цементных компаний в Индии в 2022 году
Стандартные размеры кроватей
Стандартный размер кровати зависит от стандартного размера матраса, в зависимости от страны, которая варьируется. Стандартный размер кровати варьируется в зависимости от степени орнаментации и размера каркаса кровати. В размере кровати большинство стран имеют свой размер, и он значительно варьируется по всему миру.
Из-за количества набивки, производственных допусков и типа опоры есть небольшая разница в размерах при одинаковом номинальном размере двух матрасов.
В Индии стандартный размер кровати составляет 7 на 5 футов.
Также прочтите: 10 ведущих брендов резервуаров для воды в Индии
Размеры и размеры матрасов
Размер и размер матраса зависят от типов матрасов, которые ниже-
1. Размер и размер одинарного матраса
В большинстве стран размер одинарного матраса составляет 10 футов на 7 футов, а размер — 36 дюймов. Этот тип матраса подходит для подростков и детей, а также не подходит для взрослых, потому что они не получают достаточно места для их движения.
2. Размер и размеры матраса Диван
Матрас Диван – это идеальный матрас для взрослых, которые хотят иметь удобное небольшое пространство. Размер матраса дивана варьируется от страны к стране, но стандартный размер матраса дивана составляет 3 фута, а размер также составляет 36 дюймов.
3. Размер и размеры матраса размера «queen-size»
Матрас размера «queen-size» идеально подходит для пар или трех человек, он подходит для всех, таких как дети, гости и т.
д. Размер матраса размера «queen-size» варьируется от страны к стране, но Стандартный размер и размер матраца королевы составляют 5 футов, а размер в дюймах — от 60 до 70.0005
Вышеупомянутый матрас королевского размера немного больше и обеспечивает больший комфорт спящему человеку по сравнению с другими кроватями. Размер и размеры этой кровати составляют 6 футов и 72 дюйма, но на рынке доступен другой вариант, размер XL, который больше ее.
Каковы размеры двуспальной кровати?
Размер кровати размера «queen-size» составляет 60 дюймов в ширину и 80 дюймов в длину, а также в сантиметрах от 152,5 см до 203 см, а в футах — 5. Это должно варьироваться в зависимости от страны, и разные страны имеют разные размеры. указанный выше размер является стандартным размером, который используется в большинстве стран.
Какие факторы следует учитывать при выборе размера матраса?
Существует множество факторов, которые следует учитывать при выборе размера матраса.
Ниже перечислены факторы: потому что у каждого человека есть свое собственное спальное место. Но спальный матрас королевского размера также обеспечивает максимальное пространство для вас, теперь вам решать, какой тип матраса вам подходит.
2. Доступное пространство в комнате
Другим фактом, который напрямую влияет на выбор размера матраса, является доступное пространство в комнате, поэтому, когда мы хотим выбрать матрас, следует помнить об этом факторе. Из-за этого общеизвестно, что в комнате большого размера мы можем разместить большую кровать.
3. Стиль сна
У человека индивидуальный стиль сна, поэтому мы должны помнить, что если нам приходится много вертеться, крутиться и двигаться, то мы должны учитывать большой размер кровати.
4. Перемещение кровати
Другим фактором, который также влияет на выбор размера матраса, является перемещение кровати. Если у вас есть привычка время от времени переставлять свою комнату, то вам придется передвигать и свою кровать, так что если у вас есть такая привычка, то для вас отлично подойдет кровать небольшого размера.
По сравнению с большой двуспальной кроватью, маленькую кровать легче передвигать с одного места на другое. Так что решать вам, какие типы кроватей вы хотите выбрать, в зависимости от факторов.
Также прочтите: Что такое тест конуса оседания | Принцип оползня | Типы осадки бетона
Часто задаваемые вопросы
Что такое кровать?
Предмет мебели, на котором человек спит или отдыхает. / Место для сна или отдыха оленей устроили в траве. /
Сон или время для сна она читает перед сном. / Кусок земли, подготовленный для выращивания растений.
Матрас Dream
Описание: Наволочка Dream Sleep представляет собой модель матраса с пружинным сердечником, изготовленную компанией brn. Наматрасник Dream Sleep представляет собой нефлип-матрас, обеспечивающий поддержку краев и комфортную набивку.
Кровать Cloud
Матрасы Cloud — это разновидность плюшевых матрасов, которые обеспечивают большую амортизацию и облегают ваше тело во время сна.
Людям с меньшим весом, которые предпочитают более мягкую поверхность для сна, скорее всего, понравится облачный матрас.
Японский каркас кровати
Каркас кровати с татами Каркас кровати с татами представляет собой кровать с татами, представляющими собой японские коврики/подушки, которые используются вместо матраца. Японцы привыкли спать на полу, поэтому они предпочитают более твердую и простую подушку, а не толстый матрас.
Лучшие каркасы кроватей
Что касается долговечности, каркасы кроватей из цельного дерева прочны и вряд ли сломаются под давлением или усилием.
Насколько широка кровать размера «queen-size» Какова ширина кровати размера «queen-size»?
На рынке кровать размера «queen-size» является самой большой кроватью после кровати размера «king-size». Обычная ширина кровати размера «queen-size» составляет 60 дюймов, а другое измерение в футах — 5, что обычно используется в большинстве стран.
Насколько велика кровать размера «queen-size»?
Кровать размера «queen-size» очень большая, имеет ширину 60% и длину до 80% по сравнению с другими кроватями, доступными на рынке.
Какой размер у кровати размера «queen-size»?
Размер кровати размера «queen-size» в футах составляет 5 футов в ширину или 6,67 футов в длину, а размер в дюймах составляет 60 дюймов в ширину и 80 дюймов в ширину, что обычно доступно на рынке.
Размер кровати размера «queen-size» в футах
Размер кровати размера «queen-size» в футах, доступных на рынке, составляет 6,67 фута в длину и 5 футов в ширину, это самый популярный размер на рынке.
Размер двуспальной кровати в см
Размер двуспальной кровати в см, которая является самой популярной и также доступной на рынке, составляет 152,40 см в ширину и 203,20 см в длину.
Сколько дюймов в ширине у кровати размера «queen-size»
Кровать размера «queen-size», обычно доступная на рынке, самая популярная и самая удобная в использовании, имеет ширину в дюймах: 60 дюймов или 70 дюймов.
Также читайте: Раствор против цемента | Тип цемента | Тип строительного раствора
Сколько футов в ширину кровать размера «queen-size»?
Стандартные размеры кровати размера «queen-size»: 60 дюймов на 80 дюймов или 5 футов на 6 футов 8 дюймов.
Насколько широка двуспальная кровать?
Матрасы Queen имеют размеры 60 дюймов в ширину и 80 дюймов в длину. Это самые популярные размеры матрасов на рынке.
Насколько широка кровать размера «queen-size» по сравнению с кроватью размера «king-size»?
Стандартный король имеет ширину 76 дюймов и длину 80 дюймов, а королева имеет ширину 60 дюймов и длину 80 дюймов . Это означает, что кровати размера «king-size» имеют ту же длину, что и кровати размера «queen-size», но на 16 дюймов шире, что делает площадь поверхности кровати размера «king-size» на 1280 квадратных дюймов больше, чем у кровати размера «queen-size».
Насколько широк двуспальный матрас в дюймах?
Двуспальная кровать подходит для двоих. Полные матрасы имеют ширину 54 дюйма и дают паре, делящей матрас, 27 дюймов пространства каждый. Для сравнения, матрас двуспального размера имеет ширину 38 дюймов.
Насколько широк двуспальный матрас?
Иногда его называют двойным, полный на 16 дюймов шире, чем двойной, шириной 53 дюйма и длиной 75 дюймов.
Насколько широка кровать размера «queen-size» в футах?
Размеры стандартной двуспальной кровати: 5 футов на 6 футов 8 дюймов.
Какой ширины матрас размера «queen-size»?
Матрасы Queen имеют размеры 60 дюймов в ширину и 80 дюймов в длину и являются самым популярным размером матрасов на рынке. В этом есть свои преимущества: легко найти каркасы кроватей, простыни, одеяла и наматрасники, подходящие для матраца размера «queen-size».
Все ли матрасы размера «queen-size» одинаковой ширины?
Доступны три нестандартных размера кроватей размера «queen-size» . Олимпийские или расширенные кровати размера «queen-size» имеют ширину 66 дюймов и длину 80 дюймов, что на 6 дюймов шире, чем у стандартных кроватей размера «queen-size». Калифорнийские двуспальные кровати имеют размеры 60 дюймов в ширину и 84 дюйма в длину.
Размеры кровати размера «queen-size»
Размеры кровати размера «queen-size» 5 футов на 6 футов длина и являются самым популярным размером матраса на рынке.
В этом есть свои преимущества: легко найти каркасы кроватей, простыни, одеяла и наматрасники, подходящие для матраца размера «queen-size».
Размеры матраса Queen
Размеры матраса Queen являются стандартными в США и обычно имеют размеры 60 дюймов в ширину и 80 дюймов в длину.
Насколько широка кровать размера «queen-size»?
Матрасы Queen имеют размеры 60 дюймов в ширину и 80 дюймов в длину. Это самые популярные размеры матрасов на рынке.
Размеры матраса размера «queen-size»
Размер стандартного матраса «king-size» составляет 76 дюймов в ширину и 80 дюймов в длину, а размера «queen-size» — 60 дюймов в ширину и 80 дюймов в длину. Это означает, что кровати размера «king-size» имеют ту же длину, что и кровати размера «queen-size», но на 16 дюймов шире, что делает площадь поверхности кровати размера «king-size» на 1280 квадратных дюймов больше, чем у кровати размера «queen-size».
Кровать другого размера
| Тип кровати | Ширина x Длина | кв. Дюймы | кв. Ножки |
| Полный | 53″ x 74,5″ | 3948,5 | 27,4 |
| Королева | 60″ x 79,5″ | 4770 | 33,1 |
| Король | 76″ x 79,5″ | 6042 | 42 |
| Кэл Кинг | 72″ x 83,5″ | 6012 | 41,7 |
| Двойной | 38″ x 74,5″ | 2831 | 19,7 |
| Двойной XL | 38″ x 79,5″ | 3021 | 21 |
Руководство по размерам и размерам матраца размера «queen-size»
Если бы среди кроватей проводился конкурс популярности, победитель был бы очевиден: кровать размера «queen-size». Это наиболее часто покупаемый размер матраса по нескольким причинам.
Подходит для спален разных форм и размеров. Это отличный выбор для гостевых комнат, поскольку в нем могут разместиться двое взрослых и в комнате остается достаточно места для дополнительной мебели, например скамейки или стула.
И это просторнее, чем две односпальные или двуспальные кровати.
Но насколько велик матрас размера «queen-size» и подойдет ли он для вашей спальни?
Здесь мы собрали все, что вам нужно знать о размерах матраса размера «queen-size», плюсах и минусах выбора этого размера матраса и о том, как определить, подходит ли он вам.
Мы также объясняем, как размеры кровати размера «queen-size» сравниваются с матрасами других размеров, и отвечаем на наиболее часто задаваемые вопросы о матрасах размера «queen-size».
Размеры кровати размера «queen-size»
Матрас размера «queen-size» — самый популярный вариант матраса. Стандартный матрас размера «queen-size» имеет размеры 60 дюймов в ширину и 80 дюймов в длину. Этот размер идеально подходит для пар с небольшими спальными местами или для одиноких спящих, которые любят немного больше места.
Также следует учитывать некоторые нестандартные размеры матрасов размера «queen-size». Вот те, которые вы можете найти при поиске матраса:
- Олимпийские королевы
- Калифорнийские королевы
- Разделенные королевы
Каждая версия кровати размера «queen-size» имеет свои преимущества.
Чтобы выяснить, что лучше всего подходит для вашего образа жизни, вам нужно принять во внимание несколько вещей, таких как размер вашей спальни, разделяете ли вы кровать с кем-либо или нет, и как вы предпочитаете спать.
Сравнение размеров матрасов размера «queen-size»
Давайте более подробно рассмотрим преимущества каждого типа матрасов размера «queen-size» и сравним их с некоторыми другими популярными размерами матрасов на рынке.
Решение о том, подходит ли вам матрас размера «queen-size»
Если вы продумываете размеры кровати размера «queen-size», чтобы определить, подходит ли вам этот размер, вам придется взвесить все преимущества и недостатки.
Чтобы принять правильное решение и решить, какой размер кровати лучше всего подходит для вашего образа жизни, вам следует помнить о нескольких вещах. Вот наши основные соображения:
- Кто будет спать в кровати?
- Желаемый уровень комфорта
- Размер вашей комнаты
- Размер вашего тела
- Ваш бюджет
- Температура
- Изоляция движения
Кто будет спать в кровати?
Универсальная кровать размера «queen-size» идеально подходит как для пар, так и для тех, кто спит в одиночку.
Каждый спящий получает около 30 дюймов пространства для себя.
Это дает парам достаточно места для передвижения. Одинокие взрослые обнаружат, что на кровати размера «queen-size» более чем достаточно места для комфортного сна в течение всей ночи, даже для беспокойных спящих.
Если вы комбинированный спящий человек, который меняет положение в течение ночи, у вас должно быть достаточно места на кровати размера «queen-size», чтобы вы не беспокоили своего партнера. Однако у вас не будет столько места для передвижения, как на большой двуспальной кровати.
Желаемый уровень комфорта
Всегда важно учитывать предпочитаемое положение для сна при покупке матраца, кровати размера «queen-size» или чего-либо другого. Более мягкий матрас идеально подходит для тех, кто спит на боку, матрас средней жесткости хорош для тех, кто спит на спине, а более жесткий матрас лучше всего подходит для тех, кто спит на животе.
Если вы будете делить кровать размера «queen-size» с партнером, подумайте о матрасе средней жесткости, который является хорошим компромиссом для пар, которые не могут договориться об уровне жесткости.
Если ваши предпочтения во сне полностью отличаются от предпочтений вашего партнера, вы всегда можете попробовать раздельный матрас размера «queen-size».
Размер вашей комнаты
В идеале, вы хотите, чтобы ваша спальня была больше, если вы покупаете матрас размера «queen-size» — это делает его хорошим вариантом для основных спален. Минимальные размеры спальни должны быть 10 на 10 футов. Спальня размером от 10 х 10 футов до 10 х 14 футов как раз подходит для кровати размера «queen-size».
Если вы изо всех сил пытаетесь найти место на полу в своей спальне, вам может подойти матрас размера «queen-size». Дополнительное пространство, обеспечиваемое стандартной кроватью размера «queen-size», освободит место в небольшой комнате для дополнительной мебели или хранения вещей.
Размер вашего тела
Матрасы Queen обеспечивают достаточно места для полных людей и пар. (Узнайте о лучшем матрасе для полных людей.)
Кроме того, калифорнийский матрас размера «queen-size» может подойти для высоких людей или для тех, кто ищет немного дополнительного места для ног в изножье кровати.
Он предлагает 4 дюйма дополнительной длины по сравнению со стандартной королевой. Удлиненная длина делает его удобным для сна людям любого роста.
Ваш бюджет
Матрасы размера «queen-size» дешевле, чем кровати размера «king-size». Кровати размера «queen-size» обычно стоят примерно на 25% меньше, чем матрасы размера «king-size» того же стиля и марки. Однако покупка матраса большего размера, например, олимпийского или калифорнийского, увеличит цену.
Матрас с внутренними пружинами размера «queen-size» будет самым доступным типом матраса, поскольку он, как правило, дешевле, чем другие типы матрасов.
Температура
Если вы склонны спать в горячем состоянии на любом размере матраса, вы можете отказаться от пены с эффектом памяти, так как она может задерживать тепло. Пружинные и латексные матрасы спят лучше всего, что способствует лучшему ночному сну.
Пары, которым становится жарко по ночам, могут обнаружить, что площадь поверхности матраса королевского размера больше соответствует их потребностям.
Изоляция от движения
Если вы или ваш партнер ерзаете всю ночь, матрас из пены с эффектом памяти лучше всего снижает изоляцию от движения. На матрасе с внутренними пружинами вы можете чувствовать, как двигаетесь вы или ваш партнер, что может мешать сну.
Если вам нравится ощущение пружинного матраса, но вы спите с партнером, рассмотрите гибридный матрас (например, латексный гибридный матрас) для уменьшения передачи движения.
Матрасы размера «queen-size» и матрасы других размеров
Матрасы размера «queen-size» отличаются от матрасов других размеров. Перед покупкой высококачественного матраса важно выяснить, какой размер лучше всего подойдет для вашего жилого помещения и образа жизни.
Queen и Twin XL
Матрасы Twin Size чаще всего используются в двухъярусных кроватях, общих комнатах или детских комнатах. Они имеют ширину 38 дюймов и длину 75 дюймов, что делает их одними из самых маленьких матрасов на рынке.
Матрасы Twin XL похожи на стандартные матрасы Twin, но немного длиннее.
Они имеют ширину 38 дюймов и длину 80 дюймов, что дает дополнительные 5 дюймов пространства для ног. В то время как две односпальные кровати XL отлично подходят для высоких людей, в них по-прежнему недостаточно места для среднего одинокого молодого человека.
Кровать размера «queen-size» обеспечивает дополнительное спальное место как для одиноких, так и для пар. Если вы высокий человек и ищете кровать, калифорнийская королева может быть лучшим вариантом для вас.
Queen или полный
Полноразмерные матрасы, также известные как двуспальные, имеют ширину 54 дюйма и длину 75 дюймов. Хотя они больше, чем близнецы, они все же намного меньше, чем королева. Полноразмерные кровати могут быть подходящим вариантом для односпального человека в очень маленькой спальне, но кровать размера «queen-size» будет чувствовать себя гораздо менее тесной.
Королева против короля
Матрасы королевского размера являются одними из самых больших на рынке. Они обеспечивают достаточно места для комфортного сна пар и дают немного дополнительного места для любых детей или домашних животных, которые могут захотеть запрыгнуть.
Стандартный матрас размера «king-size» имеет ширину 76 дюймов и длину 80 дюймов.
Однако ваша спальня должна быть довольно большой, чтобы в нее поместилась большая кровать. Если вам нужен матрас большего размера, например, стандартный король, обычно рекомендуется, чтобы размер вашей спальни составлял не менее 14 х 19 футов.
Матрасы размера «queen-size» занимают меньше места и идеально подходят как для основной, так и для гостевой спальни. (Узнайте больше о различиях между кроватями Queen и King.)
Queen и California King
Матрасы California King идеально подходят для высоких людей, которым нужен новый матрас большего размера. Они обеспечивают более чем достаточно места для вас, вашего партнера и всей семьи, имея ширину 72 дюйма и длину 84 дюйма.
Хотя площадь кровати размера «king-size» в Калифорнии такая же, как и у стандартной кровати размера «king-size», она обеспечивает дополнительный уровень длины и места для ног. Тем не менее, матрасы размера «queen-size» должны подойти тем, кому не нужно дополнительное пространство для ног в изножье кровати.
Часто задаваемые вопросы о матрасе размера «queen-size»
Часто возникают вопросы, связанные с размерами кровати размера «queen-size». Ответы на эти вопросы, несомненно, помогут вам в процессе покупки матраса.
Какая разница между королевой Калифорнии и олимпийской королевой?
Калифорнийские кровати размера «queen-size» имеют размеры 60 x 84 дюйма, что делает их на 4 дюйма длиннее стандартной кровати размера «queen-size». Олимпийские королевы имеют размеры 66 x 80 дюймов, что делает их на 6 дюймов шире, чем стандартная королева.
В чем разница между кроватью размера «queen-size» и кроватью размера «king-size»?
Кровать размера «queen-size» имеет размеры 60 x 80 дюймов, а кровать размера «king-size» — 76 x 80 дюймов. Кровати размера «queen-size» на 16 дюймов уже, чем кровати размера «king-size».
В чем разница между кроватью размера «queen-size» и двуспальной кроватью?
Кровать размера «queen-size» 60 x 80 дюймов. Между тем, двуспальные кровати (также известные как двуспальные кровати) имеют размер 54 x 75 дюймов.
Кровати размера «queen-size» на 6 дюймов шире и на 5 дюймов длиннее, чем двуспальные кровати.
Комната какого размера лучше всего подходит для кровати размера «queen-size»?
Вам нужно поставить кровать размера «queen-size» в спальню размером не менее 10 x 10 футов. Где-то от 10 х 10 футов до 10 х 14 футов должны хорошо работать для кровати размера «queen-size».
Все простыни размера «queen-size» подходят ко всем матрасам размера «queen-size»?
Стандартные простыни размера «queen-size» не подходят для нестандартных матрасов размера «queen-size», таких как «Олимпик», «Калифорния» и «сплит-квин». В этих случаях вам нужно искать простыни, специально изготовленные для этих размеров матрасов.
Можно ли поставить матрас размера «queen-size» на полноразмерный пружинный блок?
Матрас размера «queen-size» шире и длиннее стандартного полноразмерного пружинного блока, поэтому не рекомендуется соединять их вместе, так как свес может означать, что ваш матрас не поддерживается должным образом.
Лучше всего приобрести каркас кровати того же размера, что и матрас. Это необходимо не только для вашего комфорта, но и для того, чтобы матрас прослужил как можно дольше.
Достаточно ли большая кровать размера «queen-size» для двух человек?
Кровать размера «queen-size» обеспечивает достаточно места для двух человек и действительно является самым популярным матрасом для пар. В кровати размера «queen-size» каждый человек получает 30 дюймов пространства.
Приобретение удобного матраса размера «queen-size»
После того, как вы изучили все варианты на рынке, следующим шагом будет выбор матраса, подходящего для вас и вашего образа жизни. Saatva предлагает широкий выбор высококачественных удобных матрасов различных размеров, материалов и уровней жесткости, чтобы удовлетворить ваши личные предпочтения. Попробуйте новый матрас Saatva размера «queen-size» на 180 ночей, чтобы понять, подходит ли он вам.
Ознакомьтесь с другими размерами матрасов
Решили, что матрас размера «queen-size» вам не подходит? Узнайте больше о других распространенных размерах матрасов на рынке, чтобы найти идеальный вариант.
- Таблица размеров матраса
- Размеры детской кроватки
- Размеры двуспальной кровати
- Размеры полной кровати
- Размеры большой двуспальной кровати
Полная или двуспальная кровать | Кровать Ghost®
Пытаетесь выбрать между полноразмерным матрасом и матрасом размера «queen-size»? Хотя они очень похожи по размеру, их довольно много. различия, которые следует учитывать при выборе.
Поскольку матрас — это такая большая инвестиция, вы захотите сделать свой изучите заранее, чтобы вы знали, что заказываете идеальный размер для твои нужды. В этом руководстве мы рассмотрим, что нужно иметь в виду и как чтобы принять решение.
Обзор: полные и матрацы размера «queen-size»
Полный (или двойной) матрас имеет размеры 54 на 75 дюймов.
дюймов, что делает его хорошим вариантом для подростков и взрослых, которые спят
один.
Матрас размера «queen-size» имеет размеры 60 на 80 дюймов. Этот Большой размер делает кровать размера «queen-size» идеальной для пар или одиноких людей, которым нравится растянуться во время сна в одиночестве.
Сравнительная таблица: полный матрас и матрас размера «queen-size»
| Полный матрас | Королевский матрас | |
|---|---|---|
| Ширина | 54 дюйма / 137 см | 54 дюйма / 137 см |
| Длина | 75 дюймов / 191 см | 80 дюймов / 203 см |
| Персональная ширина | 27 дюймов / 68,6 см | 30 дюймов / 76 см |
| Стоимость | Дешевле, чем королева | Дороже полного |
| Идеально подходит для | Детские комнаты, гостевые комнаты и маленькая мастерская
спальни.![]() | Главные спальни и большие комнаты для гостей. |
| Разница размеров | Полный на 5 дюймов короче, чем королева и на 6 дюймов уже. | Королева на 5 дюймов длиннее полной и на 6 дюймов Шире. |
| Резюме | Полный размер часто называют двуспальной кроватью. В США и Канада, это кровать одинакового размера. В Европе, двуспальные кровати различаются по размеру. | Королева — великая дама, которой не нужно другое имя. |
Примечание. Хотите сравнить эти размеры с близнецом или королем? Проверьте наши
полное руководство по
размеры матраса.
Различия между матрасами Full и Queen
Самая большая разница между кроватью размера «queen-size» и полным матрасом состоит в том, Конечно, размер и габариты. Полный (или «двуспальный») матрас стоит 75 дюйма в длину и 54 дюйма в ширину, что делает его хорошим вариантом для подростков и взрослые, которые спят одни. Матрас размера «queen-size» на 5 дюймов длиннее и На 6 дюймов шире, чем полный матрас, при общей длине 80 дюймов. и шириной 60 дюймов. Большой размер делает его идеальным вариантом для пары.
С точки зрения популярности, размер королевы занимает первое место; а 2017 исследование показали, что почти половина взрослых американцев (47%) сообщили, что они спал на королевской кровати. Только 14% респондентов сказали, что спят на полноценную кровать.
Полный против королевы: размеры и комфорт
Имея в виду размеры, перечисленные выше, важно подумать
о том, как матрац размера «queen-size» или полноразмерный матрас будет способствовать вашему
комфорт в целом.
Полный матрац, например, является замечательным размером и выбором для гостевая или детская комната в доме. Полноценная кровать такая же длина как близнец но немного шире, что позволяет родителю удобно лежать вместе с ребенком, читающим сказку на ночь.
| Полный матрас | Королевский матрас | |
|---|---|---|
| Ширина | 54 дюйма / 137 см | 60 дюймов / 153 см |
| Длина | 75 дюймов / 191 см | 80 дюймов / 203 см |
| Персональная ширина | 27 дюймов / 68,6 см | 30 дюймов / 76 см |
| Вопросы комфорта | Идеально подходит для детей, комнат для гостей и одноместных спальных мест.![]() | Идеально подходит для пар, которые хотят немного больше личного пространство. |
Полный против королевы: сравнение стоимости
Поскольку он немного больше, матрас размера «queen-size» будет стоить немного дороже. чем полный матрас. Также важно учитывать аксессуары, которые вам понадобятся. Королевский размер простыни будет стоить больше, чем полный размер, например, как и фундамент или кадр, который вы выбираете. Вы также можете захотеть заполнить дополнительные подушки в дополнительном пространстве.
На приведенной ниже диаграмме вы можете увидеть примеры королевы и полные опции, включая матрасы и аксессуары:
| Полный матрас | Королевский матрас | |
|---|---|---|
| Классическая кровать GhostBed | 1350 долларов США $945 | 1425 долларов США $998 |
| GhostBed Flex | 2225 долларов США 1558 долларов США | 2425 долларов США 1698 долларов США |
| Листы призраков | 165 долларов 124 доллара | 185 долларов США 139 долларов |
| Основа GhostBed All-in-One™ | 399 долларов США 299 долларов США | 419 долларов США 314 долларов США |
Full vs.
Queen: требования к размеру комнатыКонечно, вы также захотите рассмотреть размер вашей комнаты, прежде чем покупка любой кровати.
Полноразмерные кровати хорошо подходят для небольших комнат и имеют больше возможность вписаться в план этажа. Они красиво смотрятся выступающими от центра стены, а также стороной к стене. С другой стороны, кровати размера «queen-size» лучше всего смотрятся, если изголовье прислонено к стене. стена.
Перед покупкой измерьте свою комнату и сделайте пол план. Обратите внимание на комоды, стулья и другую мебель, которая тоже в комнате.
Если вы поставите изголовье кровати к стене, вы также хотите учесть 2-3 фута пространства по бокам, так что у вас есть место для комфортного передвижения по нему. Вот как это выглядит:
| Размер матраса | Идеальный размер комнаты | |
|---|---|---|
| Полный матрас | 54 дюйма x 75 дюймов | от 9×10 до 10×12 |
| Королевский матрас | 60 x 80 дюймов | от 10×10 до 10×14 |
Full vs.
Queen FAQЕсли у вас остались вопросы, вы не одиноки! Ниже вы найдете ответы на самые частые вопросы наших экспертов по сну получить.
Можете ли вы положить матрац размера «queen-size» на полноразмерную раму?
Каркасы матрасов обычно на 2-3 дюйма шире, чем матрас. делает кровать размера «queen-size» слишком большой, чтобы поместиться поверх полноразмерной кровати Рамка. При использовании каркаса кровати неподходящего размера вы рискуете матрас смещается, когда вы ложитесь и встаете с кровати. Кроме того, это может быть довольно неудобно, если вы любите спать по краям, так как вы не будет иметь правильной поддержки под вами.
Являются ли полные и королевские листы одинаковыми?
Размеры кроватей стандартизированы, но размеры простыней могут варьироваться.
в зависимости от производителя.
Полноценная кровать имеет ширину 54 дюйма на 75.
дюймы. С другой стороны, матрасы размера «queen-size» имеют ширину 60 дюймов.
80 дюймов. Имея это в виду, становится ясно, что покупка вашего
простыни правильного размера необходимы, если вы хотите, чтобы ваши простыни
чтобы было удобно и удобно. Мы рекомендуем нашу
Листы призраков
(в нужном размере) для вашего матраса.
Подойдет ли полный матрас для рамы размера «queen-size»?
Если вы попытаетесь уместить полноразмерный матрас на раме королевы, вы закончите с 3 дюймами каркаса кровати слева с каждой стороны. Это может работать в в случае каркаса кровати на платформе, но это не предлагается. Мы также рекомендуем сочетать матрас с рамой соответствующего размера или же Фонд.
Может ли пара спать на полном матрасе?
Пары, делящие полную кровать, могут чувствовать себя довольно тесно, так как спящие
площадь на человека составляет всего 27 дюймов в поперечнике.

Это дает двум спящим всего по 3 дюйма преимущества. В некоторых случаях это не очень удобно.
К габаритам спящего нужно добавить лишних 30 см, которые будут выступать в качестве запаса. К полученному значению следует также прибавлять расстояние, которое занимают подушки. Важно учитывать то, как именно вы располагаете голову на подложке.
Зачастую это спинки, которые играют роль опорных ножек. Следует понимать, что металл очень хорошо сочетается с деревом. Поэтому многие кровати формируют именно из этих веществ.

Это упрощает для покупателей задачу подобрать такой матрас, какой нужно.


Простыни и одеяла легко найти по доступной цене.
Это позволяет совмещать отдых и уют.

д. ), важно полученные значения рассчитывать на двух человек. При этом следует учитывать, что минимальное расстояние между спящими может приводить к дискомфорту. Поэтому лучше покупайте максимально широкие кровати.
В такой комнате можно с легкостью поместить ее в соответствии со стилистическими решениями. Подобные конструкции очень часто комбинируют с гардеробными. Такой подход позволяет создать максимальный комфорт в одной комнате.
;
Дюймы 