Какой оконный профиль выбрать – 60 или 70 мм
Потребители часто задаются вопросом – какой оконный профиль выбрать для будущего окна 60 или 70 мм. С данным вопросом разбирался портал ОКНА МЕДИА.
Оконный профиль – ширина имеет значение
Самыми распространенными ширинами оконного профиля являются 60 мм и 70 мм системы. К 60-м сериям относятся системы от 58 до 62 мм, к 70-м системам – от 70 до 76 мм.
В России системы 60 мм пользуются большей популярностью из-за их более низкой стоимости. В Европе наиболее распространёнными ширинами являются 70 мм. Почему европейцы предпочитают покупать более широкие системы, проживая в более теплом климате?
Более широкий оконный профиль обладает повышенными показателями по теплосбережению и шумоизоляции, но это еще не все. Широкий 70 мм профиль создает больше возможностей для безопасной и комфортной жизни будущего владельца.
Фото: чем шире оконный профиль – тем он «теплее» (слева – трехкамерный профиль 58 мм, справа – пятикамерный профиль 70 мм)Пластиковый профиль шириной 70 мм «теплее» 60 мм приблизительно на 20%.
Основным показателем, определяющим уровень сохранения тепла, является приведенное сопротивление теплопередаче (Rо, м²∙оС/Вт). Для профиля 60 мм с 3-4 камерами (со стальным армированием) оно может быть в диапазоне 0,68-0,70 м²∙оС/Вт, а для 70 мм с 5-6 камерами (со стальным армированием) – 0,79-0,82 м²∙оС/Вт.
Больше воздушных камер
Помимо классификации по ширине, существуют отличия по количеству воздушных камер, формируемых вертикальными или наклонными внутренними перегородками систем. Например, трехкамерный профиль, пятикамерный и т. д. Чем больше таких камер, тем выше теплотехнические характеристики. Количество камер должно соответствовать ширине профиля: 60 мм должны иметь 3-4 камеры, а 70 мм – 4-6 камер. Это оптимальное соотношение для эффективной теплоизоляции.
Оконный профиль шириной 60 мм с 5-ю камерами – не несет дополнительной пользы окну, а по уровню теплосбережения соответствует 3-4 камерам.
Стеклопакет – теплее и тише
В 60 мм профиль обычно можно установить стеклопакет с максимальной шириной 32 мм, а в 70 мм – шириной 40 мм.
Ведущий российский производитель ПВХ-профиля ЭксПроф, выпускает профильные системы, позволяющие в профиль 58 мм устанавливать стеклопакет большей ширины — до 36 мм, а в 70 мм – до 44 мм.
Фото: EXPROF Experta позволяет установить стеклопакет толщиной 44 мм*Чем шире стеклопакет (при условии одинаковой комплектации окна), тем «теплее» окно. В более широкий пластиковый профиль можно установить стеклопакет с лучшими звукоизоляционными свойствами
Оконный профиль для жилых помещений
Для жилых помещений с умеренно-континентальным и резко-континентальным климатом целесообразно применять системы 70 мм, позволяющие вместе с «правильно» подобранным стеклопакетом получить высокие теплотехнические характеристики окна.
Пластиковый профиль для нежилых помещений
В помещениях, не требующих высоких показателей по теплосбережению (подсобные помещения, садовые постройки и т. д.) можно обойтись системами шириной 60 мм в любом климате.
Для жилых помещений в южных регионах также достаточно использовать 60 мм, в том случае, если нет необходимости в дополнительных функциях по безопасности или звукоизоляции.
При выборе между профилем 70 мм и 60 мм с одинаковым числом камер предпочтение стоит отдавать системам большей ширины.
Качество имеет значение при выборе профиля
Важным моментом при выборе пластикового профиля, помимо заявленных характеристик, является качество самого продукта. Производство профиля является сложным технологическим процессом, требующим организации постоянного контроля производства и проверки готового продукта. Компания ЭксПроф* – крупнейший российский производитель профильных систем для окон, выпускает целый спектр профильных систем типа А с различной монтажной шириной. Тип А является наивысшим по толщине стенок профиля согласно ГОСТ.
Фото: профиль класса «А» прочнее профиля класса «Б»Толщина стенок влияет на прочность профиля и сварки в углах оконной конструкции.
Все профили exprof по климатическим условиям эксплуатации выпускаются в классе I (универсальный), то есть пригодны для применения в любом климате от субтропиков до Заполярья.
Параметр профиля | Practica | Experta | Suprema |
Монтажная ширина, мм | 58 | 70 | 70 |
Количество камер | 3 | 6 | 5 |
Сопротивление теплопередаче (с армированием), (м²∙оС/Вт) | 0,70 | 0,82 | 0,81 |
Тип по толщине лицевых стенок | А | А | А |
Максимальная толщина стеклопакета, мм | 36 | 44 | 42 |
Класс по климатическим условиям | I(У) | I(У) | I(У) |
Долговечность, лет | 60 | 60 | 60 |
*В каждой серии существует система Aero с рамой 101 мм («дышащее» окно).
Фото: профильные системы Exprof Practica, Experta, Suprema*Exprof Experta 70 мм – предназначен для многоквартирных домов, Exprof Suprema – для загородных коттеджей и элитной недвижимости. Их теплотехнические характеристики (Rо) оптимальны для жилых помещений с умеренно-континентальным и резко-континентальным климатом. Exprof Practica 58 мм – предназначен для применения в общественных зданиях и жилой недвижимости в южных регионах РФ.
При выборе профиля по монтажной ширине необходимо учитывать, в каком регионе будет находиться окно и в каком помещении. Для жилых помещений на большей части территории России профили с шириной 70 мм являются оптимальным решением.
*Статья содержит контекстную и визуальную рекламу
Как выбрать подходящий оконный профиль. Какой профиль для пластиковых окон лучше — обзор параметров и производителей
Содержание
- Из чего состоит пластиковое окно
- Зачем нужны воздушные камеры в профиле
- Что такое оконный профиль и какой его роль в окне?
- Какой оконный профиль лучше выбрать – на чем экономят производители
- Правильный подход к выбору профиля
- Рекомендации к приобретению пластикового окна
- Оконный профиль – ширина имеет значение
- 1.
Трехкамерный профиль - 2. Четырехкамерный профиль
- 3. Пятикамерный профиль
- 4. Шести- и семикамерный профиль
- Чем 3-х камерный отличается от 5-ти камерного и какой выбрать?
- Преимущества пластикового окна с пятью камерами
- Особенности
- Плюсы и минусы
- Технические характеристики
- Стеклопакеты для пятикамерного окна
- Правильный подход к выбору профиля
- Рекомендации к приобретению пластикового окна
- Что нужно учесть при выборе ПВХ профиля
- Класс профиля
- Ширина профиля и количество воздушных камер
- Толщина внешних и наружных стенок
- Воздухо- и водонепроницаемость
- Армирование
- Звукоизоляция
- Максимальная ширина стеклопакета
- Сопротивление ветровой нагрузке
- Светопропускная способность
- Однородность профиля
- Экологичность ПВХ
- Количество контуров герметичности
- Как выбрать подходящий пластиковый профиль, если нужны теплые окна
- Какой профиль подойдет, если нужны цветные окна
- Какой профиль лучше, если нужны большие окна
- Что выбрать, если нужны безопасные окна
- Как грамотно выбрать профиль для пластиковых окон?
- Галерея
Из чего состоит пластиковое окно
Конструкция подобных систем включает в себя следующие элементы:
- профиль;
- стеклопакет;
- фурнитура.

Рассмотрим каждый из них подробнее:
Профиль. Состоит из стальных составляющих и придает прочность окну. В зависимости от модели насчитывает одну или несколько камер (от 1 до 6). Сверху профиль покрывается слоем поливинилхлорида (ПВХ), в простонародье именуемым пластиком. Соединенные по периметру части профиля образуют оконную раму, в которую помещается стеклопакет.
Стеклопакет. Занимает порядка 90% площади всей оконной конструкции. Имеет в своем составе несколько стекол, отстоящих друг от друга на определенном промежутке. Такой промежуток называют камерой стеклопакета. Всего таких камер, опять же, в зависимости от модели окна, может насчитываться от 1-ой до 3-х.
Фурнитура. Данный элемент конструкции включает в себя целый ряд механизмов, направленных на обеспечение открывания/закрывания створки пластикового окна. Звенья механизмов располагаются по торцам рамы, а управляются с помощью ручки.
Зачем нужны воздушные камеры в профиле
Воздух плохо проводит тепло и считается самым дешевым и легким изолятором для полимерных конструкций.
Сам по себе поливинилхлорид не особенно энергоэффективен.
Расположение камер в профиле REHAU Blitz и REHAU Delight
Воздушной камерой профиля считается продольное пространство, на сколько бы сегментов оно ни было разделено. В отдельных 5- и 6-камерных решениях REHAU площадь камеры больше, чем в конкурентных продуктах. Например, Geneo, который показывает максимальный среди доступных вариантов коэффициент сопротивления теплоотдаче 1,05, тогда как аналоги едва ли дотягивают до единицы. А именно этот показатель считается основным в деле определения энергоэффективности окна.
Что такое оконный профиль и какой его роль в окне?
Для начала рассмотрим, что такое оконный профиль и какую роль он играет в окне. Оконный профиль – это пластиковая рама и створка окна, в которую устанавливается стальное армирование, стеклопакет, фурнитура и уплотнение. Основная задача профиля ПВХ – придание формы и сохранение прочного каркаса оконной конструкции. Чем шире профиль, тем большими опциями может обладать окно – лучшей звукоизоляцией, безопасностью и теплосбережением.
Какой оконный профиль лучше выбрать – на чем экономят производители
Основу качества любого продукта, неважно, будь-то хлеб или оконный профиль, составляют качественные ингредиенты и соблюдение технологии производства. Безусловно, в снижении себестоимости продукции заинтересован любой производитель. Но известные и зарекомендовавшие себя марки не могут пойти на удешевление рецептуры за счет снижения качества.
Лаборатории крупных производителей постоянно работают над совершенствованием смеси. Составить рецепт один раз и навсегда невозможно – появляются новые технологии, меняются поставщики сырья, ужесточаются требования к продукции. Любое изменение рецептуры у крупного производителя подтверждается всесторонней проверкой.
Фото: экструзия оконного профиляСнижение в составе дорогих компонентов – ПВХ-С, модификаторов ударопрочности, диоксида титана (катализатор цвета), ведет к снижению долговечности профиля. Бывает, что окно не переживает первую же морозную зиму или деформируется в жаркий день.
● Хрупкость или текучесть вместо прочности – экономия на рецептуре
Для снижения стоимости оконного профиля производители чаще всего увеличивают содержание гидрофобного мела с допустимых 8 частей до 30, а иногда даже до 40 в ущерб содержанию поливинилхлорида. Эта экономия приводит к повышенной хрупкости и появлению трещин на профиле или в местах сварки углов. Трещины на хрупком оконном профиле могут появиться как во время транспортировки, так и через 1-3 года после установки окна. Устранить брак можно только одним способом – заменой окна.
Фото: некачественный профиль может треснуть в любом местеЗамена в ПВХ-профиле дорогого поливинилхлорида на односложные кислоты делает профиль слишком пластичным. Разогреваясь на солнце он может «плавиться», безвозвратно теряя свою форму. Как результат – не открывающиеся, заклинившие створки, треснувшие стеклопакеты и необходимость замены окна.
Фото: форма некачественного профиля меняется при нагреве солнцем● Оконный профиль желтеет – экономия на добавках
Изменение первоначального цвета профиля спустя 1-2 года после установки окна, говорит о том, что производитель сэкономил на дорогостоящем диоксиде титана и стабилизаторах.
Эти добавки очень важны для сохранения белизны окна в течение всего срока эксплуатации. Они защищают оконный профиль от вредного воздействия ультрафиолета. Если их количество в смеси занижено, профиль быстро теряет белоснежность.
Повышенное содержание мела в смеси делает поверхность профиля не идеально гладкой, а пористой. Поры быстро забиваются пылью, и профиль приобретает неприятный серый оттенок. Как бы хозяйка ни старалась отмыть добела такие окна, даже с применением супер чистящих средств вернуть белизну не получится.
Фото: окна из некачественного профиля быстро пожелтеют● Потертости и царапины под защитной пленкой – некачественная водоподготовка
Поверхность эконом-профиля может изначально иметь неприглядный внешний вид –потертости и царапины, которые можно увидеть только после удаления защитной пленки, а значит, после монтажа окна.
К их появлению приводит еще одна статья экономии – качество воды для охлаждения профиля во время его изготовления. Для сохранения идеально гладкой поверхности требуется провести дорогостоящую водоподготовку: вода должна быть обеззаражена, очищена от примесей и иметь постоянную температуру.
От обычной водопроводной воды на производственной оснастке происходит отложение солей, которые будут царапать поверхность профиля, а от перепадов температуры поверхность может потерять глянец.
Фото: строительную грязь с некачественного профиля невозможно удалить● Продувание и запах — некачественный уплотнитель
Еще одна статья экономии производителей – уплотнение.
Некачественный уплотнитель не держится в пазу профиля, при низких температурах деформируется, теряет первоначальную форму и эластичность, в результате гарантировано продувание окна первой же зимой. Особенно проблематичны уплотнители из мягкого, некачественного ПВХ, неустойчивого к низким температурам. К тому же, некачественный уплотнитель может иметь крайне неприятный запах. Бороться с этими проблемами можно только заменой уплотнения, что не всегда возможно – установленные в ПВХ-профиль уплотнения нельзя заменить.
Фото: некачественный уплотнитель выпадает из пазов профиля
Правильный подход к выбору профиля
Пятикамерный профиль по всем параметрам лучше, чем трехкамерная конструкция, но такие окна не всегда актуальны для установки.
Все зависит от того, в каких погодных условиях будут эксплуатироваться окна. Если помещение расположено далеко от проезжей части или любых других источников сильного шума, при этом климатические условия вполне благоприятны для проживания, то подойдет трехкамерное окно с одно-, или двухкамерным стеклопакетом.
Если же помещение находится близко к проезжей части, а так же недалеко от поля, где может быть сильный ветер и пониженная температура, то лучшим вариантом будет установка пятикамерного окна с двух-, или трехкамерным стеклопакетом.
Рекомендации к приобретению пластикового окна
Металлический каркас должен быть квадратной формы, чтобы обеспечивать всестороннюю надежную опору для металлопластикового профиля. Некоторые недобросовестные производители в целях экономии материалов на изготовлении продукции устанавливают в своих изделиях П-образный каркас, который со временем искривляется и приходит в негодность.
Лучше всего потребовать у представителя компании, занимающейся установкой пластиковых окон, образец конструкции окна в разрезе. Если продавцу нечего скрывать – он покажет клиенту образец окна и расскажет о его характеристиках.
Не менее важно осмотреть фурнитуру, которой укомплектовано пятикамерное окно. От фурнитуры зависит не только переключение режимов использования оконного блока, но и открывание и закрывание оконных створок.
Так же рекомендовано осмотреть уплотнитель на оконной конструкции, ведь от его качества зависит теплоизоляция помещения. Если уплотнитель отслаивается или слишком жесткий, то эффективность пятикамерного профиля будет значительно снижена ,и в помещении постоянно будут присутствовать сквозняки.
Оконный профиль – ширина имеет значение
Самыми распространенными ширинами оконного профиля являются 60 мм и 70 мм системы. К 60-м сериям относятся системы от 58 до 62 мм, к 70-м системам – от 70 до 76 мм.
В России системы 60 мм пользуются большей популярностью из-за их более низкой стоимости.
В Европе наиболее распространёнными ширинами являются 70 мм. Почему европейцы предпочитают покупать более широкие системы, проживая в более теплом климате?
1. Трехкамерный профиль
Минимально используемое количество камер при изготовлении профилей для окон из ПВХ составляет 3 штуки. Меньше не бывает. Это обусловлено тем, что первая камера выполняет функцию отвода конденсата, вторая (наиболее широкая) используется для размещения армирующего профиля, а третья применяется для закрепления элементов фурнитуры и повышения герметичности изделия.
Пример трёхкамерного оконного профиля
Трёхкамерный профиль имеет монтажную глубину 58 или 60 мм, что позволяет установить одно- или двухкамерный стеклопакет.
Изделия из рассматриваемого материала стоит устанавливать на неотапливаемые балконы, в квартиры (если плата за энергоносители относительно невысока и вам не требуется высокого уровня сохранения тепла, а также, если ваши окна выходят не на шумную трассу).
2.
Четырехкамерный профильОтличий от 3-камерного профиля не так много в плане показателей теплосбережения и шумоизоляции. Тем не менее такой профиль дает гарантию не столкнуться с объектными изделиями (то есть ПВХ-окнами, которые предназначены для нежилых помещений).
Поэтому, если вам предлагают пластиковые окна данного типа, отдавайте им предпочтение перед 3-камерными, тем более разница в цене минимальна.
Однако, стоит отметить, что всё-таки большее значение имеет ширина самого профиля, так как, если не меняя ширину профиля, просто увеличивать количество камер, добавляя перегородки, то энергоэффективность такого изделия практически не изменится.
В подтверждение вышеизложенного, рассмотрим два варианта оконного профиля российской компании BRUSBOX:
- Профиль BRUSBOX 60-3. Трёхкамерный оконный профиль с конструктивной шириной 60 мм, обладает сопротивлением теплопередаче — 0,76 м²°C /Вт
- Профиль BRUSBOX 60-4. Четырёхкамерный оконный профиль с конструктивной шириной 60 мм, обладает сопротивлением теплопередаче — 0,82 м²°C /Вт
Сопротивление теплопередаче (R) — характеризует теплозащитные свойства ограждающих конструкций, проще говоря, чем больше данный показатель, тем меньше будут теплопотери в помещении.
Из приведённого примера мы видим, что при одинаковой ширине профиля количество камер очень незначительно влияет на тепловые показатели. Сопротивление теплопередаче — 0,76 для трёхкамерного и 0,82 для четырёхкамерного профиля.
Но на рынке представлен и четырёхкамерный профиль шириной 70 мм, который обладает более высокими теплотехническими показателями, а также позволяет устанавливать более толстые стеклопакеты.
Поэтому при выборе количества камер в профиле обязательно обращайте внимание на конструктивную ширину или, как её ещё называют, монтажную глубину.
Четырёхкамерный профиль можно устанавливать в частные дома (особенно в оконные проёмы небольшого размера и на несильно обдуваемой стороне). Если же ваш дом расположен на ветреной стороне или у воды (река, море), рассматривайте только 5-камерные оконные профили.
3. Пятикамерный профиль
В общем случае 5-камерный оконный профиль позволяет сохранять на 30% больше тепла, чем 3-камерный. Это позволяет применять его для любых объектов на территории России.
Конструктивная ширина такого профиля обычно 70 мм.
Данный каркас может использоваться с более толстыми стеклопакетами (шириной до 42 мм). В результате получается прочное износостойкое окно, которое прослужит 50-60 лет, будет сохранять тепло и защищать жильё от шума с улицы, а также обеспечит приемлемый уровень взломостойкости.
Если вы приобретете товар данной категории, то сможете обеспечить его функционирование на морозе до -60 градусов по Цельсию (без промерзания петель и самого профиля), в ветреных регионах.
4. Шести- и семикамерный профиль
Максимально прочный профиль для ПВХ окон. Позволяет устанавливать 3-камерный стеклопакет для максимальной защиты жилья от негативного воздействия погодных явлений.
Толщина такого профиля варьируется от 76 до 90 мм. Ценовая категория – высокая.
Нельзя сказать, что 5-камерный профиль вам не подойдет. Но если ваша цель – максимальная экономия затрат на отопление, погодные условия достаточно суровы и изменчивы, тогда следует обратить внимание на 6-7-камерные профили.
В некоторых случаях качественный 5-камерный вариант будет давать аналогичный эффект. Поэтому нужно сравнивать необходимые вам параметры, чтобы выбрать оптимальный вариант.
Ниже представлена таблица, в которой приведены сопротивления теплопередаче для различных оконных профилей на основании характеристик изделий ведущих производителей (VEKA, REHAU, KBE, BRUSBOX):
Чем 3-х камерный отличается от 5-ти камерного и какой выбрать?
Основное различие от трехкамерной модификации заключается в самом большом количестве допустимых к производству воздушных отсеков: для формирования пяти воздушных вставок потребуется шесть стеклянных полотнищ.
Ширина профилированной части больше всего на сантиметр, но прочие параметры сильно повышены. Большая ширина позволяет предотвратить промерзание даже при очень низких температурах, появление конденсата.
Можно установить пятикамерный вариант при любом климате, но на умеренных просторах такой меры не всегда требуется.
Визуально 5-ти камерное оборудование выглядит мощнее, внушительнее, располагает завышенной сопротивляемостью ко внешним условиям, надежно сберегая обогрев зимой или прохладу в летний зной.
Ввиду разницы в количестве затрачиваемого при производстве сырья наблюдается разница в цене, поэтому подобные затраты должны быть оправданы.
Выбор количества камер внутри пластикового окна – ответственное решение, от которого зависит не только комфорт, но также здоровье проживающих людей. Ведь от сквозняков, сырости и морозов люди простужаются чаще всего. Если ситуация действительно требует подобных мер, не стоит экономить.
Подробнее критерии выбора перед покупкой обозреваются в следующем видео:
Преимущества пластикового окна с пятью камерами
Употребляя словосочетание «пятикамерное окно», необходимо четко осознавать, о каких камерах идет речь.
В данном случае имеется в виду количество камер в профиле (у стеклопакета, напомним, имеется не пять, а максимум три камеры). Какие преимущества дает окну такая камерность?
За счет того, что теплопроводность профиля уменьшается пропорционально количеству камер, основным положительным свойством подобных конструкций является улучшенное сохранение тепла в прилегающем помещении. Визуально оцените различия трехкамерного профиля от пятикамерного:
Низкая теплопроводность профиля особенно актуальна для пластиковых окон, установленных в жилых домах в тех регионах, где большую часть года царит холодная погода. Повышенные теплоизоляционные возможности 5-ти камерного профиля, в сравнении, скажем, с трехкамерным, позволяют хозяевам существенно экономить на оплате счетов за электричество, потребляемое бытовыми электронагревателями.
Наличие дополнительных камер существенно сказывается на стоимости конечного изделия – цена пластиковых окон с профилем из пяти камер существенно выше, чем, к примеру, цена ПВХ конструкций, профиль которых имеет три камеры.
Особенности
Сегодня в квартирах и офисах все чаще можно увидеть установленные стеклопакеты. Они выглядят красиво и снаружи, и внутри помещения. Но устанавливают их не только ради эстетичного вида, стеклопакеты также обеспечивают хорошую тепло- и звукоизоляцию.
Любой стеклопакет представляет собой конструкцию, в которой два или более стекла скреплены дистанционными рамками. При этом плоскости стекол параллельны друг другу.
В стеклопакетах часто применяют флоат-стекло.
Это особенный материал, произведенный по специальной технологии. Он отличается идеально ровной поверхностью, высокой прозрачностью, отсутствием дефектов, имеющихся на обычных стеклах. Если флоат-стекло подвергают дополнительной закалке, оно приобретает большую прочность и становится безопасным. Если все же такое стекло разобьется, оно рассыплется на элементы прямоугольной формы без образования осколков и заостренных граней. Эти элементы не порежут человека и не нанесут ему травм.
В конструкции окна обязательно есть следующие элементы: стеклопакет, створки, рамы, фурнитура и уплотнитель. Окно может быть разделено на две части (или большее количество частей) с помощью специальной перекладины. Ее называют «импост».
Пластиковым окно называют потому, что при изготовлении используют пластиковый профиль. Он имеет одну основную воздушную камеру и несколько камер поменьше. Жесткость профиля зависит от основной камеры. Для предотвращения деформации основную камеру часто армируют, тогда профиль называется «металлопластиковым».
Камеры поменьше обеспечивают тепло- и звукоизоляцию. Эти показатели напрямую зависят от количества маленьких камер. Их количество определяет и толщину стеклопакета. У пятикамерного она составляет 70 мм.
Плюсы и минусы
Пятикамерные изделия имеют много преимуществ.
- Прекрасные тепло- и звукоизоляционные свойства. Зимой они отлично защищают от проникновения холодного воздуха, а летом – от горячего, сохраняя прохладу в помещении.

- Высокая прочность конструкции, повышенная защита от взломов.
- Длительный срок эксплуатации. Многие производители обещают до 40 лет службы.
- Возможность применения в разных климатических зонах. Изделия выдерживают температуры от -50 до +50 С.
- Устойчивость к статической нагрузке.
- Возможность выбора формы и размера, способа открывания окна.
- Простота ухода. Изделия не нуждаются в покраске, их не нужно утеплять к зиме.
- Универсальный дизайн. Они отлично сочетаются с разными шторами (как тканевыми, так и жалюзи или рулонными).
Чтобы установить дорогостоящую конструкцию, целесообразно обратиться к надежным производителям, давно работающим на рынке. Некоторые из них предоставляют дополнительное преимущество: возможность выбора вида стекла. Существует несколько вариантов:
- Тепловое стекло со специальным зеркальным покрытием. Верхний слой наносится вакуумным распылением частиц серебра.
Светоотражающий эффект способствует повышенному уровню сохранения тепла. Такие стекла уместны в регионах с очень холодными зимами. - Стекла с покрытием из специальной пленки, повышающей прочность. При сильном механическом воздействии стекло покроется сетью трещин, но из него не посыплются осколки. Неспособность этого вида стекла причинять травмы делает его подходящим для детских учреждений, магазинных витрин.
- Тонированные стекла. Специальное тонировочное покрытие защищает помещение от яркого ультрафиолетового излучения. Такие стекла уместны на южной стороне здания, которая подвергается воздействию солнечных лучей в течение всего дня.
Также некоторые производители предоставляют возможность выбора оттенка профиля, если белый цвет не подходит к стилевому решению интерьера.
Однако при всех своих явных плюсах, пятикамерные стеклопакеты имеют и некоторые недостатки:
- они дороже стоят;
- при монтаже такой стеклопакет уменьшает ширину подоконника, что создает неудобства;
- следует подбирать качественную, часто дорогостоящую фурнитуру, которая нужна для плотного закрывания окна, надежности петель и предотвращения появления сквозняков между створок;
- следует хорошо продумать конфигурацию окна, соотношение подвижных и неподвижных блоков (глухая конструкция может оказаться недоступной для мытья снаружи).

Также следует помнить, что в рамах не должно быть никаких щелей. При наличии они сведут на нет все положительные свойства. Не стоит экономить и на уплотнителях. Их качество напрямую влияет на герметичность окна при закрытии и на фиксацию стекла в профиле.
Технические характеристики
Пять секций в оконном металлопластиковом окне на сегодняшний день является пределом. Стандартные пятикамерные конструкции обладают следующими характеристиками:
- Воздушные отсеки – 5 шт.;
- Толщина внутренней перегородки – 3мм.;
- Толщина стеклопакета – 42мм.;
- Толщина профиля – 70мм;
- Замкнутая система армирования.
При выборе пластикового окна с пятью воздушными секциями очень важно обратить внимание на систему армирования. Она должна быть изготовлена из стального сплава и иметь толщину перегородок до 1,5мм.
Стеклопакеты для пятикамерного окна
Для пятикамерного профиля существует три вида стеклопакетов:
- однокамерный;
- двухкамерный;
- трехкамерный.

От того или иного типа установленного стеклопакета в первую очередь зависит уровень теплоизоляции окна и его шумозащитные характеристики. Все стеклопакеты герметичны и заполнены специальным газом, который препятствует потению стекол изнутри.
Однокамерный стеклопакет состоит из двух слоев стекла, каждый из которых имеет толщину 4 мм., а общая толщина стеклопакета 24 мм. Он обеспечивает низкую защиту от проникновения шума и холода в помещении и устанавливается обычно на балконах или в офисных помещениях.
Стеклопакет с двумя камерами включает в себя три слоя стекла с такой же шириной, как и у однокамерного аналога. Он способен обеспечить хорошую шумоизоляцию и надежно защитит помещение от проникновения холода. Рекомендовано устанавливать двухкамерные стеклопакеты в квартирах или загородных домах.
Конструкция трехкамерного стеклопакета состоит из четырех стекол. Толщина каждого может быть от 4 до 6 мм., а общая толщина стеклопакета составляет 40 мм. Такой стеклопакет обеспечивает наилучшую защиту от холода и шума и актуален при суровых климатических условиях.
Кроме всего перечисленного все стеклопакеты для пятикамерных оконных профилей делятся на несколько категорий:
- шумоизоляционный;
- энергосберегающий;
- защитный;
- стеклопакет с тонировкой;
- декоративный.
Шумоизолирующий стеклопакет имеет три стекла, первое из которых имеет толщину 6 мм и располагается снаружи, а другие 2 стекла имеют толщину 4 мм и находятся близко друг к другу с внутренней стороны окна. Он обеспечивает повышенную уровень шумоизоляции и зачастую устанавливаются с той стороны помещения, где расположена проезжая часть.
Энергосберегающая конструкция изготавливается из особого теплового стекла, на котором нанесено специальное зеркальное покрытие с помощью вакуумного распыления серебряных частиц. Такой стеклопакет обеспечивает высокий уровень теплоизоляции и устанавливается в тех регионах, где преобладают низкие температуры.
Стекла защитного стеклопакета покрыты специальной пленкой, которая обеспечивает им хорошие прочностные характеристики.
Благодаря пленке стекло не разлетится в случае разбития и не причинит вред людей, находящихся рядом. Ввиду своей повышенной прочности такие стеклопакеты чаще всего устанавливаются на витринах магазинов, в отелях, детских и учебных заведениях.
Тонированный стеклопакет покрыт тонировочной пленкой, которая защищает помещение от сильного солнечного света. Он устанавливается с солнечной стороны зданий и препятствует постоянному проникновению солнечных лучей в помещение.
Декоративная конструкция стеклопакета имеет искривленные или украшенные стекла, которые придают помещению необычный и красивый вид. Такие стеклопакеты не обладают какими-либо особыми характеристиками и используются для установки в ресторанах и развлекательных заведениях.
Правильный подход к выбору профиля
Пятикамерный профиль по всем параметрам лучше, чем трехкамерная конструкция, но такие окна не всегда актуальны для установки. Все зависит от того, в каких погодных условиях будут эксплуатироваться окна.
Если помещение расположено далеко от проезжей части или любых других источников сильного шума, при этом климатические условия вполне благоприятны для проживания, то подойдет трехкамерное окно с одно-, или двухкамерным стеклопакетом.
Если же помещение находится близко к проезжей части, а так же недалеко от поля, где может быть сильный ветер и пониженная температура, то лучшим вариантом будет установка пятикамерного окна с двух-, или трехкамерным стеклопакетом.
Рекомендации к приобретению пластикового окна
Металлический каркас должен быть квадратной формы, чтобы обеспечивать всестороннюю надежную опору для металлопластикового профиля. Некоторые недобросовестные производители в целях экономии материалов на изготовлении продукции устанавливают в своих изделиях П-образный каркас, который со временем искривляется и приходит в негодность.
Лучше всего потребовать у представителя компании, занимающейся установкой пластиковых окон, образец конструкции окна в разрезе.
Если продавцу нечего скрывать – он покажет клиенту образец окна и расскажет о его характеристиках.
Не менее важно осмотреть фурнитуру, которой укомплектовано пятикамерное окно. От фурнитуры зависит не только переключение режимов использования оконного блока, но и открывание и закрывание оконных створок.
Так же рекомендовано осмотреть уплотнитель на оконной конструкции, ведь от его качества зависит теплоизоляция помещения. Если уплотнитель отслаивается или слишком жесткий, то эффективность пятикамерного профиля будет значительно снижена ,и в помещении постоянно будут присутствовать сквозняки.
Что нужно учесть при выборе ПВХ профиля
Для совершения удачной покупки окон необходимо правильно выстроить последовательность действий. В первую очередь потребуется узнать до момента, когда будут заказываться пластиковые окна, какой профиль лучше. То есть сначала выбираются бренд и тип системы, а потом – компания-производитель. Чтобы найти подходящую систему, нужно комплексно рассмотреть несколько критериев.
Класс профиля
Комплексом промышленных стандартов RAL-GZ 716/1, который актуален для стран ЕС, предусмотрено 3 класса оконных профилей – A, B, C. Такое разделение и требование обязательно маркировать системы защитили покупателей от приобретения продукции, не соответствующей предъявляемым ими требованиям. Между собой системы разных классов различаются по 2 основным признакам:
- состав сырья для коэкструзии профилей;
- толщина наружных и внутренних стенок.
От качества сырья и толщины пластика зависят срок службы, надежность и эстетичный внешний вид окон.
Долговечность изделий класса A составляет от 40 до 60 лет, а B – всего 20 лет. Профили класса C прослужат всего 5 лет, но они не встречаются в свободной продаже.
Ширина профиля и количество воздушных камер
Ширина (монтажная глубина) и количество камер влияют как на стабильность окон, так и на их теплосберегающие свойства. Чем больше эти параметры, тем теплее и жестче конструкции, собранные из такого профиля.
Сегодня на рынке представлены системы, которые имеют от 3 до 8 камер и монтажную глубину от 58 до 127 мм.
Толщина внешних и наружных стенок
Эти параметры влияют на прочность, долговечность и уровень сопротивления нагрузкам. У профилей разных классов такие показатели отличаются следующим образом:
A-класс – наружные стенки должны превышать 2,8 мм, а внутренние перемычки быть не менее 2,5 мм;
B-класс – допустимый стандартом минимум для наружных стенок составляет 2,5 мм, а для внутренних – 2 мм.
От толщины стенок профиля также зависят уровень шумопоглощения оконных конструкций и их энергоэффективность.
При равном количестве камер и одинаковой монтажной глубине окна класса A теплее и тише моделей класса B.
Воздухо- и водонепроницаемость
По воздухо- и водонепроницаемости оконные профили делят на пять классов, которые обозначаются от А (высший) до Д (низший). Чем выше этот параметр, тем большим должно быть давление, при котором окно начнет пропускать воздух и воду.
Классы профилей по величине воздухо- и водонепроницаемости
Класс профиляОбъемная воздухопроницаемость при Р = 100 Па, м2/(ч-м2)Предел водонепроницаемости, (Па), не менее
| А | 3 | 600 |
| Б | 9 | 500 |
| В | 17 | 400 |
| Г | 27 | 300 |
| Д | 50 | 150 |
Армирование
Пластиковые окна без усиления могут деформироваться из-за нагрузки от створок большого размера, имеющих большой вес. Этот процесс влечет за собой разгерметизацию конструкции. Чтобы не допустить, во внутренние камеры вставляются специальные вкладыши из металла. Они отличаются друг от друга сечением и толщиной стенок, которая не должна быть меньше 1,2 мм. Оптимальная их толщина составляет 1,5 мм.
Сегодня ведущие европейские производители систем премиум-класса активно заменяют металлические вкладыши элементами из прочного стекловолокна.
Они без ущерба для прочности снижают вес окон и повышают их энергоэффективность.
Звукоизоляция
Один из наиболее важных параметров, особенно если помещение, в котором устанавливается блок, выходит окнами на шумную городскую магистраль. По уровню звукоизоляции оконный ПВХ-профиль делят на пять классов от A до Д: первые снижают шум свыше 36 дБА, последние – 25 дБА.
Классы профилей по звукоизоляции
Класс профиляИзделия со снижением воздушного шума, дБА
| А | более 36 |
| Б | 34 — 36 |
| В | 31 — 33 |
| Г | 28 — 30 |
| Д | 25 — 27 |
Максимальная ширина стеклопакета
У разных профилей отличаются максимальные значения толщины стеклопакетов, которые могут быть установлены в окнах. Обычно этот параметр напрямую зависит от монтажной глубины системы. Чем она больше, тем толще стеклопакеты можно использовать для комплектации окон.
С появлением селективных стекол, отпала необходимость в использовании толстых стеклопакетов для сохранения тепла. Трехкамерные модели рекомендуется использовать только в северных регионах или в шумных районах (для повышения уровня звукопоглощения окон).
Сопротивление ветровой нагрузке
Сопротивление ветровой нагрузке обеспечивается не только силой крепления окна в проем, но и самим профилем. Этот параметр показывает, насколько большое давление может выдержать оконный блок. По этой способности изделия делят на 5 групп – лучшие относятся к классу А, выдерживая свыше 1000 Па. Самые простые оконные блоки класса Д способны выдерживать давление в диапазоне 200–400 Па.
Классы изделий по сопротивлению ветровой нагрузке
Класс профиляСопротивление ветровой нагрузке, Па
| А | 1000 и более |
| Б | 800 — 999 |
| В | 600 — 799 |
| Г | 400 — 599 |
| Д | 200 — 399 |
Светопропускная способность
Она обозначается коэффициентом, по которому изделия делятся на 5 классов.
Изделия наивысшего класса A имеют светопропускную способность с коэффициентом 0,5, низшего Д – 0,3.
Классы профилей по показателю общего коэффициента пропускания света
Класс профиляОбщий коэффициент пропускания света
| А | 0,50 и более |
| Б | 0,45 — ,049 |
| В | 0,40 — 0,44 |
| Г | 0,35 — 0,39 |
| Д | 0,30 — 0,34 |
Однородность профиля
Пластик качественного профиля отличается однородной структурой, гладкостью поверхности, отсутствием вкрапленией и стойким белым цветом. Выпущенная кустарным способом подделка имеет неравномерную структуру, зернистость, вкрапления на поверхности и желтеет со временем.
Экологичность ПВХ
При изготовлении профилей в чистый ПВХ добавляют различные стабилизаторы и модификаторы, улучшающие прочность, цвет и термостойкость изделий.
Раньше многие производители использовали добавки, в составе которых содержался вредный свинец. Хотя проведенные в Европе исследования частично развеяли опасения покупателей и доказали, что в составе ПВХ он безвреден для здоровья, страх перед этим металлом остался. К тому же свинец нежелателен при вторичной переработке пластика. Вследствие этого производители заменили вредную добавку на новый полностью безопасный стабилизатор CaZn.
Самые большие опасения вызывает не сертифицированная продукция, а изготовленные в кустарных условиях профили. В таких изделиях могут сдержаться свинец и другие вредные для здоровья вещества. Чтобы не заказать окна из таких комплектующих, нужно требовать сертификат на соответствие требованиям по экологической безопасности.
Количество контуров герметичности
Современные профильные системы имеют 2 или 3 уплотнительных контура. От их количества зависит класс герметичности конструкций. Если окна планируется эксплуатировать в условиях высокой ветровой нагрузки или при слишком низких температурах, целесообразно отдавать предпочтение профилям с 3 уплотнительными контурами.
Как выбрать подходящий пластиковый профиль, если нужны теплые окна
Чтобы разобраться, какой выбрать профиль для окон ПВХ с высокой энергоэффективностью, сначала нужно понять, как удерживается тепло внутри помещений. За этот процесс отвечают фурнитура, стеклопакеты и, конечно же, профильная система. Больше всего тепла теряется через светопрозрачное заполнение, поэтому нужно в первую очередь позаботиться об этой части оконной конструкции. Однако без учета характеристик профилей выполнить эту задачу нереально, поскольку для повышения энергоэффективности окон есть 2 способа:
- Установить толстые двухкамерные стеклопакеты – такая интеграция возможна только в конструкциях, собранных из профилей с монтажной глубиной от 70 мм. Количество внутренних камер у таких окон обычно составляет 5-6 штук.
- Установить однокамерные стеклопакеты с селективным покрытием – для такого монтажа не требуется мощный профиль. Однако использование 3-камерных систем с монтажной глубиной 58-60 мм приведет к утечке тепла в зоне створок и рамы, поэтому оптимальным вариантом будет 5-камерный профиль.

Чтобы изготовить теплые окна с любым видом стеклопакетов необходимо использовать для сборки профили с увеличенной монтажной глубиной. В противном случае энергоэффективность конструкций окажется недостаточной для поддержания комфортной температуры во внутренних помещениях.
Какой профиль подойдет, если нужны цветные окна
Ламинированные, окрашенные и облицованные акрилом – такими бывают цветные окна. В продаже сегодня представлены все перечисленные профили пластиковых окон, но как выбрать самый подходящий, не знает большинство покупателей. Чтобы конструкции полностью соответствовали запросам клиента, нужно комплексно оценить:
- срок службы декоров;
- условия эксплуатации покрытий;
- стоимость цветных профилей.
Помимо систем, облицованных декоративными покрытиями, производители предлагают окрашенные в массе профили. Они сохраняют свои эстетические характеристики в процессе всего срока службы конструкций.
Если окна с темной ламинацией планируется эксплуатировать на солнечной стороне здания, необходимо узнать, сможет ли ПВХ долго выдержать перегрев.
Недорогие профили в таких условиях быстро размягчаются, что в итоге приводит к деформации створок и рам.
Какой профиль лучше, если нужны большие окна
Крупногабаритные конструкции испытывают высокие нагрузки. Они должны выдерживать массу тяжелых стеклопакетов и порывы ветра. Поскольку не все покупатели знают, когда заказывают большие пластиковые окна, какой профиль лучше выбрать, впоследствии они могут столкнуться с деформацией крупногабаритных конструкций. Чтобы этого избежать, нужно придерживаться нескольких рекомендаций:
- отдать предпочтение многокамерному профилю A-класса с толщиной внешних стенок 3 мм и монтажной глубиной 80-86 мм;
- заказать замкнутое армирование стальными вкладышами с толщиной стенок 1,5 мм;
Руководствуясь этими двумя пунктами, можно выбрать большие окна, которые прослужат долгие годы и не доставят хлопот.
Что выбрать, если нужны безопасные окна
Для изготовления безопасных окон нужен профиль с таким смещением фурнитурного паза, которое позволит установить противовзломную фурнитуру.
Кроме этого, необходимо оснастить конструкции надежным стальным армированием. Чем больше камер у профиля с увеличенной монтажной шириной, тем труднее открыть такие окна со стороны улицы.
Попытки взлома окон с высоким уровнем безопасности могут стать причиной незначительных повреждений профильных конструкций. Вследствие этого для изготовления таких моделей рекомендуется выбирать системы, изготовленные из экологичного пластика.
Как грамотно выбрать профиль для пластиковых окон?
Профиль представляет собой ключевой элемент оконной конструкции, так как он позволяет не просто определить эстетическое восприятие самого окна, но и его показатели прочности, срок эксплуатации и так далее. Обязательно необходимо обращать внимание на толщину наружный стенок. Сам по себе профиль – это полая система закрытого типа, внутри которой находятся перегородки, обеспечивающие его определенную прочность. Именно от данного показателя зависит цена конструкции, продолжительность использования.
У каждой продукции есть внутренние и наружные стенки.
В зависимости от толщины поливинилхлоридного слоя все изделия делятся на три класса. К стандарту «А» принадлежат модели с толщиной наружных стенок 2,8-3 мм, внутренних – порядка 2,5 мм. Это вполне соответствует российским и международным стандартам. Такие модели характеризуются повышенным уровнем прочности, хорошую звуко- и теплонепроницаемость.
Класс «В» отличается толщиной внешних стенок не менее 2,5 мм, внутренних – приблизительно 2 мм. Данная разновидность хуже удерживает тепло, однако меньше подвергается деформации вследствие постоянных и динамических физических нагрузок, уличные шумы задерживает не слишком хорошо. Тип «С» не регламентируется нормативными документами, поэтому из таких профилей производятся окна, главным образом, для нежилых помещений, зачастую можно встретить конструкции из такого типа профиля для квартир, но они стоят дешевле всех остальных.
Окна также делятся на группы по температурным зонам в зависимости от климатических условий.
Облегченные модели предназначены для теплого климата, где средняя годовая температура не опускается ниже нуля. Такая продукция способна выдерживать кратковременное понижение температуры до -5 градусов.
Стандартные профили рассчитаны на умеренный климат, температура в котором может периодически понижаться до -20 градусов, однако они способны выдерживать и -45 градусов, но тоже в течение некоторого периода. Морозостойкие хорошо переносят до -55 градусов. В нашей стране производятся, главным образом, стандартные и морозоустойчивые изделия.
Оконные профили должны выдерживать серьезные механические нагрузки. Данный параметр позволяет определить, насколько верно находятся внутренние перегородки, как поливинилхлорид реагирует на перепады температуры, потому что данный материал может становиться хрупким при сильных морозах.
Когда мы выбирали продукцию для включения в рейтинг лучших профилей для пластиковых окон, то руководствовались всеми этими факторами. Кроме того, во внимание принималось соотношение цены и качества изделий, а также отзывы пользователей.
Выражаем надежду, что после тщательного изучения этого обзора, вы сможете подобрать для себя оконный профиль, который будет отлично служить вам в течение долгого времени.
Галерея
prevnext
Варианты ламинации
Махагон
Болотный дуб
Белый
Вишня Амаретто
Спектраль Антрацит
Бордовый
Пурпурный
Рубиновый
Алый
Болотный
Зелено-голубой
Изумрудный
Болотная зелень
Темно-синий
Вороново крыло
Кобальт
Синий ультрамарин
Брилиантово-синий
Темно-серый гл.
Серый сланец
Серый сланец гл.
Темная платина мет.
Базальт гл.
Кварц мет.
Матовый аллюм.
Светлая платина мет.
Серебристо-серый гл.
Папирус
Слоновая кость
Белая пленка
Кремовый
Желтый
Темно-коричневый
Коричневый
Темно-серый
Серый кварц
Базальт
Серебристо-серый
Агатово-серый
Темно-зеленый
Светло-серый
Дуб шеффилд кор.
Дуб шеффилд сер.
Дуб шеффилд св.
Черная вишня
Сиена россо
Дуб рустикальный
Горная сосна
Винчестер
Светлая пихта
Сиена ноче
Светлый дуб
Орех
Золотой дубЦвета ручек
Пластик белый
Титан
Бронза
Бронза темная
Серебро светлое
Серебро
Пластик коричневый
Латунь
Источники
- https://azaoknom.ru/plastikovye-okna-s-pyatikamernym-profilem-sohranyaem-teplo-na-otlichno.html
- https://www.Okno-Moskva.ru/stati/otlichiya-trehkamernogo-okna-ot-pyatikamernogo/
- https://www.oknamedia.ru/novosti/kakoy-profil-luchshe-vybrat-dlya-okon-49250
- https://klub-masterov.
ru/okna/kak-otlichit-pjatikamernoe-okno-ot-trehkamernogo.html - https://www.oknamedia.ru/novosti/kakoy-okonnyy-profil-vybrat-60-ili-70-mm-48359
- https://remsovet.com/113-kolichestvo-kamer-v-okonnom-profile.html
- https://mezhdveri.ru/28168-5-ti-kamernogo-plastikovogo-okna.html
- https://stroy-podskazka.ru/okna/pyatikamernyj-steklopaket/
- https://glazingmag.ru/pyatikamernyj-steklopaket/
- https://www.oknatrade.ru/help/kak-vybrat-podkhodyashchiy-okonnyy-profil/
- https://srbu.ru/otdelochnye-materialy/1660-kakoj-profil-luchshe-dlya-plastikovykh-okon-rejting.html
- https://zen-Top.ru/top-luchshih-proizvoditelej-profilej-dlja-plastikovyh-okon/
- https://www.veka-portal.ru/okna-veka/pyatikamernye/
Сравнение профилей ПВХ окон — СтеклоДом Пермь
Выбирая пластиковые окна для квартиры или дома, большинство наших клиентов уделяет особое внимание тепло и звукоизоляции конструкции.
Но с ходу разобраться в преимуществах и недостатках профилей ПВХ сложно.
Мы попытаемся простым языком объяснить, что такое профили, чем они отличаются,
какой из них лучше и почему?
Что такое профиль?
Часто можно слышать, как окна называют стеклопакетами, а слово «профиль» у многих вызывает недоумение. Поэтому для начала разберемся в терминологии, чтобы дальше говорить на одном языке.
Профиль – это пластиковая рама, в которую вставляют стеклопакет. Наибольшее распространение получили трёх- и пятикамерные профильные системы, о них мы расскажем ниже.
Стеклопакет – это герметичная конструкция, состоящая из двух, трёх и более стекол, между которыми остается прослойка сухого воздуха или инертного газа. В жилых помещениях чаще всего ставят двухкамерные стеклопакеты разной ширины.
Устройство профильной системы
Основа профиля – большая центральная камера, внутри которой расположен стальной армирующий стержень.
Он придает жесткость всей конструкции и защищает раму от деформации.
При этом сталь отлично проводит температуру,
создавая мостик холода. Поэтому центральную камеру отделяют от поверхности профиля боковыми камерами.
Они создают воздушные прослойки, которые замедляют теплообмен между улицей и квартирой.
Соответственно, чем больше боковых камер, тем лучше профиль удерживает тепло в помещении.
Сравнение 3-х и 5-камерного профилей
На рисунке видно, что в трехкамерной системе центральную камеру от поверхности профиля отделяют всего две боковые камеры,
по одной с внешней и внутренней стороны. В пятикамерной системе боковых камер уже четыре:
две внешние и две внутренние. Из предыдущего раздела мы помним: чем больше камер, тем «теплее» профиль.
В числах это выражается через коэффициент сопротивления теплопередаче, чем он выше, тем лучше окна сохраняют тепло.
Для сравнения, средний коэффициент трёхкамерного профиля – 0,68 м2*C\Вт, а пятикамерного – 0,8 м2*C\Вт,
то есть они сохраняют на 20% больше тепла и позволяют сократить расходы на отопление.
Монтажная глубина профиля
Еще одна важная характеристика профильной систем – монтажная глубина или ширина профиля. От неё зависит, какой толщины стеклопакет можно вставить в пластиковую раму. Стеклопакет занимает до 80% площади окна и на него распространяется то же правило, что и с профилями: чем толще стеклопакет, тем лучше окно сохраняет тепло.
Ширина 5-камерных профилей почти всегда больше 3-камерных. Стандартная монтажная глубина «тройки» – 58 мм, позволяет установить стеклопакет толщиной 36 мм.
Монтажная глубина «пятерки» – 70 мм и в нее свободно входит стеклопакет толщиной 40-41 мм. Еще пару лет назад это считалось лучшим предложением на рынке,
пока не появилась 5-камерная профильная система Kommerling 76 mm с монтажной глубиной 76 мм, что позволяет установить стеклопакет толщиной 48 мм.
Таблица сравения профилей
Какой профиль выбрать?
Кажется, ответ очевиден, но на деле всё не так однозначно. Из-за большого веса пятикамерный профиль не везде можно использовать. К примеру, балконы в старых домах не рассчитаны на такую нагрузку, поэтому для их остекления чаще используют трёхкамерные рамы или лёгкий алюминиевый профиль. Выбирая пластиковое окно, определитесь, где оно будет стоять. Для одностворчатых окон в нежилых помещениях сойдут недорогие трёхкамерные рамы. Они подойдут и для окон в дачном домике, куда вы приезжаете только летом.
В жилых помещениях, особенно в частных домах, лучше использовать 5-камерный профиль Kommerling 76 mm. В пользу такого решения говорит не только здравый смысл,
но и рекомендации Минстроя РФ. В конце прошлого года ведомство обновило свод правил СП 50.13330 «Тепловая защита зданий», который устанавливает стандарты остекления
жилых домов и социальных объектов в разных климатических зонах.
Основные преимущества Kommerling 76 mm:
- Тепло: 5-камерный профиль Kommerling 76 mm с широким стеклопакетом сохраняет в комнатах комфортную температуру даже в сильные морозы;
- Тихо: помимо защиты от холода, такие окна обеспечивают высокий уровень шумоизоляции, и день рождения соседа не помешает вам спокойно выспаться;
- Экономично: благодаря своим характеристикам окна из профиля Kommerling 76 mm снижают затраты на отопление дома в среднем на 30% и окупаются за 2-3 года.
Рассчитайте стоимость окна из пятикамерного профиля в нашем калькуляторе или запишитесь на бесплатные замеры по телефону: 283-00-00.
Заказать обратный звонок
Укажите Ваши контактные данныеМы перезвоним вам в рабочее время
Я согласен на обработку и передачу персональных данных Конфиденциальность
Какой профиль лучше для пластиковых окон
Профиль — это один из самых важных элементов окна из ПВХ.
Именно он определяет, насколько долго и надежно будет служить вся конструкция.
При первом рассмотрении кажется, что все профили одинаковые и смысла переплачивать нет. Но разница между ними становится видна только через несколько месяцев, а то и через год: дешевые окна со временем деформируются, в них образуются щели, окно перестает справляться со своими задачами в целом.
Типы профилей и их характеристики
Профиль представляет собой основу, из которой изготовлены створки окна и рамы. Именно он определяет такие параметры окна, как прочность и внешний вид. Для производства профиля могут использоваться дерево и алюминий, но чаще его изготавливают из поливинилхлорида (ПВХ). Прямо в процессе производства внутри профиля создают воздушные полости (камеры), повышающие теплоизоляционные характеристики.
ГОСТ 30673-99 «Профили поливинилхлоридные для оконных и дверных блоков. Технические условия» классифицирует профили по множеству характеристик.
Например, по показателям толщины внешних и внутренних стенок профили делят на следующие классы:
-
Класс А. Наружные стенки толщиной от 2,8 мм, внутренние — от 2,5 мм. Обеспечивает максимальный уровень теплоизоляции.
-
Класс В. Наружные стенки толщиной от 2,5 мм, внутренние — от 2 мм. Окно с таким профилем хуже держит тепло и менее устойчиво к деформации.
-
Класс С. Сюда входят профили, которые не соответствуют стандартам классов А и В, поэтому к ним не предъявляют особых требований.
Параметры профиля, которые необходимо знать
Рядовому покупателю сложно сходу определить качество профиля. Но обладать профессиональными знаниями не обязательно — достаточно знать и обращать внимание на ряд характеристик.
Однородность профиля
Пластиковая поверхность окна обязательно должна быть идеально гладкой и однородной.
Зернистость может указывать на ненадлежащие условия производства. Цвет тоже должен быть однородным, без градиента и разводов.
Ширина профиля
|
Ширина |
Камеры |
Где используется |
|---|---|---|
|
от 57 до 62 мм |
Как правило, трехкамерный профиль |
В теплых, хорошо отапливаемых квартирах. Для дачного остекления. Для остекления лоджий и балконов |
|
от 64 до 67 мм |
Как правило, четырехкамерный профиль |
В хорошо отапливаемых квартирах, для более теплого дачного остекления. |
|
от 70 до 76 мм |
Как правило, пятикамерный профиль |
Для помещений с повышенными требованиями к теплоизоляции. В сочетании с энергосберегающим стеклопакетом — оптимальное решение для остекления холодных квартир и загородных домов для постоянного проживания. |
|
от 85 до 90 мм |
Как правило, шестикамерный профиль |
Толщина стенок профиля
Толщина должна быть одинаковой на всей длине профиля: от 2,5 до 3 мм. Важно учитывать, что для тяжелых окон не подходят тонкие стенки — сварочный шов будет менее прочным, а вслед за этим ухудшится прочность всей конструкции.
Количество воздушных камер
Воздушные камеры обладают тепло- и звукоизоляционными свойствами.
Чем их больше, тем теплее и тише в квартире. Количество камер напрямую зависит от ширины профиля. Так у профиля 58 мм может быть максимум три камеры — и в принципе этого достаточно для сохранения тепла. В 70-миллиметровый вмещается до пяти камер, а профиль в 90 мм — целых шесть.
Количество камер стеклопакета
Стеклопакет — это листы стекла, которые соединены между собой рамой и герметиками. Между листами образуются камеры с воздухом, который сохраняет тепло внутри дома и уменьшает шум с улицы. Чем больше камер в стеклопакете, тем комфортней в комнате.
|
Количество камер |
Назначение |
|---|---|
|
Однокамерный стеклопакет |
Используется для остекления больших проемов: лоджий и балконов — одной камеры недостаточно для сохранения тепла. |
|
Двухкамерный стеклопакет |
Рекомендуется для остекления квартир, домов и офисов благодаря оптимальным свойствам. |
|
Трехкамерный стеклопакет |
Применяется на Севере, где бывают экстремально низкие температуры. Такое стекло тяжелое, пропускает меньше света. |
Заключение
На профиле в прямом и переносном смысле держится все окно. От его качества зависит то, насколько герметичной будет конструкция, сможет ли противостоять ветру, удерживать тепло, защищать квартиру от уличного шума, даже прочность посадки в проем.
Не менее важна и светопропускная способность — количество света, которое проходит сквозь стекло в сравнении с пустым оконным проемом.
Итоговые характеристики окна зависят от качества элементов, из которых оно собрано.
Всегда помните, что это очень гибкий «конструктор» и его можно и нужно подстраивать под себя и свои потребности.
-
Чтобы полностью избавиться от шума улицы, можно использовать специальные стекла Triplex. Это стеклопакет особой конструкции, который состоит из нескольких слоев: два стекла, а между ними полимерная пленка. Такое окно способно обеспечить наивысшую шумоизоляцию (до 40 дБ).
-
На стеклопакет можно нанести зеркальное покрытие, чтобы отгородиться от любопытных взглядов соседей. Дополнительный плюс — покрытие защитит интерьер дома от ультрафиолета, а значить текстиль прослужит дольше.
Качество профиля и всех остальных элементов окна на 100% зависит от производителя, так что к выбору стоит отнестись особенно тщательно. Проверьте документы и сертификаты, изучите отзывы, посмотрите примеры работ, если есть такая возможность. Доверяйте профессионалам производство и монтаж вашего окна — и оно верой и правдой прослужит долгие годы.
Как выбрать профиль ПВХ для пластикового окна и двери.
Сейчас в наш век новых технологий каждый домовладелец хочет, чтобы у него дома было красиво, уютно и тепло. А пластиковые окна и двери являются не данью моды, а непременным атрибутом любого жилища, так как это очень удобно и красиво. Чтобы выбрать свое пластиковое окно, в первую очередь нужно определиться, чего вы хотите от него: шумоизоляцию, теплоизоляцию, удобство, эстетичность или другие нюансы. Если вы не понимаете, какое пластиковое окно подойдет именно для вашего дома, квартиры, дачи или коттеджа то эта статья поможет вам с выбором.
Существует несколько типов профильных систем ПВХ, если вам кто-то говорит, что все профили ПВХ одинаковые, то это глубокое заблуждение. У пластиковых окон и дверей существует трехкамерный, четырехкамерный и пятикамерный профиль ПВХ, отличаются они толщиной пакета и наличием воздушных камер внутри профиля ПВХ. Давайте разберемся по порядку, что они из себя представляют.
Когда человек приходит в офис компании, чтобы заказать и впоследствии купить пластиковое окно или дверь для своего дома либо квартиры, менеджеры начинают предлагать такие варианты профилей ПВХ, которые существуют в их компании.
Человек не разбирающийся в пластиковых окнах, не может на первый взгляд определить, какой предложили профиль ПВХ: трехкамерный, четырехкамерный или пятикамерный, поэтому следуя нашим рекомендациям, вы научитесь разбираться в этом вопросе.
Трехкамерный профиль ПВХ VEKA, IVAPER-Gealan, REHAU.
Внутри этого профиля ПВХ должны быть три воздушные камеры, по толщине пластиковые окна и двери из трехкамерного профиля ПВХ составляют шесть сантиметров, потому надо понимать, что трехкамерный профиль не очень хорошо подходит в районах с суровой и морозной зимой. Для такого региона, как Санкт-Петербург, пластиковые окна из трехкамерного профиля ПВХ вполне подходят и являются оптимальным вариантом. Конечно же, это пластиковое окно будет являться дешевле, чем более дорогие окна из четырех- и пятикамерных профилей ПВХ.
| VEKA EUROLINE |
| IVAPER 62 |
| REHAU Blitz |
Четырехкамерный профиль ПВХ VEKA, IVAPER-Gealan, REHAU.

Данный вид профиля ПВХ предлагают не все компании, так как такое окно уже считается дорогим и не таким востребованным. По толщине такое окно не очень сильно отличается от пятикамерного. Как хороший вариант можно заказать четырехкамерный, но опять же гарантийные свойства у него немного похуже, чем у пятикамерного профиля. Чтобы определить самостоятельно какой это профиль ПВХ нужно посчитать воздушные камеры их должно быть четыре штуки.
| VEKA WHS Halo 60 |
| VEKA PROLINE |
Пятикамерный профиль ПВХ VEKA, IVAPER-Gealan, REHAU.
Данный вид профиля ПВХ очень распространенный в наше время, он встречается с серыми, черными селиконовыми уплотнителями и с алюминиевыми, пластиковыми рамками внутри стеклопакета. Толщина профиля составляет примерно от семь с половиной сантиметров, что считается идеальной толщиной не только для наших погодных условий, но и в районах с очень суровой зимой.
Тестируется такой профиль порядка до пятидесяти градусов.
| VEKA SWINGLINE |
| IVAPER 74 |
| REHAU BRILLANT Design |
Шестикамерный профиль ПВХ VEKA, IVAPER-Gealan, REHAU.
Совсем уникальный профиль ПВХ имеет толщину больше восьми сантиметров и обладает очень высокими показателями по защите от холода и шума. Стеклопакет толщиной больше пяти сантиметров может быть самой причудливой конфигурации.
Этот профиль ПВХ является абсолютной экзотикой, за 20 лет работы с пластиковыми окнами не припомню хотя бы одного покупателя. Выпускают их, видимо, только ради престижа.
| VEKA ALPHALINE |
| IVAPER 82 |
| REHAU GENEO |
Для Санкт-Петербурга надобность в пятикамерном профиле ПВХ, а уж тем более в шестикамерном, для пластиковых окон и дверей полностью отсутствует и покупают его скорее ради престижа или если очень шустрый менеджер по окнам сумел внушить покупателю крайнюю необходимость в его покупке.
Допустим, вы купили пятикамерный или шестикамерный профиль ПВХ, покупка Вам обойдется не очень дешево, тогда имеет смысл заказать всевозможные дополнительные опции, например, стеклопакет теплопакет STiS DS с теплоотражающим покрытием. Теплоотражающее покрытие – это специальная пленка, которая отталкивает с уличной стороны солнечные лучи, а с внутренней стороны это покрытие не дает охлаждаться стеклу.
Конечно же, нужно помнить, что надо обращаться в те компании, которые зарекомендовали себя с положительной стороны. Потому что эта покупка не на один год и не на пять лет, а на долгие и долгие годы.
Специалисты компании «Окна Эдельвейс» в Санкт-Петербурге всегда с радостью помогут вам разобраться с различными системами профилей ПВХ, качественно изготовят и установят пластиковое окно или дверь в Ваш дом. Мы поможем вам остеклить квартиру, дом по очень выгодным ценам. У нас вы можете заказать остекление, утепление и отделку балкона или лоджии, а также мы можем изготовить и установить крышу на балкон.
Только у нас при заказе пластиковых окон и дверей Вы можете получить:
— окна и двери ПВХ из качественного немецкого профиля IVAPER-Gealan, VEKA и REHAU.
— качественная только немецкая фурнитура Siegenia Aubi, Roto NT и Axor.
— стеклопакет теплопакет DS от компании STiS по очень низкой цене.
— качественные подоконники российского производства Витраж и Брусбокс и немецкого Данке и Меллер.
— подарки: москитные сетки, микропроветривание, блокиратор ошибочного открывания и другие полезные аксессуары для пластиковых окон.
— быстрый и бесплатный замер окон — в течении суток.
— бесплатная доставка изделий в СПб на пятый рабочий день.
— только качественный монтаж, русские монтажники с большим опытом.
- Пластиковые окна с климат-контролем.
- Пластиковые окна или окна ПВХ.

- Выбрать качественную фурнитуру для пластиковых окон и дверей.
- Правильно выбрать пластиковое окно в СПб. Ошибки при выборе пластикового окна.
- Монтаж окна ПВХ. Что необходимо знать.
Пятикамерные пластиковые окна VEKA в Москве от компании «Системы ВЕКА»
- Главная
- Окна Veka
- Пятикамерные окна
Профильные системы с 5 камерами подходят для монтажа в регионах с экстремальными температурами — от -60°C до +60°C. Устойчивые и долговечные, их устанавливают в квартирах, домах, офисах с использованием профилей Euroline, Softline, Softline 82, Alphaline. Такие окна помогают благодаря высоким показателям теплозащиты экономить на энергоресурсах, сделать объект безопаснее и увеличить продолжительность эксплуатации окна.
5-камерные окна Veka Softline часто устанавливают в помещениях, где нет отопления, чтобы сократить теплопотери зимой, а также в домах с энергосберегающими технологиями жизнеобеспечения, альтернативными энергоисточниками. Такие системы используют, когда в помещении предполагается монтаж крупных панорамных окон.
Все характеристики
Класс
энергоэффективности
5
Количество камер
Сравнение
Цена: от 10500 Р
Рассчитать окноВызвать замерщика
Особенности и отличия
5-камерный профиль с глубиной монтажа 70 мм
А класс энергоэффективности профиля
Оптимальная теплоизоляция
Усиленная звукоизоляция
3 контура уплотнения
Хотя цены на пятикамерный профиль выше, чем на практичный трехкамерный, он превосходит конструкцию с 3 камерами по звукоизоляции и энергоэффективности. Стоит купить 5-камерные окна Veka в Москве, установить их, и можно забыть о звуках, прежде доносившихся с оживленной улицы мегаполиса.
5-камерный профиль с надежным однокамерным или двухкамерным стеклопакетом звуконепроницаем. Он разделен на 5 воздушных камер, которые эффективно изолируют звук и тепло. Такое изделие не замерзает в области петель, при очень низких температурах не покрывается инеем.
Профильная система с классическим дизайном сбалансирована по показателям шумоизоляции, теплотехническим характеристикам и светопропусканию. Зимой она полноценно защищает помещение от непогоды, ветра и холода. Широкий выбор ламинированных пленок дает возможность воплотить разнообразные дизайнерские идеи и гармонично сочетать окна с любым интерьером и экстерьером.
Галерея
prev next
Варианты ламинации
Махагон
Болотный дуб
Белый
Вишня Амаретто
Спектраль Антрацит
Бордовый
Пурпурный
Рубиновый
Алый
Болотный
Зелено-голубой
Изумрудный
Болотная зелень
Темно-синий
Вороново крыло
Кобальт
Синий ультрамарин
Брилиантово-синий
Темно-серый гл.
Серый сланец
Серый сланец гл.
Темная платина мет.
Базальт гл.
Кварц мет.
Матовый аллюм.
Светлая платина мет.
Серебристо-серый гл.
Папирус
Слоновая кость
Белая пленка
Кремовый
Желтый
Темно-коричневый
Коричневый
Темно-серый
Серый кварц
Базальт
Серебристо-серый
Агатово-серый
Темно-зеленый
Светло-серый
Дуб шеффилд кор.
Дуб шеффилд сер.
Дуб шеффилд св.
Черная вишня
Сиена россо
Дуб рустикальный
Горная сосна
Винчестер
Светлая пихта
Сиена ноче
Светлый дуб
Орех
Золотой дуб
Цвета ручек
Пластик белый
Титан
Бронза
Бронза темная
Серебро светлое
Серебро
Пластик коричневый
Латунь
Технические характеристики:
- ширина монтажа — 70 мм,
- коэффициент теплоизоляции — 0,77 м² °С/Вт,
- звукоизоляция — VDI 2719, шумозащита — от II до IV класса,
- взломозащита по нормативу DIN V ENV 1627—1630.

Преимущества пятикамерных ПВХ-окон Veka Softline
- Гладкий пластик высокого качества, стойкий к воздействию негативных факторов среды и не требующий специального ухода.
- Высокая стабильность изделия, перекос при эксплуатации минимален благодаря армирующим усилителям.
- Воздушная прослойка в виде 5 камер эффективно изолирует тепло и блокирует холод.
- Прочное уплотнение в 2 плоскостях надежно защищает от сквозняков, благодаря эластичности сохраняет свои функциональные качества на протяжении всего периода использования.
Характеристики
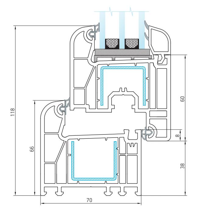
| Количество камер | 5 |
| Монтажная ширина, мм | 70 |
| Толщина стеклопакета, мм | от 4 до 42 |
| Сопротивление теплопередаче (с установленным армированием), м²С/Вт | 0,78 |
| Исполнение | белое, цветное |
| Цвет уплотнений | черный, серый, карамель |
| Ширина комбинации и рама-створка в световом проеме (типовой вариант) | 118 мм |
| Высота фальца, мм | 21 |
| Материал уплотнений АРТК | АРТК, силикон |
| Количество контуров уплотнения | 2 |
Калькулятор стоимости остекления пластиковыми окнами VEKA
Цены на окна VEKA под ключ (с учётом доставки и монтажа)»
Одностворчатое окно Euroline
6 804 P8505
Заказать Проконсультироваться
двухстворчатое окно с одной поворотной створкой Euroline
9 492 P11865
Заказать Проконсультироваться
двухстворчатое окно с одной поворотной и поворотно-откидной створкой Euroline
11 424 P14 280
Заказать Проконсультироваться
трехстворчатое окно с поворотной створкой Euroline
13 272 P16590
Заказать Проконсультироваться
трехстворчатое окно с одной поворотной и поворотно-откидной створкой Euroline
15 203 P19005
Заказать Проконсультироваться
одностворчатое окно с поворотно-откидной и фрамугой Euroline
7 979 P9975
Заказать Проконсультироваться
двухстворчатое окно с фрамугой с поворотной створкой Euroline
9 828 P16485
Заказать Проконсультироваться
двухстворчатое окно с фрамугой и поворотно и поворотно-откидной створкой Euroline
15 707 P19635
Заказать Проконсультироваться
трехстворчатое окно с одной поворотной и поворотно-откидной створкой Euroline 1900х1950
16 632 P20790
Заказать Проконсультироваться
трехстворчатое окно с двумя поворотными и поворотно-откидными створкамиEuroline 1900х1950
18 900 P23625
Заказать Проконсультироваться
угловое двухстворчатое окно с одной поворотной и поворотно-откидной створкой Euroline
13 104 P13104
Заказать Проконсультироваться
угловое двухстворчатое окно с двумя поворотными и поворотно-откидными створками Euroline
15 203 P19005
Заказать Проконсультироваться
трехстворчатое окно с двумя поворотными и поворотно-откидными створками Euroline 3000х1420
23 156 P29819
Заказать Проконсультироваться
четырехстворчатое окно с двумя поворотными и поворотно-откидными створками Euroline
21 084 P26355
Заказать Проконсультироваться
трехстворчатое окно с одной поворотной створкой и Euroline 2700х1420
22 512 P28140
Заказать Проконсультироваться
трехстворчатое окно с двумя поворотными и одной поворотно-откидными створками Euroline 2700х1420
25 130 P31394
Заказать Проконсультироваться
четырехстворчатое окно с двумя поворотными и одной поворотно-откидной створкой Euroline 3000х1420
26 628 P33285
Заказать Проконсультироваться
пятистворчатое окно с двумя поворотными и одной поворотно-откидной створкой Euroline
31 835 P39795
Заказать Проконсультироваться
четырехстворчатое окно с двумя поворотными и одной поворотно-откидной створкой Euroline 2800х1500
23 352 P29189
Заказать Проконсультироваться
пятистворчатое окно с двумя поворотными и одной поворотно-откидной створкой Euroline 3000х1500
28 224 P35280
Заказать Проконсультироваться
шестистворчатое окно с двумя поворотными и одной поворотно-откидной створкой Euroline 3300х1500
27 216 P34020
Заказать Проконсультироваться
Смотреть все
Бесплатный вызов замерщика
Почему 5-ти камерный профиль VEKA Softline?
Бесплатный
замер
Изготовление
за 7 дней
Минимальные
сроки доставки
Монтаж
по ГОСТу
Минимальные
цены в Москве
Вековая
гарантия
Читать все
Отзывы об окнах VEKA
Рекомендую — 100% эту компанию.
Остекление лоджии. Все идеально от начала до конца. Цена приятно удивила. Имея очень плохой опыт с другой компанией ждала установки с опаской. Доставили и установили все в срок как и оговаривали. Все сделано качественно. За собой убрали. Я в приятном шоке. Буду обращаться!
Ирина
10.03.2019 / г. Москва
Делали теплое остекление балкона в квартире — ребята сделали все качественно и довольно быстро, никаких претензий. Работники опрятные, вежливые. Сами обратились в компанию по рекомендации друга. Если нужно будет сделать что-то еще, то пойдем проверенным путем)
Михаил
10.02.2019 / Москва
Большое Спасибо за качественную доставку и отличный монтаж Буду всегда обращаться в вашу компанию.
Павел
09.19.2019 /
Окна 5 камерные rehau. Пятикамерный профиль
5-камерная система с монтажной глубиной 70 мм и 2 контурами уплотнения
Окна REHAU BRILLANT-DESIGN предназначены для частого использования и относятся к категории систем премиум-класса.
Отличные эстетические и технические характеристики этих профилей удовлетворят самые высокие требования. Чаще всего их используют при строительстве коттеджей и городских квартир в многоэтажных домах.
Оконная система REHAU BRILLANT-DESIGN – это симбиоз инновационных идей, эксклюзивных дизайнерских решений и комфорта использования. Такие окна привнесут в любой дом идеальный уют и тепло, поднимут красоту домашнего интерьера на высший уровень.
Профиль этого окна REHAU сочетает в себе все многообразие современного дизайна и выдающуюся теплоизоляцию. Добиться таких показателей сохранения тепла позволила герметизация крыльца. Лаконичный, элегантный и очень красивый внешний вид, гладкая блестящая поверхность, фаски и закругленные штапики дополняются широким спектром предлагаемых цветовых решений профиля.
Разрешено оконным конструкциям из ПВХ стать наиболее востребованными как на внутреннем, так и на внешнем рынке. Производители постоянно совершенствуют свою продукцию, улучшая ее звуко- и теплоизоляционные возможности.
Одна из последних новинок — пятикамерный профиль. Такие системы обладают высочайшей производительностью и превосходят двух- и трехкамерные аналоги. Каковы их особенности? Есть ли у таких конструкций недостатки? Об этом мы поговорим в нашей статье.
Особенности окон ПВХ с 5 камерами
Говоря о пятикамерном профиле, нужно четко понимать, что такое камера. В данном случае речь идет о пустых секциях, расположенных в оконной структуре. Воздух внутри каждой камеры препятствует проникновению холода в помещение, а значит, тепло сохраняется намного эффективнее.
Основное отличие пятикамерных систем заключается в том, что с оконных петель снимается металлическая арматура, что препятствует проникновению холодных потоков воздуха в наиболее уязвимые места конструкции.
Если мы посмотрим на пятикамерный профиль в разрезе, то увидим, что он состоит из 5 секций. Центральный отсек дополнен металлическим профилем, который является усиливающим элементом. С обеих сторон есть еще две полые секции.
Они не позволяют теплу уходить за пределы помещения, а холодным воздушным потокам проникать внутрь.
Особенности конструкции
Высокая прочность пятикамерных пластиковых окон позволяет использовать такие системы в тех местах, где требуется надежная защита от взлома. Профиль пригоден для эксплуатации в диапазоне температур от -60 до +60 градусов. При этом производители гарантируют безупречную 40-летнюю службу своей продукции.
Пятикамерный профиль пластикового окна – это возможность сделать свой дом тихим и теплым, но прежде чем выбирать такие системы, обратите внимание на их параметры. Стандартные варианты характеризуются следующими показателями:
- количество воздушных камер — 5 шт.;
- толщина внутренних перегородок — 3 мм;
- толщина самого стеклопакета 42 мм;
- толщина пластикового профиля — 70 мм;
- система армирования блоков — закрытого типа.
Эти значения важны в тех случаях, когда нужно точно рассчитать нагрузку, которую система ПВХ будет оказывать на проем.
В большинстве случаев это касается ветхих зданий.
Чем 5-камерный профиль отличается от 3-камерного?
Выбирая между трехкамерным и пятикамерным профилем ПВХ, следует понимать, что основное назначение окон второго типа – максимальное сохранение тепла. Такие конструкции отлично подходят для установки в районах, где большую часть года преобладают низкие температуры. В центральной части России вполне достаточно систем с тремя камерами.
Также нужно учитывать повышенные параметры блока с 5 камерами. Если система с тройным профилем имеет ширину 60 мм, то рассматриваемый нами вариант шире на 10 мм. Если вы решили отдать предпочтение именно такой конструкции, обратите внимание на параметры вашего оконного проема. Иногда установка широких систем просто невозможна.
Сравнение технических характеристик
При выборе трехкамерного или пятикамерного профиля обратите внимание на технические характеристики обеих систем. Основное их отличие заключается в различии коэффициентов сохранения тепла.
Для агрегатов с тремя камерами этот показатель варьируется от 0,6 до 0,65 м 2 /кВт, а для аналогичных систем с 5 камерами — от 0,75 до 0,8 м 2 /кВт.
Кроме того, продвинутые системы с большим количеством камер отличаются надежной защитой от проникновения в помещение посторонних звуков. Для блоков с трехкамерным профилем этот показатель ниже на 30%.
ПВХ-системы также различаются по прочности. Пятикамерные разновидности гораздо надежнее, выдерживают значительные физические нагрузки. Однако следует учитывать, что наряду с высокой прочностью такие конструкции приобрели дополнительный вес. В каркасных зданиях их устанавливать не рекомендуется.
Разнообразие систем с 5 камерами
В ПВХ конструкциях с пятикамерным профилем применяется несколько видов стеклопакетов. А именно:
- однокамерные разновидности;
- двухкамерные варианты;
- трехкамерные виды.
Выбранный вариант остекления напрямую влияет на тепло- и звукоизоляционные возможности системы.
Общий вес блока тоже меняется.
Итак, однокамерный вариант состоит из двух стекол толщиной 4 мм, между которыми имеется газовая или воздушная прослойка. Общая ширина этой разновидности составляет 24 мм. Это самый бюджетный вариант с невысокими функциональными показателями.
Пятикамерный профиль со стеклопакетом состоит из трех слоев (4 мм). Такая конструкция способна обеспечить высокую степень защиты от холода и шума. Такие системы обычно устанавливаются в жилых помещениях.
Трехкамерные варианты остекления состоят из 4 слоев. При этом толщина стекла может быть увеличена до 6 мм. Эти сорта идеально подходят для использования в суровых климатических условиях.
дополнительные характеристики
Пятикамерный оконный профиль может иметь дополнительные характеристики. Сюда входит высокая степень шумоизоляции, энергосбережение, защита от взлома и ультрафиолетовых лучей.
Способность экономить энергию систем приобретается за счет использования специальных очков.
Защита от ультрафиолета достигается за счет нанесения на стекло специальной тонирующей пленки, а устойчивость к механическим воздействиям – благодаря антивандальному покрытию.
Есть варианты с гнутым и декорированным стеклом, но они редко встречаются на рынке и чаще изготавливаются на заказ.
Какой профиль выбрать: однокамерный или трехкамерный?
Пятикамерные системы по всем параметрам превосходят аналоги с тремя секциями, но их установка не всегда целесообразна. Во-первых, такие конструкции достаточно тяжелые, а во-вторых, их ценник на 18-20% выше стоимости стандартных изделий с тремя камерами. Так какой сорт купить?
При выборе оконного блока ориентируйтесь на природные условия вашего населенного пункта и специфику окружающей среды. Если климат близок к суровому, а за окном шумная дорога, то варианты с 5 камерами вам подойдут как нельзя лучше. .
Для эксплуатации при средних температурах (до -25 градусов) вполне подходят трехкамерные системы.
Если нет необходимости в улучшенной звукоизоляции агрегата, предпочтительнее стандартные варианты.
Подведение итогов
При выборе оконных систем большую роль всегда играет стоимость. Ценник зависит от возможностей системы и от производителя. Например, пятикамерный профиль Рехау с базовыми характеристиками будет иметь ценник в 6000 рублей за стандартное двустворчатое окно. При этом изделия с тройным профилем можно приобрести за 3000-4500 рублей.
Если вы хотите установить блок с максимальной энергоэффективностью и защитой от ультрафиолета, будьте готовы заплатить на 20% больше. Максимальный ценник имеют разновидности с антивандальным покрытием и декоративной обработкой. Конструкции с нестандартными параметрами также могут стоить на порядок дороже.
Также можно приобрести более дешевые варианты китайских производителей, однако качество и долговечность такой продукции остается под вопросом.
Защищая позиции на высококонкурентном рынке оконных ПВХ-профилей, компания Rehau обновила свою продуктовую линейку.
Пластиковые окна Rehau традиционно славятся своим качественным профилем. Одна из самых интересных новинок этого популярного европейского бренда. Окна Rehau Grazio уже покорили потребителей своей красотой, изяществом и эргономичностью. Новая профильная система конструктивно отличается от других профилей этой компании и заслуживает внимания.
Пример стоимости Rehau Grazio в московской компании
| из 8 500 руб | из 13 500 руб | из 20 500 руб | из 17 200 руб |
Узнать стоимость окон Rehau Grazio в компании Завод ПВХ окон
(Только для жителей Москвы и Московской области), отправить заявку на расчет стоимости:
Отличие профиля Grazio от других профильных систем Rehau
Новинка в линейке Rehau, Rehau Grazio, выделяется не только своим изящным названием.
Профиль привлекает своим особым утонченным внешним видом. При установочной глубине 70 мм и 5 внутренних камерах рама и створка Rehau Grazia «занижены» по сравнению с соседями по линейке.
Другими словами, створки профиля уже обычных окон, за счет этого стекло занимает большую площадь от окна, пропуская больше света.
Этот нюанс придает готовому окну привлекательный внешний вид. Светопрозрачная конструкция имеет больший световой проем за счет нетрадиционной геометрии профилей, при этом ее теплозащитные свойства остаются на высоком уровне.
В протоколе испытаний, который является обязательным для любого производителя ПВХ-профиля, указано, что энергосберегающие окна Rehau (система Grazio) рекомендованы к установке в климатических зонах со средней температурой зимнего периода до -40 °С. энергосберегающие окна в условиях сурового климата для максимального выполнения своей теплозащитной роли профиль необходимо дополнить 2-х камерным теплоизоляционным блоком или стеклопакетом толщиной не менее 40 мм с многофункциональное низкоэмиссионное стекло.
Ознакомиться с новым профилем и его описанием можно у официального представителя Rehau в России на одноименном русскоязычном портале или у переработчиков — производителей светопрозрачных конструкций.
Сравнение Rehau Grazio и Delight
Цена системы на 10-15% привлекательнее 5-ти камерной. Эти две линейки часто сравнивают между собой, считая Gracio визуально более похожим на Delight.
Но производитель в своей логике все же настаивает: новый профиль внешне и конструктивно напоминает Восторг количеством камер, глубиной установки и «опущенной» (более узкой) заслонкой, однако все же ближе к вынесенной тиража. Правда, он лучше защищает от теплопотерь (у него выше коэффициент сопротивления теплопередаче) и выше по классу звукоизоляции.
В таблице ниже представлено сравнение основных характеристик:
*104 мм лучше 109 мм, так как площадь рамы и створки (непрозрачной части окна) меньше.
Технические характеристики
Если рассматривать геометрические и технические характеристики профиля Rehau Grazio, то монтажная ширина (толщина профиля) 70 мм – далеко не единственное его преимущество.
Основные параметры этой системы:
- толщина заполнения — от 10 до 41 мм;
- количество внутренних камер рамы, створки, импоста — 5;
- 2-контурный фальцевой уплотнитель;
- класс звукоизоляции по ГОСТ 23166-99 — Б;
- класс герметичности по ГОСТ 23166-99 — А;
- класс водонепроницаемости по ГОСТ 23166-99 — А;
- коэффициент сопротивления теплопередаче — 0,85 м2оС/Вт;
- наружная толщина наружной стенки — 2,8 мм;
- высота створки с нахлестом на раму — 104 мм.
Такие технические характеристики позволяют изготавливать конструкции с выгодным разным светопропусканием. Это делает эту систему незаменимой при изготовлении изделий в небольших оконных проемах и в тех помещениях, где особенно важно обеспечить много света без потерь тепла при эксплуатации до 60 лет.
Технологические новинки коснулись и уплотнителя крыльца, который выполнен из сотовой резины и обладает отличными уплотняющими свойствами.
Утонченная красота новой профильной системы, ее закругленные углы, скошенные поверхности, белоснежный глянцевый цвет открывают широкие возможности для дизайнеров интерьеров и архитекторов, проектирующих оконные проемы.
Несмотря на более низкую створку и раму, чем у других систем, Grazio можно использовать для изготовления как окон и дверей традиционной прямоугольной формы, так и для арочных или трапециевидных изделий.
Белый профиль Грацио можно смело ламинировать специальным устойчивым к УФ и атмосферным осадкам. Также его можно красить порошковой краской в любой тон, а при выборе шпаклевки толщиной 32 мм ставить фигурные закругленные штапики Это. Эта возможность расширяет портфолио интерьерных решений и делает профиль находкой для всех, кто предпочитает необычное привычному.
Отзывы и средняя стоимость
Любая новинка оконного рынка воспринимается потребителем настороженно. Люди по инерции доверяют громким брендам и маркам.
Пластиковые окна Rehau традиционно популярны на рынке, но заказчики оконных компаний привыкли к старым названиям – «Сиб Дизайн», «Восторг». Несмотря на эту тенденцию, инновационный Rehau Grazio с глубиной 70 мм и количеством внутренних камер завоевал рынок на старте продаж.
| Тип позиции | Цена за штуку | Цена за м2. |
| Одностворчатое окно | 8 500 руб | 6700 |
| 2 — складной | 13 400 руб | 7500 |
| 3 — складной | 20 000 руб. | 7100 |
| Балконный блок | 17 000 руб. | 6000 |
Окна Grazio заменили окна. Замена получилась красивой и практичной. В отличие от своего 3-камерного предшественника, новая профильная система 5-камерная. Площадь остекления оконной рамы, как и створки, за счет опущенного профиля получается увеличенной, а значит, такое окно пропускает больше света.
Полное армирование нижним профилем придает изделиям прочность и хорошо держит геометрию.
Оригинальная конструкция рамы и створки имеет характерные только для этого профиля скошенные поверхности. 55 мм и 63 – рама такой высоты выгодно выделяет окно системы Grazio в линейке Rehau. Второй типоразмер рекомендован в официальном каталоге производителя для изготовления конструкций значительных габаритов или для изделий, которые будут эксплуатироваться в условиях повышенной ветровой нагрузки. Эта особенность придает полупрозрачной конструкции благородную легкость.
О самих профилях марки Rehau мы уже писали. Данную статью мы посвятили сравнительным характеристикам оконных профилей Rehau.
Этот профиль из серии малобюджетных, но это не мешает ему иметь хорошие теплотехнические и функциональные параметры. Профиль BLITZ имеет ровный и гладкий верх рамы и изогнутый фальц створки, препятствующий скоплению грязи и влаги.
Основные характеристики:
- системная глубина — 60 мм.

- количество камер — 3 камеры.
- теплоизоляция — Roпр = 0,63м2°С/Вт.
REHAU EURO-Design
Профиль недорогой, но по сравнению с REHAU BLITZ имеет лучшую теплоизоляцию. Профиль отличается отличными показателями по надежности, долговечности, звуко- и теплоизоляции.
Основные характеристики:
- Глубина системы — 60 мм.
- количество камер — 3 камеры.
- Теплоизоляция — Ropr. = 0,64м2°С/Вт.
- усиленные запорные устройства для повышенной взломостойкости
- два независимых уплотнительных контура для водо- и воздухонепроницаемости
- большой выбор декоративных пленок для отделки под разные породы дерева
REHAU SIB-Design
REHAU Sib-Design специально разработан для российского рынка. Наиболее важными преимуществами являются комфорт и теплоизоляция. Дополнительная камера между внутренней и армирующей стенкой профиля сохраняет тепло. Возможна установка более толстого стеклопакета толщиной до 41 мм.
Основные характеристики:
- Системная глубина — 70 мм.
- количество камер — 3 камеры.
- теплоизоляция — Roпр = 0,71 м2°С/Вт.
- усиленные запорные устройства для повышенной защиты от взлома
- два независимых контура уплотнения для водонепроницаемости и воздухонепроницаемости
REHAU BRILLANT-Design
Профиль BRILLANT-Design относится к премиум-сегменту и обладает повышенной тепло- и звукоизоляцией.
Основные характеристики:
- системная глубина — 70 (80) мм.
- Количество камер — 5 (6) камер.
- толщина стеклопакета — до 41 мм.
- теплоизоляция — Roпр = 0,79 м2°С/Вт.
- усиленные запорные устройства для повышенной защиты от взлома
- два независимых контура уплотнения для водонепроницаемости и воздухонепроницаемости
- можно выбрать закругления, фаски на коробках и
REHAU GENEO
Уникальная система энергосбережения нового поколения с использованием волокнистых композитных материалов обеспечивает очень высокую теплоизоляцию.
Благодаря материалу РАУ-ФИПРО, заменяющему стальные армирующие элементы, вес окна значительно меньше.
Основные характеристики:
- Системная глубина — 86 мм.
- количество камер — 6 камер.
- толщина стеклопакета — до 44 мм.
- теплоизоляция — Roпр = 1,05 м2°С/Вт.
- звукоизоляция — 47 дБ(А), с остеклением 50 дБ(А)
- защита от взлома — выше класса 2.
- экономия энергозатрат до 76% .
- усиленные запорные устройства для повышенной защиты от взлома
- два независимых контура уплотнения для водонепроницаемости и герметичности
- ограничитель конвекции
- умный комфорт
Сравнительная таблица характеристик
| Характеристика | Марка профиля | |||||
| Blitz | Basic-Design | Euro-Design | SIB-Design | Brilliant-Design | GENEO® | |
| Монтажная ширина, мм | 60 | 60 | 60 | 70 | 70 | 86 |
| Количество камер — рамы | 3 | 3 | 3 | 3 | 5 | 6 |
| Сопротивление теплопередаче*, (м2С/Вт) x1000 | 630 | 630 | 640 | 710 | 790 | 1050 |
| Толщина стеклопакета до, мм | 33 | 32 | 32 | 41 | 41 | 54 |
| Ширина рамы — створки мансардного окна, мм | 120 | 116 | 124 | 120 | 120 | 115 |
Звукоизоляция. Класс защиты от шума, до | 4 | 4 | 4 | 4 | 5 | 5 |
Пластиковые окна Rehau (Рехау) разработаны специально для нашей страны, с ее перепадами температур. Стеклопакеты этой марки имеют хорошую звукоизоляцию, вентиляцию, защиту от взлома, стильный дизайн и, конечно же, доступные цены.
В линейку моделей профиля Rehau входят 3-х, 4-х и 5-ти камерные изделия. Среди последних выделяют две основные модификации:
Rehau Delight;
Рехау Бриллиант.
Общие параметры
5-камерный профиль Rehau отличается повышенной прочностью, так как стенки камер усилены. Глубина камеры 70 мм. Показатели теплосбережения и звукоизоляции максимально возможны благодаря двухконтурному уплотнению. С ними не только дождь и ветер не будут беспокоить жильцов, но и нивелируется возможность попадания пыли.
Еще одной особенностью этих пятикамерных Rehau является повышенная безопасность от нарушения целостности конструкции и систем фурнитуры.
Отличия профилей Delight от Brilliant
Основное отличие 5-ти камерного Rehau заключается в его конструкции. Более дорогой Brilliant имеет плавные линии и поддается разнообразной стилизации по цвету, фактуре, тонировке.
А Делайт, за счет округлости углов, позволяет значительно увеличить поступление света в помещение. В комплект входят специальные накладки в качестве декора. Этот профиль также подвержен ламинированию.
Но главное при выборе профиля не технические или стилистические параметры, а то, что 5 камерные изделия Rehau самые прочные и долговечные среди всех оконных систем.
Чемберс Глобал | Chambers and Partners
Руководства. Основные моменты
Обзоры независимости
РУКОВОДСТВО НА РЕСУРСЕ
Руководство для руководства
. решение не проводить исследования по России и Беларуси в этом году.
Мы пересмотрим это решение для издания 2024 г., исследование которого начнется в марте 2023 г.По любым вопросам обращайтесь напрямую к директору по исследованиям в регионе EMEA Марлен Херманн или глобальному руководителю отдела исследований: International Capabilities Robinson Redmond.
Обновлено 5 мая 2022 г.
The Chambers Global Guide оценивает лучших юристов и юридические фирмы в более чем 200 юрисдикциях по всему миру.
Наш рейтинг основан на тщательном исследовании нашей преданной и опытной команды исследователей. Пожалуйста, посетите нашу страницу методологии, если вы хотите узнать больше о том, что влечет за собой наш процесс исследования и подачи заявок, и как именно этот уникальный анализ юридического рынка позволяет Chambers Global предоставлять лидирующее на рынке освещение и анализ ведущих специалистов в области права. .
Chambers Global предоставляет надежные рекомендации, чтобы клиенты юридической фирмы могли принять обоснованное решение при покупке юридических услуг по всем юридическим вопросам.
Веб-семинар Chambers Global 2022
Во время этой сессии руководитель глобального отдела исследований Робинсон Редмонд, директор по исследованиям в регионе EMEA Марлен Херманн и менеджеры по исследованиям в регионе EMEA Эд Дрейпер, Лоуренс Массетт и Олли Димсдейл обсуждают основные результаты своего исследования в этом году, текущие тенденции на рынке , и захватывающее расширение их охвата по всему миру.
смотреть по запросуПокрытие справочника
Наше углубленное исследование проводится с марта по октябрь. Помимо охвата многих областей права в ключевых юрисдикциях по всему миру, Global Guide также включает рейтинги на региональном и глобальном уровнях. При содействии нашей команды опытных исследователей мы также отмечаем фирмы, которые лучше всего подходят для выполнения сложных международных задач, в нашей специальной таблице «Международные и трансграничные возможности».
Глобальный рейтинг Chambers
11 809
Рейтинги отделов или рейтинги организации
19,061
Индивидуальный рейтинг адвокатов
1 822
Newly Ranks Asshiers
7515 1,4329 9000 2-й Ranks Assireds1,432
9 9000 2-й Ranks Assireds1,432
9 9000 9000 9000 2-й.
-tablesВ этом году в руководство Chambers Global было добавлено невероятное количество новых областей практики в различных юрисдикциях, включая Бахрейн, страны Карибского бассейна, Израиль, Саудовскую Аравию, региональные таблицы.
В новых национальных таблицах больше внимания уделяется трансграничным возможностям, включая международные фирмы в Израиле и ведущих экспертов за границей с упором на трудовое право в Саудовской Аравии. Международные и трансграничные возможности расширили свое покрытие, включив в него Южную Африку и Аргентину. Эти новые таблицы являются результатом бесчисленных часов исследовательских интервью и оценок отдельных рынков в ходе исследовательского цикла.
Если вы хотите предложить место для практики, свяжитесь с Робинсоном или Марлен по адресу [email protected].
Бахрейн
Недвижимость и строительство
Весь Карибский бассейн
Корпоративный/коммерческий сектор
Израиль
Корпоративное право/слияния и поглощения: международные фирмы Лидеры рынка и глобальные: категории для нескольких юрисдикций
Таблицы рейтинга новых международных и трансграничных возможностей
для Южной Африки и Аргентины
Chambers International Capabilities Quadrants
Издание Chambers Global за 2022 год также предоставляет клиентам юридических фирм уникальную информацию о ведущих юридических фирмах, которые продемонстрировали превосходство в своих услугах по юридическим вопросам работы в нескольких юрисдикциях.
Наряду с традиционными юридическими рейтингами Chambers Global, Квадранты международных возможностей предлагают наглядное представление рекомендаций Chambers в отношении юридических фирм, которые лучше всего подходят для консультирования клиентов по сложным вопросам и юридическим делам.
Наши квадранты и рейтинги международных возможностей можно посмотреть здесь.
Chambers Global Reach Index
Новое для Chambers Global 2022, Global Reach Index представляет собой новый набор аналитических и аналитических данных, выделяющих юридические фирмы, которые оцениваются в нескольких ключевых юрисдикциях в таких областях практики, как рынки капитала, корпоративные слияния и поглощения, споры. , ТМТ и многое другое.
Посетите страницу Global Reach Index здесь.
Юридические темы для Chambers Global
Познакомьтесь с редакцией Chambers Global
Познакомьтесь с редакцией справочника Chambers Global и разделами, которые курирует каждый редактор.
Визуализация сети юридических фирм для Chambers Global 2022
Узнайте о размере, силе и широте ведущих и элитных сетей юридических фирм, включенных в рейтинг Chambers Global.
Введение в исследование и рейтинги международных и трансграничных возможностей
Чем исследование международных и трансграничных возможностей отличается от других областей охвата палат? Прочтите, чтобы узнать о нашем подходе к освещению трансграничной юрисдикционной деятельности, отраслевых рейтингах и расширенном охвате в Южной Африке и Аргентине.
Статистика рейтинга лучших юридических фирм в разделах «Международные и трансграничные возможности»
Узнайте, какие юридические фирмы имеют наибольшее количество рейтингов отделов в разделе «Международные и трансграничные возможности» издания Chambers Global за 2022 год.
Анализ рынка нового поколения юристов на Ближнем Востоке
Глобальная команда Chambers анализирует тенденции молодых юристов и юристов в Египте и ОАЭ.
Наши данные бизнес-аналитики показывают рекордный период в Египте и значительный рост Associates to Watch на наиболее развитом рынке ОАЭ. Читать далее.
Chambers Global Заявление D&I за 2022 г.
Узнайте, как команда Chambers Global способствовала удовлетворению потребности в разнообразном и всеохватном рынке юридических услуг, предоставив материалы для издания руководства 2022 г. и некоторые ключевые статистические данные D&I из него.
Рыночное понимание гендерного равенства в юридической профессии на Ближнем Востоке
В этой юридической статье мы рассматриваем процент разнообразия в рейтингах на основе данных, собранных с помощью инструмента бизнес-аналитики Chambers. Узнайте больше о том, какие шаги мы предпринимаем, чтобы продвигать потребность в разнообразном и инклюзивном юридическом сообществе.
Новые разделы глобального справочника Chambers за 2022 год
В рамках приверженности Chambers Global изучению и ранжированию новых и формирующихся юридических рынков издание справочника и юридических рейтингов 2022 года будет включать множество новых разделов.
Исследование того, чего на самом деле хотят ГК от юридических фирм
Каковы наиболее важные факторы и соображения для ГК при поиске лучших юридических фирм? Команда Chambers Global делится своими выводами после общения с более чем 700 профессионалами по всему миру.
Определение Ближнего Востока для представлений и рейтингов
Узнайте, как Chambers Global определяет страны, рассматриваемые для рейтингов в охвате Ближнего Востока и анализе юридического рынка стран Персидского залива.
Функция Chambers Global в рейтинге BD Ladder Round-up
В недавнем обзоре BD был отмечен Робинсон Редмонд, редактор отдела глобальных и международных возможностей Chambers.
Как ваша фирма может занять место в рейтинге Chambers Global
В недавнем интервью The Impact Lawyers Робинсон Редмонд, редактор Chambers Global: International Capabilities, рассказал о том, как фирмы могут занять место в рейтинге.
Пятилетнее увеличение числа клиентов-арбитров для Африки
С 2017 года количество клиентов-арбитров для раздела Африки в справочнике Chambers Global значительно увеличилось.
Прочитайте сейчас и узнайте, в каких странах наблюдается наибольший рост.
Познакомьтесь с командой исследователей и редакторов
Марлен Херманн
Директор по исследованиям в регионе EMEA
Связаться с МарленРобинсон Редмонд
Глобальный руководитель отдела исследований: международные возможности
Связаться с РобинсонOllie Dimsdale
Менеджер по исследованиям в регионе EMEA: Ближний Восток и Северная Африка: Объединенные Арабские Эмираты, Саудовская Аравия, Оман, Катар, Иордания, Иран, Ирак, Кувейт, Бахрейн, Ливан, Палестина, Йемен, Алжир, Египет, Ливия, Сирия, Тунис, Марокко Оффшор Карибского бассейна: Каймановы острова, Бермудские острова, Британские Виргинские острова
Связаться с ОллиЭд Дрейпер
Менеджер по исследованиям в регионе EMEA: Африка: вся Африка, Ботсвана, Гайана, Нигерия, Эсватини, Лесото, Намибия, Южная Африка, Маврикий, Кения , Уганда, Танзания, Сент-Китс и Невис, Замбия, Зимбабве, Либерия Карибы: Гаити, Багамы, Ямайка, Голландские Карибы, Сент-Китс и Невис, Сент-Люсия, Сент-Винсент и Гренадины, Ангилья, Антигуа и Барбуда, Барбадос, Доминика , Фолклендские острова, Тринидад и Тобаго, Теркс и Кайкос, Виргинские острова США
Contact EdCharline Thiebault
Менеджер по исследованиям в регионе EMEA: Алжир, Бенин, Буркина-Фасо, Бурунди, Камерун, Центральноафриканская Республика, Чад, Коморские Острова, Джибути, ДРК, Эритрея, Эфиопия, Гана, Кот-д’Ивуар, Габон, Гамбия, Гвинея , Мадагаскар, Малави, Мальдивы, Мали, Мавритания, Нигер, Республика Конго, Реюньон, Руанда, Сенегал, Сейшельские острова, Сомали, Того, Тунис.
Laurence Mussett
Менеджер по исследованиям в регионе EMEA: Израиль
Связаться с LaurenceGeorge Murray
Старший научный сотрудник Global: International Capabilities
Contact GeorgeJayda Etienne
Global Research Analyst: International Capabilities
Contact JaydaЭлектронное издание Chambers Global 2022 доступно для скачивания.
Найдите лучших юристов и юридические фирмы по всему миру в 2022 году в нашем электронном издании, которое теперь доступно для загрузки по главам.
Скачать
Избранные подробные обзоры
ЮРИСДИКЦИЯ
НИГЕРИЯ: Введение
За последний год нигерийские юристы стали свидетелями ряда значительных событий. Это…
By Sofunde, Osakwe, Ogundipe & Belgore
ЮРИСДИКЦИЯ
ОБЪЕДИНЕННЫЕ АРАБСКИЕ ЭМИРАТЫ: Введение
ОАЭ — страна, расположенная в Персидском заливе, которая пережила значительный и беспрецедентный рост,.
..
By Horizons & Co Law Firm
ОБЛАСТЬ ПРАКТИКИ
КАНАДА: введение в иммиграцию
Правительство Канады внедрило ведущее ведущее мышление и инновационную иммиграционную политику …
от Greenberg Hameed PC
Обзоры независимости
Jurisdiction
Bolivia: введение
.
By Kouengoua & Mbattang
ЮРИСДИКЦИЯ
КИТАЙ (ФИРМЫ КНР): Введение
By East & Concord Partners
JURISDICTION
DUTCH CARIBBEAN: An Introduction
By VANEPS
JURISDICTION
ECUADOR: An Introduction
By Pérez Bustamante & Ponce
JURISDICTION
GIBRALTAR: An Introduction
By Hassans
JURISDICTION
ISRAEL: An Введение
By Barnea Jaffa Lande & Co
ЮРИСДИКЦИЯ
КЕНИЯ: введение
By Walker Kontos
ЮРИСДИКЦИЯ
МАВРИКИЙ: Введение
Автор: BLC Robert & Associates
Загрузить еще
Ресурсы руководства
Chambers Global 2023 Процесс подачи заявок руководство.
Просмотреть сейчасChambers Global Q&A
Послушайте наши вопросы и ответы Chambers Global с Робинсоном Редмондом и Джоанной Лейн, чтобы узнать больше о Chambers Global 2020.
СлушатьОкно Rehau 5 камер. Сравнение профилей марки REHAU (Рехо). Какой профиль выбрать: однокамерный или трехкамерный
5-камерная система с монтажной глубиной профиля 70 мм и 2-мя контурами уплотнителя
Система оконных профилей Delight-Design — новая разработка Rehau, воплотивший в себе самые современные тенденции в архитектуре и дизайне. Дело в том, что эта профильная система дает своим владельцам:
Больше света. Благодаря ноу-хау технического решения Профильная система Delight-Design отличается уменьшенной высотой рамы и створки, благодаря чему в помещение попадает на 10% больше солнечного света по сравнению с традиционными системами. По свидетельству биохимических лабораторных опытов, яркий солнечный свет как нельзя лучше способствует образованию серотонина – «гормона счастья», отвечающего за стрессоустойчивость и эмоциональную устойчивость.
И солнечный свет в наши дома падает через окна. Это значит, что с окнами из профильной системы ДЕЛАЙТ-ДИЗАЙН вы получите не только больше света, но и больше хорошего настроения и самочувствия!
Больше тепла. Увеличение площади светопрозрачного заполнения оконной конструкции Delight-Design никоим образом на нее не влияет. теплотехнические характеристики: глубина 70 мм, пятицепная конструкция и возможность установки стекол толщиной до 41 мм – все эти факторы позволят надежно удерживать тепло там, где оно действительно должно быть, а именно внутри дома!
Больше выбора. Два варианта исполнения створки Delight-Design позволяют максимально полно удовлетворить потребности заказчика как на объектном, так и на частном рынке. Вы можете выбрать как базовый, так и фигурный вариант. Основная створка имеет классический вид, поэтому подходит для любого современного интерьера. Фигурная — станет настоящей находкой для ценителей эксклюзивного дизайна. Его неоспоримыми достоинствами являются благородные пропорции и округлость форм.
Больше возможностей для импровизации дает изящный рельеф декоративного степпера.
Мы уже писали о профилях бренда Rumau. Данную статью мы посвятили сравнительной характеристике оконных профилей Rehau.
Этот профиль из серии малобюджетных, но это не мешает ему обладать хорошими тепловыми и функциональными параметрами. Профиль Blitz ровный и ровный, верх рамы и загнутые створки створки, что препятствует скоплению грязи и влаги.
Основные характеристики:
- Глубина системы — 60 мм.
- количество камер — 3 камеры.
- Теплоизоляция — Roпр = 0,63м2°С/Вт.
REHAU EURO-DESIGN
Профиль малобюджетный, но по сравнению с Rehau Blitz имеет лучшую теплоизоляцию. Профиль имеет свои отличные показатели по надежности, долговечности, звукоизоляции и теплоизоляции.
Основные характеристики:
- Глубина системы — 60 мм.
- количество камер — 3 камеры.
- Теплоизоляция — Ropp. = 0,64м2°С/Вт.
- усиленные запорные устройства Для высокого хруста
- два независимых контурных уплотнения, обеспечивающих водонепроницаемость и герметичность
- большой выбор декоративных пленок для декорирования под различные породы дерева
REHAU SIB-DESIGN
REHAU SIB-Design разработан специально для российского рынка.
Важнейшими преимуществами являются комфорт и теплоизоляция. Дополнительная камера Между внутренней и армирующей стенкой профиля сохраняет тепло. Возможна установка более толстого стекла толщиной до 41 мм.
Основные характеристики:
- Системная глубина — 70 мм.
- количество камер — 3 камеры.
- Теплоизоляция — Roпр = 0,71 м2°С/Вт.
- Напряженные запорные устройства для высокой трещиностойкости
- Два независимых контурных уплотнения, обеспечивающих водонепроницаемость и воздухонепроницаемость
REHAU BRILLANT-DESIGN
Профиль Brillant-Design относится к премиум-сегменту и обладает повышенной тепло- и звукоизоляцией.
Основные характеристики:
- системная глубина — 70 (80) мм.
- количество камер — 5 (6) камер.
- Толщина стекла — до 41 мм.
- Теплоизоляция — Roпр = 0,79 м2°С/Вт.
- Напряженные запорные устройства для высокой трещиностойкости
- Два независимых контурных уплотнения, обеспечивающих водонепроницаемость и воздухонепроницаемость
Рехау Дженео.

Уникальная система энергосбережения Новое поколение, использующее волокнистые композитные материалы, обеспечивает очень высокую теплоизоляцию. Благодаря материалу РАУ-ФИПРО, заменяющему стальные армирующие элементы, вес окна значительно меньше.
Основные характеристики:
- Системная глубина — 86 мм.
- количество камер — 6 камер.
- толщина окна — до 44 мм.
- теплоизоляция — Roпр = 1,05 м2°С/Вт.
- звукоизоляция — 47 дБ(а), с остеклением 50 дБ(а)
- взлома — выше 2 класса.
- Экономия энергии до 76%.
- Напряженные запорные устройства для высокой трещины
- два независимых контура уплотнения, обеспечивающие водонепроницаемость и воздухонепроницаемость
- ограничитель конвекции
- smart Comfort
Сравнительная таблица характеристик
| Характеристика | Профиль бренда | |||||
Блиц.![]() | Базовый дизайн. | Евродизайн. | SIB-Дизайн. | Блестящий дизайн. | Генео® | |
| Монтажная ширина, мм | 60 | 60 | 60 | 70 | 70 | 86 |
| Количество камер — рама | 3 | 3 | 3 | 3 | 5 | 6 |
| Сопротивление теплопередаче*, (м²/Вт) x1000 | 630 | 630 | 640 | 710 | 790 | 1050 |
| Толщина стекла до, мм | 33 | 32 | 32 | 41 | 41 | 54 |
| Ширина рамы-створки в световом проеме, мм | 120 | 116 | 124 | 120 | 120 | 115 |
| Звукоизоляция. Класс защиты от шума, до | 4 | 4 | 4 | 4 | 5 | 5 |
Пластиковое окно Rehau.
(Reheau) Разработан специально для нашей страны с ее перепадами температур. Стеклопакеты этой марки имеют хорошую шумоизоляцию, вентиляцию, защиту от взлома, стильный дизайн и, конечно же, доступные цены.
Премиальный немецкий бренд на российском рынке с 1995 года. У нас вы получаете настоящее немецкое качество от компании с 48-летней историей во всем мире.
- Все профильные системы высшего класса «А»
- Все заполнены морозостойкой и маркированы буквой «М»
- Все имеют максимальное 4-стороннее стальное армирование
- Единый стандарт качества вне зависимости от страны производства
Чем больше воздуховоды, тем меньше воздухообмен и, соответственно, выше теплоизоляция.
Чем шире профиль и больше глубина монтажа, тем выше теплоизоляция.
Профили только высшего класса «А»
По толщине внутренних стен Все наши профили относятся к высшему классу «А» — толщина их лицевой стенки не менее 3 мм.
- класс «А»: лицевая сторона толщиной не менее 3,0 мм
- класс «В»: передняя стенка не менее 2,5 мм
- класс «С»: толщина стенки не нормируется
Обратите внимание, что 80-90% российского рынка Это профили классов «В» и «С» и только 10-20% класса «А» профилей.
При этом в нашем ассортименте профили только класса «А».
Принципиально используем профильные системы классов «В» и «С» (с шириной лицевой стенки менее 3,0 мм).
Профили только морозостойкие
По ГОСТ 30673-99 «Профили ПВХ для оконных и дверных блоков» по климатической стойкости все наши профили «морозостойкие» — для районов со среднемесячной температурой воздуха в январе ниже минусовой 20°С. ГОСТ
для разных классов:
- нормальное исполнение «Н»: средняя температура января — минус 20°С и выше
- морозостойкое исполнение «М»: Средняя температура января ниже минус 20°С
В нашем ассортименте только морозостойкие специализированные системы с маркировкой «М».
Сопротивление теплопередаче (термическое тепловое сопротивление) является основным коэффициентом теплоизоляции. Он определяется отношением разницы температур снаружи и внутри помещения к тепловому потоку, проходящему через окно. Чем выше это число, тем выше эффективность теплоизоляции.
Эволюционные окна SmartGlass 2.0
Наши многофункциональные стеклопакеты работают на Вас и зимой, и летом. Зимой напыление серебряных частиц сохраняет до 90% тепловой энергии отопительных приборов, а летом стеклопакет отражает на 25% больше солнечного тепла, чем обычные пластиковые окна.
- На 42% больше тепла зимой (энергосберегающие свойства)
- Летом на 25% меньше жары (солнцезащитные средства)
Все наши стеклопакеты содержат специальное энергосберегающее стекло. Мы не используем обычные очки даже в самой базовой комплектации.
Системы управления микроклиматом AIRDRIVE I, II и III
В окна встроены оптимальные механизмы вентиляции — створки открываются на 1-5 мм в зависимости от выбранного режима. Это не внешние устройства (гребенки или клапаны), а именно встраиваемые аксессуары.
Три варианта:
- AIRDRIVE I: Щелевая вентиляция (1 режим)
- AIRDRIVE II: Дискретная многоступенчатая вентиляция (3 режима)
- AIRDRIVE III: Дискретная многоступенчатая вентиляция (5 режимов)
Мы стараемся не ставить гребни из-за их внешнего вида (только по вашему желанию).
Клапаны в принципе не используют из-за того, что они нарушают целостность окна, снижают его герметичность и прочность (т.к. профиль и арматура сверлятся).
Концерн Rehau Выпускает профильные системы для окон различной ценовой категории:
- Blitz, Grazio, Estet — бюджетные;
- Intelio, Delight — класс люкс;
- BRILLANT, GENEO — эксклюзив.
Бисквитные профили «Блиц», «Эстет», «Грацио» немецкой марки ничуть не уступают эксклюзивным «Генео» и «Бриллиант». Изделия разных серий отличаются прежде всего эксплуатационными свойствами и спектром решаемых задач.
Технические характеристики
- Грацио. – бюджетная серия с элегантным дизайном и высокой теплоизоляцией. Благодаря минимальной ширине пластика 104 мм профиль пропускает максимум света. Подходит для остекления в районах с суровым климатом.
- Эстет. — 3-камерный профиль с уникальными створками, которые впервые устанавливались только на окна премиум-класса.
Система с повышенным взломом и тепло-, звукоизоляцией. - Блиц. — Бюджетный профиль для надежного остекления без излишеств. Комплект поставки представляет собой профильную раму с глянцевой поверхностью, однокамерное стекло, базовую фурнитуру и резиновый уплотнитель.
- Интелио. — Легендарные «тихие» 6-камерные окна от Rehau, блокирующие холод и звук с улицы и пропускающие максимум света. Обеспечивают установку стеклопакетов толщиной до 52 мм. Для герметичности оснащен 2-контурным уплотнением и ограничителями конвекции.
- Delight — энергосберегающий профиль с 5 камерами, усиленный арматурой. Украшен изящным штрихом.
- Блестящий. — Теплый пятикамерный профиль с повышенной прорубью. Легкое, прочное, подходящее для создания оконных Систем Любых размеров.
- Генео. — Максимально надежный усиленный профиль из инновационного материала RAU-FIPRO®. Легче аналогов на 40%.
| Профиль | Толщина (мм) / Количество камер | Теплопроводность (м2*°С/Вт) | Опции | Класс звукоизоляции |
Блиц. | 60/3 | 0,7 | Дренаж | 4 |
| Грацио. | 70/5 | 0,85 | Шины с двойным уплотнением с внутренним шестигранником 6/8 мм | 4 |
| Эстет. | 60/3 | 0,64 | Возможна установка усиленной запорной фурнитуры | 4 |
| Интелио. | 86/6 | 0,95 | Ограничитель конвекции, безупречно гладкая поверхность | 4 |
| Восторг | 70/5 | 0,8 | Дренаж, двухконтурное уплотнение | 4 |
| Блестящий. | 70/5 | 0,79 | Washwriting, компактор, компактор, инновационный дизайн, взлом | 4 |
| Генео. | 86/6 | 1,05 | Окружение для удаления конденсата, контур двойного уплотнения | 4 |
Дизайн
Характерной чертой всех систем REHAU является идеально гладкая поверхность.
Он может быть матовым или глянцевым. Несколько угловатые — у серии Blitz, с мягкими линиями — у Brillant, зеркальные — у Geneo. Профиль Delight можно узнать по закругленным углам рамы. Наполнение любой модели не ограничено в дизайне – может быть витражным, тонированным, цветным, с ламинацией под дерево, металл. Пластик окрашивается в белый или любой другой тон, в том числе «под дерево».
Профиль Select
«Блиц» — недорогое решение для остекления офисных, торговых, производственных и жилых помещений. Предназначен для использования в мягком климате. Это лаконичный удачный профиль, гармонично вписывающийся в экстерьер многоэтажных домов.
«Блестящие» — это эксклюзивная система, которая максимально сдерживает тепло, надежно защищая проем от взлома. Сохраняет функциональность в любых климатических условиях.
«Удалить» — профильная люксовая система для эстетов. Ее каркас можно обработать индивидуально, под конкретный интерьер.
«Geneo» — решение для взыскательных домовладельцев.
Пластик этой серии беспрецедентно легкий благодаря инновационному материалу и может устанавливаться на отказ от основания.
5-камерная система с монтажной глубиной профиля 70 мм и 2-мя контурами уплотнителя
Окна REHAU BRILLANT-DESIGN предназначены для частого использования и входят в категорию систем премиум-класса. Великолепная эстетика I. Технические характеристики Данные профиля позволят удовлетворить самые высокие требования. Чаще всего их применяют при строительстве коттеджей и городских квартир в многоэтажных домах.
Оконная система Rehau Brillant-Design представляет собой симбиоз инновационных идей, эксклюзивных дизайнерских решений и удобства использования. Такие окна привнесут в любой дом идеальный уют и тепло, поднимут красоту домашнего интерьера на высший уровень.
Профиль этого окна Rehau сочетает в себе все разновидности современного дизайна и выдающуюся теплоизоляцию. Добиться таких показателей сохранности позволила тепловая печать на рейдах.
Лаконичный, элегантный и очень красивый внешний вид гладкой блестящей поверхности, гудков и закругленного степпера дополняется большой гаммой предлагаемых цветовых решений Profile.
FRAMEX – 5-камерная украинская оконная профильная система ПВХ
Скачать
Узнайте о нашем предложении Сравнить продукты
По всем параметрам Framex 71 — это современный, надежный профиль, конструкции из которого имеют высокий запас прочности и современный внешний вид. Профиль имеет глянцевую белоснежную поверхность. По желанию клиентов профиль ламинируется пленками под ценные породы дерева.
Геометрия камер профиля была оптимизирована для достижения максимальной теплоизоляции, что означает отличные характеристики Framex 71 с точки зрения энергоэффективности профиля. Профильная система Framex 71 предполагает использование стандартной фурнитуры различных производителей, как в обычном, так и в противовзломном исполнении.
Наличие в ассортименте Т- и Z-образных дверных профилей позволяет изготавливать дверные конструкции с наружным и внутренним открыванием.
Наличие теплого порога с терморазрывом с полиамидным вкладышем позволяет изготавливать теплые дверные конструкции
Самым большим конкурентным преимуществом профильной системы Framex по сравнению с другими украинскими системами того же класса являются опции, доступные только в европейских системах , например:
- Защита дверной коробки с алюминиевым покрытием. Этот вариант позволяет предотвратить механические повреждения коробки в нижней части двери, а также смоделировать алюминиевый порог при установке фальцевой части коробки двери на уровне пола.
- декоративная алюминиевая крышка для основных профилей Framex. Этот вариант позволяет сделать алюминиевое окно там, где это требуется по дизайнерскому или архитектурному решению, но с энергосберегающими характеристиками и стоимостью украинских окон ПВХ.
- Применение специального вставного ригеля позволяет добиться плотного натертекса в конструкции двери-кишки.
01.

Дизайн
Оригинальный дизайн SoftLine придает дизайну респектабельный и современный вид. Утонченный, элегантный и высококачественный.
02.
Прочность
Наличие профиля в цвете антрацит в массе подходит для использования без нанесения ламинирующей пленки — сохраняет свой цвет под воздействием ультрафиолета.
03.
Качество
Наличие сертификата качества на конструкцию от лаборатории Rosenheim является признанием соответствия профильной системы европейским стандартам.
04.
Безопасность
Особенностью профилей Framex является возможность установки специальной противовзломной фурнитуры и обеспечения защиты вашего дома.
ЦВЕТА И ДИЗАЙН
жемчужно-белый лебедь
Серый антрацит R
Черный
Темный дуб
Красное дерево R
Нуссбаум R69
Золотой дуб R
Пасмурно-серый
Зеленый лес
- Идеально подходит для изготовления высококачественных, теплых и привлекательных входных дверей, прочных, устойчивых к внешним воздействиям и элегантных линий.

- Из ударопрочного твердого поливинилхлорида типа PVC-U, E-D-L-P-082-35-28 Конструкции
- Framex 71 оснащены специально разработанным термомостом – вставкой из ПВХ, благодаря которой значительно снижаются теплопотери и повышаются показатели энергосбережения.
- Физико-химические характеристики системы Framex: Плотность 1,44 г/см².
- Точка размягчения по Вика 82⁰C.
- Коэффициент эластичности (E) 2500 Н/мм².
- Удельная теплопроводность 0,15 Вт/м²C.
- Коэффициент линейного расширения 7,0 * 10⁵/град.
Дизайн видимых элементов
Видимая оконная фурнитура предназначена для дополнения всего вида из окна. Для этого на петли устанавливаются специальные декоративные накладки. Это украшает внешний вид окна и предотвращает попадание пыли, а также продлевает срок службы комплектующих.
Микролифт
Микролифт часто используется для больших и тяжелых клапанов.
Конструкционный механизм действует как предохранитель от поломок, вызванных провисанием створок. Этот элемент фурнитуры частично снижает нагрузку на оконные петли, позволяя правильно расположить створку при закрывании так, чтобы нижняя часть не касалась рамы.
Противовзломные элементы
Запирание окон, балконных и балконных дверей с фиксатором обеспечивает противовзломную безопасность конструкции. Противовзломные элементы устойчивы к взлому фурнитуры окна и защищены, если створка окна или двери закрыта или откинута для проветривания.
Энергоэффективность
Ручки также играют важную роль в строительстве. Хорошее прилегание створки к раме препятствует проникновению холодного воздуха и защищает от потери тепла изнутри наружу. Наш диапазон полон ручек с вариантами цветового массива и современной формы. Внедренные решения дают широкие возможности для предложений, отвечающих требованиям и ожиданиям Клиентов.
Высококачественная фурнитура
Наша фурнитура изготовлена из высококачественных материалов и имеет защитное покрытие от коррозии.
Это гарантирует надежность оконной фурнитуры и удобное и беспроблемное использование окна.
Запорная планка
Простое управление зажимным устройством. Прижимное устройство и ответная планка обеспечивают надежное закрывание окна. Запорная планка и зажимное устройство соединены таким образом, что ломать конструкцию становится намного сложнее.
КОМПОНЕНТЫ И ПРИНАДЛЕЖНОСТИ
См. вдохновение
- окна
- двери
- террасные системы
- французские двери
- балконные двери
- составные части
Hoffen 58
4-камерный ПВХ-профиль
Крепление. глубина: 58 мм
Uf — 1,6 Вт/м 2 K
Ug — 0,8 Вт/м 2 K
смотровое окно
Framex 71
6-камерный15 профиль ПВХ 90.
глубина: 71 мм
Uf — 1,4 Вт/м 2 K
Ug — 0,6 Вт/м 2 K
смотровое окно
Elegante 76
6-камерный ПВХ-профиль
Креп. глубина: 76 мм
Uf — 0,93 Вт/м 2 K
Ug — 0,5 Вт/м 2 K
смотровое окно
Hoffen 58
4-камерный профиль ПВХ. глубина: 58 мм
Uf — 1,6 Вт/м 2 K
Ug — 0,8 Вт/м 2 K
обзорная дверь
Framex 71
5-камерный15 профиль ПВХ 90. глубина: 71 мм
Uf — 1,4 Вт/м 2 K
Ug — 0,5 Вт/м 2 K
обзорная дверь
Elegante 76
6-камерный профиль ПВХ
Креп. глубина: 76 мм
Uf — 1,1 Вт/м 2 K
Ug — 0,5 Вт/м 2 K
обзорная дверь
HS 76
5-камерный15 профиль ПВХ 90.
глубина: 76 мм
Uf — 1,3 Вт/м 2 K
Ug — 0,5 Вт/м 2 K
смотровое окно
Framex 71
5-камерный профиль ПВХ
Крепление. глубина: 71 мм
Uf — 1,4 Вт/м 2 K
Ug — 0,5 Вт/м 2 K
смотровое окно
Elegante 76
6-камерный15 профиль ПВХ 90. глубина: 76 мм
Uf — 1,1 Вт/м 2 K
Ug — 0,5 Вт/м 2 K
смотровое окно
Hoffen 58
4-камерный ПВХ профиль Крепление. глубина: 58 мм
Uf — 1,6 Вт/м 2 K
Ug — 0,8 Вт/м 2 K
смотровая дверь
Framex 71
5-камерный ПВХ-профиль
Крепление. глубина: 71 мм
Uf — 1,4 Вт/м 2 K
Ug — 0,5 Вт/м 2 K
обзорная дверь
Elegante 76
6-камерный15 профиль ПВХ 90.
глубина: 76 мм
Uf — 1,1 Вт/м 2 K
Ug — 0,5 Вт/м 2 K
обзорная дверь
Hoffen 58
4-камерный ПВХ профиль Крепление. глубина: 58 мм
Uf — 1,6 Вт/м 2 K
Ug — 0,8 Вт/м 2 K
обзорная дверь
Framex 71
5-камерный ПВХ-профиль
Крепление. глубина: 71 мм
Uf — 1,4 Вт/м 2 K
Ug — 0,5 Вт/м 2 K
обзорная дверь
Elegante 76
6-камерный15 профиль ПВХ 90. глубина: 76 мм
Uf — 1,1 Вт/м 2 K
Ug — 0,5 Вт/м 2 K
обзорная дверь
Наше производство, а также опытные сотрудники дают нам возможность добиться безупречного качества наши продукты.
Чтобы соответствовать растущим ожиданиям клиентов, производители должны постоянно следить за новыми технологическими
разработки и модифицировать свое предложение, в том числе те решения, которые наилучшим образом соответствуют потребностям пользователей.
Вся продукция изготовлена из компонентов, поставляемых производителями, признанными на рынках всего мира.
Высококачественные ПВХ-профили с оптимальными физико-механическими свойствами, используемые в престижных европейских проекты гарантируют надежность и долговечность продукции.
Аксессуары и оборудование от известных поставщиков обеспечивают максимальную экономию энергии, безопасность и функциональность товары.
Таким образом, мы можем гарантировать долговечность и долговечность нашей продукции.
Палата | Доблесть вики | Фэндом
Камера- Работа
- В игре
- Текст темы
- портрет вице-президента
Настоящее имя
Винсент Фаброн
Происхождение
Франция
Раса
Человек
Пол
Мужской
Организация(и)
• Калверин
• Корпорация Королевства (Оборона Королевства)
• Протокол VALORANT
Роль
Страж
Основные способности
Товарный знак
Охотник за головами
Коронные способности
Рандеву
Абсолютная способность
Тур де Форс
Ульт.
Баллы♦♦♦♦♦♦♦♦ 8
Кодовые имена
Меткий глаз
Внешний вид
ВАЛОРАНТ
Добавлено
16 ноября 2021 г. (v3.10)
Актер озвучивания
Хьюго Пьер Мартин
• Палата/Цитаты
Lore Wiki Статья
| » | Хорошо одетый и хорошо вооруженный французский конструктор оружия Чембер с убийственной точностью изгоняет агрессоров. Он использует свой нестандартный арсенал, чтобы держать оборону и отстреливать врагов издалека, при этом для каждого плана предусмотрены непредвиденные обстоятельства. — Официальное описание |
Чембер является агентом в VALORANT .
Содержимое
- 1 Профиль
- 1.1 Биография
- 1.2 Личность
- 1.3 Внешний вид
- 2 способности
- 2.
1 Базовый - 2.2 Подпись
- 2.3 Максимальная
- 2.
- 3 Контракт
- 3.1 Глава 1
- 3.2 Глава 2
- 4 Цитаты
- 5 История обновлений
- 6 Плейлист Spotify
- 7 Мелочи
- 7.1 Отношения
- 8 Галерея
- 9 Каталожные номера
- 10 Навигация
Профиль
Биография
Для получения более подробной информации и анализа, связанных с Chamber , обязательно ознакомьтесь со статьей VALORANT Lore Wiki! VALORANT Lore Wiki: Комната |
Француз Винсент Фаброн проживает свою жизнь в поисках одной необходимой цели, готов пожертвовать всем, что мешает его достижению. Он провел большую часть своего времени, занимаясь боевыми действиями и оружием, работая во французских вооруженных силах, прежде чем стать стрелком PMC, а затем конструктором оружия для обороны Королевства.
Однако его работа в Королевстве была для него лишь ступенькой, поскольку к этому моменту он уже встал на свой путь в поисках своей священной истины.
Одно из таких событий, которое продемонстрировало волю Фаброна продолжать достижение своих целей любой ценой, связано с его действиями в исследовательском центре Эверетта-Линде в Санта-Фе, штат Нью-Мексико, куда он отправился примерно в 9 AFL и начал общаться там с сотрудниками. Вскоре Фаброну запретили входить на территорию объекта вскоре после попытки доступа к их системам, но в конце концов он вернулся, чтобы восстановить свой уровень допуска и получить схемы. Однако вскоре он был вынужден принять решение, которое требовало от него уничтожения Большого радианного коллайдера объекта. Уже установив контакт с его коллегой из Омеги, они вместе обстреляли LRC в тот день, когда сотрудники лаборатории праздновали его предполагаемый успех. В результате взрыва погибли многие из его сотрудников, а объект превратился в шелуху.
Вскоре после событий Эверетт-Линде Фаброн столкнулся со старшими агентами протокола VALORANT Бримстоуном и Вайпером, где вместе они оказались в неприятной ситуации.
Прорекламировав себя как человека, который может помочь VALORANT с их проектом Омега, руководство Протокола предоставило Фаброну должность их восемнадцатого агента. Став «Палатой», он сразу же показал себя необходимым активом для целей вице-президента, предоставив чертежи, необходимые для правильной постройки телепорта Альфа-Омега, а также помогая с его проблемами с питанием, рекомендуя потенциального агента с лучистыми способностями, которые могли бы помочь .
Тем не менее, даже с его новым партнерством с протоколом VALORANT, необходимая цель Чембера все еще не достигнута. Поскольку некоторые из его коллег-агентов (в том числе некоторые из самых опытных следователей и преданных защитников Земли) уже имеют свои подозрения относительно его мотивов, Чембер должен действовать более осторожно, чем когда-либо прежде, если он хочет достичь своей конечной цели — и быть готовым к суду, когда в результате раскрывается правда о его характере.
ВИНСЕНТ ФАБРОН: Молодость
- Фаброн связан с Сент-Этьеном и организацией Culverin.
[1] - Фаброн работает во французских вооруженных силах стрелком ЧВК. [2]
- Фаброн работает конструктором оружия в Kingdom Defense. [1] [2]
- Фаброн занимается деятельностью, связанной с телепортом, оставленным в Карибском море на заброшенном контейнеровозе. [3]
- Фаброн вступает в контакт со своим коллегой из Омеги, а также заключает с ним сделку. [4]
Проникновение в Эверетт-Линде
- ~T-319: Фаброн встречает Орана МакЭнеффа в лаборатории и дает ему визитную карточку. [5]
- Т-298: Фаброн пытается получить доступ к системам объекта. [6]
- Вскоре после этого ему запретили посещать территорию учреждения. [7]
- Т-183: Фаброн причастен к исчезновению главного инженера объекта Томаса По. [8]
- T-106: Фаброн восстанавливает для себя уровень допуска на объекте.
[9] - Далее он получает схемы объекта. [10]
- T-1: Фаброн входит в запретную зону. [11]
- T-0: Фаброн уничтожает Большой Радианский Коллайдер объекта вместе со своим аналогом Омега, убивая весь его персонал на территории. [12] [13]
Пост-Эверетт-Линде
- Фаброн встречает Бримстоуна и Гадюку. [14]
- Фаброн встречает двух агентов при неприятных обстоятельствах, но впоследствии может представить себя как человека, который может помочь им с их проектом Омега.
- Несмотря на некоторое нежелание старших агентов VALORANT, они принимают помощь Фаброна.
ПАЛАТА: Агент VALORANT
- Нанят в качестве восемнадцатого агента.
Проект «Омега»
- Чембер предоставляет VALORANT чертежи телепортов Альфа-Омега от Эверетт-Линде. [2]
- Чембер проверяет данные Талы Николь Димаапи Вальдес Бримстоуну.
[15] - Вальдес был потенциальным кандидатом на роль в VALORANT из-за своих способностей к излучению, которые могли помочь с проектом Омега.
- Чембер упоминает, что не может сам связаться с Вальдес для вербовки из-за прошлых недоразумений с ней, и просит, чтобы Бримстоун вместо этого связался с ней.
- Чембер спрашивает Бримстоун об удалении ограничителей с устройства защиты от перенапряжений Неон, чтобы она могла производить достаточно энергии для активации телепорта. [16]
Шантажист
- Чембер назначен членом стамбульской ударной группы. [17]
- Роль Чембера заключалась в обеспечении огневой поддержки с выгодной позиции, помогая защитить остальную часть команды, когда они подвергаются атаке.
Продолжение проекта «Омега»
- Палата информирует Бримстоуна о ходе обратного проектирования шипа, говоря, что они близки к прототипу. Он также отмечает, что пытался извиниться перед Неон за то, что он был неправ в том, что ему нужно было снять колпачки напряжения с ее сетевого фильтра, но она проигнорировала его.
[18]
Личность
Сочетая учтивую беспечность, профессиональную уравновешенность и самодовольную комедию, Чембер полностью уверен в своих навыках и ценности, которую он предлагает. Он устанавливает высокие стандарты для себя и своей команды, напоминая всем, что если они хотят добиться побед, они могут также выложиться по полной и стать лучшими в том, что они делают.
Он проявил дружелюбие со многими агентами Протокола, но прекрасно понимает, что хранит много секретов, которые лучше держать в секрете.
Внешний вид
Чембер носит гребенчатую прическу и очки в толстой прямоугольной оправе. Он одет в синий жилет поверх белой рубашки с длинными рукавами, а также в геометрический красочный полуночный галстук. На указанном жилете вместо кнопок расположены три пули. На его руках пара коричневых перчаток с белыми ремешками, которые обнажают его безымянный и мизинец. Он носит часы с золотыми ремешками на левой руке и брюки из кедрового дерева, удерживаемые ремнем с белыми ремешками и пряжкой с уникальным золотым контуром.
Он также носит золотую цепочку на галстуке в качестве ремешка.
На левой стороне его лица несколько золотых линий, похожих на следы, найденные на печатной плате. Эти золотые метки также можно найти на обеих руках Чембера, и, как показано в его анимации выбора агента, метки исчезают всякий раз, когда он вызывает свою снайперскую винтовку Tour de Force.
Примечательно, что весь костюм Чембера (без галстука) становится золотым всякий раз, когда он находится в непосредственной близости от якоря Рандеву, хотя неизвестно, является ли это чисто механикой игрового процесса, учитывая, что это не тот случай, показанный в трейлере его агента. .
Способности
Базовый
C – Товарный знак
РАЗМЕСТИТЕ ловушку, которая ищет врагов. Когда видимый враг оказывается в пределах досягаемости, ловушка отсчитывает время, а затем дестабилизирует местность вокруг него, создавая затяжное поле, которое замедляет игроков, попавших в него.
Использование: 1 Стоимость: 200 Дебафф: 6 с 50% замедление
Q – Охотник за головами
АКТИВИРОВАТЬ, чтобы экипировать тяжелый пистолет.
ALT FIRE из пистолета, оснащенного прицелом.
Боеприпасы: 8 пуль макс. Стоимость: 150 за пулю Урон: 159 головы, 55 тела, 46 ног
Подпись
E – Рандеву
РАЗМЕСТИТЕ два якоря телепорта. Находясь на земле и в пределах досягаемости якоря, ПОВТОРНО АКТИВИРУЙТЕСЬ, чтобы быстро телепортироваться к другому якорю. Якоря можно подобрать для ПЕРЕРАБОТКИ.
Использование: 1 Стоимость: Бесплатно Продолжительность: 1,3 с Перезарядка: 30 с (использовано/восстановлено), 45 с (уничтожено) Здоровье: 80 ХП
Ultimate
X — Tour De Force
АКТИВИРУЙТЕ, чтобы вызвать мощную снайперскую винтовку. Убийство врага создает затяжное поле, которое замедляет игроков, попавших в него.
Очки ульты: ♦♦♦♦♦♦♦♦ 8 Боеприпасы: 5 Завод: 2,3 с Урон: 255 головы, 150 тела, 127 ног Дебафф: 6 с 50% замедление
Контракт
Глава 1
| УРОВЕНЬ 1 | УРОВЕНЬ 2 | УРОВЕНЬ 3 | УРОВЕНЬ 4 | УРОВЕНЬ 5 |
|---|---|---|---|---|
| РАСПЫЛИТЕЛЬ: Один в камере | КАРТА ИГРОКА: VALORANT Chamber | НАЗВАНИЕ ИГРОКА: Очаровательная | РАСПЫЛИТЕЛЬ: Двойное зрение | АГЕНТ: Камера |
Глава 2
| УРОВЕНЬ 6 | УРОВЕНЬ 7 | УРОВЕНЬ 8 | УРОВЕНЬ 9 | УРОВЕНЬ 10 |
|---|---|---|---|---|
| ГАНБУДДИ: Позвони мне | РАСПЫЛИТЕЛЬ: Камера | ТИТУЛ ИГРОКА: Высший класс | КАРТА ИГРОКА: Совместное предприятие | КОЖА: Утонченность Классик |
Цитаты
Основная статья: Камера/Цитаты
История обновлений
v5.
03
- Товарный знак
- Длительность замедления уменьшена на 9,5 >>> 6 с
- Охотник за головами
- Стоимость пули увеличена на 100 >>> 150
- Рандеву
- Базовое время восстановления увеличено с 20 с >>> 30 с
- Восстановление восстановления увеличено с 20 с >>> 30 с
- Радиус якоря уменьшен на 10,5 м >>> 7,5 м
- Перезарядка устанавливается на 45 секунд при уничтожении якоря
- Тур де Форс
- Требуемое количество очков Ultimate Points увеличено 7 >>> 8
- Длительность замедления уменьшена с 9,5 >>> 6 с
- Множитель удара по ноге снижен на 1,0 >>> 0,85
v5.0
- Тур де Форс
- Исправлена ошибка, из-за которой визуальный эффект прицела иногда исчезал
v4.11
- Рандеву
- Исправлена ошибка, из-за которой модель Чембера все еще телепортировалась, если ее убили во время телепортации
- Исправлена ошибка, из-за которой индикаторы диапазона привязки не исчезали, когда они находились достаточно далеко, чтобы быть за пределами мини-карты
v4.
10
- Голосовые реплики, относящиеся к торговой марке и рандеву, теперь будут слышны союзникам по всему миру
v4.09
- Товарный знак
- Стоимость увеличена 150>>>200
- Затраты снижены 2>>>1
- Увеличение диапазона звука
v4.07
- Headhunter и Tour De Force теперь можно ставить в очередь для экипировки после текущего действия
v4.04
- Товарный знак
- Усовершенствована система, используемая для размещения товарного знака в целевых точках земли
- Рандеву
- Улучшена система, используемая для размещения Rendezvous в целевых точках земли
- Исправлена ошибка, из-за которой Rendezvous иногда терпел неудачу при применении сразу после выпуска последней пули Headhunter
v4.03
- Исправлена ошибка, из-за которой Охотник за головами и Tour De Force могли уплыть
v3.
12
- Изменения, относящиеся к Spike Rush
- Стоимость охотника за головами уменьшена 8>>>4
v3.10
Добавлено
Плейлист Spotify
Общая информация
- Чембер — тот, кто познакомил Неона, 19-го рекрута VALORANT, с Brimstone. [19]
- https://valorant.fandom.com/wiki/File:ChamberAllyBrimstoneMatchStart2.mp3 «Месье Бримстоун, как и обещал, я нашел вашего следующего рекрута. Как говорится, вы сорвались с крючка. Простите меня за то, что я делаю вашу работу!»
Связи
- Чембер — один из немногих агентов VALORANT, которые, как известно, встречались и разговаривали со своим коллегой из Омеги. В настоящее время у этих двоих есть сделка друг с другом, как видно из их совместной работы в трейлере Чембера и в игровой реплике, когда Чембер убивает свое зеркало.
- https://valorant.fandom.com/wiki/File:ChamberEnemyChamberLastKill2.
mp3 «О, наша сделка? Она окончена. Извините за позднее уведомление.» - Несмотря на эту сделку, Палаты, похоже, не полностью доверяют друг другу. Было замечено, что Омега Чембер ненадолго прицелился в своего двойника, и эти двое, кажется, знали, что между ними мало доверия.
- https://valorant.fandom.com/wiki/File:ChamberEnemyChamberLastKill.mp3 «Ты знал, что мне нельзя доверять».
- https://valorant.fandom.com/wiki/File:ChamberEnemyChamberLastKill2.
- Чембер был завербован в VALORANT Protocol Бримстоуном и Вайпером, как видно из его трейлера. Встреча не была гладкой: Бримстоун был заключен в тюрьму, и Чембер должен был освободить его с помощью своего коллеги из Омеги.
- Чембер имеет прошлое недопонимание с Неоном, которое помешало ему встретиться с ней напрямую, чтобы завербовать ее в организацию. . внешний вид [22]
Первый дразнящий внешний вид Чембера [23]
Первый дразнящий внешний вид Чембера [24]
Uncover Fracture — Тизер официальной карты — VALORANT
Раскрытие переломов.
Видео, рассказанное CamberTeaser Image
Battle Pass Teaser
L’Accr
- ↑ 1.0 1.1 Протокол VALORANT#Досье агента шантажиста
- ↑ 2.0 2.1 2.2 3.10 Зашифрованная электронная почта
- ↑ Карта совместного предприятия
- ↑ Цитата из Chamber Last Kill Enemy Chamber
- ↑ 3.07 электронная почта Орана МакЭнеффа
- ↑ 3.07 Экран безопасности перелома
- ↑ Объявление службы безопасности Fracture Vincent Fabron
- ↑ Исчезновение Томаса По
- ↑ 3.09 Экран безопасности перелома
- ↑ Загадочная записка Фаброна
- ↑ 3.10 Экран безопасности перелома
- ↑ Трейлер Fracture
- ↑ Цитата Fade о смертях в Fracture
- ↑ L’Accord: Камерный трейлер
- ↑ 3.12 Голосовая почта камеры
- ↑ 4.03 Голосовая почта камеры
- ↑ Стамбульская ударная группа
- ↑ 4.10 Электронная почта Палаты
- ↑ 19.
0 19.1 Голосовая почта камеры для Brimstone — Относительно VP-19- ↑ СМОТРЕТЬ // Гимн первого года
- ↑ СМОТРЕТЬ // Гимн первого года
- ↑ СМОТРЕТЬ // Гимн первого года
- ↑ СМОТРЕТЬ // Гимн первого года
- ↑ СМОТРЕТЬ // Гимн первого года
Навигация
v · d · e
Агенты
Цитаты Astra • Breach • Brimstone • Chamber • Cypher • Fade • Jett • KAY/O • Killjoy • Neon • Omen • Phoenix • Raze • Reyna • Sage • Skye • Sova • Viper • Yoru Списано Крестоносец • Джоули • Разрушение Страница не найдена
Страница, которую вы ищете, больше не существует. Возможно, вы сможете вернуться на домашнюю страницу сайта и посмотреть, сможете ли вы найти то, что ищете.
Или вы можете попытаться найти его с помощью информации ниже.Страницы:
- #26429 (без названия)
- № 27303 (без названия)
- #7338 (без названия)
- № 21494 (без названия)
- Протокол пленарного заседания 2012 года
- Награды ASE Foundation Research Awards 2013 — требования к заявке
- Премия ASE Foundation Research Awards 2013 – часто задаваемые вопросы
- 2013-2014 Комитет по руководящим принципам и стандартам
- Окончательное правило Графика оплаты услуг врача Medicare на 2018 г.
- 2019 Получатели FASE
- Правила возмещения расходов CMS Medicare 2020
- 2022 Тезисы
- 2022 Опубликована предлагаемая политика США в отношении платежей
- Форма приема на факультет эхокардиографии 2-го Всемирного саммита
- ААА
- ААА – иен
- О
- Размещение
- Продвинутый кардиолог-сонограф — модуль изображений рабочей тетради 2
- Advanced Echo: виртуальный опыт
- Информация CME
- Свяжитесь с нами
- Политика отмены курса
- Факультет
- Часто задаваемые вопросы
- Повестка дня программы
- Регистрация
- Кто должен посетить
- Комплект для рекламы и СМИ
- Адвокатский комитет
- Пожертвования на защиту интересов
- Программа форума ИИ
- Форум искусственного интеллекта: видеоролики о рабочем процессе Echo Lab
- Студенческая стипендия имени Алана Д.
Вагонера – Форма для назначения директора программы - Студенческая стипендия имени Алана Д. Вагонера – онлайн-форма подачи заявки на участие в конкурсе студентов
- Ресурсы AMA для снижения выгорания
- Этический кодекс Американского общества эхокардиографов
- Критерии надлежащего использования
- Архивные руководящие документы
- Готовы ли вы ко всем изменениям в 2017 году?
- Практический экзамен ASCEXAM/ReASCE
- Обзорный курс ASCeXAM/ReASCE: виртуальный опыт
- Жилые помещения
- Свяжитесь с нами
- Политика отмены курса
- Политика отмены курса
- Экспоненты
- Часто задаваемые вопросы
- Онлайн-сеансы вопросов и ответов
- Симуляция практического онлайн-экзамена
- Повестка дня программы
- Зарегистрирован? Нажмите здесь, чтобы получить доступ к вашему контенту
- Регистрация
- Лауреаты премии ASE 2013
- АСЭ 2016
- ASE 2016 Прием тезисов
- ASE 2020 Scavenger Hunt
- ASE 2022 А.
И. Форум и собрания IRT - ASE объявляет о наборе Академии лидерства на 2020–2022 годы
- Ежегодное деловое собрание ASE, воскресенье, 12 июня 2016 г.
- Награды ASE, именные лекции, гранты и стипендии
- Награды Совета ASE
- Награда Luminary Award Совета по УЗИ сосудов и кровообращения (CAVUS)
- Премия основателей за достижения в области эхокардиографии при детских и врожденных пороках сердца
- Награды за жизненные достижения и заслуги
- Названные лекторы
- Награда за выдающиеся достижения в области периоперационной эхокардиографии
- Исследовательские гранты
- Награда за заслуги перед сонографом
- Студенческие стипендии и гранты на поездки
- Преподавательские награды
- Совет директоров ASE: июль 2020 г. – июнь 2021 г.
- Награда ASE кардиоваскулярного сонографа «Выдающийся преподаватель»
- Исследования ASE COVID-19
- Заявление ASE COVID-19 для интерактивных курсов
- Форумы ASE
- Исследования, финансируемые ASE – резюме проектов
- Исследования, финансируемые ASE – резюме проектов
- Программа признания ASE GEM
- ASE GEM
- 2019 ASE GEM
- 2020 ASE GEM
- 2021 ASE GEM
- ASE Global
- Глобальный блог ASE
- Глобальный блог ASE
- Политики управления ASE
- Руководство по разработке руководства ASE
- Рекомендации ASE
- Рекомендации ASE: часто задаваемые вопросы
- Рекомендации по темам
- Новости о рекомендациях
- Руководство ASE по дате публикации
- Стенд штаб-квартиры ASE
- Партнерская программа международного альянса ASE
- Академия лидерства ASE
- Приложение
- Состав Совета директоров
- Часто задаваемые вопросы
- Прошлые списки классов Академии лидерства
- Концепция и описание программы
- Расписание
- Учебный центр ASE
- Награды ASE за выслугу лет
- ASE Live Course Заявление о COVID-19
- ПРЕИМУЩЕСТВА ДЛЯ ЧЛЕНОВ ASE
- Передовые публикации
- Образование
- Интернет-ресурсы
- Профессиональное развитие
- Повышение качества
- Переход базы данных участника ASE
- Ресурс только для членов ASE
- Номинационный комитет ASE – Соглашение о конфиденциальности
- Отчет о взаимодействии с организацией ASE
- ASE Председатель виртуального курса педиатрии и врожденных заболеваний и приложение сопредседателя
- Заявления о политике ASE
- Отзыв о продуктах ASE
- ASE Предлагаемые поправки к уставу
- Издательский комитет ASE
- ASE представляет вас на ежегодном собрании HOD AMA
- Научные сессии ASE
- Прием тезисов ASE 2016
- Научные сессии ASE 2021 Конкурс предложений по сессиям
- Научные сессии ASE 2023 Конкурс предложений по сессиям
- Спонсорская возможность ASE
- Заявление ASE о COVID-19
- Благодарности
- Фон
- Заключение
- Рисунок 1
- Рисунок 2
- Как создать образ?
- Ссылки
- Ресурсы
- Стол
- Где сделать изображение?
- Кого изобразить?
- ASEMarketPlace
- Спросите эксперта по кодированию
- Оценка структуры и функции
- Соглашение с автором и раскрытие информации
- Комитет по наградам
- Боковая панель баннера
- Основы соответствия требованиям поддержания сертификации (MOC)
- МОСТ ЭХОКАРДИОГРАФИИ С ДРУЗЬЯМИ
- Календарь
- Призыв волонтеров на 2018 год
- Запрос тезисов
- Запросить документы CASE
- Объявление о выдвижении кандидатов на позиции ASE открыто
- Совет директоров АСЭ
- Руководящие комитеты Совета ASE
- Совет директоров Фонда ASE
- СОВЕТ ДИРЕКТОРОВ
- Конфликт интересов
- Критерии для членов Совета директоров (недолжностные лица)
- Критерии для членов Руководящего комитета Совета
- РУКОВОДСТВО ДЛЯ ПИСЕМ
- ОТКРЫТЫЕ ПОЗИЦИИ И КРИТЕРИИ
- Секретарь (двухлетний срок)
- КОНТРОЛЬНЫЙ СПИСОК ДЛЯ САМООЦЕНКИ
- Казначей (3 года)
- Вице-президент (срок полномочий 1 год; лестница на пост президента)
- Призыв к волонтерам
- Сеть бирж труда для сердечно-сосудистых заболеваний
- Премия выдающегося учителя кардиоваскулярной сонографии
- Специалисты по ультразвуковой визуализации сердечно-сосудистой системы и энтузиасты соберутся в Сиэтле 10–13 июня
- Отметьте Месяц осведомленности о медицинском ультразвуке!
- Программы CEU
- Выбор чемпионов Wisely®
- Клинические рекомендации по мультимодальной визуализации сердечно-сосудистой системы у пациентов с заболеванием перикарда – Форма одобрения Совета
- Комитет CME
- Информация о CME
- Информация о CME
- Кодекс поведения для курсов ASE
- Часто задаваемые вопросы по кодированию
- Запрос формы заседания комитета
- Комитеты
- Заполнить заявку содиректора
- Полное заявление на виртуальный курс по врожденным заболеваниям детей
- Заявление о раскрытии информации о конфликте интересов
- Контакт
- Свяжитесь с нами
- Свяжитесь с нами
- Свяжитесь с нами
- Свяжитесь с нами
- Контрастное эхо
- Зона контраста
- Кодировка контраста
- Консенсусное заявление по UEA
- Саммит преподавателей 2020: контраст и компетентность
- Часто задаваемые вопросы
- Начало работы
- Руководящие документы
- Полезная информация из отрасли
- Плакаты и DVD
- Рекомендуемая лабораторная практика
- Основы
- Видео и вебинары
- СЕРИЯ ВЕБИНАРОВ – Основы пузырей
- Коронавирус (COVID-19) Ресурсы
- Информационно-пропагандистская деятельность – COVID-19
- Алгоритм индикации и уровня защиты (загружаемый PDF)
- Центры по контролю и профилактике заболеваний
- Рекомендации по очистке от производителей ультразвуковых аппаратов
- Переводы заявлений о COVID-19
- Образовательная информация
- Сообщение от JASE EIC Майкл Пикард, доктор медицинских наук, FASE
- Сообщения от президента ASE Мадхава Сваминатана, доктора медицины, FASE
- Новости
- Заявление PCHD о COVID-19
- Положение о COVID-19 для периоперационной/перипроцедурной чреспищеводной эхокардиографии
- Заявление POCUS о COVID-19
- Стратегии защиты поставщиков, используемые членами ASE
- Ресурсы, предоставленные членами ASE
- Заявление сонографа о COVID-19
- Заявление о возобновлении работы Echo Services
- Вебинары
- Совет по сердечно-сосудистой сонографии
- Совет по УЗИ кровообращения и сосудов
- Совет по педиатрическим и врожденным порокам сердца
- Совет по периоперационной эхокардиографии
- Критерии представителя Совета
- Переход Руководящего комитета Совета
- Советы
- Политика отмены курса
- CPAP Вопрос 14
- CPELP — Вопрос 5
- CPELP Вопрос 13
- CPELP Вопрос 16
- CPELP Вопрос 17
- CPELP Вопрос 39
- Совет по эхокардиографии интенсивной терапии
- График оплаты медицинских услуг Medicare на 2023 г.
Предлагаемое правило - На основе болезни
- Политика разнообразия и интеграции
- Документы, одобренные ASE
- Доктор Ицхак Кронзон, Титан Эха, скончался
- ECHO ACCESS: виртуальный опыт – поток патологии
- ECHO ACCESS: виртуальный опыт – Structural Heart Stream
- Echo Access™, виртуальный опыт — современное состояние 2020 г.
- Информация CME
- Свяжитесь с нами
- Политика отмены курса
- Факультет
- Повестка дня программы
- Регистрация
- Кто должен присутствовать?
- Эхо в качестве монитора для терапевтического вмешательства у взрослых
- Эхо Флорида™
- 2019 Презентации преподавателей
- Размещение
- Расширенная программа
- Уход за детьми
- Информация о CME
- Кодекс поведения для очных курсов
- Политика отмены курса
- Политика отмены курса
- Руководство по COVID-19
- Эхо Флорида 2021 по запросу
- Спонсорские возможности Echo Florida
- Экспоненты
- Выставки и спонсорские возможности
- Факультет
- Часто задаваемые вопросы
- Местные ресурсы по охране труда и технике безопасности
- Повестка дня программы
- Регистрация
- Кто должен присутствовать?
- Эхо Гавайев™
- Горки 2022 Echo Hawaii
- Размещение
- Призыв к науке
- Уход за детьми и йога
- Информация о CME
- Политика отмены курса
- Echo Hawaii 2020 Презентации преподавателей
- Эхо Гавайи 2022 по требованию
- Экспоненты
- Факультет
- Часто задаваемые вопросы
- Местные ресурсы по охране труда и технике безопасности
- Повестка дня программы
- Регистрация
- Кто должен присутствовать?
- Форум руководителей медицинских и технических директоров Echo Lab
- Форум руководителей медицинских и технических директоров Echo Lab — форма
- Журнал Эхо
- Руководство для авторов
- Сроки
- Прошлые выпуски
- Прошлые выпуски
- Эхо во внутреннем проходе Аляски
- Жилые помещения
- Информация о CME
- Свяжитесь с нами
- Политика отмены курса
- Политика отмены курса
- Факультет
- Местоположение
- Повестка дня программы
- Регистрация
- Кто должен посещать
- Эхо под атакой в прессе
- Эхокардиографическая оценка стеноза аортального клапана Форма вопроса
- Эхокардиография
- Деятельность по сопровождению сертификации (MOC) для эхокардиографии Предоставлено ASE
- Приложение EchoGuide™
- Приложение EchoGuide™
- Эховация
- Вызов эха
- Вызов Эховации 2016
- Целевая группа конкурса инноваций 2016
- 2016 Судьи
- Команда ДиаКардио
- Команда ЭхоПлан
- Команда TeleHealthRobotics
- Вызов Эховации 2017
- Целевая группа конкурса инноваций 2017
- Ведущий
- Экспертная панель реагирования
- Основной инновационный динамик
- Команда архитекторов Echovation
- Руководство по диагностике для команды — 3-е место
- Команда EchoToday – 2 место
- Team ReVISION – 1-е место
- Команда UTMB Health Innovators
- Вызов Эховации 2018
- Целевая группа конкурса инноваций 2018
- Ведущий
- Экспертная панель реагирования
- Team Alerte Echo IQ – победитель 2-го места
- Команда On-Sight – 1-е место
- Команда Toronto Echo Masters – 3-е место
- Эховейшн Пресс
- Эдлер Лектор
- Образование
- Образование
- Комитет по образованию
- Центр начинающих энтузиастов эха (E3)
- Спросите эксперта
- Услуги по трудоустройству
- Подключить
- Эхо-изображения
- Новые энтузиасты эха (E3) Специальная группа по интересам
- Участников
- Биографии восходящей звезды
- Кейсы Star Echo
- Двухминутное руководство
- Предстоящие события
- Премия за выдающиеся достижения в области преподавания педиатрии
- Награда за выдающиеся достижения в области преподавания педиатрии
- Выставочные и спонсорские возможности
- Экспоненты
- Консенсус экспертов в отношении оценки мультимодальных изображений у взрослых пациентов во время и после лечения рака
- Экспертный факультет
- Факультет
- Часто задаваемые вопросы
- FASE — член Американского общества эхокардиографии.

- 2020 FASE
- 2021 FASE
- 2022 FASE
- Сроки подачи заявок
- Преимущества FASE
- Получатели FASE
- Почетный FASE
- Путь к FASE
- Консультативный комитет FASE
- Продукция FASE
- FASE, Консультативный комитет по обучению и сертификации
- FASE, Консультативный комитет по обучению и сертификации
- Студенческий грант Feigenbaum для сердечно-сосудистых заболеваний
- Лектор Фейгенбаума
- Лектор Фейгенбаума
- Программы стипендий и наставничества для стажеров взрослых врачей
- Финансовый комитет
- Комитет по финансам, стратегии и развитию
- Ежегодный апелляционный комитет Фонда
- Часто задаваемые вопросы
- Лекция Гардена
- GDPR Op-In
- Получить сверстника. Получить приз.
- Принять участие
- Как заставить ACE Kids действовать на финише
- Комитет по управлению и соответствию
- Целевая группа по управлению
- Заключительный отчет Целевой группы по управлению за 2019 г.

- Примеры рекомендаций
- Интраоперационные чехлы для чреспищеводного эндопротезирования
- Случаи клапанной регургитации
- #11559 (без названия)
- № 11643 (без названия)
- ДЕЛО 3
- Комитет по руководящим принципам и стандартам
- Руководство по подготовке и подаче тезисов
- Руководство по проведению комплексной чреспищеводной эхокардиографии Форма одобрения Совета
- Инструкции Информация
- Запрос рекомендаций
- Поиск рекомендаций
- Главная
- Главная – Правая панель
- Слайдер
- ПОЧЕТНЫЕ НОМИНАНТЫ FASE
- Как получить CME
- Ресурсы МКБ-10
- Конкурс календарей изображений
- ImageGuideEcho
- Сбор данных
- MIPS
- Показатели эффективности
- Цитата
- Поставщики программного обеспечения
- Ценность для заинтересованных сторон
- Веб-семинар ImageGuideEcho On Demand
- Комитеты, связанные с реестром ImageGuideEcho
- Важные крупномасштабные изменения кодирования для медицинских услуг по оценке и управлению, которые появятся в 2021 году
- Первое эхо в педиатрическом и врожденном пороке сердца Виртуальный опыт
- Информация CME
- Свяжитесь с нами
- Политика отмены курса
- Факультет
- Повестка дня программы
- Регистрация
- Кто должен присутствовать?
- Комитет по связям с промышленностью
- Партнеры отраслевого круглого стола
- Первоначальный пересмотр доработанного правила HOPPS
- Институциональное ценообразование
- Заинтересованы в присоединении к ASE?
- Консультативная группа по международным отношениям
- Политики IRT COVID-19
- Меню IRT 2022
- Аналитический центр IRT и повестка дня выездного семинара
- JASE
- Присоединиться к ASE
- Присоединиться к ASE
- Присоединяйтесь к АМА в 2018 году
- Лекция Калмансона
- Надзорный комитет Академии лидерства
- Центр обучения
- Заявление содиректора интерактивного курса
- Соглашение с преподавательским составом о курсах в реальном времени и раскрытие информации
- Форма вопроса о диастоле ЛЖ
- Обслуживание центра сертификации (MOC)
- Управляющий комитет/Исполнительный комитет
- Закон о доступе к Medicare и повторной авторизации CHIP (MACRA)
- Форма запроса на встречу – Индивидуальная встреча
- Форма запроса на встречу – регулярно запланированная
- Участник программы послов
- Послы бывших членов
- Преимущества членства
- Программа страхования профессиональной ответственности, одобренная ASE
- Справочник членов
- Руководящий комитет по членству
- Награда за наставничество
- Награда за наставничество
- Награда за заслуги перед
- Мобильные ресурсы
- Руководство по мультимодальной визуализации для пациентов с устраненной тетрадой Фалло – Форма одобрения Совета
- Национальный институт сердца, легких и крови (NHLBI) Возможности для исследовательской подготовки
- Нужна помощь? Свяжитесь с нами
- Только что выпущены новые изменения CMS
- Новости
- Пресс-релизы
- Социальные сети
- ИНСТРУКЦИЯ ПО НАЗНАЧЕНИЮ
- Номинации
- Комитет по назначениям
- Список должностных лиц и членов Совета директоров на 2019 год
- Список должностных лиц и членов Совета директоров на 2020 год
- Должностные лица и Совет директоров План на 2021 год
- Должностные лица и Совет директоров План на 2022 год
- Организационное членство
- Видео прошлых президентов
- Стипендии четвертого года обучения детской эхокардиографии
- Педиатрия/Неонатальная/Врожденная
- Награда за выслугу врачей
- Комитет по связям с общественностью
- Национальная стратегия президента Байдена в отношении COVID-19
- Блог Президента
- Предыдущие получатели стипендии студента-сонографиста Алана Д.
Вагонера - Предыдущие лекции E3:
- Предыдущие главные получатели гранта на поездку исследователя
- Политика конфиденциальности
- Товары для продажи
- Подготовка к профессиональному экзамену
- Предлагаемые изменения к Уставу АСЭ от 2022 г.
- Часто задаваемые вопросы о Фонде помощи поставщикам услуг
- Действия по обеспечению качества для ABP MOC Part-4
- Качество/Образование
- Радиационная безопасность кардиолога
- Ставки
- Рекомендации по количественному определению камер
- Рекомендации по использованию эхокардиографии при артериальной гипертензии у взрослых
- Регистрация и жилье
- Регистрация завершена
- Регистратура
- Регистрационный комитет
- Форма проверки интереса реестра
- Продлите подписку сегодня и получите доступ к 20 лекциям научных сессий ASE 2018 г.
- Продлить членство
- Исследовательский комитет
- Исследовательские ресурсы
- Повторная подписка на ASE Communications
- Раскрытие информации рецензентом
- Пересмотренные рекомендации по количественному определению камер сердца с помощью эхокардиографии у взрослых
- Ричард Э.
Кербер Лекция по этике/гуманитарным наукам - Премия Ричарда Поппа за выдающиеся достижения в области преподавания
- Премия Ричарда Поппа за выдающиеся достижения в области преподавания
- Театр науки и техники
- Программный комитет научных сессий
- Область применения специалиста по ультразвуковой диагностике
- Результаты поиска
- Вызов сонографа для отправки в CASE
- Часто задаваемые вопросы по УЗИ
- Лицензия на сонографию
- Часто задаваемые вопросы о лицензировании УЗИ
- Звук спасает жизни
- Специализированные группы по интересам
- Кардиоонкология
- Эхокардиография в интенсивной терапии (CCE)
- Начинающие энтузиасты эха (E3)
- Интервенционная эхокардиография (ИЭ)
- Неонатальная гемодинамика TnECHO SIG (NHTS)
- Ветеринарный SIG
- Справочник персонала
- Создание местного эхо-сообщества
- Ультрасовременная эхокардиография™
- Жилые помещения
- Уход за детьми
- Информация о CME
- Политика отмены курса
- Факультет
- Часто задаваемые вопросы
- Местные ресурсы по охране труда и технике безопасности
- Повестка дня программы
- Повестка дня программы
- Регистрация
- Современная эхокардиография 2020 Презентации преподавателей
- Современная эхокардиография 2022 г.
по запросу - Кто должен присутствовать?
- Шаг 2: Полное раскрытие информации
- Отправьте свои вопросы по обзорному курсу
- САММИТ 2014
- Жилые помещения
- Финальная программа с медиа
- Пресс
- Справочные ресурсы
- Регистрация
- Спонсоры
- Опрос – Контент по запросу
- Симпозиум по интервенционной эхокардиографии и принятию решений при структурных заболеваниях сердца
- Жилье
- Расширенная программа
- Информация CME
- Свяжитесь с нами
- Политика отмены курса
- Факультет
- Регистрация
- Транспорт
- Кто должен присутствовать?
- Основанный на технике
- тест 2
- тестовая форма
- Стипендия студента-сонографиста Алана Д. Вагонера
- Заявка на получение студенческого гранта на поездку для кардиоваскулярных сонографистов Фейгенбаума
- Период подачи данных MIPS 2019 уже открыт / проверьте свое первоначальное право на MIPS 2020 на веб-сайте QPP
- Коалиция по лицензированию сонографии: влияние через сотрудничество
- Руководство президента США по коронавирусу для Америки – 15 дней, чтобы замедлить распространение
- Повестка дня аналитического центра
- ВРЕМЯ ОБЯЗАТЕЛЬСТВА
- Комитет по обучению и сертификации
- Переведенные образовательные ресурсы
- Переведенные ресурсы — китайский
- Клуб журналов Твиттера
- Как получить CME
- Введение в Twitter
- Клубы предыдущих журналов
- Две сессии, которые нельзя пропустить — саммит по ценностям ASE во время предстоящих научных сессий ASE 2021 Виртуальный опыт
- Членство в армии США
- Строится
- Предстоящее приложение для калькулятора и алгоритма ASE
- Обновленная таблица оплаты услуг врачей на 2021 год — коэффициент пересчета
- Тест видео-отзыва Страница
- КОДЕКС ПОВЕДЕНИЯ ДОБРОВОЛЬЦЕВ И КОНФЛИКТ ИНТЕРЕСОВ/ЗАЯВЛЕНИЕ О РАСКРЫТИИ ИНФОРМАЦИИ
- Стать волонтером Фонда ASE
- Еженедельный брифинг по политике здравоохранения
- ДОБРО ПОЖАЛОВАТЬ • БЬЕНВЕНИДО • БЕМ-ВИНДО
- Что такое RUC и обследование RUC?
- ПОЛИТИКА СООБЩЕНИЯ
- Политика информирования о нарушениях
- Кто должен присутствовать?
- Кто должен присутствовать?
- Женщины в эхе
- WRMSD Большое испытание
- Информационный бюллетень для молодых врачей
- ASE Дом
- Выбор партнера Wisely®
- Живые и виртуальные курсы
- О АСЭ
- О нас
- ASE Бывшие президенты
- Совет директоров
- Принять участие
- Приложение JASE для iPad
- Свяжитесь с нами
- О нас
- Чем мы занимаемся
- Управление практикой
- Ресурсный центр
- Практические сокращения
- Кодирование и возмещение
- Стипендия Американского общества эхокардиографии
- Исследовательские ресурсы
- Новости исследований
- Условия исследования и полезные ссылки
- Возможности финансирования
- Исследование, финансируемое ASE
- Резюме проектов
- Резюме проектов
- Основные лаборатории академической визуализации
- Другие источники финансирования
- Публикации и презентации
- Требования к приложению
- Часто задаваемые вопросы
- Ранее профинансированные проекты
- Лауреаты исследовательской премии 2001 г.

- Лауреаты исследовательской премии 2002 г.
- Лауреаты исследовательской премии 2003 г.
- Лауреаты исследовательской премии 2004 г.
- Лауреаты исследовательской премии 2005 г.
- Лауреаты исследовательской премии 2006 г.
- Лауреаты исследовательской премии 2007 г.
- Лауреаты исследовательской премии 2008 г.
- Лауреаты исследовательской премии 2009 г.
- Награды, гранты и стипендии
- Управление практикой
- Образование
- Клиническая информация
- Педиатрические и врожденные пороки сердца Обучение и стипендии
- Рекомендации и стандарты
- Переводы руководств
- Педиатрические рекомендации
- Подготовка врачей
- Ресурсы сонографа
- Адвокация
- Новая администрация
- Новости адвокатуры
- Кодирование и возмещение
- Контакты и ресурсы
- Центр законодательных действий
- Информация о CME
- Свяжитесь с нами
- Политика отмены курса
- Факультет
- Часто задаваемые вопросы
- Повестка дня программы
- Регистрация
- Эхо заголовков
Категории:
- Журнал Эхо
- Общие
- Рекомендации
- Новости
- Новости адвокатуры
- Новости исследований
- Пресс-центр
Авторы:
- Энджи Портер (11)
- Арисса Купер (812)
- Проекты Insight (12)
- Натали Костэнтино (7)
MONDOLLY:
- 2
2 9003.

- август 2022
- июль 2022
- июнь 2022 г.
- Май 2022
- Апрель 2022
- март 2022
- Февраль 2022
- Январь 2022
- декабрь 2021
- ноябрь 2021
- Октябрь 2021
- Сентябрь 2021
- август 2021
- июль 2021
- июнь 2021
- Май 2021
- Апрель 2021
- март 2021
- Февраль 2021
- Январь 2021
- Декабрь 2020
- ноябрь 2020 г.
- октябрь 2020 г.
- Сентябрь 2020
- август 2020 г.
- июль 2020 г.
- июнь 2020 г.
- Май 2020
- Апрель 2020
- март 2020 г.
- Февраль 2020
- Январь 2020
- Декабрь 2019
- ноябрь 2019 г.
- Октябрь 2019
- Сентябрь 2019
- август 2019 г.
- июль 2019 г.
- июнь 2019 г.
- май 2019 г.
- Апрель 2019
- март 2019 г.
- Февраль 2019
- Январь 2019 г.

- Декабрь 2018 г.
- ноябрь 2018 г.
- Октябрь 2018
- Сентябрь 2018
- август 2018 г.
- июль 2018 г.
- июнь 2018 г.
- май 2018 г.
- Апрель 2018 г.
- Март 2018 г.
- Февраль 2018 г.
- Январь 2018 г.
- Ноябрь 2017 г.
- Октябрь 2017 г.
- Сентябрь 2017
- август 2017 г.
- июль 2017 г.
- июнь 2017 г.
- май 2017 г.
- Апрель 2017 г.
- Март 2017 г.
- Февраль 2017
- Январь 2017 г.
- Декабрь 2016 г.
- Ноябрь 2016 г.
- Октябрь 2016 г.
- Сентябрь 2016 г.
- август 2016 г.
- июль 2016 г.
- июнь 2016 г.
- май 2016 г.
- Апрель 2016 г.
- Март 2016 г.
- Февраль 2016 г.
- Январь 2016 г.
- Декабрь 2015 г.
- ноябрь 2015 г.
- Октябрь 2015 г.
- Сентябрь 2015 г.
- август 2015 г.

- июль 2015 г.
- июнь 2015 г.
- май 2015 г.
- Апрель 2015 г.
- март 2015 г.
- Февраль 2015 г.
- Январь 2015 г.
- Декабрь 2014 г.
- ноябрь 2014 г.
- октябрь 2014 г.
- Сентябрь 2014 г.
- август 2014 г.
- июль 2014 г.
- июнь 2014 г.
- Апрель 2014 г.
- Февраль 2014 г.
- Январь 2014 г.
- ноябрь 2013 г.
- октябрь 2013 г.
- Март 2013 г.
- Сентябрь 2012 г.
Последние сообщения:
- Кофейный день ASEF 2022
- Сентябрь JASE – Что читать в первую очередь?
- Фейгенбаум Преподаватель ОТКРЫТ!
- Отправьте свою науку для презентации на Echo Hawaii
- ЭХО ТОМ 11 | Выпуск 8
- ASE на дороге
- Научные сессии ASE 2022: теперь доступна онлайн-библиотека
- Август JASE — как всегда, много вкусного
- ЭХО ТОМ 11 | Выпуск 7
- CASE приносит образовательную жару в июле!
- Предстоящий вебинар: Рекомендации по мультимодальной визуализации сердечно-сосудистой системы у пациентов с ГКМП
- Зарегистрируйтесь сейчас: Inaugural Echo в PCHD Virtual Experience
- 2023 Опубликована предлагаемая политика США в отношении платежей
- Предстоящий вебинар: Штамм для кардиоонкологии 101
- Обращение ко всем будущим лидерам: прием заявок в ASE Leadership Academy закрывается 1 августа Руководство по обзору реестра
- Advanced Cardiac Sonographer (ACS), 3-е издание, комплект
- Доктор Джонатан Линднер назначен на службу в MEDCAC
- ASE выбирает нового президента совета директоров
- Штаб-квартира ASE закрыта — 4 и 5 июля
- Июньский журнал ECHO теперь онлайн
- На случай, если вы пропустили: другие основные моменты ASE 2022, включая лекцию Фейгенбаума ASE 2022
- Обращение ко всем будущим лидерам: открыто приложение ASE Leadership Academy
- 23-й ежегодный обзорный курс ASCeXAM/ReASCE: виртуальный опыт – не пропустите предстоящие вопросы и ответы в прямом эфире 9 июля
- ЭХО ТОМ 11 | Выпуск 6
- Июнь — отличный месяц, чтобы похвастаться КЕЙСОМ!
- Руководство по обзору формулы эхокардиографии, часть 3: уже доступно
- Заявки на участие в сессии ASE 2023 должны быть представлены до 30 июня
- Advanced Echo — виртуальный опыт Echo Access™: доступный контент
- Эхокардиография играет важную роль в мониторинге аномальных показателей сердечной деятельности у детей, у которых ранее был диагностирован COVID-19
- Обнадеживающие исследования для пациентов, страдающих обструктивной ГКМП, будут представлены на ASE 2022
- Инновации в трансторакальной эхокардиографии позволяют получать 2D-изображения посредством деконструкции наборов 3D-данных
- Новое исследование направлено на улучшение сердечно-сосудистого прогноза у беременных женщин с преэклампсией в анамнезе
- Инновационные решения для УЗИ сердечно-сосудистой системы, представленные на выставке ASE 2022
- Руководство ASE по HCM в июне JASE
- ASE и IEEE UFFC совместно проведут хакатон по новой ультразвуковой технологии для непрерывного мониторинга в критических ситуациях
- Обращение ко всем будущим лидерам: открыто приложение ASE Leadership Academy
- ЭХО ТОМ 11 | Выпуск 5
- Не пропустите выставку ASE 2022!
- CSE Live Journal Club/JASE Podcast
- Пелликка назначена главным редактором журнала Американского общества эхокардиографии
- Предстоящий вебинар – Детская чреспищеводная эхокардиография: интраоперационная коммуникация и принятие решений
- Книги, книги, книги!
- Жилье для ASE 2022 скоро закрывается – забронируйте номер сегодня
- Поздравляем с новейшим FASE от ASE
- ASE нуждается в вашей помощи — практические счета-фактуры
- Ранняя регистрация на ASE 2022 заканчивается на следующей неделе, 10 мая
- Американское общество эхокардиографии наградит восемь лауреатов премии на своей 33-й ежегодной научной сессии
- ЭХО ТОМ 11 | Выпуск 4
- RUC – Расходы на практику
- Ранняя регистрация на ASE 2022 закрывается 10 мая
- Апрель ДЕЛО — Волнение эха
- ASE приветствует девять новых членов правления
- Штаб-квартира ASE закрыта — 15 апреля
- Новая возможность получения гранта для пациентов с недавно диагностированным тяжелым клапанным пороком сердца
- НОВЫЙ ЧЕХОЛ Функция сонографа!
- Новые рекомендации различных обществ подчеркивают, как неинвазивные методы визуализации играют ключевую роль в оценке и лечении пациентов с ишемической болезнью сердца
- Заявление ASE о ориентированном на пациента и персонализированном подходе к визуализации
- Атрибуты отслеживания спеклов в апрельском JASE
- марта GEM – Грегори Татум, доктор медицины, FASE
- ASE всегда готов помочь с вашими вопросами по программированию
- Дайте ASEF лучший шанс!
- ЭХО ТОМ 11 | Выпуск 3
- Месяц весенних даров
- Предстоящие курсы от ASE
- ЗВОНИТЕ ДЛЯ ДОКУМЕНТОВ – ДЕЛО Специальный выпуск: Сердечно-сосудистый POCUS
- Дополнительный код CPT и значение для 3D-эхокардиографии
- Оценка обморока в March JASE
- Поздравляем с новейшим FASE от ASE
- С Месяцем женской истории!
- Подать заявку на получение гранта Совета ASEF 2022 года
- ДЕЛО за февраль – Любовь к тому, что показывает эхо
- Стал доступен журнал ECHO за февраль
- Голосование за новых должностных лиц и совет директоров
- Предстоящий вебинар: эхокардиография с контрастным усилением в педиатрии
- Штаб-квартира ASE закрыта — понедельник, 21 февраля
- Эхо, том 11, выпуск 2
- Современная эхокардиография: прямая трансляция 19-20 февраля
- Оценка размера левого предсердия в февральском JASE
- Поздравляем лауреатов премии ASE 2022 года
- Подать заявку на учебный грант Совета ASEF 2022
- Голосование за новых должностных лиц и совет директоров
- Ультрасовременная эхокардиография: теперь виртуальная
- Предстоящие вебинары
- Журнал «Эхо за январь» теперь доступен
- Открыта регистрация и размещение на ASE 2022
- ЭХО ТОМ 11 Выпуск 1
- Предстоящий вебинар: стратегии финансового успеха в 2022 году и далее
- Обновленный Кодекс этики ASE и политика информирования о нарушениях
- OnlineJASE.


Трехкамерный профиль


Светоотражающий эффект способствует повышенному уровню сохранения тепла. Такие стекла уместны в регионах с очень холодными зимами.


Недорогие профили в таких условиях быстро размягчаются, что в итоге приводит к деформации створок и рам.
ru/okna/kak-otlichit-pjatikamernoe-okno-ot-trehkamernogo.html




Класс защиты от шума, до
Система с повышенным взломом и тепло-, звукоизоляцией.
