Санузел для инвалидов и МГН в залах общественного питания
Сделать онлайн-заказ
Во всех зданиях, где человек может находиться более 60 минут, должны предусматриваться санитарно-бытовые помещения для посетителей. В соответствии с п. 6.3.1 Свода правил 59.13330.2020 «Доступность зданий и сооружений для маломобильных групп населения», санитарно-бытовые помещения должны включать специально оборудованные для инвалидов универсальные кабины в уборных, места в раздевальных ванных и душевых. При этом должна обеспечиваться доступность уборных общего пользования для людей с нарушением зрения. Пункт 6.3.2 этого документа регламентирует долю специальных кабин для инвалидов: пять процентов от общего их количества в здании, но не менее одной. Любое предприятие общественногго питания не является исключением.
Для создания правильного проекта доступности необходимо качественно подготовленное техническое задание!
Тифлоцентр «Вертикаль» разрабатывает проекты по доступности санитарного узла в зданиях общепита для маломобильных групп населения.
Для этого необходимо скачать заполненное техническое задание на проектирование или оставить заявку на нашем сайте.
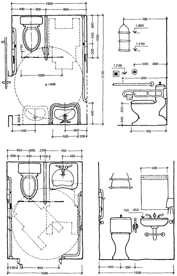
Кабина, доступная для МГН в общественной уборной должна иметь следующие габариты: ширина – не менее 1.65 м, глубина – не менее 2.2 м, ширина двери – не менее 0.9. В кабине сбоку от унитаза следует предусматривать свободное пространство для размещения кресла-коляски шириной не менее 0.8 м, а также крючки для одежды, костылей и других принадлежностей. Двери должны открываться наружу.
В помещениях доступных душевых следует предусматривать не менее одной кабины, оборудованной для инвалида на кресле-коляске, перед которой предусматривается пространство для подъезда кресла-коляски. Для инвалидов с нарушением опорно-двигательного аппарата и зрения следует предусматривать закрытые душевые кабины с нескользким полом и поддоном без порога с открыванием двери наружу и входом непосредственно из раздевалки.
Доступная душевая кабина для МГН должна быть оборудована переносным или закрепленным на стене складным сиденьем, расположенным на высоте не более 0.
48 м от уровня поддона, ручным душем, настенными поручнями. Ширина и длина сиденья должны быть не менее 0,5 м.
В данном руководстве учтены изменения нового свода правил СП 59.13330. Схема адаптации соответствует нормам, вступившим в силу 1 сентября 2021 года.
Нажмите на нужный элемент и узнайте как обеспечить его доступность:
| № п/п | Наименование | Принцип обеспечения доступности | Параметры | ТЗ | Прайс | Видео |
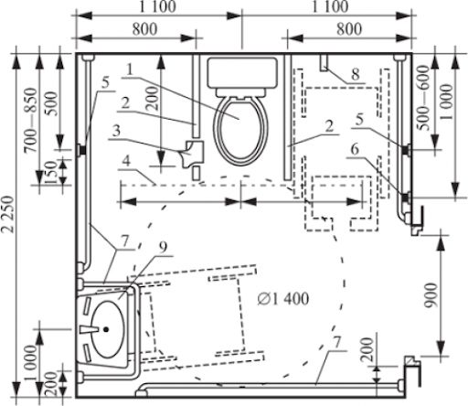
| 1 | Внутреннее пространство санузла | Для обеспечения беспрепятственного маневрирования человека на инвалидной коляске. Подъезд к унитазу, умывальнику и сушилке. | Универсальная кабина общественной уборной должна иметь размеры в плане, м, не менее: ширина — 1,7 м, глубина — 2,2 м, ширина двери — 0,9 м. Размеры актуальны при условии расположения унитаза справа или слева от входа. п. 6.3.3 СП 59.13330.2020 | |||
| 2 | Откидной поручень для унитаза (с бумагодержателем) | Используется как для опорника, так и для колясочника. Для колясочника откидывается в момент пересаживания с инвалидной коляски на унитаз. Для незрячего — ориентир определения местоположения унитаза. | Изготавливается из нержавеющей трубы 30-50 мм, имеет прочное крепление к поверхности пола. При откидывании вверх имеет фиксатор в верхнем положении. Оборудован держателем для туалетной бумаги. Имеет высоту 0,85 м от уровня пола, устанавливается к унитазу со стороны подъезда на инвалидной коляске п. 6.3.3 СП 59.13330.2020, п. 8.3 СП 136.13330.2012, п. 5.5.3 ГОСТ 51261-2022 | Скачать тех. задание | ||
| 3 | Унитаз для МГН | Специальный унитаз для МГН с автоматическим сливом воды или кнопочным управлением. | Следует применять унитазы, имеющие опору для спины, принимающие высоту — 0,45-0,5 м и длину — 0,7 м, а также оборудованные автоматической системой смыва или кнопочным управлением п. 6.3.3, 6.3.9 СП 59.13330.2020, п. 8.13 СП 136.13330.2012 | Скачать тех. задание | ||
| 4 | Беспроводная кнопка вызова помощи | Предназначена для помощи человеку с инвалидностью в санузле. | Предназначена для вызова персонала в случае, если человеку требуется помощь в санузле. п. 5.4 таблица 6.1 СП 31-102-99, п. 6.3.6 СП 59.13330.2020 | Скачать тех. задание | ||
| 5 | Крючок для костылей | Для удерживания одновременно 2-х костылей или трости в вертикальном положении. | Сбоку от унитаза следует предусматривать пространство рядом с унитазом шириной не менее 0,8 м для размещения кресла-коляски, а также крючки для одежды, костылей и других принадлежностей. п. 6.3.3 СП 59.13330.2020 | Скачать тех. задание | ||
| 6 | Пристенный опорный поручень с травмобезопасными окончаниями | Для опорника – дополнительная точка опоры. | Диаметр захвата 30-50 мм, высота установки 90 см, плавное огибание препятствий, непрерывность поручня по всей длине с плавными примыканиями к поверхности стен в начале и конце поручня. Может изготавливаться как из отдельных труб, так и с применением специальных поручней-отбойников. п. 6.3.6 СП 59.13330.2020, п. 4.3.1, п. 5.1.5 ГОСТ Р 51261-2022 | Скачать тех. задание | ||
| 7 | Сенсорный кран для воды | Для облегчения управления подачей воды людьми с инвалидностью, без прикладывания дополнительных усилий и выполнения лишних действий. | Сенсорный кран бесконтактного типа устанавливается на поверхность раковины. п. 6.3.9 СП 59.13330.2020 | Скачать тех. задание | ||
| 8 | Поворотное зеркало для МГН | Для возможности использования зеркалом инвалидом-колясочником в виду ограниченности отражения стандартного зеркала в его зоне доступности.![]() | Устанавливается над раковиной, имеет поворотный механизм и ручку настройки для настройки угла отражения, доступную для инвалида колясочника. п. 8.10 СП 136.13330.2012 | Скачать тех. задание | ||
| 9 | Система «Доступный вход» | Для обеспечения комфортного доступа людей, использующих костыли, трости и инвалидные коляски. Дверь открывается автоматически при нажатии на кнопку. | Система обеспечивает механическое управление дверью и срабатывает при нажатии на кнопку. Кнопки обладают тактильным эффектом с применением системы Брайля, для идентификации незрячим человеком. Рекомендуется применение датчиков и сенсоров для автоматического управления дверью. | Скачать тех. задание | ||
| 10 | Опорный поручень раковины | Для незрячих — направляющий элемент. Для опорника необходимая точка опоры. | В ванных комнатах и других местах общего пользования, где установлены раковины умывальников, предусмотрены поручни для опоры инвалидов при пользовании умывальниками п. 5.5.14 ГОСТ Р 51261-2022 | Скачать тех. задание | ||
| 11 | Сенсорный дозатор жидкого мыла | Для облегчения управления подачей мыла людьми с инвалидностью, без прикладывания дополнительных усилий и выполнения лишних действий. | Сенсорный дозатор жидкого мыла устанавливается на поверхность раковины. п. 6.3.9 СП 59.13330.2020, п. 9.13 СП 136.13330.2012 | Скачать тех. задание | ||
| 12 | Тактильная мнемосхема санузла | Для предварительного изучения пространства туалета в целях самостоятельного передвижения в туалете без сопровождающего. | Мнемосхема выполняется рельефным способом с применением системы Брайля. Высота установки 1,2-1,6 м, располагается на стене на расстоянии 0,1-0,5 м от края двери со стороны дверной ручки. п. 6.3.6 СП 59.13330.2020, п. 8.16 СП 136.13330.2012 | Скачать тех. задание | ||
| 13 | Размер двери | Для обеспечения доступа в санузел инвалидов на колясках.![]() | Ширина дверного проема должна быть не менее 0,8-0,9 м в свету. п. 6.1.5 СП 59.13330.2020 | |||
| 14 | Контрастное дверное полотно по отношению к стене | Для облегчения идентификации дверного проема слабовидящими людьми и человеком с когнитивными ограничениями. | Следует использовать контрастные сочетания цветов в отношении применяемого оборудования: дверь-стена-ручка. п. 6.2.23, 6.4.1 СП 59.13330.2020 | Скачать тех. задание | ||
| 15 | Тактильные пиктограммы на пути движения | Обеспечение легкой идентификации туалета, а также наглядность пути движения. | Имеют тактильный эффект, устанавливаются на высоте 1,2-1,6 м от уровня пола. Последующая пиктограмма устанавливается в зоне видимости предыдущего указателя. п. 6.3.6, 6.5.1 СП 59.13330.2020 | Скачать тех. задание | ||
| 16 | Пристенный опорный поручень с травмобезопасными окончаниями | Для незрячих — направляющий элемент с применением тактильной информации. Для опорника — дополнительная точка опоры. | Диаметр захвата 30-50 мм, высота установки не менее 0,85 м, плавное огибание препятствий, непрерывность поручня по всей длине с плавными примыканиями к поверхности стен в начале и конце поручня. Может изготавливаться как из отдельных труб, так и с применением специальных поручней отбойников. п. 5.4 ГОСТ Р 51261-2022, п. 6.2.12, 6.3.3 СП 59.13330.2020 | Скачать тех. задание | ||
| 17 | Эргономичная ручка | Для возможности использования на удобной для захвата рукой высоте инвалидами разных категорий. | Ручки механических и ручных дверей по расположению и форме исполнения должны быть легко доступными с обеих сторон, независимо от положения двери. п. 6.4.2, 6.4.3 СП 59.13330.2020, п. 9.12, Таблица А2 СП 136.13330.2012 | |||
| 18 | Интеллектуальная система управления дверью «Доступный вход» | Для обеспечения комфортного доступа людей, использующих костыли, трости и инвалидные коляски. Дверь открывается автоматически при нажатии на кнопку. | Система обеспечивает механическое управление дверью и срабатывает при нажатии на кнопку. Кнопки обладают тактильным эффектом с применением системы Брайля, для идентификации незрячим человеком. Рекомендуется применение датчиков и сенсоров для автоматического управления дверью. п. 6.1.7 СП 59.13330.2020 | Скачать тех. задание | ||
| 19 | Тактильно-звуковая табличка | Для идентификации санузла всеми посетителями. Тактильно-звуковой эффект облегчает использование незрячему и человеку с когнитивными ограничениями. | У дверей санитарно-гигиенических помещений со стороны дверной ручки на высоте 1,2-1,6 м следует устанавливать тактильные схемы с акустическими элементами. п. 6.3.6 СП 59.13330.2020, п. 10.1.2, таблица 10.1 СП 136.13330.2012 | Скачать тех. задание | ||
| 20 | Отбойник для инвалидной коляски | Для защиты дверного полотна при открывании её толканием нижней частью инвалидной коляски.![]() | Рекомендуемая ширина — на 100 мм уже дверного полотна, высота — 300 мм. Установка на высоте 50 мм от нижнего края двери с обеих сторон. Материал изготовления — нержавеющая сталь. | Скачать тех. задание | ||
| 21 | Адаптивная система (световое табло очереди) «Занято-свободно» | Система автоматически определяет доступность санитарно-гигиенической комнаты в данный момент времени. | Оборудован датчиком движения. При движении в контролируемой зоне производится автоматическая активация информационного поля «Занято». Отсутствие движения на протяжении более 15 секунд активирует информационное табло «Свободно». п. 6.3.9 СП 59.13330.2020 | Скачать тех. задание | ||
| 22 | Визуально-акустическая система | Позволяет передавать информацию визуальным и акустическим способом. Актуально для информирования всех категорий граждан в соответствии с принципами «универсального дизайна». Дополнительно применяется для оповещения о возникновении ЧС. | Устанавливается на высоте 1,5-4,5 м от уровня пола, подключается к общей системе оповещения «СурдоЦентр», пожарной сигнализации. п. 6.5.3, 6.5.4, 6.5.7 СП 59.13330.2020 | Скачать тех. задание | ||
| 23 | Сушилка для рук | Для возможности использования всеми категориями людей с инвалидностью. | Электрический прибор для сушки рук следует располагать на высоте не более 0,8 м от уровня пола, в зоне, доступной для человека, использующего кресло-коляску. п. 6.4.2 СП 59.13330.2020, п. 8.10 СП 136.13330.2012 | Скачать тех. задание | ||
| 24 | Крючок для сумки, одежды | Для размещения верхней одежды, сумки или рюкзака. | Следует предусматривать пространство рядом с унитазом шириной не менее 0,8 м для размещения кресла-коляски, а также крючков для одежды, костылей и других принадлежностей. п. 6.3.3 СП 59.13330.2020 | Скачать тех. задание |
Согласно п. 6.3.6 СП 59.13330.2016, у дверей блоков санитарно-бытовых помещений, включающих в себя доступные кабины, следует предусматривать со стороны ручки информационные таблички помещений, выполненные рельефно-графическим и рельефно-точечным способом и расположенные на высоте от 1.2 до 1.6 м от уровня пола и на расстоянии 0.1-0.5 м от края двери. Также доступные и универсальные кабины должны быть оборудованы системой тревожной сигнализации или системой двухсторонней громкоговорящей связи. Тип системы, которая должна быть применена, определяется в задании на проектирование.
В доступных кабинах и универсальных кабинах уборных и душевых следует применять водопроводные краны с рычажной рукояткой и термостатом, а при возможности – с автоматическими и сенсорными кранами бесконтактного типа. Применение кранов с раздельным управлением горячей и холодной водой не допускается (п.
6.3.9. СП 59.13330.2016).
Руководства по адаптации других зон:
Требования к адаптации для инвалидов оговорены в ряде нормативно-правовых и нормативно-технических документах. Среди них Федеральный закон №181-ФЗ «О социальной защите инвалидов в РФ», Свод правил 59.13330.2016 «Доступность зданий и сооружений для маломобильных групп населения», Свод правил 140.13330.2012 «Городская среда. Правила проектирования для маломобильных групп населения».
Зал приема пищиПарковка для МГН у общепитаВходная группа в здании общепита
НАШЕ ПРЕИМУЩЕСТВО — ДОЛГОЛЕТНИЙ ОПЫТ и КАЧЕСТВО!
Все видео
Будьте осторожны — контрафакт тактильной продукции!
Некачественная подделка нержавеющей тактильной плитки
Тифлоцентр «Вертикаль» — партнёр «Народного музея», доступного для всех
Сергей Собянин оценил продукцию Тифлоцентра в Едином центре поддержки участников СВО
Интерактивный кукольный театр прошёл апробацию в Центре реабилитации в Москве
Ежегодный чемпионат по голболу «Кубок Вертикаль»-2023
Тифлоцентр в Сургуте — обновление шоурума и склада продукции
Владимир Сипкин посетил экспозицию Тифлоцентра «Вертикаль»
Тифлоцентр — член Российского союза промышленников и предпринимателей
1 декабря 2022 года вступают в силу 2 новых нормативных документа
Что изменилось в СП 13330.
2020 по сравнению с СП 13330.2016?
Наземные указатели для наружного применения в соответствии с ГОСТом
Правила применения тактильно-контрастной плитки в соответствии с ГОСТ Р 52875-2018
Пандус «Конструктор»: просто, удобно и практично
10 ошибок при монтаже тактильной плитки
Как подготовиться к проверке по «ДОСТУПНОЙ СРЕДЕ»
Все статьи
| 1 | Внутреннее пространство санузла | Для обеспечения беспрепятственного маневрирования человека на инвалидной коляске. Подъезд к унитазу, умывальнику и сушилке. | Универсальная кабина общественной уборной должна иметь размеры в плане, м, не менее: ширина — 1,7 м, глубина — 2,2 м, ширина двери — 0,9 м. Размеры актуальны при условии расположения унитаза справа или слева от входа. п. 6.3.3 СП 59.13330.2020 | |||
| 2 | Откидной поручень для унитаза (с бумагодержателем) | Используется как для опорника, так и для колясочника. Для колясочника откидывается в момент пересаживания с инвалидной коляски на унитаз. Для незрячего — ориентир определения местоположения унитаза. | Изготавливается из нержавеющей трубы 30-50 мм, имеет прочное крепление к поверхности пола. При откидывании вверх имеет фиксатор в верхнем положении. Оборудован держателем для туалетной бумаги. Имеет высоту 0,85 м от уровня пола, устанавливается к унитазу со стороны подъезда на инвалидной коляске п. 6.3.3 СП 59.13330.2020, п. 8.3 СП 136.13330.2012, п. 5.5.3 ГОСТ 51261-2022 | Скачать тех. задание | ||
| 3 | Унитаз для МГН | Специальный унитаз для МГН с автоматическим сливом воды или кнопочным управлением. | Следует применять унитазы, имеющие опору для спины, принимающие высоту — 0,45-0,5 м и длину — 0,7 м, а также оборудованные автоматической системой смыва или кнопочным управлением п. 6.3.3, 6.3.9 СП 59.13330.2020, п. 8.13 СП 136.13330.2012 | Скачать тех. задание | ||
| 4 | Беспроводная кнопка вызова помощи | Предназначена для помощи человеку с инвалидностью в санузле. | Предназначена для вызова персонала в случае, если человеку требуется помощь в санузле. п. 5.4 таблица 6.1 СП 31-102-99, п. 6.3.6 СП 59.13330.2020 | Скачать тех. задание | ||
| 5 | Крючок для костылей | Для удерживания одновременно 2-х костылей или трости в вертикальном положении. | Сбоку от унитаза следует предусматривать пространство рядом с унитазом шириной не менее 0,8 м для размещения кресла-коляски, а также крючки для одежды, костылей и других принадлежностей. п. 6.3.3 СП 59.13330.2020 | Скачать тех. задание | ||
| 6 | Пристенный опорный поручень с травмобезопасными окончаниями | Для незрячих – направляющий элемент с применением тактильной информации. Для опорника – дополнительная точка опоры. | Диаметр захвата 30-50 мм, высота установки 90 см, плавное огибание препятствий, непрерывность поручня по всей длине с плавными примыканиями к поверхности стен в начале и конце поручня. Может изготавливаться как из отдельных труб, так и с применением специальных поручней-отбойников. п. 6.3.6 СП 59.13330.2020, п. 4.3.1, п. 5.1.5 ГОСТ Р 51261-2022 | Скачать тех. задание | ||
| 7 | Сенсорный кран для воды | Для облегчения управления подачей воды людьми с инвалидностью, без прикладывания дополнительных усилий и выполнения лишних действий. | Сенсорный кран бесконтактного типа устанавливается на поверхность раковины. п. 6.3.9 СП 59.13330.2020 | Скачать тех. задание | ||
| 8 | Поворотное зеркало для МГН | Для возможности использования зеркалом инвалидом-колясочником в виду ограниченности отражения стандартного зеркала в его зоне доступности.![]() | Устанавливается над раковиной, имеет поворотный механизм и ручку настройки для настройки угла отражения, доступную для инвалида колясочника. п. 8.10 СП 136.13330.2012 | Скачать тех. задание | ||
| 9 | Система «Доступный вход» | Для обеспечения комфортного доступа людей, использующих костыли, трости и инвалидные коляски. Дверь открывается автоматически при нажатии на кнопку. | Система обеспечивает механическое управление дверью и срабатывает при нажатии на кнопку. Кнопки обладают тактильным эффектом с применением системы Брайля, для идентификации незрячим человеком. Рекомендуется применение датчиков и сенсоров для автоматического управления дверью. п. 6.1.7 СП 59.13330.2020 | Скачать тех. задание | ||
| 10 | Опорный поручень раковины | Для незрячих — направляющий элемент. Для опорника необходимая точка опоры. | В ванных комнатах и других местах общего пользования, где установлены раковины умывальников, предусмотрены поручни для опоры инвалидов при пользовании умывальниками п. 5.5.14 ГОСТ Р 51261-2022 | Скачать тех. задание | ||
| 11 | Сенсорный дозатор жидкого мыла | Для облегчения управления подачей мыла людьми с инвалидностью, без прикладывания дополнительных усилий и выполнения лишних действий. | Сенсорный дозатор жидкого мыла устанавливается на поверхность раковины. п. 6.3.9 СП 59.13330.2020, п. 9.13 СП 136.13330.2012 | Скачать тех. задание | ||
| 12 | Тактильная мнемосхема санузла | Для предварительного изучения пространства туалета в целях самостоятельного передвижения в туалете без сопровождающего. | Мнемосхема выполняется рельефным способом с применением системы Брайля. Высота установки 1,2-1,6 м, располагается на стене на расстоянии 0,1-0,5 м от края двери со стороны дверной ручки. п. 6.3.6 СП 59.13330.2020, п. 8.16 СП 136.13330.2012 | Скачать тех. задание | ||
| 13 | Размер двери | Для обеспечения доступа в санузел инвалидов на колясках.![]() | Ширина дверного проема должна быть не менее 0,8-0,9 м в свету. п. 6.1.5 СП 59.13330.2020 | |||
| 14 | Контрастное дверное полотно по отношению к стене | Для облегчения идентификации дверного проема слабовидящими людьми и человеком с когнитивными ограничениями. | Следует использовать контрастные сочетания цветов в отношении применяемого оборудования: дверь-стена-ручка. п. 6.2.23, 6.4.1 СП 59.13330.2020 | Скачать тех. задание | ||
| 15 | Тактильные пиктограммы на пути движения | Обеспечение легкой идентификации туалета, а также наглядность пути движения. | Имеют тактильный эффект, устанавливаются на высоте 1,2-1,6 м от уровня пола. Последующая пиктограмма устанавливается в зоне видимости предыдущего указателя. п. 6.3.6, 6.5.1 СП 59.13330.2020 | Скачать тех. задание | ||
| 16 | Пристенный опорный поручень с травмобезопасными окончаниями | Для незрячих — направляющий элемент с применением тактильной информации. Для опорника — дополнительная точка опоры. | Диаметр захвата 30-50 мм, высота установки не менее 0,85 м, плавное огибание препятствий, непрерывность поручня по всей длине с плавными примыканиями к поверхности стен в начале и конце поручня. Может изготавливаться как из отдельных труб, так и с применением специальных поручней отбойников. п. 5.4 ГОСТ Р 51261-2022, п. 6.2.12, 6.3.3 СП 59.13330.2020 | Скачать тех. задание | ||
| 17 | Эргономичная ручка | Для возможности использования на удобной для захвата рукой высоте инвалидами разных категорий. | Ручки механических и ручных дверей по расположению и форме исполнения должны быть легко доступными с обеих сторон, независимо от положения двери. п. 6.4.2, 6.4.3 СП 59.13330.2020, п. 9.12, Таблица А2 СП 136.13330.2012 | |||
| 18 | Интеллектуальная система управления дверью «Доступный вход» | Для обеспечения комфортного доступа людей, использующих костыли, трости и инвалидные коляски. Дверь открывается автоматически при нажатии на кнопку. | Система обеспечивает механическое управление дверью и срабатывает при нажатии на кнопку. Кнопки обладают тактильным эффектом с применением системы Брайля, для идентификации незрячим человеком. Рекомендуется применение датчиков и сенсоров для автоматического управления дверью. п. 6.1.7 СП 59.13330.2020 | Скачать тех. задание | ||
| 19 | Тактильно-звуковая табличка | Для идентификации санузла всеми посетителями. Тактильно-звуковой эффект облегчает использование незрячему и человеку с когнитивными ограничениями. | У дверей санитарно-гигиенических помещений со стороны дверной ручки на высоте 1,2-1,6 м следует устанавливать тактильные схемы с акустическими элементами. п. 6.3.6 СП 59.13330.2020, п. 10.1.2, таблица 10.1 СП 136.13330.2012 | Скачать тех. задание | ||
| 20 | Отбойник для инвалидной коляски | Для защиты дверного полотна при открывании её толканием нижней частью инвалидной коляски.![]() | Рекомендуемая ширина — на 100 мм уже дверного полотна, высота — 300 мм. Установка на высоте 50 мм от нижнего края двери с обеих сторон. Материал изготовления — нержавеющая сталь. | Скачать тех. задание | ||
| 21 | Адаптивная система (световое табло очереди) «Занято-свободно» | Система автоматически определяет доступность санитарно-гигиенической комнаты в данный момент времени. | Оборудован датчиком движения. При движении в контролируемой зоне производится автоматическая активация информационного поля «Занято». Отсутствие движения на протяжении более 15 секунд активирует информационное табло «Свободно». п. 6.3.9 СП 59.13330.2020 | Скачать тех. задание | ||
| 22 | Визуально-акустическая система | Позволяет передавать информацию визуальным и акустическим способом. Актуально для информирования всех категорий граждан в соответствии с принципами «универсального дизайна». Дополнительно применяется для оповещения о возникновении ЧС. | Устанавливается на высоте 1,5-4,5 м от уровня пола, подключается к общей системе оповещения «СурдоЦентр», пожарной сигнализации. п. 6.5.3, 6.5.4, 6.5.7 СП 59.13330.2020 | Скачать тех. задание | ||
| 23 | Сушилка для рук | Для возможности использования всеми категориями людей с инвалидностью. | Электрический прибор для сушки рук следует располагать на высоте не более 0,8 м от уровня пола, в зоне, доступной для человека, использующего кресло-коляску. п. 6.4.2 СП 59.13330.2020, п. 8.10 СП 136.13330.2012 | Скачать тех. задание | ||
| 24 | Крючок для сумки, одежды | Для размещения верхней одежды, сумки или рюкзака. | Следует предусматривать пространство рядом с унитазом шириной не менее 0,8 м для размещения кресла-коляски, а также крючков для одежды, костылей и других принадлежностей. п. 6.3.3 СП 59.13330.2020 | Скачать тех. задание |
сек. 300.8 (c) — Закон об образовании лиц с ограниченными возможностями
Устав/Правила Главная » Правила » Часть B » Подчасть A » Раздел 300.8 »c
(c) Определения терминов «инвалидность». Термины, используемые в этом определении ребенка с инвалидностью, определяются следующим образом:
(1)
(i) Аутизм означает нарушение развития, существенно влияющее на вербальную и невербальную коммуникацию и социальное взаимодействие, обычно проявляющееся в возрасте до трех лет, которое неблагоприятно влияет на успеваемость ребенка. Другими характеристиками, часто связанными с аутизмом, являются участие в повторяющихся действиях и стереотипных движениях, сопротивление изменениям окружающей среды или изменениям в распорядке дня, а также необычные реакции на сенсорные переживания.
(ii) Аутизм не применяется, если на успеваемость ребенка отрицательно влияет в основном из-за эмоционального расстройства, как это определено в параграфе (c)(4) данного раздела.
(iii) Ребенок, у которого проявляются признаки аутизма после трехлетнего возраста, может быть идентифицирован как страдающий аутизмом, если удовлетворяются критерии параграфа (c)(1)(i) данного раздела.
(2) Под слепоглухими понимаются сопутствующие нарушения слуха и зрения, сочетание которых обуславливает такие серьезные коммуникативные и другие развивающие и образовательные потребности, что они не могут быть учтены в специальных образовательных программах исключительно для глухих или слепых детей.
(3) Глухота означает нарушение слуха, которое является настолько серьезным, что ребенок не может обрабатывать лингвистическую информацию посредством слуха, с усилением или без него, что неблагоприятно влияет на успеваемость ребенка в учебе.
(4)
(i) Эмоциональное расстройство означает состояние, проявляющее одну или несколько из следующих характеристик в течение длительного периода времени и в заметной степени, которое неблагоприятно влияет на успеваемость ребенка:
(A) Неспособность учиться, что не может быть объяснено интеллектуальными, сенсорными факторами или факторами здоровья.
(B) Неспособность строить или поддерживать удовлетворительные межличностные отношения со сверстниками и учителями.
(C) Неуместные типы поведения или чувств при нормальных обстоятельствах.
(D) Общее всепроникающее настроение несчастья или депрессии.
(E) Склонность к развитию физических симптомов или страхов, связанных с личными или школьными проблемами.
(ii) Эмоциональное расстройство включает шизофрению. Этот термин не применяется к детям, которые являются социально неприспособленными, за исключением случаев, когда установлено, что у них имеется эмоциональное расстройство в соответствии с параграфом (c)(4)(i) настоящего раздела.
(5) Нарушение слуха означает нарушение слуха, постоянное или изменчивое, которое неблагоприятно влияет на успеваемость ребенка, но не подпадает под определение глухоты в данном разделе.
(6) Под умственной отсталостью понимается существенное снижение общей умственной деятельности, существующее на фоне дефицита адаптивного поведения и проявляющееся в период развития, отрицательно влияющее на успеваемость ребенка.
Термин «умственная отсталость» ранее назывался «умственная отсталость».
(7) Множественная инвалидность означает сопутствующие нарушения (такие как умственная отсталость-слепота или умственная отсталость-ортопедические нарушения), сочетание которых вызывает такие серьезные потребности в обучении, что они не могут быть учтены в программах специального образования только для одного из нарушений. К множественной инвалидности не относится слепоглухота.
(8) Ортопедическое нарушение означает тяжелое ортопедическое нарушение, отрицательно влияющее на успеваемость ребенка. Этот термин включает нарушения, вызванные врожденной аномалией, нарушения, вызванные заболеванием (например, полиомиелит, костный туберкулез), и нарушения, вызванные другими причинами (например, церебральный паралич, ампутации, переломы или ожоги, вызывающие контрактуры).
(9) Другие нарушения здоровья означают ограниченные силы, жизненные силы или бдительность, включая повышенную бдительность к раздражителям окружающей среды, что приводит к ограниченной бдительности в отношении образовательной среды, что—
(i) вследствие хронического или острые проблемы со здоровьем, такие как астма, синдром дефицита внимания или синдром дефицита внимания с гиперактивностью, диабет, эпилепсия, заболевание сердца, гемофилия, отравление свинцом, лейкемия, нефрит, ревматическая лихорадка, серповидноклеточная анемия и синдром Туретта; и
(ii) Отрицательно влияет на успеваемость ребенка.
(10) Особая неспособность к обучению —
(i) Общие. Специфическая неспособность к обучению означает расстройство одного или нескольких основных психологических процессов, связанных с пониманием или использованием языка, устной или письменной речи, которое может проявляться в несовершенной способности слушать, думать, говорить, читать, писать, писать по буквам или произносить по буквам. выполнять математические расчеты, включая такие состояния, как нарушение восприятия, черепно-мозговая травма, минимальная мозговая дисфункция, дислексия и афазия развития.
(ii) Болезни не включены. Специфическая неспособность к обучению не включает проблемы с обучением, которые в первую очередь являются результатом нарушений зрения, слуха или моторики, умственной отсталости, эмоциональных расстройств или экологических, культурных или экономических неблагоприятных условий.
(11) Нарушение речи или языка означает коммуникативное расстройство, такое как заикание, нарушение артикуляции, нарушение речи или нарушение речи, которое неблагоприятно влияет на успеваемость ребенка.
(12) Черепно-мозговая травма означает приобретенное повреждение головного мозга, вызванное внешней физической силой, приводящее к полной или частичной функциональной инвалидности или психосоциальному нарушению, или к тому и другому, которое неблагоприятно влияет на успеваемость ребенка. Черепно-мозговая травма относится к открытым или закрытым травмам головы, приводящим к нарушениям в одной или нескольких областях, таких как когнитивные функции; язык; Память; внимание; рассуждение; абстрактное мышление; суждение; решение проблем; сенсорные, перцептивные и двигательные способности; психосоциальное поведение; физические функции; обработка информации; и речь. Черепно-мозговая травма не относится к врожденным или дегенеративным повреждениям головного мозга, а также к травмам головного мозга, вызванным родовой травмой.
(13) Нарушение зрения, включая слепоту, означает нарушение зрения, которое даже при коррекции отрицательно сказывается на успеваемости ребенка. Этот термин включает как частичное зрение, так и слепоту.
[71 FR 46753, 14 августа 2006 г., в редакции 72 FR 61306, 30 октября 2007 г.]
Серьезное несоответствие, Серьезное несоответствие, Серьезное несоответствие
Последнее изменение: 25 мая 2018 г.0071 На испанском языке | En español
Национальный закон о специальном образовании называется Законом об образовании лиц с ограниченными возможностями, или IDEA. В части предоставления специального образования и сопутствующих услуг детям с инвалидностью в государственных школах Часть B IDEA определяет термин «ребенок с инвалидностью». Это определение включает определенные термины инвалидности, которые также определены IDEA, как описано на этой веб-странице.
Термины и определения IDEA в отношении инвалидности определяют, как штаты, в свою очередь, определяют инвалидность и кто имеет право на бесплатное соответствующее государственное образование в соответствии с законом о специальном образовании. Определения этих конкретных терминов инвалидности из правил IDEA показаны под каждым термином, перечисленным ниже.
Обратите внимание, чтобы полностью соответствовать определению (и праву на специальное образование и сопутствующие услуги) как «ребенок с инвалидностью», успеваемость ребенка должна быть неблагоприятно затронута из-за инвалидности.
_______________________________________________________
Ссылки для быстрого перехода
|
|
________________________________________________
В приведенном ниже списке, если термин инвалидности связан, щелкнув ссылку, вы перейдете к информационному бюллетеню по этому конкретному инвалидности и к другой соответствующей информации.
1. Аутизм…
…означает нарушение развития, существенно влияющее на вербальную и невербальную коммуникацию и социальное взаимодействие, обычно проявляющееся в возрасте до трех лет, которое неблагоприятно влияет на успеваемость ребенка. Другими характеристиками, часто связанными с аутизмом, являются повторяющиеся действия и стереотипные движения, сопротивление изменениям окружающей среды или изменениям в распорядке дня, а также необычные реакции на сенсорные переживания. Термин «аутизм» не применяется, если на успеваемость ребенка отрицательно влияет прежде всего его эмоциональное расстройство, как это определено в пункте 5 ниже.
У ребенка, у которого проявляются признаки аутизма после 3 лет, может быть диагностирован аутизм, если выполняются вышеуказанные критерии.
Вернуться к началу
2. Слепоглухота…
…означает сопутствующие [одновременные] нарушения слуха и зрения, сочетание которых вызывает такие серьезные коммуникативные и другие потребности в развитии и обучении, что они не могут быть учтены в рамках специального образования программы исключительно для детей с глухотой или детей со слепотой.
Вернуться к началу
3. Глухота …
…означает нарушение слуха настолько серьезное, что ребенок не может обрабатывать речевую информацию посредством слуха, с усилением или без него, что неблагоприятно влияет на успеваемость ребенка.
Back to top
4. Задержка развития …
…для детей от рождения до трех лет (согласно части C IDEA) и детей в возрасте от трех до девяти лет (согласно части B IDEA), термин «задержка развития», как определяется каждым государством, означает задержку в одной или нескольких из следующих областей: физическое развитие; когнитивное развитие; коммуникация; социальное или эмоциональное развитие; или адаптивное [поведенческое] развитие.
В начало
5. Эмоциональное расстройство…
…означает состояние, проявляющее одну или несколько из следующих характеристик в течение длительного периода времени и в заметной степени, что неблагоприятно влияет на успеваемость ребенка:
(a) Неспособность к обучению, которую нельзя объяснить интеллектуальными, сенсорными факторами или факторами здоровья.
(b) Неспособность строить или поддерживать удовлетворительные межличностные отношения со сверстниками и учителями.
(c) Неуместные типы поведения или чувств при нормальных обстоятельствах.
(d) Общее всепроникающее настроение несчастья или депрессии.
(e) Склонность к развитию физических симптомов или страхов, связанных с личными или школьными проблемами.
Термин включает шизофрению. Этот термин не применяется к детям, которые являются социально неприспособленными, если не установлено, что у них есть эмоциональные расстройства.
Вернуться к началу
6. Нарушение слуха…
…означает нарушение слуха, постоянное или непостоянное, которое неблагоприятно влияет на успеваемость ребенка, но не подпадает под определение «глухота».
Вернуться к началу
7. Интеллектуальная недостаточность…
…означает значительно ниже среднего общего умственного функционирования, существующее одновременно [одновременно] с дефицитом адаптивного поведения и проявляющееся в период развития, что неблагоприятно влияет на успеваемость ребенка.
( Примечание редактора, февраль 2011 г.: «Умственная отсталость» — это новый термин в IDEA. До октября 2010 г. в законе использовался термин «умственная отсталость». В октябре 2010 г. закон Розы был подписан президентом Обамой. Закон Розы изменил термин, который будет использоваться в будущем, на «умственная отсталость». Само определение термина не изменилось и является тем, что было показано выше.0003
8. Множественные нарушения…
…означают сопутствующие [одновременные] нарушения (такие как умственная отсталость-слепота, умственная отсталость-ортопедические нарушения и т. д.), сочетание которых вызывает такие серьезные образовательные потребности, что они не могут быть удовлетворены в программе специального образования исключительно для одного из нарушений. Этот термин не включает слепоглухих.
В начало
9. Ортопедическое нарушение…
…означает серьезное ортопедическое нарушение, которое неблагоприятно влияет на успеваемость ребенка.
Этот термин включает нарушения, вызванные врожденной аномалией, нарушения, вызванные заболеванием (например, полиомиелит, костный туберкулез), и нарушения, вызванные другими причинами (например, церебральный паралич, ампутации, переломы или ожоги, вызывающие контрактуры).
Вернуться к началу
10. Другое ухудшение здоровья…
…означает ограниченную силу, жизнеспособность или бдительность, включая повышенную бдительность к внешним раздражителям, что приводит к ограниченной бдительности по отношению к образовательной среде, что—
(a) вызвано хроническими или острыми проблемами со здоровьем, такими как астма, синдром дефицита внимания или синдром дефицита внимания с гиперактивностью, диабет, эпилепсия, болезнь сердца, гемофилия, отравление свинцом, лейкемия, нефрит, ревматическая лихорадка, серповидноклеточная анемия, и синдром Туретта; и
(b) отрицательно влияет на успеваемость ребенка.
Вернуться к началу
11.
Специфическая неспособность к обучению…
…означает нарушение одного или нескольких основных психологических процессов, связанных с пониманием или использованием языка, устной или письменной речи, которое может проявляться в несовершенной способности слушать, думать, говорить, читать, писать, писать по буквам или делать математические вычисления. Этот термин включает такие состояния, как нарушения восприятия, черепно-мозговая травма, минимальная мозговая дисфункция, дислексия и афазия развития. Этот термин не включает проблемы с обучением, которые в первую очередь являются результатом нарушений зрения, слуха или моторики; умственной отсталости; эмоционального расстройства; или экологические, культурные или экономические недостатки.
Наверх
12. Нарушение речи или языка…
…означает расстройство общения, такое как заикание, нарушение артикуляции, нарушение речи или нарушение голоса, которое неблагоприятно влияет на успеваемость ребенка.
Вернуться к началу
13. Черепно-мозговая травма…
…означает приобретенное повреждение головного мозга, вызванное внешней физической силой, приводящее к полной или частичной функциональной нетрудоспособности или психосоциальному нарушению, или к тому и другому, которое неблагоприятно влияет на успеваемость ребенка. Этот термин применяется к открытым или закрытым травмам головы, приводящим к нарушениям в одной или нескольких областях, таких как когнитивные функции; язык; Память; внимание; рассуждение; абстрактное мышление; суждение; решение проблем; сенсорные, перцептивные и двигательные способности; психосоциальное поведение; физические функции; обработка информации; и речь.
Этот термин не применяется к врожденным или дегенеративным повреждениям головного мозга, а также к повреждениям головного мозга, вызванным родовой травмой.
Вернуться к началу
14. Нарушение зрения, включая слепоту…
…означает нарушение зрения, которое, даже с исправлением, отрицательно влияет на успеваемость ребенка.

Для колясочника откидывается в момент пересаживания с инвалидной коляски на унитаз. Для незрячего — ориентир определения местоположения унитаза.
задание
Для опорника – дополнительная точка опоры.
5.5.14 ГОСТ Р 51261-2022
Для опорника — дополнительная точка опоры.
Дверь открывается автоматически при нажатии на кнопку.
Дополнительно применяется для оповещения о возникновении ЧС.
Для колясочника откидывается в момент пересаживания с инвалидной коляски на унитаз. Для незрячего — ориентир определения местоположения унитаза.
задание
Для опорника – дополнительная точка опоры.
5.5.14 ГОСТ Р 51261-2022
Для опорника — дополнительная точка опоры.
Дверь открывается автоматически при нажатии на кнопку.
Дополнительно применяется для оповещения о возникновении ЧС.