Высота, ширина и другие размеры фартука для кухни
Фартук — важнейшая составляющая кухни, отвечающая за ее декоративность и удобство работы по разделке и приготовлению пищи. Длина и высота фартука для кухни должны иметь размеры, позволяющие не только полностью закрыть стену в рабочей зоне, но и обеспечивать удобство пользования мебельным гарнитуром. Зная стандартный размер фартука для кухни, можно подобрать мебельный гарнитур до начала проведения ремонтных работ.
Содержание:
- Критерии выбора
- Ширина и длина
- Вытяжка
- Высота до пола
- Выравнивание навесных шкафов
- Преимущества керамического изделия
- Заключение
- Видео: обзор стандартов кухонной мебели
Перед подготовкой к ремонту или выбором нового мебельного гарнитура, обязательно необходимо произвести стандартные замеры
Критерии выбора
Решая, какая высота фартука на кухне будет оптимальной, следует учитывать следующее:
- Стандартной высотой считается размер 600 мм.
, т. е. большинство готовых изделий из различных материалов имеет такую высоту. Этот размер является кратным основному размеру наиболее популярного материала для отделки — керамической плитки. - Размеры мебельного гарнитура (столешницы и подвесных шкафов) должны соответствовать эргономическим данным жильцов, постоянно пользующихся кухней, поэтому расположение и размер кухонного фартука всегда привязаны к мебели.
- Для правильного и эстетичного размещения мебели, фартук должен располагаться строго по горизонтальной линии. Часто возникает ситуация, когда пол на кухне положен не по уровню и имеет некоторый уклон. В этом случае он обязательно должен опускаться ниже уровня столешницы не менее чем на 20 мм. — это делается в подавляющем большинстве случаев.
- Если фартук отступает от поверхности стены на большое расстояние или его вверх отделан декоративным элементом, который будет неэстетично выглядеть при закрывании его навесными шкафами, следует рассчитывать высоту его расположения исходя из того, что низ подвесных шкафов будет опираться на верх кухонного фартука.

Оптимальной считается высота кухонного фартука 600 — 700 мм. Она напрямую связана с установкой верхних навесных шкафов — нет смысла делать высокий фартук, значительная часть которого будет закрыта верхними шкафами. Также непрактичны и узкие изделия, до верха которых не будут доходить подвесные шкафы.
Высота и ширина фартука на кухне связана с расположением нижнего ряда тумб мебельного гарнитура, отдельно стоящая бытовая техника, не встроенная в мебель, также может влиять на его размеры.
Важно
Размещение фартука по высоте определяются материалом и способом его изготовления. Некоторые готовые стеклянные, пластиковые, ламинированные ДСП или ДВП панели имеют стандартный размер по высоте 600 мм. — возможность изменения расположения мебельного гарнитура в этом случае будет ограничена.
Также существенно влияет отдельно стоящая бытовая техника (стиральная машина, плита с духовым шкафом, посудомойка).
Обычная бытовая техника имеет стандартную высоту, которая может регулироваться при помощи ножек, но иногда при нестандартных размерах столешниц их высоты могут не совпадать.
Из-за этого высоту изделия придется подстраивать под бытовую технику, опуская его чуть ниже уровня самого низкого предмета в помещении.
Ширина и длина
Наиболее распространена ситуация, когда мойка располагается в углу и вода при мытье посуды попадает на боковые стены — в этом случае ширина фартука на кухне может быть увеличена. Он заворачивается на угол и отделочным материалом покрывается боковая стена.
Для более эстетичного вида и в практических целях фартук часто заворачивают и на противоположном углу, покрывая узкую часть стены около окна.
Вытяжка
Если вытяжная система встроена в мебельный гарнитур и шкаф с вытяжкой располагается на одном уровне с другими, фартук для кухни выполняется в обычном исполнении.
При отдельно-стоящей кухонной вытяжки (купольная, плоская, наклонная модели), часто свободное пространство на стене рядом с ней покрывается отделочным материалом кухонного фартука.
Существует три наиболее эстетичных способа размещения верха фартука в области вытяжки: на уровне рабочей поверхности вытяжки, верхних подвесных шкафов и до потолка.
Делать его на уровне низа вытяжки не слишком эстетично — стену выше придется закрывать другим видом отделки, а это будет нарушать общий ансамбль. Поэтому эстетичнее будет выглядеть в области вытяжки отделка, размеры которой доходят до верха навесных шкафов, когда за ними видна стена. Если навесные шкафы подходят под самый потолок, и стена не видна, фартук лучше монтировать до потолка.
Ширина фартука в области вытяжки должна соответствовать расстоянию между соседними навесными шкафами, то есть их стенки должны упираться в боковые стороны фартука.
В случае, если в вашем интерьере отсутствуют настенные шкафы, этот момент учитывать не стоит
Высота до пола
Укладка фартука в кухне по всей длине до пола используется довольно редко, это потребует лишних расходов и материалов, при этом отделочный материал будет находиться вне зоны видимости. Но в некоторых случаях более практично и эстетично уложить его до пола.
Такой вариант может быть использован в первую очередь в модульных кухнях с отдельно стоящей бытовой техникой и тумбами, если между корпусами имеются видимые зазоры.
При укладке его на боковые стены в помещении он просматривается сбоку, поэтому их закрывают высокой тумбой, завершающей кухонный ансамбль. Можно обложить боковую стену до самого пола декоративным материалом, доведя отделку до угла или оконного откоса.
Выравнивание навесных шкафов
Часто при монтаже подвесных шкафов их прикрепляет к специальной монтажной рейке. Так их вверх находится на некотором расстоянии от стены, и в ситуации расположения на кухонной стене вне зоны фартука, они будут подвешены на стене с наклоном вперед в верхней части. Если мебель размещается только на прямой рабочей стене, этот небольшой наклон во многих вариантах можно игнорировать.
Но если в помещении установлен угловой гарнитур, придется выравнивать плоскость расположения шкафов по вертикали. Под низ задней стенки навесных шкафов обычно подкладывают плоские детали необходимой толщины из различных материалов.
Но проще всего выровнять подвесные шкафы по вертикали, расположив их на рабочем фартуке кухни, в этом случае его придется поднимать на определенную высоту.
Преимущества керамического изделия
Как уже отмечалось выше, стандартная высота фартука составляет 600 мм. При его отделке керамической плиткой, она может быть получена укладкой 2 рядов керамики высотой 300 мм., 3 рядов по 200 мм., или 6 рядов по 100 мм. (300, 200, 100 мм. — стандартные размеры керамической плитки).
Очень часто столешницы закрывают фартук — его опускают ниже их плоскости на несколько сантиметров, и возникают ситуации, когда высоты в 600 мм. недостаточно для оптимального или эстетичного размещения навесных шкафов.
В случае с плиткой можно использовать фриз — декоративный отделочный материал из керамики в виде узких полосок стандартной ширины. Чаще всего фриз применяют при декоративном отделении рядов кафеля разного цвета при укладке на стены или в качестве завершающего элемента над верхними рядами, если плитка укладывается не до потолка.
Использование фриза не только придаст фартуку эстетичный и завершенный вид, но позволит увеличить его высоту в среднем на 7 см.
и более, если использовать еще один ряд фриза внизу.
Еще одно преимуществом керамической плитки — возможность эстетичной отделки боковых стен. Если в помещении боковые стены не закрыты мебелью, фартук в этих местах более эстетично и практично опускать до самого пола. Такой вариант невозможно представить в случае использования стеклянных изделий, его реализация будет затруднена при использовании ламинированных МДФ, ДСП и пластика.
Совет
Применение керамической плитки позволяет уложить ее до пола в едином ансамбле рабочей зоны кухни и эстетично прервать вертикальный ряд на стене в любом месте, закрыв торец узким уголком.
Заключение
Знание стандартных размеров кухонного фартука позволит еще до покупки без лишних усилий подобрать для его отделки подходящий материал и правильно выбрать размеры мебельного гарнитура. Устройство изделий из керамической плитки позволяет рационально регулировать их высоту и эстетично отделать боковые стены кухни, закрыв торец уложенного на стену кафеля узким декоративным уголком.
Видео: обзор стандартов кухонной мебели
Рекомендуем почитать:
Как выбрать размер фартука на кухне: оптимальная высота кухонного фартука и стандартные размеры
Казалось бы, что тут рассуждать: фартуком облицовывают полоску стены между нижним и верхним рядами кухонных шкафов. Но какого именно размера будет эта полоска — зависит от доброго десятка факторов.
Jennifer Ott Design
Раньше: размер фартука зависел от мебели
Нижнюю границу фартука всегда определяла высота кухонной мебели. А ту, в свою очередь, производители рассчитали по двум показателям: усредненному росту женщины и высоте кухонной плиты. И столешница, и плита должны были оказаться на расстоянии «чуть ниже пояса» хозяйки, то есть примерно в 85 см от пола.
Высоту 85 см от пола и сделали нормативной для кухонной столешницы.
На этом уровне исторически советовали выкладывать нижний край кухонного фартука. Какую мебель ни поставь, она идеально стыковалась с плиткой на стене.
Дина Александрова
А потом духовки и посудомойки начали встраивать: стало совершенно не важно, на каком уровне от пола они находятся.
Да и хозяйки стали заказывать кухни по своему росту: высоким удобнее иметь столешницу повыше, низкорослым — пониже. Стандарт как таковой стал исчезать, а вместе с ним и «правильный» нижний уровень монтажа кухонного фартука.
Вывод: Теперь сначала надо полностью расчертить гарнитур под себя (понять удобную высоту). И только после этого станет понятна нижняя точка укладки фартука. Своя для каждой хозяйки.
Инна Величко
На фото: пример того, что фартук выведен по шкафам. Причем они висят немного ниже уровня, который требовался для установки вытяжки над варочной поверхностью. И ничего страшного!
Наталья Широкорад
На фото: пример нетипичной укладки фартука.
Из-за нетипично расположенных плиты и вытяжки пришлось облицевать плиткой под потолок весь угол
Дина Александрова
Раньше: размер фартука зависел от плитки
Высоту фартука исторически определяли габариты самой распространенной плитки. В нашей стране это был квадрат с ребром 10, 12 или 15 см. То есть типичный фартук — это 4, 5 или 6 рядов плитки. Значит, стандартный размер фартука для кухни (из плитки) — 45–60 см в высоту.
Но потом появились крупноформатный керамогранит, листовой искусственный камень, плитка необычной формы. И понятие кратности применительно к фартуку перестало играть главную роль.
Konstantinova Tatiana
На фото: пример кухонного фартука из плитки нестандартного формата, которая к тому же не имеет над собой верхнего ряда шкафчиков
Rebel House LLC
Тогда и теперь: зависит от вида кухни
Стандартная высота верхнего ряда шкафов также была рассчитана на женщину среднего роста.
Подразумевалось, что до верхней полки верхнего шкафа она легко сможет добраться, встав на табуретку. Так навесные шкафы тоже получили свой стандарт: 720–950 см.
Планировка кухни «линия сверху / линия снизу» доминировала много советских лет. Равно как и фартук в виде полоски кафеля, зажатого между двумя рядами шкафов. Но теперь мы видим десятки вариантов расстановки мебели.
Totaste.studio | Виктор Штефан
Например:
- без верхнего ряда шкафчиков;
- с «разрывами» между шкафчиками верхнего ряда;
- с купольными вытяжками (которым нужен «плиточный фон»). Как следствие, изменяются и размеры кухонного фартука.
Факт: Иной раз в фартуке вообще нет никакой необходимости — например, когда из мебели собирается сплошная «стена», а плита и мойка выносятся на остров.
Le Atelier
Наталия Хайруллина интерьерный фотограф
Тогда и теперь: диктуют варочная поверхность и вытяжка
Если плита газовая — с открытым пламенем, верхний ряд шкафчиков следует монтировать не ниже 60 см от плиты.
В случае с электрическими плитами, передающими тепловую энергию непосредственно посуде, рисков повреждения верхнего ряда шкафов практически нет. А потому расстояние между плитой и навесным шкафом может быть минимальным — 45 см.
Но это при условии, что вытяжка встроена в шкаф над плитой. Если она купольная, расположена на стене независимо — фартук укладывают «пятном» за вытяжкой вплоть до границы потолка.
Home On Cameron
Как теперь: важна рука хозяйки
Учтите рост основного пользователя кухонного гарнитура. Мы сейчас не говорим про антресоли (это скорее дополнительная система хранения). Но вы должны иметь возможность комфортно расположиться во время готовки и быстро достать нужные предметы из любого шкафа.
Определить, на какой высоте должен находиться нижний край навесных шкафов, очень просто. Вытяните руку горизонтально вперед, держа ее параллельно полу — ваша ладонь будет указывать оптимальную верхнюю границу фартука (то есть начало верхнего ряда шкафов).
Если в семье одинаково активно готовит несколько человек, ориентируемся на самого низкого.
Atria Magna
Как теперь: с прицелом на будущее
Фартук на кухне во всю высоту стены — из плитки или другого подходящего материала — это стратегически более верное решение, с прицелом на будущее. Такой фартук сможет пережить даже смену гарнитура. В отличие от обоев (которые могут выгореть на солнце), плитка «неубиваемая». Скорее рассохнется мебель, чем что-то случится с кухонным фартуком. Уложив нейтральный фоновый керамогранит во всю стену, вы сможете навесить на него какой угодно новый гарнитур новой конфигурации.
Другое дело, если вы облицевали керамикой только промежуток между нижним и верхним рядом шкафчиков. Меняются габариты мебели, меняется принцип ее размещения: кто знает, каким будет кухонная мода через 25 лет? При установке нового гарнитура фартук в промежутке между шкафчиками, скорее всего, придется менять.![]()
Jared Erwin
На фото: тот случай, когда ремонт делают фрагментарно — меняют только фартук. Границы старой укладки видны на фото. А габариты новой плитки не позволяют вывести фартук точно в размер (придется перевешивать шкафчик)
TS Design | Тарас Безруков и Стас Самкович
Кстати: Многие дизайнеры укладывают кроме фартука еще и «чепчик» — полосу плитки над верхним рядом шкафов высотой 15–20 см. Это делает иллюзию сплошной отделки стены более правдоподобной.
Дина Александрова
Как теперь: важна высота потолка
Например, сегодня не редкость гарнитуры с двумя верхними рядами шкафов. Но мало кто обращает внимание, что второй антресольный ярус не всегда делают в кухне с высокими потолками. Когда потолки стандартной высоты, дизайнеру приходится немного опускать нижнюю границу навесных шкафов. Психологическая граница здесь — 45 см.
Ниже нельзя: будете биться головой о верхние шкафы, склоняясь к столешнице.
В помещениях с высоким потолком часто делают кухонные гарнитуры «нестандартных» пропорций — с увеличенным верхним рядом шкафов. Которые, к тому же, монтируют на высоте выше привычной — до 80 см (но это редкость).
Uliana Grishina | Photography
Как теперь: учитываем стиль помещения
Дизайн некоторых помещений предполагает фартук под потолок — это сделает образ цельным. Особенно актуально такое решение при использовании узкой плитки, которая укладывается с перевязкой швов и имитирует кирпичную кладку стиля лофт.
Посмотрите на фото выше: хозяева этой квартиры-студии сделали индустриальный фартук. Доводить плитку вплотную под потолок не стали — разместили полку по его верхней границе.
Как теперь: учитываем материал столешницы
Если столешница и фартук выполнены из одного материала, например, искусственного камня одинакового цвета и фактуры, фартук лучше сделать минимальной высоты: 25–30 см с фигурным «повышением» у мокрых зон.
Дело в том, что визуально гарнитур лучше смотрится, если фартук на кухне имеет меньшую ширину, чем столешница (ее стандартная глубина 60 см). В случае с искусственным камнем, узкий фартук поможет и значительно сэкономить — ведь стоит такой материал совсем не дешево.
Официальный шоурум Leicht Moscow
Факт: В последние годы становится популярным решением «фартук без фартука» (пример на фото). Речь про использование устойчивой к загрязнениям и мытью штукатурки, краски и прочих отделочных материалов. В этом случае высота фартука на кухне зависит только роста хозяйки (или хозяина) и ее комфорта. Можно сделать фартук высотой хоть 48, хоть 63,5 см.
Room Service Interior
Когда монтировать фартук: до или после гарнитура?
Подавляющие большинство типов фартука устанавливается до монтажа мебели. В процессе установки монтажники-мебельщики делают необходимые регулировки, чтобы фартук идеально «сел» на гарнитур: выставляют нужную высоту ножек нижнего ряда шкафов и вычисляют высоту, на которой следует повесить верхний ряд.
Исключение — крупные элементы вроде сплошных панелей стекла или блоков искусственного камня.
Если же речь идет о фартуке из плитки, в подавляющем большинстве случаев разумнее уложить сначала ее, и только потом ставить мебель.
Architectе P.F.E.
На фото: плитку для фартука начали выкладывать от столешницы и довели до верхнего ряда. Здесь важно правильно рассчитать высоту фартука (она должна быть кратной стороне плитки), чтобы не пришлось перевешивать шкафы
Ekaterina Bekukh
Нужно ли «прятать» края фартука под шкафчики?
На многих интернет-форумах пишут, что кухонный фартук нужно делать с допуском в 2–3 см — на заход под шкафы. И действительно, раньше так и делали. Однако современные отделочные материалы имеют достаточно аккуратные кромки и отличаются почти идеальной геометрией, поэтому «прятать» край фартука под шкафчик необязательно. Можно «поставить» нижнюю плитку фартука прямо на столешницу, а также опереть верхний ряд шкафов на верхнюю плитку.
Факт: Если вы применяете плитку, внешний вид края которой оставляет желать лучшего, лучше его действительно спрятать — 3 см сверху будет достаточно. При этом делать допуск под нижние шкафы смысла нет.
m monroe design
Какой бортик выбрать (и нужен ли он вообще)?
Если вы посмотрите зарубежные каталоги кухонь образца 2015 года и позже, вы вообще не увидите в них бортиков. Такое решение уже устарело — даже IKEA в России сняла кухонные бортики с продажи, они сохранились только в строительных гипермаркетах и самом бюджетном сегменте готовых кухонь.
Теперь красота стыка — результат аккуратного монтажа и использования материалов высокого качеств. Например, выбирают плитку или керамогранит с идеальной геометрией краев и безупречными кромками, которые монтируются без захода под ДСП (то есть нижняя грань плитки ложится прямо на столешницу, максимально плотно). В результате получается ровный стык всего в 1–2 миллиметра, который после установки гарнитура заделывается силиконовым герметиком — бесцветным или подходящего оттенка.
Спустя 5–7 лет изношенный силикон можно удалить ножом и замазать шов заново, этого будет вполне достаточно для поддержания эстетичного вида.
Midwest Stone Source & Design Studio
Такой подход намного эффективнее бортика, который имеет несколько стыков и сильно загрязняется в процессе эксплуатации. Справедливости ради стоит отметить, что европейские дизайнеры в основном применяют немного другой подход ухода от бортиков — «фартук без фартука» с отделкой поверхности устойчивыми к влаге покрытиями.
Студия дизайна интерьера МЕЧТА SPACE
На фото: бортик в 1 см из искусственного камня столешницы — такой вариант можно использовать, чтобы скрыть неровный край плитки (например, объемной, как на фото)
Антон Лихтарович
Как выбрать размер фартука
Проанализировав все вышесказанное, мы можем вывести простой алгоритм подбора кухонного фартука.
1. Заказываем кухонный гарнитур — определяемся с планировкой кухни в целом.
2. Отталкиваемся от бюджета и спектра материалов, которые мы можем себе позволить для фартука. Керамогранит долговечнее плитки, но им будет дороже облицевать всю стену под потолок.
3. Определяемся с типом вытяжки и кухонной техники. Исходя из этого решаем, какая требуется защитная зона.
Дикушина Ирада
4. Выбираем предпочтительный способ монтажа: линия между шкафами, линия и «чепчик», линия + пятно купольной вытяжки, сплошная отделка. Еще раз настойчиво посоветую последний вариант — это вполне оправданные инвестиции, и спустя годы вы не раз порадуетесь, что решили отказаться от пятна плитки в пользу отделки плиткой под потолок.
5. Если отделка фрагментарная — учитываем рост хозяйки или хозяина и определяем желаемую высоту верхнего ряда кухонных шкафов. Находим оптимальную высоту нижнего уровня (прибавляем толщину столешницы — помимо стандарта 28 и 38 мм есть и тонкие варианты).
6. Корректируем полученную высоту под выбранный материал (кратно размеру плитки или керамогранита, например). Практика показывает, что в подавляющем большинстве случаев можно обойтись без резки плитки, просто сделав удачную раскладку.
7. Если вы приняли решение делать «фартук без фартука» или комбинированный вариант (как на фото) разумно экономить на дорогом материале — натуральном или искусственном камне. А моющийся фон выкладывать под потолок.
ВАША ОЧЕРЕДЬ…
Расскажите, каким должен быть фартук на кухне, на ваш взгляд. Как вы подбирали размеры фартука во время ремонта на собственной кухне: отталкивались от стандартов или рассчитывали «под себя»?
стандарт и оптимальный размер, ширина
Какой должна быть высота?
Важной составляющей размера фартука является его высота
От пола
Габариты напольных тумб и шкафов. Стандартом считается размер мебели в пределах 85-91 см.
Высота кухонной мебели должна быть немного ниже пояса человека, чтобы обеспечить удобство при работе. Это является главным показателем ее размера. Поэтому нижний уровень фартука тоже будет находиться именно на такой высоте от пола. Если рост хозяев очень высокий, то высота шкафчика может увеличиваться до 95 см.
Высота варочной поверхности или плиты. Иногда габариты плиты несколько больше, чем высота других мебельных компонентов. В подобной ситуации высоту фартука измеряют от наиболее низкой напольной тумбы или шкафа.
Если же высота и плиты, и мебели одного размера, то минимальная высота составит 45 плюс 2 см, которые необходимы для захода за столешницу. Высота от настенных шкафчиков до пола обычно равна 152 см, из которых 47 приходится на ширину фартука. Для удобства мебель принято подбирать в соответствии с высотой плиты.
Наличие бытовой техники. Точно так же на высоту фартука влияет и встроенная стиральная или посудомоечная машина. Если планируется их размещение под столешницей, то оптимальную фартучную высоту определяют исходя из их размера
Часто она может превышать стандартную.
Рост хозяйки, который имеет немаловажное значение, поскольку удобство при приготовлении пищи является показателем функциональности рабочего стола. Во время работы человек должен сохранять правильное положение тела: стоять прямо, не нагибаясь, не горбясь, руки должны находиться в удобной позиции.
Высота напольной мебели в 85-91 см является наиболее удобной для среднего роста
При этом важно, чтобы нижняя поверхность настенных элементов находилась на уровне руки человека, поднятой до уровня плеча.
От столешницы
Этот размер высоты фартука зависит от расположения настенных навесных антресолей, полок и других элементов мебели. Как правило, их располагают в соответствии с ростом человека. Поэтому высота фартука от столешницы может быть разной и колебаться от 47 до 117 см. Но обычно антресоли монтируются на высоте от 1,35 до 1,5 м от пола. При таком расположении промежуток между ними и столешницей будет примерно 45-60 см, а ширина фартучного покрытия – 65 см.
Такая высота фартука от столешницы позволит легко дотянуться рукой до нижней полки в шкафчике.
Наиболее легкий вариант – когда вытяжка встроена в настенные шкафчики. Высота от столешницы будет такой же, как до настенных антресолей.
Если же вытяжка встраивается отдельно (как в случае плоских, наклонных или купольных моделей), то образовавшееся пространство до настенных полок покрывается таким же материалом, как и фартук, то есть и высота его будет значительно больше.
Фартук с такой высотой можно оформить тремя способами: до нижнего уровня поверхности вытяжки, до навесных полок и антресолей, до самого потолка. Если антресоли доходят до потолка, то и высота фартука будет также до потолка.
Как подобрать?
Подбор данного кухонного атрибута является сугубо индивидуальным делом, при котором нужно учитывать все перечисленные выше моменты
Кроме того, в процессе его выбора и установки следует также принимать во внимание такие особенности:
- размеры фартука определяются габаритами напольной и навесной мебели, а не являются отвлеченным расчетом;
- его размеры представляют собой не постоянное значение, не имеют строго ограниченных параметров, поскольку даже на одной кухне фартук может быть разной высоты и ширины;
- его нижнюю границу определяет высота напольной мебели, а верхнюю – расположение навесных элементов.

Фартук должен иметь четкую прямую линию: это подчеркивает эстетичность расположения мебели. Но иногда пол в кухне имеет небольшой уклон и поэтому необходимо, чтобы фартук был ниже уровня столешницы на 2 см.
Подбирая фартук, необходимо прежде всего продумать схему расстановки мебели, измерить высоту напольной и уровень настенной мебели или выбрать уже готовый кухонный гарнитур.
Наиболее просто подобрать нужные размеры фартука в том случае, если на кухне используются готовые гарнитуры, имеющие стандартные габариты. Тогда и фартук будет близок к стандарту.
Иногда верхняя часть кухонных гарнитуров включает разногабаритные шкафчики и имеет дополнительные открытые полки, не прикрывающие стену. В данном случае особенностью установки фартука является то, что он будет иметь разный уровень: верхняя его граница должна доходить до нижней поверхности каждого элемента мебели.
Подбирая облицовочный материал для фартука, нужно принимать в расчет особенности его установки.
Керамическая плитка используется очень часто для облицовки фартука, так как ее легче подогнать под необходимые размеры. При возникновении некоторых несовпадений, чтобы не обрезать плитку, подгоняя ее под нужный размер, легче сделать зазор под шкаф или столешницу несколько больше.
Поэтому чтобы антресоли висели ровно, потребуется установить специальную рейку, к которой их и крепят. К тому же укладка плитки достаточно сложна и требует участия профессионального мастера.
Удобство пластиковых панелей заключается в простоте их монтажа: используются специальные профили по верхнему и нижнему уровню, в которые панели легко вставляются. Панели из МДФ также просты в установке, но их требуется подбирать в соответствии и совместно со столешницей или гарнитуром.
Стеклянные фартуки бывают 2 видов:
- монолитная панель, ее крепят к стенке болтами или анкерами;
- стеклянные плитки разного размера: их укладывают подобно керамическим плиткам.
Стеклянную панель не всегда можно подобрать по размеру.
Тогда ее нужно делать на заказ или изменить расположение мебели.
Для укрепления монолитных конструкций и панелей применяются шурупы, навесной крепеж, жидкие гвозди, клей. Еще один необходимый момент – монтаж розеток. В панелях, легко поддающихся обрезке (МДФ, пластик), отверстия для розеток в фартуке делают до его установки, а на керамическом покрытии розетки устанавливают после монтажа.
На выбор фартука влияет также и дизайн интерьера. Наиболее близки к стандартным нормам размеры фартука в классической кухне, в которой используются традиционные настенные шкафчики с двумя дверцами. Делать фартук меньших размеров (до 47-57 см) на такой кухне не рекомендуется, поскольку визуально будет создаваться ощущение нагромождения мебели.
Несколько иным будет фартук на кухне в стиле лофт, в которой отсутствуют настенные антресоли, но допускаются только открытые полки и незакрытая вытяжка
В такой кухне высота фартука будет произвольной, а во внимание принимается только эстетическая привлекательность
При выборе фартука также немаловажны и такие нюансы.
- Нежелательно, чтобы он был очень яркого цвета: от этого устают глаза. Лучше выбрать умеренные оттенки.
- Глянцевое покрытие делает цвет более насыщенным, а матовое придает бледность.
- На кухнях с маленькой площадью фартук с крупным рисунком смотрится очень объемным, а в очень больших помещениях, наоборот, выглядит непривлекательно.
- Фартук с горизонтальными линиями зрительно расширяет пространство. Такой же эффект создает и зеркальное, и стеклянное покрытие. Но они имеют существенный недостаток – на них очень заметны любые загрязнения.
- Фартуки для готового кухонного гарнитура должны гармонично сочетаться с его цветом.
В следующем видео вы узнаете все об идеальных размерах и материалах фартука для кухни.
Интересно почитать
Какой должна быть высота
Важной составляющей размера фартука является его высота
От пола
На эту высоту оказывают влияние такие факторы.
Габариты напольных тумб и шкафов.
Стандартом считается размер мебели в пределах 85-91 см. Высота кухонной мебели должна быть немного ниже пояса человека, чтобы обеспечить удобство при работе. Это является главным показателем ее размера. Поэтому нижний уровень фартука тоже будет находиться именно на такой высоте от пола. Если рост хозяев очень высокий, то высота шкафчика может увеличиваться до 95 см.
Высота варочной поверхности или плиты. Иногда габариты плиты несколько больше, чем высота других мебельных компонентов. В подобной ситуации высоту фартука измеряют от наиболее низкой напольной тумбы или шкафа.
Если же высота и плиты, и мебели одного размера, то минимальная высота составит 45 плюс 2 см, которые необходимы для захода за столешницу. Высота от настенных шкафчиков до пола обычно равна 152 см, из которых 47 приходится на ширину фартука. Для удобства мебель принято подбирать в соответствии с высотой плиты.
Наличие бытовой техники. Точно так же на высоту фартука влияет и встроенная стиральная или посудомоечная машина.
Если планируется их размещение под столешницей, то оптимальную фартучную высоту определяют исходя из их размера
Часто она может превышать стандартную.
Рост хозяйки, который имеет немаловажное значение, поскольку удобство при приготовлении пищи является показателем функциональности рабочего стола. Во время работы человек должен сохранять правильное положение тела: стоять прямо, не нагибаясь, не горбясь, руки должны находиться в удобной позиции
Высота напольной мебели в 85-91 см является наиболее удобной для среднего роста
При этом важно, чтобы нижняя поверхность настенных элементов находилась на уровне руки человека, поднятой до уровня плеча.
От столешницы
Этот размер высоты фартука зависит от расположения настенных навесных антресолей, полок и других элементов мебели. Как правило, их располагают в соответствии с ростом человека. Поэтому высота фартука от столешницы может быть разной и колебаться от 47 до 117 см. Но обычно антресоли монтируются на высоте от 1,35 до 1,5 м от пола.
При таком расположении промежуток между ними и столешницей будет примерно 45-60 см, а ширина фартучного покрытия – 65 см. Такая высота фартука от столешницы позволит легко дотянуться рукой до нижней полки в шкафчике.
Наиболее легкий вариант – когда вытяжка встроена в настенные шкафчики. Высота от столешницы будет такой же, как до настенных антресолей.
Если же вытяжка встраивается отдельно (как в случае плоских, наклонных или купольных моделей), то образовавшееся пространство до настенных полок покрывается таким же материалом, как и фартук, то есть и высота его будет значительно больше.
Фартук с такой высотой можно оформить тремя способами: до нижнего уровня поверхности вытяжки, до навесных полок и антресолей, до самого потолка. Если антресоли доходят до потолка, то и высота фартука будет также до потолка.
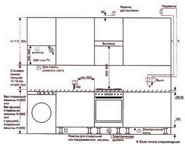
Как определяют стандартные размеры кухонных шкафов и общие габариты кухонного гарнитура
Те из читателей, кто взялся за интересное, но непростое дело самостоятельного проектирования собственной кухни, в числе прочих вопросов спрашивают: каковы оптимальные высота кухонного гарнитура от пола и размеры кухонных шкафов.
Несомненно, планировка кухонного гарнитура во многом определяется не только соображениями эргономики, дизайна, но и наличием габаритных стандартов. Ведь сделать полностью индивидуальную мебель довольно трудоёмко и отнюдь не всегда дёшево. В большинстве случаев используются стандартные элементы (модули), из которых, как из кубиков Lego, складывают кухонный гарнитур по размерам кухни.
Определение нижней и верхней границ для фартука: основные ориентиры
Рассчитать размеры будущего фартука получится только в том случае, если вся мебель и крупная бытовая техника уже приобретены. В виде исключения можно произвести расчеты по известным параметрам гарнитура, который уже заказан и будет установлен позднее. Но продавцы могут дать неточные характеристики материалов, поэтому в таких ситуациях лучше всего брать размеры фартука больше, чтобы исключить риски появления открытых участков стен.
Нижняя граница: высота столешниц
Стандартной высотой столешницы считается промежуток от 85 до 91 см.
В некоторых случаях производители отклоняются от этих норм. Особенно это касается случаев, когда мебель приобретается под заказ, а покупатель просит сделать тумбы ниже или выше. Такая необходимость может возникнуть при маленьком или очень большом росте, так как оптимальной считается высота, при которой рабочая поверхность находится на уровне пояса человека.
Нижняя часть фартука должна находиться чуть ниже уровня столешниц. Обычно ее размещают на 3-5 см ниже рабочей поверхности. Это обусловлено необходимостью скрыть края фартука, на которых могут скапливаться загрязнения.
Верхняя граница: высота навесных шкафов
Стандарт размещения кухонных навесных шкафчиков требует вешать их так, чтобы нижний край находился на высоте 130-160 см от пола. Как и в случае с тумбами, точные параметры зависят от роста членов семьи и личных предпочтений. При этом стоит учитывать высоту самих шкафов, чтобы можно было легко достать необходимые вещи с верхней полки.
Высота кухонного фартука от столешницы до нижней части навесных шкафов обычно составляет около 50 см.
Сверху, как и снизу, следует занести небольшую площадь покрытия за мебель. Вполне достаточно 3 см, поэтому общая высота фартука на участке с тумбами и шкафами около 60 см.
Плита с вытяжкой: особенности проведения расчетов
Особое внимание при проведении расчетов на выкладку фартука следует уделять плите. Чаще всего она имеет такую же высоту, как и тумбы кухонного гарнитура
Если она находится ниже, то по возможности ее следует поднять с помощью установки специальных подставок. При этом фартук должен начинаться от самого нижнего объекта.
Плита это или тумбы, прокладывать его нужно от самого нижнего объекта. Отступ от верхней границы варочной поверхности должен быть таким же. Если плита работает от газа, то размещать ее нужно таким образом, чтобы огонь был от покрытия фартука на расстоянии 20-30 см. Нужно помнить о газовой трубе, из-за которой в некоторых случаях приходится обрезать плитку.
Высота фартука на участке между плитой и вытяжкой будет самой большой, поэтому экран получится не в виде ровного прямоугольника, а с выпирающими элементами.
Согласно ГОСТу, вытяжка должна находиться на расстоянии 65 см от электрической варочной поверхности. Если плита газовая, то промежуток увеличивается до 75 см. Также следует учитывать тип вытяжки.
В районе плиты с вытяжкой высота фартука будет немного выше
Важно учесть ГОСТ по расстоянию между этой техникой, приняв в расчет образовавшиеся открытые участки стен. Фартук следует располагать по всей поверхности, чтобы была соблюдена эргономика
Как рассчитать размер фартука на кухне
Расчет размеров защитного элемента начинают из расстановки мебели на кухне. Он может быть однополосным, если навесные шкафчики располагаются в 1 линию и не предусматривается установка вытяжки над плитой. Если шкафчики имеют разную высоту и планируется установка вытяжки, то фартук будет иметь фигурную конструкцию.
Стандартные габариты защитного элемента для рабочей стены приняты 47-117 см, расстояние от столешницы до нижнего края навесных шкафчиков при этом будет равняться 45-115 см.
Размер фартука рассчитывают таким образом, чтобы он заходил на пару сантиметров за столешницу или края напольных и навесных шкафов.
Что влияет на определение высоты
К факторам, от которых зависят размеры элемента защиты рабочей стены и его конфигурация, относят:
- габариты и расположение плиты и раковины;
- размеры и расположение навесных элементов кухонного гарнитура и напольных шкафов;
- конструкция и место установки вытяжки;
- тип варочной поверхности;
- рост хозяйки и других жильцов, пользующихся кухней;
- подключение стиральной и посудомоечной машин.
Стандартная высота фартука на кухне не всегда приемлема. Чтобы правильно рассчитать нужную высоту, следует учитывать такие нюансы:
- напольные шкафчики выбирают с учетом высоты стиральной и посудомоечной машин, если планируется их установка;
- зазор между бытовой техникой и рабочей плоскостью должен быть минимальным;
- высота установки столешницы у рабочей стены напрямую зависит от высоты плиты или варочной поверхности;
- облегчить расчет помогут покупные шкафчики и столы со стандартными размерами;
- расстояние от пола до столешницы выбирают с учетом роста хозяйки кухни.

Оптимальная ширина
В ширину фартук может иметь любой размер. По правилам эргономики пространство в кухне должно быть организовано удобно для жильцов дома. При этом должен соблюдаться рабочий треугольник: холодильник (достать продукты) — мойка (помыть) — плита (приготовление пищи).
Расстояние между мойкой и плитой составляет 80-120 см, а между холодильником и мойкой — 40-60 см. Исходя из этого минимальная ширина фартука на кухне определяется расстоянием от холодильника до конца варочной поверхности, и к расстоянию между кухонными приборами добавляется ширина самих приборов. К общему размеру следует прибавить 50 мм, которые должны заходить за холодильник и прикрывать голую стену.
Стандартное решение — фартук устанавливается на всю длину кухонного гарнитура. В этом случае он выполняет 2 функции: защищает стену, примыкающую к рабочей поверхности, и является элементом дизайна кухни.
Установка под вытяжкой
Установка вытяжки меняет конфигурацию защитного элемента для рабочей стены.
Ее нижняя граница располагается на расстоянии 70-75 см над плитой. Это и есть размер кухонного фартука под встроенной в шкафчик вытяжкой. Для моделей с куполом в кухнях с высокими потолками высота защиты увеличивается до верхнего края навесных элементов, а в невысоких помещениях — до самого потолка. Ширина ее равняется ширине вытяжки с добавлением 5 см по сторонам.
Дополнительные расчеты
Стандартная высота столешницы составляет 85 см. Этот параметр узаконен в середине прошлого столетия. За прошедшее время рост женщин увеличился на несколько сантиметров, и стандартная высота столешницы вызывает усиленную нагрузку на мышцы спины. Решить проблему можно, заказывая высоту столешницы под рост хозяйки. Высота кухонного фартука от столешницы не может быть меньше 47-50 см.
Важный момент при обустройстве фартука — он частично должен заступать за края мебели, чтобы не открывалась полоска голой стены, что придаст помещению неухоженный вид. Под столешницу и нижний край навесных шкафчиков запас составляет 1-2 см, под боковые края мебели — 4-5 см.
К выбору размеров фартука следует подходить ответственно, чтобы не нарушить стиль кухни и сделать ее удобной для жильцов.
От чего зависят параметры фартука
Кухонный фартук, всегда чуть шире, чем расстояние от столешницы до днища навесного шкафа, так как он должен немного перекрываться напольными и навесными шкафами, не менее одного сантиметра снизу и сверху.
На выбор высоты кухонного фартука влияют следующие параметры:
Размеры плиты. Вся кухонная мебель подбирается исходя из высоты плиты. Если плита высокая, то и тумбы не должны выбиваться из общего ансамбля. Если плита низкая, ее можно установить на подиум, который обеспечит необходимую высоту. Высота фартука на кухне не должна быть меньше самого низкого модуля кухонного гарнитура, так и высота напольных тумб не должна быть меньше плиты.Тип плиты. Если плита газовая, то расстояние от вытяжки до конфорки будет составлять 75-80 см. А для электрических и индукционных варочных поверхностей – 70-75 см. так как газовое оборудование нуждается в более интенсивной вентиляции, чтобы своевременно избавиться от продуктов сгорания газа.
Тип вытяжки. Чтобы рассчитать высоту фартука над вытяжкой, необходимо предварительно изучить особенности монтажа и конструкции Вашей модели. Объём и форму вытяжки лучше учитывать до установки защитного полотна.Наличие габаритной техники. Если напольные модули приходится разбавлять такой техникой, как: посудомоечная машина, стиральная машина, мини-холодильник, необходимо учитывать и их габариты.Габариты напольных и настенных модулей. Стандартная высота напольных тумб 82-91 см. Эта величина меняется, в зависимости от роста хозяйки. Если рост превышает более 180-190 см., лучше приобрести напольные тумбы по выше (94-100 см.).
Также зависит от роста того члена семьи, кто чаще всего готовит.
Если вы решили ориентироваться на свой рост, главное — прочувствовать, в каком положении вам будет удобно и без боли в спине. Продумайте, в каком положении вам не придется горбиться, поднимать слишком высоко руки или низко наклоняться.
Практичность кафельного фартука начинающегося от пола, прямо пропорционально его стоимости.
Фартук до потолка
Установка фартука под вытяжкой
Именно этот участок считается проблемным для многих. Если стандартная высота фартука кухни составляет 85 см, то возле вытяжки
Вытяжка должна захватить все пространство плиты
Ширина фартука в этой зоне зависит от:
- типа вытяжки, потому что купольный тип монтируют без дополнительной навесной кухни. В таком случае фартук устанавливайте до верхнего края мебели, вытяжки и даже до потолка;
- выдвижной тип устанавливают в настенном шкафу, поэтому высота панели составляет 70-75 сантиметров.
Плитка зайдет на 1 см под вытяжку и по 3-4 см по бокам
Если это не честь, то возле техники появится пустой промежуток, который привернет внимание и негативно скажется на общем впечатлении от интерьера
Как определить размеры фартука
Это первое, с чего начинается составление проекта. Чаще всего высота фартука составляет 60 сантиметров: такой размер считается сбалансированным и отлично подходит для людей низкого и среднего роста.
А ведь таких — особенно среди женского пола — большинство.
Советы дизайнера Ирина Ирина Полякова – основатель интерьерной студии, архитектор и дизайнер интерьера. Основное направление работы – дизайн кухни Своим клиентам рекомендую немного занижать фартук (например, 50-55 см), если верхние шкафчики на дверных доводчиках открываются не в сторону, а вверх. Это помогает избежать тех неловких ситуаций, когда не самым высоким хозяйкам приходится звать на помощь более высоких домочадцев или же вставать на табуретку, чтобы закрыть их
Не стоит старательно отмерять указанные 0,6 метра вплоть до последнего миллиметра: все равно края материала прячутся под верхние шкафчики и столешницу.
Если вы используете вытяжку, то помните о «правиле 75-80 см» — оптимальное расстояние между ней и варочной панелью. Стену за вытяжкой можно оформить в том же ключе, что и фартук. Впрочем, это дело исключительно вашего вкуса.
Если же вы решили сделать кухню просторнее и вообще отказались от верха, то лучше всего продолжить фартук до самого потолка.
Такой дизайн привносит в интерьер симпатичные средиземноморские или скандинавские нотки, где ценится свободное пространство и легкость оформления.
Пустоты можно заполнить обыкновенными полками. Это не только эстетично, но и практично.
Однако и вариант, где фартук занимает примерно треть прилегающей стены, тоже вполне рабочий. Главное — грамотно обыграть переход между материалами.
Ширина фартука зависит от типа кухонного гарнитура и почти всегда соответствует его длине: если планировка Г-образная, то продолжаем отделку по углу — и так по всему периметру.
Советы дизайнера Ирина Ирина Полякова – основатель интерьерной студии, архитектор и дизайнер интерьера. Основное направление работы – дизайн кухни Хочется соригинальничать? Оформите комбинированную поверхность, где зоны мойки и варочной панели оформлены одним материалом, а все остальное – другим. Такая идея часто используется в передовых с точки зрения дизайнерской мысли интерьерах.
Несколько полезных советов
Материалы для изготовления кухонных фартуков
Современные кухни позволяют оборудовать их фартуками из разных материалов:
Стеклянный фартук отражает освещение, что делает кухню более просторной и светлой.
- Керамическая плитка. Относится к традиционным материалам и позволяет оборудовать кухню недорогой и простой в уходе защитой. Ассортимент плитки с самой разнообразной цветовой гаммой и фактурой дает возможность создать кухонный фартук в тон вашей кухни.
- Мозаика. Данный материал можно отнести к разновидности плитки, так как их свойства во многом схожи. Мозаику производят не только из керамики, а также из стекла и смальты. Ее установка сложнее, чем плитки, но результат превосходит все ожидания. Особо эффектно такое покрытие выглядит на криволинейных поверхностях, оно придает им особую фактуру и рельеф.
- Стекло. Украшенное узорами матированное или прозрачное закаленное стекло очень просто мыть, оно не поддается механическим, химическим и температурным воздействиям. Стеклянные поверхности в длину могут достигать 3-х метров, что позволяет создавать фартуки без швов и стыков.
- Пластик. Недорогой и устойчивый к внешним воздействиям материал. Особенность пластиковых фартуков в том, что они изготавливаются из сплошного листа, вследствие чего грязь и жир не накапливается в швах, как в случае с керамической плиткой, мозаикой и некоторыми другими материалами.

- Камень. Придает кухне изысканный и дорогой вид, особенно в комбинации со столешницей из того же материала. Камень может быть в виде тонких плит, либо литокерамики — плитообразного материала, в котором верхняя часть сделана из гранита, мрамора или другого вида натурального камня, а нижняя часть керамическая, такая же, как у обычной плитки.
- Дерево. Для производства деревянных фартуков используют защищенные от действия влаги плиты ДСП или МДФ. Они имеют небольшую стоимость, но главный враг древесины — высокая температура, поэтому часть фартука, которая находится над плиткой, следует исполнять из другого, более стойкого материала, либо использовать ДСП и МДФ с тонким металлическим покрытием.
- Акрил. Характеризуется небольшим весом и простотой установки. Данный материал позволяет наносить на его поверхность любой рисунок, фотографию или узор. Обладает одним значительным недостатком — такой материал легко царапается, поэтому его нельзя чистить с помощью жестких средств.

- Металл. Позволяет придать кухне профессиональный и высокотехнологичный вид. Главный недостаток — сложность ухода за таким фартуком, так как на нем сильно заметны следы от рук, брызги воды и жира. Для решения этой проблемы рекомендуется выбирать фартук из матового металла, либо украшенный фактурным рисунком.
Как можно увидеть, выбор материалов для создания защитного кухонного фартука очень широк. Традиционно он изготавливается из плитки, МДФ и ДСП, но на смену им сейчас часто использую и другие более разнообразные материалы.
Оптимальные размеры
Далеко не всегда стандартные параметры оказываются удобными. «Виной» тому и размеры кухонной техники, и рост хозяйки, и конфигурация самого помещения. Учитывая все это, можно рассчитать каким должен быть идеальный фартук.
Рост хозяйки кухни – в идеале этот показатель должен быть главным параметром, так как именно удобство работы определяет функциональность рабочего помещения
Здесь важно сохранение правильной рабочей позы: хозяйка должна стоять перед столешницей не наклоняясь, не сутулясь и не удерживая руки на неудобной высоте.
Эта дистанция от пола и является оптимальной высотой рабочего стола.
Второй параметр – положение полки или навесного шкафа
Нижняя граница шкафчика должна оказываться на высоте поднятой до плеча руки. Вторую полку нужно делать немного выше уровня глаз. Такое размещение определяется опытным путем.
Соответственно, ширина фартука будет равна разности между высотой напольного шкафа и границей навесного. Например: высота напольных шкафов составляет 80 см, нижняя граница навесного шкафа – 135 см, соответственно, ширина отделки на стене будет равна 135-80+2=57 см.
Размеры техники – на практике они чаще определяют параметры кухонного гарнитура. Величина стиральной машинки или плиты требует установки столов соответствующих габаритов, так как пользоваться разноуровневой рабочей плоскостью еще неудобнее, чем просто высокой. Но и в этом случае высота не должна превышать 90 см – это предел.
Расположение навесных шкафов стараются подбирать все-таки по росту. В итоге высота фартука на кухне может варьироваться в довольно широких пределах – от 47 до 117 см.
Например, при высоте стиральной машинки в 88 см высота рабочих столов с учетом столешницы будет 90 см. Если навесные шкафы расположены на удобной высоте в 140–150 см, то фартук нужно делать шириной в 150-90+2=62 см.
Расположение вытяжки – здесь все зависит от ее конструкции. Купольная модель, например, монтируется без шкафа, и стена в этом случае облицовывается по выбору: до края гарнитура, до вытяжки, до потолка. Встраиваемая модель предполагает установку шкафа – как правило, высота здесь достигает 70-75 см. Подвесное устройство может монтироваться любым способом, так что здесь ширина фартука будет определяться методом монтажа.
На фото – облицовка под вытяжкой.
стандартных высоты и ширины кухонных фартуков. Какая должна быть высота от пола?
Содержимое
- Стандартные размеры в зависимости от материала
- Какой должна быть высота?
- Как выбрать?
Фартук на кухне имеет не только декоративное назначение.
Он обеспечивает удобство при обработке продуктов и защищает стенки от загрязнения. Он имеет определенные размеры, так как должен закрывать все пространство стены в рабочей зоне.
Стандартные размеры в зависимости от материала
Стандартные размеры кухонных атрибутов существуют с советских времен, когда квартира и кухня имели стандартные размеры, и мебель тоже производилась по стандартам. Поэтому стандартные параметры фартука определяются размерами стандартной мебели.
В размер фартука входят следующие параметры: ширина, высота от пола. За его ширину принимают расстояние, которое лежит между его верхним и нижним краем.
При определении стандартной ширины учитывают показатели, предусматривающие средний рост человека:
- стандартную высоту напольных шкафов, которая равна 85 см;
- от нижней поверхности до пола шкафов, как правило, около 140 см.
Ширина фартука на кухне – это разница этих двух показателей, к которой прибавляется 2 см: 140-85+2=57 см.
Его нижний край должен быть ниже края столешницы не менее чем на 10 мм и на столько же входить в верхний предел для навесного шкафа.
Однако влияет на ширину расстановки мебели. Если стенки располагаются в одну линию и на одном уровне, а фартук выполняется в аналогичной полосе. Если между шкафами есть зазоры и они расположены на разной высоте, а фартук имеет контурную форму.
Наличие вытяжной системы также влияет на размер фартука в зависимости от типа его конструкции.
В настоящее время при наличии большого выбора кухонь и их размеров эти стандарты могут различаться. При определении ширины учитывают и такие показатели:
- высота плиты или варочной поверхности;
- бытовые приборы (посудомоечные и стиральные машины), также учитывается их высота;
- используется для формирования материала фартука; Рост хозяйки
- , так как обычно она отвечает за приготовление еды.
Стандартные размеры используемого материала не всегда совпадают с размерами рабочей зоны элемента, что могло повлиять на его параметры.
Есть два варианта: изменить или увеличить размер фартука или подогнать ткань под фартук.
Стеклянные панели могут иметь стандартную ширину 60 см, но обычно они больше (от 200 до 360 см). В этом случае их нужно делать на заказ.
Это также относится к МДФ, ДСП, которые имеют стандартную ширину 15-90 см, поэтому их необходимо разрезать на соответствующие куски.
Самый удобный материал для фартука – керамическая плитка. Обычно имеет квадратную форму и размеры 10х10 см, 20х20 см и 30х30 см. Чайный материал легко подобрать и под стандарт, и под индивидуальный размер кухни.
Стандартной шириной считается размер 60 см, что особенно практично для оформления фартука из плитки, но оптимальным вариантом является 600 на 700 мм. Такое решение наиболее удобно при наличии шкафов, установленных над рабочей зоной.
Кроме стандартного параметра ширины фартука существует и его оптимальное разрешение.
Он зависит от габаритов элементов гарнитура на кухню, высоты потолка, роста хозяйки и может составлять 47-117 см.
Наличие на кухне посудомоечной и стиральной техники позволяет использовать максимальную ширину фартука. Увеличена высота столешницы и одновременно поднят уровень навесных полок и шкафов. При высоких потолках в кухне расстояние до стены может достигать даже антресоли 100+2 см – это будет ширина фартука.
На ограниченной площади кухни с низкими потолками ширина покрытия металлическими перекрытиями будет минимальной и может достигать 50 см. При этом мебель должна иметь стандартные размеры.
Какой должна быть высота?
Важным компонентом размера фартука является его высота.
от пола
На эту высоту влияют такие факторы.
- Размеры напольных тумб и шкафов. Стандартным считается размер мебели в диапазоне 85-91 см. Высота кухонной мебели должна быть чуть ниже пояса человека, чтобы обеспечить комфорт при работе.
Это главный показатель его размера. Поэтому нижний уровень фартука также будет располагаться именно на такой высоте от пола. Если рост хозяев очень высокий, то высоту шкафа можно увеличить до 95 см. - Высота варочной панели или плиты. Иногда размеры плиты немного превышают высоту других элементов мебели. В этой ситуации высота фартука измеряется от самой низкой напольной тумбы или тумбы.
- Если высота и плиты, и мебели одного размера , Минимальная высота 45 плюс 2 см, которые необходимы для вхождения столешницы. Высота от пола до навесных шкафов обычно составляет 152 см, из них 47 приходится на ширину по фартуку. Для удобства выбирайте мебель, выполненную в соответствии с высотой плиты.
- Бытовая техника. Точно так же высота мерцания влияет и на встроенную стиральную или посудомоечную машину. Если вы планируете разместить их под столом, оптимальная высота металлических дек определяется исходя из их размеров.
он часто может превышать стандарт. - Рост хозяйки, что имеет большое значение Так как удобство при приготовлении пищи является показателем функциональности рабочего стола. Во время работы человек должен сохранять правильную осанку: стоять прямо, не сгибаясь, не сутулясь, руки должны находиться в удобном положении.
- Высота садовой мебели 85-91 см. Наиболее удобна для среднего роста. Важно, чтобы нижняя поверхность стеновых элементов находилась на уровне руки человека, поднятой на уровень плеча.
от столешницы
Размер фартука зависит от высоты расположения антресоли, навесной стенки, стеллажа или других элементов мебели. Как правило, их размещают в соответствии с ростом человека. Поэтому высота фартука столешницы может быть разной и варьироваться от 47 до 117 см. Но обычно антресоль монтируют на высоте от 1,35 до 1,5 м от пола. При таком расположении зазор между ними и столешницей составит около 45-60 см, а ширина покрытия металлических дек — 65 см.
Такая высота фартука столешницы позволяет легко дотянуться рукой до нижней полки в тумбе.
Наличие рисунка также влияет на высоту и определяется формой, формой бытового прибора и расстоянием от поверхности рабочей зоны до нижнего уровня рисунка.
Самый простой вариант — когда вытяжка встроена в навесные шкафы. Высота от столешницы будет такой же, как и до пристенной антресоли.
Если вытяжка строится отдельно (как в случае с плоскими, наклонными или купольными моделями), то образующееся пространство для навесных полок обтянуто тем же материалом, что и фартук, то есть и высота его будет значительно больше.
Фартук с высотой можно расположить тремя способами: до нижнего уровня поверхности вытяжки, крепится к полкам и антресолям, до потолка. Если антресоли доходят до потолка, то и высота фартука тоже будет до потолка.
Следует помнить, что зазор под всасывающим агрегатом требует несколько большего увеличения высоты: примерно от 5 до 10 см.
Как выбрать?
Подбор кухонного атрибута – дело сугубо индивидуальное, в котором нужно учитывать все вышеперечисленные моменты. Кроме того, в процессе выбора и установки также следует учитывать такие особенности:
- размеры фартука определяются габаритами и напольной мебелью, а не отвлекаются на расчет;
- его размеры непостоянны, не имеют жестко ограниченных параметров, ведь даже у кухонного фартука может быть разной высоты и ширины;
- его нижняя граница определяется высотой уличной мебели, а верхняя – расположением внешних компонентов.
Фартук должен иметь четкую прямую линию: это подчеркивает эстетичность расположения мебели. Но иногда пол кухни имеет небольшой уклон и необходимо опустить фартук до уровня столешницы на 2 см.
Если верхний уровень фартука имеет декор, то также необходимо учитывать при выборе высоты, чтобы навесные полки не закрывались.
Подбирая фартук, необходимо в первую очередь продумать схему расстановки мебели, измерить высоту уровня пола и настенной мебели или выбрать уже готовую кухню.
Наиболее просто подобрать нужный размер фартука в том случае, если на кухне используются готовые наборы, имеющие стандартные размеры. Тогда фартук будет приближен к стандарту.
Иногда верхняя часть кухонного гарнитура включает разногабаритные шкафчики и имеет дополнительные открытые полки, не закрывающие стену. При этом особенность постановки фартука в том, что он будет иметь разный уровень: его верхняя граница должна доходить до нижней поверхности каждого элемента мебели.
Подбирая облицовочный материал для фартука, нужно учитывать особенности его монтажа. Для облицовки фартука часто используют керамическую плитку, так как ее легче подогнать под необходимые размеры. Если вы столкнулись с какими-то несоответствиями, чтобы не резать плитку, подгоняя ее под нужный размер, проще сделать зазор под шкафом или столешницей еще несколько.
При выборе фартука из плитки следует помнить, что особенностью этого материала является незначительное увеличение толщины стенки.
Поэтому, чтобы антресоли висели ровно, нужно установить специальную стойку, к которой они и крепятся. К тому же укладка плитки достаточно сложная и требует привлечения профессионального мастера.
Удобство пластиковых панелей заключается в простоте их монтажа: используются специальные профили верхнего и нижнего уровня, в которые панель легко вставляется. Панели МДФ также просты в монтаже, но их требуется подбирать в соответствии и вместе со столешницей или гарнитуром.
Фартуки стеклянные бывают 2 видов:
- панель монолитная, крепится к стене с помощью болтов или анкеров;
- стеклянных плиток разных размеров: они укладываются как керамические плитки.
Стеклянная панель не всегда можно подобрать по размеру. Затем ее нужно сделать на заказ или изменить расположение мебели.
Установка фартука зависит от его типа. Но общим требованием является предварительная обработка стен: их выравнивают грунтовкой и обрабатывают противогрибковыми средствами.
Для укрепления монолитных конструкций и панелей используются шурупы, шарнирный крепеж, жидкие гвозди, клей. Еще один необходимый момент – монтаж розеток. Легко подрезаемые панели (МДФ, пластик), отверстия для розеток в фартуке для его монтажа, керамическое покрытие на розетке, устанавливаемое после монтажа.
На выбор также влияет дизайн фартука и салона. Наиболее приближенные к стандартным размерам фартука стандарты классической кухни, где используются традиционные навесные шкафы с двумя дверцами. Делать фартук меньших размеров (до 47-57 см) на кухне не рекомендуется, так как это создаст ощущение визуальной загроможденности мебелью.
Сейчас в конструкции часто используется сегодня не широкий длинный лофт с распашной дверью, которая открывается вверх. Требуют увеличения ширины юбки до 70-75 см.
Несколько другим будет фартук на кухне в мансарде, где нет антресольных стен, а разрешены только открытые полки и незакрытая вытяжка.
В этой кухне высота фартука произвольна, и учитывается только эстетическая привлекательность.
При выборе фартука тоже важны и такие нюансы.
- Нежелательно, чтобы он был очень яркого цвета, от этого устают глаза. Лучше выбирать мягкие оттенки. Лак
- делает цвет более насыщенным, а матовым придает бледность.
- Кухня с маленькой площадью фартука с крупным рисунком выглядит очень объемно, а в очень больших помещениях, наоборот, выглядит непривлекательно.
- Фартук с горизонтальными линиями визуально расширяет пространство. Такой же эффект создает и зеркальное и стеклянное покрытие. Но у них есть существенный недостаток – на них очень хорошо видны любые загрязнения.
- Фартуки для готового кухонного гарнитура должны гармонировать с его цветом.
Подбирая фартук, нужно также учитывать, что он должен быть устойчивым к высоким температурам, влагостойким, гигиеничным и простым в уходе.
В следующем видео вы узнаете все об идеальных размерах и материалах для кухонного фартука.
15+ мест, где можно купить фартуки больших размеров » практичная кухня
Фартуки не подходят всем. Слишком много фартуков «одного размера» игнорируют потребности полных, крупных и полных людей. На больших телах плохо сидящий, слишком маленький фартук скорее помеха, чем преимущество; галстуки, которые развязываются, прикрытие с дырками, нагрудники, которые едва прикрывают одну грудь, не говоря уже о двух широких.
Людям больших размеров — любого пола — нужны фартуки больших размеров!
Плохо сидящие фартуки были одной из моих самых больших неприятностей в школе кондитеров. Сплошные черные фартуки, надетые поверх громоздких поварских пальто, были обязательными. Попытка найти подходящие блюда была сложнее, чем приготовление антреме.
Итак, я подумал, что пришло время составить список лучших мест, где можно купить фартуки больших размеров , разработанные для больших тел. Этот кто-то — я. И этот список есть этот список.
Большое спасибо всем читателям Практическая кухня в Instagram и Twitter, которые сообщили, где вы купили фартуки больших размеров, которые вам нравятся!
ПРИМЕЧАНИЕ: В этом посте я использую термины «плюс размер» и «толстый» как синонимы.
«Толстый» — это не оскорбление. Это нейтральный дескриптор, ничем не отличающийся от того, чтобы называть кого-то худым , высоким , добрым или коротким . Когда мы относимся к слову «толстый» как к оскорблению, мы укрепляем представление о том, что быть толстым плохо или постыдно. Это нормально быть толстым! Полные люди тоже заслуживают милых, веселых и функциональных фартуков! [ Подробнее: Обри Гордон «Жир – это не плохое слово» ]
Для фартуков, которые доступны в нескольких размерах, я включил сюда самые большие доступные размеры. Можно с уверенностью предположить, что если вы меньше этого размера, у них найдется фартук, который вам подойдет. Поэтому я расставил приоритеты, включая самые большие измерения.
Есть рецепт фартука больших размеров, который я пропустил? Оставьте комментарий и дайте мне знать!
Без лишних слов, приступим!
ПРИМЕЧАНИЕ : Я дал ссылку на определенные фартуки, представленные на фотографиях ниже, где это возможно, но многие из них изготавливаются на заказ и могут отсутствовать на складе.
Проверьте витрины для полного списка доступных фартуков!
1. Fat Folks Can — прочные парусиновые настраиваемые фартуки до бесконечности (7X, 30+). Это ЕДИНСТВЕННЫЕ фартуки, которые я смог найти с вариантами размеров, специально разработанными для сверхтолстых и инфинифатных (размер США 32+) людей. Толстые люди тоже заслуживают милых, забавных фартуков, и Кристина их полностью удовлетворяет.
Из всех фартуков в этом списке фартуки Fat Folks Can предлагают самые большие размеры прямо с места в карьер, без настройки. Они предлагают индивидуальные размеры и корректировки, если они вам нужны, так что не стесняйтесь спрашивать!
Фартуки Christine’s представлены в различных забавных узорах из 100%-го хлопкового плетения Duck Canvas, имеют очень длинные лямки и регулируемый ремешок на шее. Они очень прочные и действительно уникальные — отличный способ заявить о себе на кухне.
Банки Fat Folk Размеры: (Размеры Infinifat) Шея — 47 дюймов, регулируемая / Талия — 61 дюйм каждая / Верхняя часть нагрудника — 21 дюйм в ширину / Талия и бедра — 42 дюйма в ширину / Длина — 32 дюйма.
. три кармана и регулируемый ремешок на шее — это уже довольно просторный покрой.
Для крупного и высокого шеф-повара компания H&B увеличила размер своего фирменного фартука из 100% хлопкового полотна для более крупного тела, добавив дополнительное покрытие по бокам и длину.
Хотя я бы хотел, чтобы Hedley & Bennett предлагала каждый из своих фирменных фартуков большого размера, «Большой фартук» в настоящее время доступен только в трех цветах: Char (серо-синий), Denver (загар) и Olive (темно-зеленый). ).
Когда я спросил вас о ваших любимых местах, где можно купить фартуки для полных, Hedley & Bennett очень много назвал. НО! Я также слышал от нескольких 4X+ супертолстых людей, которые обнаружили, что Большой Фартук не был для них достаточно большим.
Если вы хотите купить один из фартуков Hedley & Bennett и подогнать его под более полное тело, Hedley & Bennett предлагает 30% скидку, чтобы компенсировать стоимость пошива, если вы отправите им электронное письмо.
Это хорошая политика, но на самом деле сделать все их фартуки большего размера было бы еще лучше!
(Хедли и Беннет дали мне код скидки, чтобы поделиться с вами, если вы не хотите выполнять дополнительную работу по электронной почте: используйте код SQUAD10 , чтобы получить 10% скидку на любой фартук Hedley & Bennett!)
Фартук Hedley & Bennet Размеры: 37 дюймов в ширину и 39,5 дюймов в длину. Ремни имеют длину 43 дюйма, а шейный ремень имеет длину 36 дюймов и регулируется. [Руководство по размерам Hedley & Bennett]
Магазин: 1 / 2 / 3Кухня Сюзанны была высоко рекомендована читателями Практической кухни . Главным магазином Сюзанны на самом деле является The Vermont Apron Company, а ее магазин на Etsy — это место, где она может «передавать некоторые фавориты, некоторые OOAK [единственные в своем роде], студийные образцы и несколько странностей, у которых нет другого места».
Мало того, что эти великолепные фартуки ручной работы доступны в различных стилях, цветах и уютных узорах — перекрестная спина, завязка на талии, двойные бретельки, без бретелек, присборенные фартуки — фартуки больших размеров не просто увеличены версии фартуков прямого размера.
Сюзанна заботится о том, чтобы правильно масштабировать узоры, чтобы они соответствовали более крупным телам.
Vermont Apron Company Размеры: Могут различаться в зависимости от дизайна, но должны соответствовать американскому размеру 5X (бюст — 60 дюймов / талия — 55 дюймов / бедра — 64 дюйма). Каждый фартук доступен в четырех вариантах длины!
4. Boojiboo — фартуки в стиле пин-ап с красочными ретро-узорами (до размера 4X)
Shop: 1 / 2 / 3Эти фартуки в стиле пин-ап из 100% хлопка от Boojiboo на Etsy абсолютно уникальны и единственны в своем роде. Магазинных выкроек здесь нет!
Дополнительное место в нагруднике фартука — приятный штрих. Он подходит для большой груди, а шейные бретельки завязываются сзади, что позволяет отрегулировать его, чтобы при необходимости добавить больше места.
Ретро-фартуки больших размеров от Boojiboo представлены в забавных расцветках, с пищевыми и кухонными узорами. На складе всегда есть множество вариантов в горошек с разными акцентными цветами, в то время как другие ткани, кажется, приходят и уходят.
Каждый фартук имеет два глубоких кармана спереди и вырез в форме сердца.
Boojiboo Размеры: Шейные бретели — 29 дюймов каждый / Поясные завязки — 29 дюймов каждый / Длина — 29 дюймов / Талия — 28,5 дюймов / подходит до размера 4X.
5. QVC — простой фартук больших размеров различных цветов (один размер)
Магазин: QVCЕсли вы ищете однотонный фартук больших размеров однотонного цвета, сеть домашних магазинов QVC поможет вам.
Этот фартук больших размеров имеет широкий передний двойной карман, очень длинные лямки и регулируемый ремешок на шее. Он поставляется в самых разных цветах и стоит менее 30 долларов, что идеально подходит, если вам нужно что-то простое и недорогое.
Одно замечание: на этом фартуке нет швов или вытачек на груди или талии — это один плоский кусок ткани.
Размеры QVC: 32 дюйма в ширину и 38 дюймов в длину. QVC не указывает размеры поясного или шейного ремня, хотя шейный ремень регулируется.
По словам обозревателей, этот фартук великоват и подходит как минимум до американского размера 3X.
6. BlueCut — большой и высокий фартук из 100 % хлопка, ткань Duck (один размер)
Магазин: BlueCutБольшие и высокие фартуки BlueCut («El Jefe»), произведенные в Калифорнии, изготовлены из парусины Duck плотностью 12 унций. Каждый из них имеет нагрудный карман, карман для термометра на нагруднике и два кармана на коленях.
Это продуманные прочные фартуки, идеально подходящие для тех, кто долгие дни работает на кухне или у гриля.
Как вы можете видеть на фотографиях, юбка фартука обеспечивает защиту по бокам, а это значит, что она обеспечит достойную защиту спереди на более широком теле, но длина завязок фартука почти максимальна до завязывания спереди. идет. Таким образом, эти фартуки могут подойти для более крупного тела, но вам придется завязать завязки на спине.
BlueCut Размеры: Длина — 39 дюймов / Ширина — 42 дюйма / Ширина нагрудника на шее — 11,5 дюймов / Ширина нагрудника выше талии — 18 дюймов / Поясные ремни — 48 дюймов каждый / Шейный ремень — 12 дюймов регулируется.
BlueCut говорит мне, что они оценивают размер одежды как мужской 3X. Доступен в 5 цветах.
7. Amazon — смесь стилей, размеров и цен
Магазин: Canvas Cross Back / Black Pinafore / CupcakesЕсли вы когда-либо делали покупки на Amazon раньше (а кто не делал?), вы знакомы с ассортиментом сумок захвата списков, цен и качества в продаже.
Определенно можно найти фартуки полных размеров, но трудно найти четкие размеры и фотографии их на реальных полных людях, поэтому вам придется просмотреть отзывы, чтобы найти подходящий для вас.
Покупайте фартуки больших размеров на Amazon здесь!
8. Фартук — регулируемые фартуки больших размеров менее чем за 20 долларов США (один размер)
Магазин: 1 / 2 / 3Итак, Apronner продает свои фартуки больших размеров на Amazon, но поскольку у них так много вариантов, Я даю им свое место в этом списке.
Эти недорогие кухонные фартуки больших размеров стоят менее 20 долларов, и есть много полезных отзывов пользователей и фотографий, которые помогут вам лучше понять, как они подходят разным формам и размерам тела.
Эти фартуки больших размеров изготовлены из плотного хлопково-льняного материала, и их можно стирать в машине, в отличие от многих других фартуков в этом списке.
Размеры фартука: Ширина — 39 дюймов / длина — 39 дюймов / ширина верхней части нагрудника — 14 дюймов / завязки фартука — 39 дюймов / шея — регулируется.
9. Фартуки Snapped — черный фартук с перекрещенными ремешками на спине и ремешками из веган-кожи (до 3 шт.) Перекрещивающиеся ремешки ручной работы из веганской кожи взаимозаменяемы и индивидуальны — выберите один из более чем 20 различных цветов и узоров.
Укороченная юбка и фасон этих фартуков большого размера больше подходят для художественной студии или парикмахерской, но ткань из полиэстера/спандекса, устойчивая к воздействию воды, пятен и отбеливателей, прекрасно подойдет и для вашей кухни.
Фартук с защелками Размеры: Размер 2XL/3XL подходит для большинства размеров 18–26. Ширина плеч — 13 дюймов / ширина тела — 35,5 дюймов / длина — 32 дюйма. Big Bud Press — это базирующаяся в Лос-Анджелесе компания по производству бесплатной одежды, известная своей яркой унисекс-одеждой размеров до 7XL в рамках своих стандартных предложений. BBP впервые попал в поле моего зрения, когда моя подруга (и OG-друг блога) Эрин Лонг 52 недели работала с нарядами Big Bud Press во время пандемии. Я давно мечтаю о многих из их ярких стилей, поэтому я был в восторге, когда десятки из вас связались со мной, чтобы сообщить мне, как сильно вы любите линию джинсовых фартуков BBP из 100% хлопка для больших тел. Это далеко не самые большие фартуки больших размеров в этом списке; они бывают только одного размера. Но я очень ценю стремление Big Bud Press показывать свою одежду на моделях с разным телосложением, чтобы вы действительно могли увидеть, как они могут подойти! 9№ 0003 Фартук для пресса Big Bud Размеры: Один размер. Эти льняные фартуки от At Home Atelier очень высоко оцениваются на Etsy, где рецензенты в восторге от качественной конструкции и точного измерения размеров. Большая часть того, что они предлагают, — это японские фартуки со скрещенными спинками в стиле сарафанов, хотя есть и фартуки только для талии. Доступны в 13 различных цветах, с глубокими карманами и великолепными вышитыми деталями.Передняя часть плечевых лямок прикрепляется к нагруднику с помощью пуговиц. Фартук From Home Atelier Размеры: Некоторые фартуки доступны в размерах XXS-5XL (ищите списки с большой цветной точкой). Размер 5XL имеет окружность 50 дюймов и длину 37 дюймов. Фартуки только для талии доступны в «одном размере» (ширина 35 дюймов; лямки 39 дюймов), или вы можете запросить индивидуальный размер за дополнительную плату. Shift + Wheeler — небольшой бренд, принадлежащий гомосексуалистам и женщинам, производящий и продающий высококачественную одежду и сумки ручной работы в Астории, штат Орегон. Когда я попросил читателей журнала «Практическая кухня» порекомендовать им лучшие фартуки больших размеров, фартук Shift + Wheeler из 100% хлопкового твила с перекрестными лямками на спине и грязеотталкивающим покрытием был одним из самых популярных и восторженных рекомендаций. Этот фартук доступен в трех цветах: темно-синий, ель и уголь. Три кармана спереди на юбке и два кармана на левой груди нагрудника фартука. Фартук Shift + Wheeler Размеры: Один размер; США, женщины 26 / мужчины 3XL; Ширина — 28 дюймов, длина — 30 дюймов, бретели — 55 дюймов, регулируемые. Этот фартук-фартук в японском стиле с перекрестом на спине изготовлен по уникальной выкройке, которую компания Apron AnyWear совершенствовала за годы, в течение которых она создавала его. Фартук Фартук больших размеров от AnyWear изготовлен из 100%-ного хлопка средней плотности джинсовой ткани с оранжевой верхней строчкой. У каждого есть два глубоких кармана в передней части юбки-фартука. В отличие от некоторых других фартуков-сарафанов с перекрещенными спинками в этом списке, бретельки этого не отсоединяются от нагрудника фартука. Фартук AnyWear Размеры: Зависит от размера; Подробности см. в листинге. 3-кратный размер: обхват груди — 52 дюйма / длина от плеча до низа — 39 дюймов. Нестандартные длины доступны по запросу. Нет недостатка в местах, где можно найти льняные фартуки больших размеров в стиле сарафанов, но Linen Fairy Tales занимает место в этом списке благодаря тому, что они и предлагают уникальный фартук с боковыми пуговицами и полной защитой спины. Ремни фартука Linen Fairy Tales с перекрещивающимися спинками уже, чем у многих других фартуков в этом списке, что может обеспечить более легкий диапазон движений и меньше натягивать большие руки и грудь. Несмотря на то, что Linen Fairy Tales предлагает легкие льняные передники в японском стиле и фартуки со скрещенными спинками в размерах до 4X, ни на одной из фотографий нет фартуков на моделях больших размеров. Трудно сказать, как ткань сядет на более круглую фигуру. Льняной фартук Fairy Tales Размеры: Зависит от размера; подробности см. в списках. Размер 4XL: обхват груди — 51 дюйм / обхват талии — 44 дюйма / обхват бедер — 54 дюйма. Сэнди Грэм из Artsy Craftsy Boutique делает фартуки больших размеров ручной работы в ретро-стиле, которые отлично смотрятся на Comic Con и на кухне. Счастливые 5-звездочные рецензенты, похоже, разделились в том, где они носят эти фартуки — кто на кухне, кто для костюмов. Эти кокетливые фартуки с оборками из высококачественной ткани с карманами на подкладке, длинными завязками на шее и талии и глубоким V-образным вырезом в форме сердца. Обновите любой из их фартуков прямого размера до размера плюс, добавив этот список обновлений размера плюс в свою корзину Etsy. Фартук Artsy Craftsy Boutique Размеры: Размер здесь немного сбивает с толку, поэтому вы можете связаться с нами, если у вас есть конкретные вопросы. Фартуки большого размера бывают двух размеров: «20-22», который подходит для тех, кто обычно носит 1X/2X, и «XXL», который подходит для тех, кто обычно носит 3X/4X/5X, и может подойти для размера груди до 60 дюймов. Размеры юбки и длина варьируются в зависимости от модели, поэтому сверяйтесь со списками!Магазин 0015: Overseasoned Я уже много лет являюсь большим поклонником Overseasoned, бостонского феминистского бренда продуктов питания. Знаменитый фартук Эми «Разбей чеснок и патриархат» занял место в моем списке кухонных подарков для феминисток, и вы увидите, как я ношу его на многих моих фотографиях и видео. Но когда я впервые поделился ссылкой на фартук в прошлом году, я услышал от многих из вас, что вы хотели бы, чтобы он был большего размера. Поэтому, когда Эми спросила у своей аудитории какие-либо пожелания или предложения, я попросил версию размера плюс. И всего через несколько месяцев он здесь! Этот великолепный темно-фиолетовый фартук больших размеров из хлопка и льна имеет очень длинные регулируемые шейные и поясные ремни, а также плотное покрытие спереди. Дизайн передней части вышит ярко-белой нитью и представляет собой кулак, держащий в воздухе зубчик чеснока, с надписью «Разбей чеснок и патриархат». Фартук Overseasoned Размеры: Этот фартук имеет размеры 32″ (Д) x 38″ (Ш), с дополнительной тканью и удлиненными 27-дюймовыми завязками на шее и талии. Портлендские джинсовые фартуки ручной работы из 100% хлопка компании Copper Union Apparel с самого начала разрабатывались с расчетом на большую фигуру. Каждый фартук имеет очень длинный поясной ремень кремового цвета, регулируемый блестящий ремешок на шею и два больших глубоких кармана на подкладке спереди. Фартук можно носить как полный или полуфартук, и он будет великолепен на кухне или в мастерской! Золотая вышивка на меньшем из двух передних карманов изображает «кувшин с заклинаниями, использующий различные растения, известные своими защитными и целебными свойствами — базилик, алоэ вера, звездчатый анис, вербена, кизил и ива». Фартук для одежды Copper Union Размеры: В таблице размеров Copper Union указан размер 7X для обхвата груди 72-26 дюймов, талии 64-66 дюймов и бедер 78-82 дюйма. Фартук доступен в размерах 1X-7X, но в список не включены конкретные размеры фартука. Швея из Индианы Лори Кан шьет разнообразные забавные, красочные и практичные фартуки, которые она продает. Я впервые столкнулся с фартуками Лори, когда она оставила комментарий к этому посту в блоге! Не знаю, как я пропустил ее удивительные фартуки, когда впервые составлял этот список, но теперь они здесь. Хотя некоторые модели фартуков в ее магазине на Etsy «готовы к отправке», большинство изготавливается на заказ с возможностью выбора размера до 5X. Но Лори хочет, чтобы читатели «Практической кухни» знали, что она специализируется на разработке фартуков для больших размеров, И что вы обязательно можете обратиться к ней по любым запросам нестандартных размеров! Фартук Laurie’s Gifts Biz Размеры: Размеры варьируются в зависимости от дизайна, и каждый список включает определенные размеры. Что касается фартуков в стиле сарафанов, она говорит, что ее фартук 5X подходит людям с размером талии / бедер 49. Смотри! В! Эти! Настройка! Опции! Мы любим это видеть! CHEFtog — это компания по производству фартуков из Западного Чикаго, специализирующаяся на «дизайне фартуков, вдохновленных шеф-поваром», которые изготавливаются «из тканей высочайшего качества и в цветах, которые вы действительно хотите». Каждый фартук имеет перекрещенную спинку для уменьшения нагрузки на шею и четыре кармана — два в юбке фартука и два в нагруднике. Широкая и высокая линия фартуков CHEFtog не только по умолчанию предназначена для крупных фигур, но и предлагает широкий спектр индивидуальных настроек, включая добавление дополнительных дюймов к завязкам на талии, увеличение длины самого фартука и даже изменение формы. карманы и фурнитура! Эти фартуки разработаны поварами для использования на кухнях ресторанов, поэтому вы знаете, что они выдержат большой износ. CHEFtog Большой и высокий фартук Размеры: Большой и высокий фартук имеет ширину 37 дюймов и длину 36 дюймов с завязками на талии, каждая из которых имеет длину 50 дюймов, но при необходимости их можно настроить на странице оформления заказа. Ознакомьтесь с таблицей размеров фартуков CHEFtog. чтобы узнать подробности и узнать о нестандартных размерах!0024 Справочник по покупкам для кухни Мы самостоятельно проверяем все, что рекомендуем. Когда вы покупаете по нашим ссылкам, мы можем получать комиссию. Узнать больше› FYI Мы прочитали это руководство и поддерживаем наши решения. Независимо от того, находитесь ли вы на кухне каждую ночь или время от времени, вы будете готовить с большей уверенностью в удобном фартуке, который защитит вашу одежду от брызг. Пригласив широкий круг людей с разным телосложением для тестирования 24 фартуков, мы нашли девять, которые мы настоятельно рекомендуем. Наши кирки удобны и долговечны, и они позволят вам стильно готовить долгие годы.
Ремни из веган-кожи регулируются. Индивидуальный размер доступен по запросу! в различных цветах и стилях (один размер) Магазин: Big Bud Press
Ширина — 26,5″ / Длина — 28,75″ / Шнурки фартука — 42″ каждый / Горловина — регулируемая. 11. Для Домашнего Ателье — Льняные фартуки с вышивкой ручной работы (до размера 5X)
Магазин: Зеленый / Горчичный
Таблицы размеров доступны на изображениях, а не в описании. 12. Shift + Wheeler — фартук из 100 % хлопкового твила с перекрещиванием на спине, доступен индивидуальный размер (один размер)
Магазин: Shift + Wheeler
Shift + Wheeler подберет размер по индивидуальному заказу без дополнительной оплаты. 14. Linen Fairy Tales — Легкие льняные фартуки в виде сарафанов (до 4X)
Магазин: Розовый / Темно-синий
15. Artsy Craftsy Boutique — веселые и воздушные фартуки в стиле пин-ап для косплея и кухни (до размера XXL/5X)
Магазин: 1 / 2 / 3
Я люблю его так сильно. 17. Одежда Copper Union — Джинсовый фартук больших размеров с вышитым карманом в виде баночки для заклинаний (до размера 7X!)
Магазин: Copper Union Apparel
Их измерения начинаются с 1X (US 12-14) и доходят до 7X (US 36-38). 18. Laurie’s Gifts Biz — Красочные фартуки ручной работы, являющиеся семейной реликвией (размером до 5X)
Магазин: 1/2/3/4
в своем магазине Etsy Laurie’s Gifts Biz. У нее есть передники, полуфартуки с «большими карманами», халаты в стиле ретро и фартуки в стиле пин-ап с юбками с рюшами. Ее выбор тканей, кажется, поистине бесконечен с дизайнами, цветами и стилями для всех.
-63 дюйма. Фартуки в стиле ретро выпускаются до размера 4X (US 26-28). Они сделаны на заказ, поэтому обратитесь к ней, чтобы запросить больший индивидуальный размер! 19. CHEFtog — Большие и высокие фартуки с такими! много! настройка! опции!
Магазин: CHEFtog
Большое спасибо читателю «Практической кухни» Крису, который предупредил меня о фантастической, высококачественной, большой и высокой линейке фартуков CHEFtog! Наши любимые кухонные фартуки | Отзывы Wirecutter
Фото: Майкл Мерто Исследование
Почему вы должны нам доверять
Я старший штатный писатель в команде поваров Wirecutter, и я носил много фартуков за свою 20-летнюю кулинарную карьеру.
Я просмотрел множество кухонных принадлежностей, включая салфетки и скатерти, и у меня безупречный вкус (шучу… вроде как). Изучая это руководство, я прочитал массу редакционных обзоров на эту тему из таких источников, как Epicurious и The Strategist, и часами просматривал фартуки в Интернете и продавал их в обычных магазинах. Вдобавок ко всему этому я взял интервью у Карлы Лалли Мьюзик, директора ресторанного отдела журнала Bon Appétit, чтобы узнать, что она думает о том, из чего состоит отличный фартук.
Фаворит публики: фартук Hedley & Bennett Crossback
Фото: Michael MurtaughНаш выбор
Hedley & Bennett The All Day Crossback Apron
Фаворит среди наших тестировщиков, этот фартук удобный, мягкий (но прочный), гендерно нейтральный и регулируемый (подходит для широкого диапазона размеров).
Как он подходит: Этот фартук регулируется в соответствии с размерами от очень маленького до очень большого. Ремни достаточно длинные, чтобы их можно было сложить вдвое и завязать спереди для людей с размером талии до 12 или 34; в качестве альтернативы, любой может просто завязать их сзади. Этот фартук Hedley & Bennett подходит выше колена людям ростом 5 футов 2 дюйма и выше, что сделало его фаворитом среди тестировщиков, которые были ниже ростом.
Почему он нам нравится: Из 24 фартуков, которые я заставил попробовать своих коллег и друзей, фартук Hedley & Bennett Crossback (доступный в других цветах здесь) получил наибольшее количество голосов. Это потому, что он подходит для многих типов телосложения, независимо от чьего-то роста, ширины или изгибов. Людям ростом 5 футов 5 дюймов и меньше особенно понравилось, что они могли завязать этот фартук вокруг своей естественной талии, не сгибая нижнюю часть, что было невозможно с фартуками Hedley & Bennett Classic Bib.
И нагрудник Crossback остается на одном уровне с грудью, в то время как на некоторых других фартуках, которые мы тестировали, нагрудники имели тенденцию провисать наружу. У этого фартука также есть хорошие большие карманы, в которые удобно положить телефон или полотенце (или положить руки, пока вы ждете, пока вода для макарон закипит).
Все кухонные работники Wirecutter согласны с тем, что фартук Crossback — лучшая модель от Hedley & Bennett, потому что он подходит большему количеству людей и удобнее, чем фартук вокруг шеи. Как и лямки любого фартука с перекрестной спиной, лямки Hedley & Bennett равномерно распределяют вес по плечам, не натягивая шею. А то, как они переплетаются на спине, помогает удерживать фартук близко к телу и надежно, без образования складок и смещений даже при длительном приготовлении пищи. (При всем при этом фартуки с перекрестной спиной — лишь один из нескольких стилей, описанных в этом руководстве, и вы можете предпочесть другой.
)
Мы получили много положительных отзывов о вместительных задних карманах фартука Hedley & Bennett Crossback. Фото: Michael Murtaugh
Длинные усиленные каналы помогают удерживать ремни на месте и надежно зафиксировать фартук. Фото: Michael Murtaugh
Мы получили много положительных отзывов о вместительных задних карманах Hedley & Bennett Crossback Apron. Фото: Michael Murtaugh
Имея два фартука Hedley & Bennett Classic Bib (оба в подарок) в течение нескольких лет, я могу подтвердить их долговечность. Они используются в тяжелых условиях и часто подвергаются стирке на тестовой кухне Wirecutter, и по сей день швы остаются надежными, а ткань не имеет признаков износа.
Мы протестировали фартук Crossback в нескольких цветах: Moss и Blue Moss (оба — более легкая матовая ткань) и Denver (более плотная парусина). Он также доступен в черном холсте, джинсовой ткани и кожаной версии ограниченного выпуска. Некоторым тестерам понравилась мягкость цветов матового холста, в то время как другие предпочли Денвер, потому что он был толще и тяжелее.
По сравнению с Blue Moss, у Moss и Denver есть петля для молотка и кожаные нашивки на нагруднике, и они оба стоят на 20 долларов дороже. Передник также доступен в девяти других цветах и из различных материалов, включая кожаную версию ограниченного выпуска.
Недостатки, но не недостатки: Да, фартуки Hedley & Bennett дорогие. Но они надежны и прослужат долго. Если вы хотите фартук с перекрестной спиной и содрогаетесь при мысли о том, чтобы потратить около 100 долларов на щиток от брызг еды, обратите внимание на фартук Cayson Lulu.
Мы также понимаем, что Hedley & Bennett не предлагает фартук Crossback почти в таком же разнообразии забавных цветов, как фартук Classic Bib. Несмотря на то, что нам нравятся цвета Crossback сейчас, мы хотели бы видеть больше вариантов и более ярких оттенков в будущем.
Фасон: спинка с завязками
Размеры: один размер, регулируемый
Материал: хлопок
Цвета: 12 цветов (некоторые ограниченные серии)
Недорогой кроссбэк Фартук Lulu
Фото: Michael MurtaughТакже отличный
Cayson Фартук Lulu
Сделанный из толстой и прочной джинсовой ткани, этот фартук станет отличным выбором, если вас не смущает отсутствие набедренных карманов.
Варианты покупки
56 долларов* от Cayson
*На момент публикации цена составляла 51 доллар.
Как он подходит: Фартук Cayson Lulu шире и длиннее, чем кроссбэк Hedley & Bennett, и он закрывает большую часть ног и ягодиц. Lulu подгоняется в соответствии с размерами от маленьких до очень больших, но если вы обычно носите очень маленькие, они могут показаться вам слишком мешковатыми на талии. Он бьет ниже колена у людей ростом ниже 6 футов 1.
Почему нам это нравится: Если Hedley & Bennett Crossback стоит больше, чем вы готовы потратить, Cayson Lulu — отличная альтернатива примерно вдвое дешевле. Сделанный из толстого 100-процентного хлопкового денима с хлопковыми завязками, Lulu является одним из лучших вариантов изысканного фартука с перекрестной спиной, который мы нашли. И хотя в этом фартуке отсутствуют набедренные карманы, нам нравится, что у него есть съемные завязки. Это удобная функция, потому что длинные ремни имеют тенденцию запутываться в стиральной и сушильной машинах — проблема, которую мы обнаружили со многими другими фартуками.
Вместо передних набедренных карманов, Cayson Lulu усилен по средней части дополнительным слоем джинсовой ткани — хорошая дополнительная защита для грязных проектов, таких как консервирование помидоров. У него также есть один небольшой карман с двумя отделениями на нагруднике, который подходит для ручек или термометра с мгновенным считыванием.
Недостатки, но не нарушения: Cayson Lulu выпускается только в одном цветовом варианте — с синими и белыми полосами. Прочная джинсовая ткань также тяжелая и немного жесткая, когда она новая, хотя ткань начинает прогибаться после пары стирок. Мы предпочли Hedley & Bennett Crossback за его меньший вес и большие набедренные карманы, но вам решать, являются ли эти различия решающими, учитывая более мягкую цену Lulu.
Модель: спинка с завязками
Размеры: один размер, регулируемый
Материал: джинсовая ткань из хлопка с хлопковыми ремешками
Цвета: (одна) джинсовая ткань в сине-белую полоску
Простой и доступный фартук с нагрудником: классический фартук Williams-Sonoma
Фото: Michael MurtaughНаш выбор
Классический фартук Williams-Sonoma
Этот недорогой фартук-нагрудник изготовлен из плотного хлопка и доступен во всех цветах радуги.
Как он подходит: Классический фартук Williams-Sonoma опускается ниже колена на людях ниже 5 футов 10 дюймов, а тем, кто ниже 5 футов 4 дюймов, может потребоваться сложить его, чтобы обернуть ремни вокруг их естественной талии. Регулируемая петля на шее удерживает нагрудник на месте, а длинные завязки стягиваются вокруг живота.
Почему он нам нравится: Этот типичный фартук с нагрудником вокруг шеи от Williams-Sonoma отвечает всем требованиям: он доступен по цене, толстый и прочный. Этот фартук с регулируемой петлей на шее, вместительными передними карманами и длинными завязками стоит 25 долларов. Мы обнаружили, что нагрудник был немного более просторным, чем на аналогичных моделях от Tilit, и обеспечивал хорошее покрытие для большого диапазона размеров и форм груди.
Для такого недорогого фартука Williams-Sonoma очень хорошо сконструирован. Кухонный редактор Wirecutter Маргерит Престон сказала, что ее 15-летняя версия «все еще живет на кухне в доме моих родителей и продолжает там регулярно использоваться».
Она добавила: «Цвет по-прежнему свежий, швы как новые, и это тот фартук, к которому я чаще всего тянусь дома».
Williams-Sonoma производит этот фартук во множестве ярких цветов, и сезонные оттенки часто поступают в продажу. За дополнительные 10 долларов вы можете получить монограмму на нагруднике с выбранным вами шрифтом и цветом нити. Это довольно приятная сделка для персонализированного фартука, и он станет отличным бюджетным подарком.
Недостатки, но не нарушения: Толстый хлопок и плотная ткань делают этот фартук одним из самых жестких среди наших вариантов, но со временем он становится мягче по мере носки и стирки.
Нам не понравилась большая нашивка Williams-Sonoma на передней части этого фартука, но ее легко удалить с помощью вспарывателя швов. Фото: Michael Murtaugh Если вам не нравятся монограммы, классический фартук Williams-Sonoma поставляется с большой фирменной нашивкой, пришитой к нагруднику.
Если вас это беспокоит, просто снимите заплатку с помощью вспарывателя швов.
Стиль: Фартук с петлей на шее
Размеры: один размер, регулируемый
Материал: хлопок
Цвета: 11 цветов (некоторые сезонные)
Структурированный фартук с широким покрытием: Фото: Michael Murtaugh
Наш выбор
Cayson Butcher Apron
Этот структурированный фартук доступен в четырех размерах и подходит для широкого круга людей, а ремни надежно удерживают его на месте, не дергая и не соскальзывая.
Варианты покупки
47 долларов* у Cayson
*На момент публикации цена составляла 43 доллара.
Как он подходит: Структурированные бретели на этом фартуке помогают ему оставаться на месте в течение всего дня.
Он доступен в четырех регулируемых размерах, от XS до L, и имеет большие размеры. Если вы носите размер 2 или меньше, Cayson XS может быть мешковатым на талии.
Почему он нам нравится: Мясной фартук Cayson выглядит и сидит так же, как фартук с перекрестной спиной, но имеет более структурированный вид. Вместо того, чтобы перекрещиваться на спине, широкие бретели соединены полосой ткани. Этот дизайн с H-образной спинкой создает солидный фартук, который остается на месте в течение всего дня. Мясной фартук был одним из самых продаваемых стилей Cayson на протяжении более 20 лет, и это домашний фартук во многих кафе и мясных магазинах в районе залива Сан-Франциско (где базируется Cayson) и за его пределами.
Мясной фартук Cayson доступен в четырех размерах. Слева направо: большие, средние, маленькие и очень маленькие. Фото: Michael Murtaugh Если вас беспокоит, что фартук сдавливает шею и плечи, лучше всего подойдет Cayson Butcher Apron. H-образная спинка распределяет вес на плечи и спину и надежно удерживает фартук на месте.
Я часто носил его для укладки еды, потому что он позволял мне с комфортом запускать набор весь день. А его передняя прорезь облегчает приседание или вставание на колени, чтобы, скажем, передвигать предметы в низкой духовке.
Ремни H-back на фартуке мясника Cayson обеспечивают безопасность и удобство. Видео: Майкл Мерто
Мясной фартук Cayson имеет широкие возможности регулировки: две пуговицы с каждой стороны и четыре петли для пуговиц на обеих лямках. Фото: Майкл Мерто
Ремни H-back на фартуке мясника Cayson обеспечивают безопасность и удобство. Видео: Майкл Мерто
Одна из наших любимых особенностей Cayson Butcher Apron заключается в том, что он выпускается в четырех размерах, от XS до L, и имеет длинные завязки на талии, которые должны охватывать большинство талий и завязываться спереди. Задние бретели соединяются с линией талии пуговицами и имеют четыре положения регулировки.
Поскольку мы остановились на фартуках из натуральных волокон, мы протестировали только джинсовую версию с широкой полосой, состоящую из 100% хлопка.
Но Cayson также выпускает версию в черную тонкую полоску из смеси хлопка и полиэстера.
Недостатки, но не недостатки: Как и фартук Cayson Lulu, этот фартук мясника не имеет карманов. Существует карманная версия фартука Мясника, но он бывает только одного размера, эквивалентного среднему размеру обычного фартука Мясника; потому что этот фартук большой, для некоторых людей он будет слишком большим.
Модель: крест-накрест с завязками
Размеры: от XS до L
Материал: 100% хлопок (только джинсовая ткань в широкую полоску)
Цвета: темно-синий с белыми полосками (100% хлопок) и черный (хлопок и поли)
Лучший (в основном) водонепроницаемый фартук: Tilit Contra Chef Apron
Фото: Michael MurtaughНаш выбор
Tilit Contra Chef Apron
и кастрюли, этот легкий, водостойкий фартук — ваш лучший выбор.
Варианты покупки
92$* от Tilit
*На момент публикации цена составляла 85$.
Способ установки: Фартук шеф-повара Tilit Contra тонкий, легкий и удобно сидит на шее. Хотя мы думаем, что нагрудник достаточно широк для адекватного покрытия, людям с большой грудью он может показаться недостаточным. Он длинный, и вам, возможно, придется свернуть талию, если ваш рост 5 футов 3 дюйма или меньше.
Почему он нам нравится: Если вы ищете что-то, что обеспечит вам комфорт и сухость, когда вы будете мыть кучу посуды, купите этот фартук. Названный в честь ресторана Contra на Манхэттене, где он является домашним фартуком, Tilit Contra легкий, дышащий, водостойкий и довольно шикарный (для фартука). Если другие вощеные фартуки похожи на тяжелые резиновые пончо, то Tilit Contra сродни высококачественной дождевике Barbour.
Наша самая маленькая модель должна была сложить фартук шеф-повара Tilit Contra, чтобы завязать его на естественной талии.
Фото: Майкл МертоБольшинство вощеных фартуков изготавливаются из холста с толстым верхним слоем парафина (для отталкивания воды), что делает их тяжелыми и жесткими. Вощеный фартук Tilit Contra изготовлен из более тонкой хлопчатобумажной ткани, пропитанной водоотталкивающим раствором. Эта маленькая деталь делает фартук Tilit более легким и удобным, чем обычные фартуки из жесткой вощеной парусины.
Мы считаем, что четкие линии, узкий полукомбинезон и прорезные карманы придают Tilit Contra аккуратный и изысканный вид. Кожаная застежка на нагруднике тоже выглядит неплохо, хотя для домашнего повара она не очень полезна. И этот фартук поставляется во множестве вариантов как многолетних, так и сезонных цветов.
Капли воды на поверхности ткани. Но фартук Tilit Contra Chef Apron не является полностью водонепроницаемым — галлон горячего куриного бульона точно промокнет насквозь. Фото: Майкл Мерто
Снимите кожаную застежку Tilit Contra перед стиркой. Фото: Майкл Мерто
Мы обнаружили, что фартук Tilit Contra намного тоньше и легче, чем другие фартуки из вощеной парусины.
Фото: Michael Murtaugh
Капли воды на поверхности ткани. Но фартук Tilit Contra Chef Apron не является полностью водонепроницаемым — галлон горячего куриного бульона точно промокнет насквозь. Фото: Майкл Мерто
Фартук Tilit Contra можно стирать в машине (за исключением съемной кожаной застежки), но большинство других вощеных фартуков нельзя стирать в машине. Компания заявляет, что восковое покрытие выдерживает до 50 стирок, но основатель Tilit Алекс МакКрири сказал, что это число (установленное производителем ткани) занижено. Он сказал нам, что, основываясь на опыте его клиентов с этими фартуками, воск все еще эффективен после 50-й стирки фартука. В любом случае, вам, вероятно, не придется стирать его так часто, как фартук без покрытия. Поскольку ткань не впитывает влагу, вы можете просто снять ее из шланга и повесить, чтобы увеличить время между стирками.
Недостатки, но не недостатки: По сравнению с другими вощеными фартуками Contra стоит дорого.
Но он также легче, прохладнее и удобнее, чем тяжелые вощеные фартуки. Кроме того, хотя воск должен сохраняться на домашней кухне годами, со временем он стирается. Но даже когда это произойдет, у вас все равно будет функциональный, стильный, пусть и обычный фартук. А поскольку это домашний фартук в Contra на Манхэттене (и в ряде других ресторанов), ткань должна быть невероятно прочной, даже после того, как она потеряет свой воск.
Модель: нагрудник с ремешком на шее
Размеры: один размер, регулируемый
Материал: вощеный хлопок
Цвета: темно-синий, оливковый, французский синий, темно-серый, а также некоторые цвета ограниченной серии
3 9 и свободные цвета легкий сарафан: сарафан из грубого льна
Фото: Michael MurtaughНаш выбор
сарафан из грубого льна
Этот свободный сарафан невероятно удобен, а плотный лен обеспечивает защиту и прохладу.
Как он сидит: Этот свободный льняной сарафан с открытой спиной драпируется на теле. Он бывает миниатюрным, обычным и большим, поэтому подходит для размеров от 0 до 22. Но тестировщики с более коротким туловищем обнаружили, что вырез был слишком низким даже в миниатюрной версии.
Почему он нам нравится: На первый взгляд сарафан из грубого льна выглядит как скромная блузка: прямоугольник ткани с двумя лямками и большими карманами. Но на самом деле он очень хорошо разработан. Он свободен во всех нужных местах, но не скользит при движении. Как сказал один тестировщик: «Я забыл, что на мне был фартук, и это потрясающе». Нам также понравились два огромных набедренных кармана, которые вмещают больше, чем вы хотели бы в них положить. В этих карманах я прячу все, от телефона до термометра для мяса и даже сложенных кухонных полотенец.
Ремни на миниатюрной версии Rough Linen Pinafore были немного длиннее на нашем самом коротком тестере. Фото: Michael Murtaugh Я ношу этот передник около семи лет, и это все еще мой первый выбор среди множества фартуков, которые у меня есть.
Он пропускает воздух и сохраняет прохладу на жаркой кухне, несмотря на то, что он сделан из более толстого материала, чем большинство других льняных фартуков, которые мы пробовали. Анна Перлинг, штатный писатель Wirecutter, сказала, что ей также нравится этот фартук, потому что он мягкий и непринужденный, а «драпировка намного лучше, чем у более дешевых двойников».
Стандартный сарафан из грубого льна, вид спереди модели размера 8. Фото: Майкл Мерто
Вид сзади на обычный сарафан из грубого льна модели размера 8. Фото: Майкл Мерто
Вид спереди на обычный сарафан из грубого льна на модели размера 8. Фото: Майкл Мерто
Сарафан из грубого льна доступен в трех размерах: миниатюрном, обычном и большом. Миниатюрная модель имеет ту же ширину и длину ремешка, что и обычная, с кромкой на 5 дюймов короче. Большой фартук такой же длины, как и обычный, но шире. Если у вас широкая грудь или плечи, Rough Linen также предлагает удлиненные лямки на любом фартуке (вы можете запросить это в поле «Примечания к заказу» при оформлении заказа).
Недостатки, но не недостатки: Бретельки могут быть немного длиннее для людей с коротким торсом, из-за чего вырез горловины будет располагаться ниже на груди. И это, скорее всего, проблема миниатюрного фартука, учитывая, что его лямки такой же длины, как и на обычном. Тем не менее, мы не думаем, что это является препятствием для большинства людей, потому что сарафан из грубого льна — отличный фартук. Также, если вы шьете, то можете сами укоротить лямки, а можете отдать портному. Мы меняем нашу одежду, чтобы она лучше подходила нам, так почему бы не фартук?
Стиль: передник
Размеры: миниатюрный (до 5 футов 4 дюймов), обычный (подходит большинству), большой (размер 18+)
Материал: лен
Цвета: белый, розовый, натуральный , темно-серый, черный, красный, кобальтовый
Передник с полным покрытием: противотуманный льняной фартук
Фото: Michael MurtaughНаш выбор
противотуманный льняной передник
Благодаря своей очень широкой и длинной конструкции этот передник подойдет вам покрыты спереди назад.
Как он подходит: Этот легкий сарафан имеет более высокий вырез горловины и больше прикрывает спину, чем у Rough Linen. Подол доходит до колена, если ваш рост около 5 футов 10 дюймов или выше.
Почему он нам нравится: Я называю противотуманный льняной фартук «Волшебным халатом», потому что он подходит всем участникам тестовой группы (мужчинам и женщинам, а также маленьким и большим размерам). Он свободный, но в то же время скроенный. Этот сарафан был длиннее, чем у Rough Linen, до колена на наших более коротких моделях, а широкий крой позволял полностью закрывать переднюю и заднюю части в широком диапазоне размеров. Противотуманный льняной фартук выглядит и ощущается так, как будто он сам по себе может быть платьем, но при этом остается легким и воздушным. 9Фартук 0003 Fog Linen’s Over Apron обеспечивает более полное покрытие, чем сарафан из грубого льна. Фото: Michael Murtaugh
Высокий вырез Fog Linen был хитом среди тестировщиков с более коротким торсом — тех же людей, которые думали, что сарафан из грубого льна сидит слишком низко на груди.
Фартук Over Apron легче и тоньше, чем фартук Rough Linen, с однослойными лямками. На самом деле, он весит на унцию меньше, чем Rough Linen, несмотря на то, что имеет более крупный покрой.
Степень защиты спины и то, как сидит фартук Fog Linen, зависит от вашего размера и роста. Фото: Майкл Мерто
Карманы фартука могут быть немного высоковаты в зависимости от вашего размера. Они были в неловком положении для этой модели размера 8, но у тестировщиков размера 6 и меньше такой проблемы не было. Фото: Michael Murtaugh
Степень защиты спины и то, как сидит фартук Fog Linen, зависит от вашего размера и роста. Фото: Майкл Мерто
Этот фартук выпускается одного размера, и он действительно подходит большинству. Я надеваю его на людей ростом от 5 футов 1 до 6 футов 2 и размерами от 0 до 20. Он бывает трех цветов: бирюзовый, темно-синий и фиолетовый (появится осенью 2019 г.).). Если вы хотите его в белом цвете и он все еще доступен, вам лучше взять палку, потому что он снят с производства.
Недостатки, но не недостатки: При цене около 125 долларов плюс доставка противотуманный фартук является самым дорогим из всех наших вариантов. Карманы маленькие, и если у вас размер 10 или больше, они будут сидеть немного высоко на туловище. А так как этот фартук сделан из тонкого льна, то он быстро промокнет, если вы будете мыть кучу посуды или что-то прольете на него.
Стиль: Pinafore
Размеры: Один размер, не регулируемый, но подходит для широкого диапазона размеров
Материал: 100 -процентный льня : Rough Linen Оркнейский льняной фартук
Наш выбор
Как он подходит: Оркнейский льняной фартук доходит до колена на высоких людях (5 футов 11 дюймов и выше) и чуть ниже колена на всех остальных.
Почему это здорово: Кухонная команда Wirecutter не может перестать восторгаться полуфартуком Rough Linen, потому что его так приятно носить.
Сделанный из того же плотного льна, что и сарафан из грубого льна, этот фартук без библии отлично подходит для людей, которым нужно что-то, что легко надевать, и тем, кому не нужно прикрывать грудь. Летом я предпочитаю льняные полуфартуки, потому что они помогают сохранять прохладу, когда на кухне становится безумно жарко. И хотя этот стиль оставляет верхнюю половину открытой, она длинная и широкая и закрывает бедра и ягодицы.
Вы можете спрятать телефон, блокнот или другие тонкие предметы в большом нагрудном кармане с двумя отделениями. Этот полуфартук выполнен в тех же приглушенных тонах, что и сарафан из грубого льна: белый, розовый, натуральный, угольный и черный.
Полуфартук из грубого льна защищает бока и бедра, а у некоторых людей он даже полностью закрывает спину. Фото: Майкл Мерто Недостатки, но не недостатки: Хлопчатобумажные лямки недостаточно длинны, чтобы сложить их вокруг талии, если у вас размер талии выше 12 или 34.
Тем не менее, наши более крупные тестировщики не возражали против того, чтобы завязать этот фартук сзади.
Стиль: полуфартук
Размеры: один размер, регулируемый
Материал: лен с хлопковыми завязками
Цвета: белый, розовый, натуральный, угольный, черный, красный, кобальтовый
3
3 фартук A для размещения: Amana Woolen Mill Lake Stripe Half Apron Фото: Michael Murtaugh Наш выбор
Amana Woolen Mill Lake Stripe Half Apron
Этот привлекательный фартук наденьте, когда хотите выглядеть готовым к приему гостей, завершая ужин.
Варианты покупки
Как он подходит: Полуфартук Amana Woolen Mill Lake Stripe облегает поваров ростом 5 футов 3 сантиметра и ниже до середины бедра, а у более высоких людей он достигает середины бедра. Он сделан из плотного тканого хлопка, поэтому кажется, что он тяжелее полуфартука из грубого льна.
Почему это здорово: Несмотря на то, что этот половинчатый фартук мало что прикрывает, он симпатичный и идеально подходит для приема гостей. Но не думайте, что этот короткий фартук — это форма, а не функция. Толстая хлопчатобумажная ткань обеспечивает эффективный барьер между вашим лучшим комбинезоном для званого ужина (или кафтаном) и ужином. Мы также восхищаемся мелкими деталями фартука Amana, такими как удобный разрезной карман и широкие завязки из хлопчатобумажной тесьмы, которые остаются завязанными.
Несмотря на то, что этот фартук от Amana Woolen Mill предлагает наименьшее покрытие из всех наших вариантов, он по-прежнему толстый и защитный. Фото: Майкл МертоЕсли вам не нравится оранжево-синяя цветовая палитра, доступна версия в широкую темно-синюю полоску.
Фартук для кафе Amana Woolen Mill обеспечивает хорошее боковое покрытие для людей с разным ростом и телосложением. Фото: Майкл Мерто
Amana Woolen Mill использует более широкие и длинные поясные завязки на своих полуфартуках, чем Rough Linen.
Фото: Майкл Мерто
Фартук кафе Amana Woolen Mill обеспечивает хорошее боковое покрытие для людей с широким диапазоном размеров и телосложений. Фото: Майкл Мерто
Недостатки, но не недостатки: Давайте будем честными, это ваш выставочный фартук. Его минимальное покрытие означает, что он не идеален для приготовления пищи в течение всего дня. Думайте об этом милом маленьком номере как о смене костюма.
Стиль: Half Apron
Размеры: Один размер, регулируемый
Материал: 100 -процентный хлопок
Цвета: Multi and Navy Stripe
Основные стили апрон
Arty
. вашу одежду от пятен от еды, но это не значит, что вы должны жертвовать комфортом ради полезности.
Фартук должен быть удобным, потому что последнее, что вам нужно, — это надоедливая, неподходящая вещь, которая будет мешать, пока вы пытаетесь подать ужин на стол. Есть много разных стилей фартуков. В зависимости от вашего типа телосложения и типа покрытия, которое вам нужно, вы можете найти один или два стиля, которые работают лучше, чем другие. Давайте на минутку пробежимся по различным стилям, которые мы рассматриваем в этом руководстве:Фартук с шейным ремешком: Ремешок на шее удерживает нагрудник на месте, а отдельные завязки стягивают фартук вокруг талии. Этот стиль легко надевать и снимать, но некоторым людям не нравится, когда ремешок тянет их за шею.
Фартук с нагрудником через шею — самый известный стиль фартука. Видео: Michael Murtaugh Фартук с перекрещенными спинками: Две длинные лямки, прикрепленные к нагруднику, проходят через плечи и перекрещиваются посередине спины. Вы пропускаете лямки через отверстия на талии и используете их, чтобы отрегулировать посадку фартука.
Фартуки с перекрестной спиной плотно прилегают к телу, а плечевые лямки уравновешивают вес, тем самым снижая давление на шею.
Передник: Этот фартук свободно свисает с плеч и драпируется вокруг тела. Фартуки-сарафаны, особенно сделанные из дышащего льна, сохраняют прохладу по сравнению с другими стилями. Они удобны с любой одеждой и особенно хорошо подходят к платьям.
Видео: Майкл МертоПолуфартук: Этот фартук обеспечивает наименьшую степень защиты, закрывая только нижнюю часть туловища и бедра. Также называется фартуком бистро, он хорош для быстрой работы и презентабельного вида в глазах гостей.
Полуфартуки сохраняют прохладу и подходят для приема гостей. Видео: Майкл МертоКак мы выбирали
Мы искали лучшие фартуки для большинства людей, независимо от размера, пола или бюджета.
И мы сделали это, не жертвуя привлекательными тканями, качественной конструкцией и достаточным покрытием. Отличный фартук не только выполняет свою основную функцию — защищает вашу одежду от пятен от приготовления пищи — но и должен быть таким же легким и удобным, как любимая старая футболка. Имея все это в виду, ниже мы обрисовываем именно то, что мы ищем в фартуке.
Удобные ткани
Мы предпочитаем натуральные ткани, потому что они сохраняют прохладу, когда на кухне становится жарко. Хлопок и лен удобные, дышащие и хорошо подходят для рабочей одежды. Карла Лалли Мьюзик, директор ресторана Bon Appétit, рассказала нам, что ее предпочтения зависят от поставленной задачи. «Мне очень нравится носить льняные фартуки, потому что они такие легкие». Но она никогда не надевала развевающийся льняной фартук, когда готовила на гриле. Для этого Карла сказала, что ей нужен «фартук из плотного хлопка», который плотно прилегает к телу.
Мы не рекомендуем фартуки из синтетических волокон.
Да, полиэстер и другая синтетика легко стираются и не мнутся. Но эти ткани не дышат, и пока вы работаете и потеете у горячей плиты, фартук из полиэстера только согреет вас.
Также важно качество материала. Передник от Rough Linen и фартук с плечевым ремнем от Muji на бумаге выглядят одинаково. Но когда мы носили их бок о бок, мы быстро обнаружили, что более дешевая версия Muji была тоньше, жестче и гораздо менее привлекательна, чем Rough Linen. Мы искали ткани, которые были бы достаточно толстыми, чтобы обеспечивать защиту, но при этом достаточно мягкими и удобными, чтобы носить их часами.
В нем легко двигаться
Важно, чтобы фартук позволял вам двигаться естественно и свободно, потому что вы работаете в этой штуке. Регулируемые шейные, плечевые и поясные ремни важны для фартука, который сидит близко к телу, иначе он будет тянуться или свисать в некоторых местах при движении. Если вам не нравится идея лямок на шее или талии, вы можете подумать о свободном и воздушном переднике.
В конечном счете, вам решать, какой фартук лучше для вас. Если вам мешают завязки на талии, отдайте предпочтение свободному переднику. Если ремень на шее кажется вам обременительным, выберите фартук с лямками. Загляните в наш раздел, посвященный стилю, и подойдите, если вы его пропустили.
Подходит для людей с разным телосложением
Каждый заслуживает удобный фартук с хорошей защитой. Мы избегали фартуков с узкими нагрудниками, которые не защищали бы должным образом широкую грудь. И мы искали длинные галстуки, что давало большинству наших тестировщиков возможность завязывать фартук сзади или спереди. В общем, чем больше у вас вариантов для точной настройки фартука — будь то D-образное кольцо на шее или регулируемые лямки на спине — тем лучше он будет ощущаться на вашем теле, поэтому большинство наших вариантов либо регулируются, либо поставляются в комплекте. в диапазоне размеров.
Помимо функциональности, мы также считаем, что отличный фартук должен быть привлекательным и стильным.
Если вам нравится, как выглядит ваш фартук — и как вы выглядите, когда его носите — тогда вы будете его использовать! Мы посмотрели на фартуки современного фасона и цвета. Будь то драпированные и свободные или структурированные и облегающие, все наши модели отличаются чистотой и тщательностью.
Как мы тестировали
У нас было 15 сотрудников Wirecutter, которые провели утро, примеряя фартуки. Фото: Сара Кобос Когда фартуки прибыли, я каждый дважды постирала в теплой воде и высушила каждый на сильном огне, после чего проверила их на наличие потертостей швов и чрезмерной усадки. Затем наступило самое интересное: утилитарная модная вечеринка с персоналом Wirecutter. Я пригласил 15 своих коллег провести утро на тестовой кухне Wirecutter, примерив фартуки и высказав свое мнение (это мы делаем лучше всего). После того, как мы сократили конкуренцию, я попросил нескольких друзей и родственников примерить оставшиеся фартуки, чтобы узнать их мнение.
Я получил много противоречивых отзывов о стиле и посадке, но все в конечном итоге предпочли хорошо продуманные фартуки из высококачественных материалов.
Уход и техническое обслуживание
Эта штука защищает вашу одежду от летающей еды — она испачкается, и в этом суть! Но это не значит, что ваш фартук должен выглядеть как старая тряпка, особенно когда он только что выстиран. Все наши кирки можно стирать в стиральной машине, при необходимости вы можете использовать пятновыводители. Вот удобный список наших любимых пятновыводителей:
- Средство для мытья посуды создано для удаления масла и жира и действует так же хорошо на ткани, как и на покрытой коркой кастрюле. Хитрость удаления жира с ткани заключается в том, чтобы вывести пятно, пока оно свежее, и, безусловно, до того, как ваш фартук пройдет через сушилку (тепло закрепит его навсегда).
Промойте пятно горячей водой из-под крана и нанесите на него немного средства для мытья посуды. Оставьте на 10 минут, затем постирайте фартук как обычно, но не сушите его в сушилке (которая может запечь пятно, если оно не полностью выветрилось). Дайте фартуку высохнуть на воздухе, а затем проверьте, не исчезло ли пятно. Если это так, вы можете идти. Если он все еще там, повторяйте этот процесс, пока он не исчезнет. - Zout — отличное универсальное ферментативное средство для предварительной обработки, эффективное для белковых (кровь, молочные продукты, яичный желток), углеводов (помидоры) и простых таниновых пятен (кофе и чай).
- Красное вино — это сложное таниновое пятно, которое требует чуть больше внимания, чем кофе и чай. Для небольших пятен мы рекомендуем Wine Away.
- Если вы имеете дело с сильно испачканным фартуком, вам понадобятся большие средства: длительное замачивание в кислородном отбеливателе и горячей воде. Кислородный отбеливатель (обычно известный как OxiClean) безопасен для цвета и может удалить даже старые пятна.
Но горячая вода является ключевым фактором, потому что тепло активирует моющее средство.
Если завязки вашего фартука запутались в стиральной и сушильной машинах (особенно если по какой-либо причине вы стираете более одного фартука), просто завяжите их, прежде чем бросить. Мы узнали это на собственном горьком опыте.
Самая распространенная жалоба на хлопчатобумажные и льняные фартуки, которую я слышу, это то, что они мнутся в сушилке. Для этого есть быстрое решение: достаньте фартук из сушилки, пока он еще немного влажный (только немного влажный, а не мокрый). Расправьте края и бретельки руками (можно слегка потянуть за них) и повесьте фартук на крючок, вешалку или спинку стула.
Конкуренция
Перекрещенная спина с галстуком
Льняной кухонный фартук Studioopatró так нравится. Он бывает всех цветов радуги.
Белье мягкое и драпированное. Хлопчатобумажные лямки продеваются через большие металлические люверсы, благодаря чему этот фартук легко надевать и регулировать. Но фартук Studiopatro с короткими завязками и узким нагрудником явно создан для небольших фигур. Несмотря на то, что нашим миниатюрным тестерам понравился этот фартук, они по-прежнему были неравнодушны к фартуку Hedley & Bennett Crossback из-за его более широкого охвата груди и более толстого материала.
Женский фартук Chef Works Berkeley Petite Bib Apron выполнен из тонкой джинсовой ткани с полноразмерными съемными подтяжками сзади. Джинсы выглядели и ощущались дешевыми, а подтяжки были тяжелыми, громоздкими и слишком большими.
Льняное полотно, которое Muji использует для изготовления фартука с перекрестным плечевым ремнем полотняного переплетения, полупрозрачно тонкое. А бретельки с перекрещивающимися спинками были настолько короткими, что тестер восьмого размера не смогла бы обернуть их вокруг талии. Для фартука, который выпускается только в одном размере, этот очень мал.
Нагрудный фартук с петлей на шее
Фартук из стираного льна Merci очень популярен на тестовой кухне Wirecutter за его полное покрытие и очень мягкое тонкое белье. На самом деле, мы почти сделали это! Что изменило наше мнение? У Merci была большая онлайн-распродажа, и мы легкомысленно заполнили наши тележки покупками товаров для дома из льна. Но никто из нас не стал ничего покупать, когда увидел высокую стоимость международной доставки (база Merci находится в Париже). Мы решили, что если мы не сможем заплатить за доставку более 40 долларов, то и другие тоже не смогут. Хорошая новость заключается в том, что если вы окажетесь в Париже, вы можете заглянуть в магазин Merci и просмотреть красиво оформленный магазин IRL.
Классический нагрудный фартук Hedley and Bennett (также доступен в больших размерах) имеет аналогичный крой и изготовлен из тех же материалов, что и фартук с перекрестной спиной, который мы рекомендуем. Но у классического нагрудника есть петля на шее, из-за которой нагрудник зияет вверху (особенно на пышных линиях бюста).
Мы также обнаружили, что классический нагрудник не подходит для более низких людей, а также кроссбэк. Те, кто был ростом 5 футов 2 сантиметра или ниже, должны были складывать его на талии, даже когда они пробовали «маленькую» версию, которая была сшита внизу, но такая же длинная в туловище.
Нельзя отрицать, что фартук Tilit Satterfield элегантен и хорошо сделан. У него отличные мелкие детали, такие как прорезные карманы с контрастной окантовкой и съемная кожаная застежка на шейной петле. Но ткань очень плотная. Он сделан из жесткой парусины, которая, хотя мы уверены, что она станет мягче при стирке и носке, все же слишком жесткая.
Фартук шеф-повара Tilit Luxe представляет собой большой полуфартук с кожаной петлей на шее. Фартук Luxe обеспечивает большую защиту для более крупных и/или высоких людей, чем стиль компании Satterfield. Но ткань тяжелая и жесткая, а свободный крой добавляет веса, который натягивает толстый кожаный ремешок на шею.
Широкий и длинный фартук Cayson Finnie Euro Bib обеспечивает большую защиту, как и стили Cayson Lulu и Butcher.
Но вместо поперечных лямок (которые распределяют вес по плечам) у Finnie есть шейный ремень. Наши испытатели обнаружили, что облегающий джинсовый корпус был слишком тяжелым, а ремешок натягивал им шею.
Джинсовый фартук Bambu Hemp был мягким и порвался прямо из упаковки. Это не обязательно плохо с точки зрения комфорта. Но мы опасаемся его долговечности, потому что ткань со временем становится мягче и тоньше. Мы оставим его на тестовой кухне, чтобы посмотреть, как он выдержит стирку и ношение.
Водостойкий
Рабочий фартук Hudson Durable Goods из вощеной парусины для тяжелых условий эксплуатации не сравнится с вощеным фартуком Tilit Contra, когда речь идет о комфорте и удобстве носки. Он сделан из плотного холста с толстым поверхностным слоем воска, что делает фартук жестким, громоздким и жарким. Слишком много фартука для кухни. Но если вы ищете хороший столярный или магазинный фартук, это будет отличный выбор.
Передник
Фартуки Muji с плечевыми ремнями из натурального льна и джинсового хлопка выглядят как передники из грубого льна, но они были жесткими, мешковатыми и неудобными для всех, кто их примерял.
Тестировщикам с более коротким торсом понравился Фартук Мастерской Цветочного Общества за его высокий вырез. И большая часть нашей группы хвалила широкие, удобные лямки и большие карманы этого прочного брезентового передника. Но толстая ткань равняется весу, а фартук Workshop был самым тяжелым из всех протестированных нами передников. Этот фартук предназначен для работы в саду и в горшках, но мы не можем себе представить, чтобы носить его во время работы в саду в летнюю жару.
Рабочий фартук Fog Linen Cross Work представляет собой простой сарафан с перекрестом на спине. Он сделан из супермягкого льна и имеет красивые насыщенные оттенки. По сравнению с грубым льняным сарафаном, противотуманный льняной перекрестный рабочий фартук похож по форме. Но он меньше, тоньше и подходит только для размеров до 8 или 10.
Полуфартук
Источники
Carla Lalli Music, директор ресторана Bon Appétit, телефонное интервью, 12 июня 2019 г.
Купи себе хороший фартук, Eater, 11 апреля 2019 г.Сюзанна Эдельбаум, Лучшие фартуки для приготовления пищи, по мнению поваров и барменов, The Strategist, 19 сентября 2018 г.
Tommy Werner Aprons, 12 Измените свой стиль кухни, Epicurious, 8 июня 2016 г.
Клэр Саффитц, Фартуки, которые наши редакторы продуктов питания никогда не хотят снимать, Приятного аппетита, 13 февраля 2018 г.
Флоренс Фабрикант, Фартук, сделанный женщинами для женщин, The New York Times, 8 ноября 2016 г.
О вашем гиде
Лесли Стоктон
Лесли Стоктон — старший штатный автор, который пишет обо всех кулинарных и развлекательных мероприятиях для Wirecutter.
Ее опыт основан на карьере в кулинарном мире на протяжении всей жизни — от повара ресторана и поставщика провизии до редактора продуктов питания в Martha Stewart. Она совершенно счастлива оставить все это позади, чтобы полностью посвятить себя кухонной утвари.
Дополнительная литература
9 инструментов для профессионального обустройства кухни
Жанель Зара, T Magazine
Организация кухни может сделать ее более функциональной и красивой. В сотрудничестве с T Magazine у нас есть советы, как содержать инструменты и ингредиенты в порядке.
Наши любимые предложения для малого бизнеса в субботу
от Лиама Маккейба
Если вы хотите поддержать мелких розничных продавцов в субботу для малого бизнеса, ознакомьтесь со скидками, которые мы нашли на товары этих брендов.
Лучшие кухонные принадлежности и посуда на День Благодарения
by Wirecutter Staff
После сотен часов исследований и испытаний мы пришли к выводу, что это кухонные инструменты и посуда, которые нужны большинству людей для отличного ужина в честь Дня Благодарения.








Это главный показатель его размера. Поэтому нижний уровень фартука также будет располагаться именно на такой высоте от пола. Если рост хозяев очень высокий, то высоту шкафа можно увеличить до 95 см.
он часто может превышать стандарт.

