чертеж, размеры, материалы, фото, пошаговая инструкция создания
Гиподинамия – бич современности. От этого начинают болеть суставы, особенно позвоночник. Протрузия, грыжа и смещения позвонков – неприятности, которые доставляют немало хлопот. Лечить их можно только упражнениями, одно из которых – висеть вниз головой. Упражнение сложное, и без специального приспособления его не сделать. И это инверсионный стол.
Содержание статьи:
- Для чего нужен инверсионный стол
- Преимущества самостоятельного изготовления инверсионного тренажера
- Какие инструменты и материалы понадобятся
- Чертежи и схемы
- Пошаговая инструкция создания и сборки
Для чего нужен инверсионный стол
Висеть вниз головой можно и на перекладине. Но не каждый это сможет сделать, даже молодые люди, не говоря уже о пожилых. Поэтому был разработан инверсионный стол, который помогает легко повисеть вниз головой и делать другие необходимые упражнения.
В основном они направлены на улучшения работы опорно-двигательной системы: выравнивание позвонков, улучшения притока крови и лимфы.
Инверсионный стол можно использовать и для терапевтических целей, и для профилактических.
Если делать на нем упражнения постоянно, то люди достигают серьезных результатов:
- Осанка выпрямляется.
- Мышцы около позвоночника становятся упругими и плотными, лучше удерживают его в нужном положении.
- Воспалительные процессы в позвоночнике и протрузии исчезают.
- Кровеносная система функционирует стабильно, а это уже профилактика таких заболеваний как инсульт, инфаркт, гипертония, ишемия, вегетососудистая дистония.
Отечественная и зарубежная промышленность предлагает широчайший ассортимент инверсионного оборудования. Цена на него высокая. А многим людям при нарушении здоровья без этого стола не обойтись.
Но сегодня есть большое количество чертежей с пошаговой инструкцией изготовления, которые можно взять за основу и изготовить своими руками свой инверсионный стол.
Преимущества самостоятельного изготовления инверсионного тренажера
Основной плюс – цена, которая уменьшается в разы.
Даже если использовать дорогие материалы, себестоимость будет все равно ниже. При этом есть возможность выбрать для изготовления ту оздоровительную установку, которая будет точно соответствовать собственным требованиям. Плюс – увеличивается безопасность эксплуатации за счет того, что делаешь приспособление для себя.
Обычно заводские модели изготавливаются или из металла, или из прочного пластика. Первые предназначаются для использования в оздоровительных центрах, в кабинетах физиотерапии в поликлиниках и прочих медицинских учреждениях. Их вес не меньше 50 кг, могут выдерживать вес пациента до 200 кг.
Пластиковые аналоги предназначаются для личного использования. Покупаются в дом, где упражнения и проводятся. Все действия имеют профилактический характер. То есть терапевтические нагрузки дома лучше не применять. Они должны проводиться под присмотром врача.
Пластиковые инверсионные столы легкие, обычно они складные. В сложенном состоянии не занимают много места, их не трудно переносить.
Делать инверсионный стол своими руками лучше из пиломатериала. Благо это сегодня самый дешевый материал, который легко поддается обработке. Можно даже использовать ДСП.
Можно собрать стол из металла, он будет прочнее деревянного варианта. Да и прослужит дольше. Но такая инверсионная установка будет дороже, тяжелее. Изготавливать ее своими руками в домашних условиях сможет не каждый. Здесь нужны навыки работы со слесарным инструментом. Где-то даже потребуется электросварка.
Читайте статью — как сделать массажный стол своими руками.
Какие инструменты и материалы понадобятся
Если изготавливается инверсионный тренажер из дерева, то потребуются следующие материалы:
- брус деревянный, сечением 20х40 мм;
- стальная труба, диаметром 25 мм;
- крепежные изделия: болты и гайки с шайбами, саморезы;
- шнур или грузовая лента, шириною не менее 50 мм;
- лак бесцветный или краска;
- ткань или кожзаменитель.

Инструменты:
- лобзик или пила;
- молоток;
- дрель;
- шуруповерт, если его нет – отвертка;
- нож;
- гаечный ключ;
- шлифмашинка с шлифовальным кругом, если ее нет – наждачная бумага и брусок, на который ее надевают;
- кисточка.
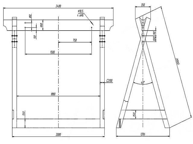
Чертежи и схемы
Основные размеры инверсионного стола:
- высота установки;
- длина стола.
Заводские модели являются раздвижными. На них можно провести регулировку этих двух параметров. В самодельных тренажерах это сделать тоже можно, но сложно. Поэтому лучше сделать стационарную модель, но учесть рост самого высокого человека в семье.
Это особенно касается стола. Его длина должна быть больше роста человека на 10 см. Высота установки также выбирается из расчета роста. Висеть вниз головой рослый человек должен так, чтобы не касаться головой пола.
Если всего этого не учесть, то есть не подобрать размеры под индивидуальный рост самого большого члена семьи, то он наверняка не сможет выполнять какие-то упражнения.
Но есть стандартные размеры, которые подходят под большое количество людей. Вот размеры стола – 1,5х2 м. Их можно брать за основу смело.
Другие стандартные параметры:
- высота инверсионного стола – 2 м;
- ширина — 1,5 м;
- угол между наклонными опорными стойками — 40º.
Столешницу можно изготовить из реек сечением 30х30 мм или из листа ДСП толщиною 16 мм, который складывается вдвое. Его общая толщина будет 32 мм. Хотя подойдет и 20 мм.
Пошаговая инструкция создания и сборки
К деревянному инверсионному столу есть одно важное требование – углы и плоскости брусов и реек не должны цеплять одежду. Поэтому весь подготовленный пиломатериал надо будет предварительно ошкурить.
Но перед этим его надо разрезать на элементы, входящие в конструкцию тренажера. Это можно сделать своими руками или заказать подрезку в цеху по изготовлению мебели. Некоторые продавцы пиломатериалов такую услугу тоже предлагают – платную или бесплатную.
Покрывать подготовленные элементы лаком или краской можно до начала сборки стола или после, то есть всю конструкцию в целом.
И еще несколько подготовительных операций, перед тем как сделать стол своими руками:
- Просверлить сквозные отверстия в брусках там, где будет происходить шарнирное соединение элементов с помощью стальной трубки.
- Перед этим сами трубки надо подрезать под необходимый размер – это 4 ширины бруска, плюс расстояние между опорными стойками.
Теперь можно начинать сборку инверсионного стола.
- Соединяются опорные стойки. Для этого их прикладывают друг к другу монтажными отверстиями, куда вставляют подрезанную металлическую трубку так, чтобы она соединила между собой 2 пары опор, расположенных на расстоянии 1,6 м. От руки наверняка вставить не получится, в помощь молоток. Трубка станет опорой для столешницы инверсионного тренажера.
- Есть другой вариант. Для этого трубку подрезают в длину, равной ширине бруска. Каждую вставляют в свою стойку. А крепление производится болтом, который вставляют в трубку насквозь. Он должен пройти сквозь 2 опоры. С противоположной стороны от головки болта накручивается гайка.
Крепление закончено. Оно надежнее, чем первый вариант. Хотя и его можно усилить, вставив болт в шарнирное соединение. Под шляпку болта и под гайку укладывается широкая шайба. Болты должны быть длинными, потому что в этом случае они станут опорой для столешницы. - Монтаж поперечных планок. Они соединят между собой опорные стойки на разных сторонах инверсионного стола. Получается по 2 пары наклонных прямоугольных конструкций, соединенный шарниров в виде трубок и болтов.
- Чтобы опорные конструкции не разъезжались в процессе проведения упражнений, их нужно ограничить. Для этого надо поставить 2 ограничителя. Это могут быть съемные рейки, которые надеваются на неполностью вкрученные саморезы или прочный шнур. Для последнего в брусках можно сделать сквозные отверстия, где он будет завязываться. Другой вариант – прикрепить шнур к деревянной стойке саморезом, подложив под него шайбу. Кстати, ограничительные шнуры хорошо видны на фото ниже.
Теперь сборка столешницы размерами 1,5х2 м.
Ее можно вырезать из листа ДСП, даже б/у. И это проще, чем нарезать рейки и соединять их в одну конструкцию. ДСП можно обшить тканью или кожзаменителем. Это надо сделать до начала сборки инверсионного стола. Ткань набивается на поверхность столешницы не для красоты. Она создать определенное сопротивление, что поможет удерживать тело человека на поверхности столешницы.
Далее необходимо установить петли из кожаного ремня или грузовой ленты. Их будет несколько, но главные – в нижней части столешницы, где будут располагаться ступни ног. На каждую ногу по три петли для надежности, потому что висеть вниз головой – это создавать большую нагрузку на петли массой всего тела.
Другие места расположения петель: тазобедренный сустав, грудная клетка, руки. Чтобы, находясь вниз головой, можно было бы подняться в исходное положение – вниз ногами, необходимо к верхним концам опор прикрепить резиновые жгуты – по одному на каждую сторону. Подтягиваясь на них, человек перейдет из опрокинутого расположения в вертикальное прямое.
Жгуты также помогут аккуратно перевернуться вниз головой. Хотя можно придумать массу вариантов, чтобы заменить резину другим материалом. К примеру, это может быть обычная веревка или тканевая прочная лента.
Здесь присутствует проблема крепления столешницы к стальной трубе. При этом крепление должно быть шарнирным, потому что столешница должна крутиться вокруг трубы. Можно для этого использовать разные виды шарниров. Самый простой – фасонная деревянная деталь в виде опоры со сквозным отверстием посередине. Их должно быть минимум 2.
Через это отверстие пропускается труба в процессе сборки опорных стоек. После фасонная деталь крепится к нижней плоскости столешницы. Крепежи – саморезы или болты с гайками.
Если столешница инверсионного стола изготавливается из брусков, то последние должны быть выбраны большого сечения, чтобы в них можно было бы просверлить отверстия под стальную трубу. При этом прочность брусков не должна снижаться, чтобы при выполнении упражнений они не переломились на участке прохождения стальной горизонтальной трубной опоры.
В видео ниже показана почти такая деревянная конструкция инверсионного стола, которая была сделана своими руками:
Если кто-то уже имел опыт создания инверсионного стола (тренажера для позвоночника) для себя или своих близких, расскажите в комментариях, как все происходило. Из какого материала собирали? Какую конструкцию выбрали? На что рекомендуете обратить внимание.
чертежи, размеры и пошаговое руководство с фото
Большинство городских жителей ведут малоподвижный образ жизни. Из-за этого часто возникают проблемы с мышцами спины и позвоночником. Избавится от неприятных симптомов помогут занятия спортом и использование специальных тренажёров. Одним из популярных приспособлений, является инверсионный стол. Видео, фото и пошаговые инструкции из этой статьи, помогут изготовить спортивный снаряд своими руками.
Что такое инверсионный стол
Инверсионный стол – это специальный тренажёр, который предназначен для использования в лечебных и профилактических целях. Основное предназначение занятий на таком столе – это стимуляция кровообращения и лимфотока.
Чаще всего тренажёр используют при проблемах с опорно-двигательным аппаратом.
Особенности конструкции
Конструкция инверсионного тренажёра состоит из опорной части и столешницы. Столешницу закрепляют на каркас с помощью шарнирных соединений и оснащают надёжными креплениями для ног. На некоторых моделях предусмотрена регулировка длины столешницы, в соответствии с ростом пациента. Опорная часть стола обязательно должна быть оборудована ограничительными шнурами.
Инверсионный стол.
Популярные модели
В продаже можно найти много различных моделей инверсионных столов от разных производителей. Одни из них имеют только базовые возможности, а другие укомплектованы и оснащены дополнительными полезными функциями.
1
DFC SJ
9.7
/
10
Подробнее
2
Body Sculpture BT-2100 E
9.4
/
10
Подробнее
3
Oxygen Healthy Spine
9.5
/
10
Подробнее
4
Hangs Up EP-960
9.4
/
10
Подробнее
5
OPTIFIT ALBA
9.2
/
10
Подробнее
В каких случаях и при каких болезнях применяют
Инверсионный стол рекомендуют использовать как вспомогательную терапию при таких проблемах:
- начальные стадии сколиоза;
- мышечные спазмы в области шеи и спины;
- варикозное расширение вен нижних конечностей;
- постоянные стрессы;
- сидячий образ жизни.
Модели инверсионных столов.
Какой эффект даёт
Инверсионный тренажёр – это не волшебный снаряд, и одними только упражнениями на нём проблему решить не удастся. Тренировки на таком столе приносят пользу в качестве дополнительных процедур.
Результат таких занятий:
- профилактика появления грыж, протрузий и других болезней позвоночника;
- расслабление мышц спины и шеи;
- укрепление связочного аппарата позвоночника;
улучшение осанки;- улучшение циркуляции крови и лимфы в организме;
- общее укрепление сердечно-сосудистой системы.
Противопоказания
Заниматься на таком тренажёре могут люди практически любого возраста, но, перед тем как покупать его, очень важно проконсультироваться с врачом. Тренировки на инверсионном столе имеют ряд противопоказаний:
- вторая стадия гипертонической болезни;
- обострение ишемической болезни сердца;
- передние позвоночные грыжи;
- глаукома;
- церебросклероз;
- артрозы и артриты;
- аритмия;
- аневризмы и врождённые аномалии сосудов головного мозга;
- суставные импланты и протезы;
- дисплазия соединительной ткани;
- беременность;
- инвертофобия;
Преимущества самостоятельного изготовления
Покупка готового инверсионного стола – это дорогое удовольствие.
Несмотря на простоту конструкции, производители устанавливают высокую стоимость на такие тренажёры, а для изготовления бюджетных моделей, чаще всего используют материалы сомнительного качества.
Основные плюсы изготовления тренажёра своими руками:
- экономия денежных средств;
- возможность изготовить снаряд с учётом физических особенностей пациента;
- уверенность в качестве и экологичности используемых материалов.
Как изготовить своими руками инверсионный стол
Изготовления инверсионного тренажёра особо не отличается от сборки другой мебели. Процесс включает создание чертежа, изготовление деталей и сборку конструкции.
Выбор материала
Для изготовления самодельного инверсионного стола, можно использовать металл, цельное дерево, ДСП или МДФ. У каждого материала имеются свои особенности.
| Металл | Металлические конструкции являются самыми прочными и долговечными, но, для сборки такого стола понадобятся навыки работы со сваркой. |
| Дерево | Надёжный и экологически чистый материал. Для работы с ним не нужно иметь серьёзные строительные навыки. Стоит учесть, что качественная древесина может стоить дорого, а готовое изделие необходимо обработать защитными средствами. |
| ДСП | Обычные и ламинированные древесно-стружечные плиты, имеют доступную стоимость и среднюю прочность. Работать с такими плитами легко, но при покупке нужно обратить внимание на класс безопасности материала. |
| МДФ | Такие древесные плиты выдерживают нагрузку больше 100 кг и работать с ними очень удобно. Недостатком материала является более высокая стоимость, чем у ДСП. |
Чтобы сделать качественную модель инверсионного стола, лучше всего использовать металл для опорной части и цельное дерево для столешницы. Для изготовления стандартной модели понадобятся:
- деревянные бруски 2*4 см;
- стальная труба диаметром 8 мм.
Необходимые инструменты
Для сборки тренажёра, следует заранее подготовить инструменты и расходные материалы:
- лобзик;
- шуруповёрт;
- дрель;
- шлифовальная машинка;
- молоток;
- гаечный ключ;
- абразивный круг;
- плетёный шнур;
- грузовая лента;
- болты, гайки, шурупы и шайбы.
Определение размеров и составление чертежей
Размеры стола подбирают исходя из роста пользователя. Если тренажёром будут пользоваться сразу несколько человек, длина столешницы должна быть на 10 см больше роста самого высокого пациента.
Стандартная конструкция тренажёра имеет такие габариты:
- длина столешницы – 2 м;
- ширина – 1,5 м;
- толщина столешницы – не менее 3 см;
- угол между опорами – 40 º.
Рассчитав необходимые размеры для будущего стола, необходимо составить подробный чертёж конструкции. Можно использовать готовые схемы из интернета или воспользоваться специальными компьютерными программами.
Чертеж и особенности инверсионного стола.
Пошаговая инструкция
При сборке любой мебели очень важно придерживаться определённой последовательности действий:
- Первым делом необходимо изготовить детали для будущего стола. Деревянные заготовки необходимо отшлифовать и покрыть лаком.
- В местах соединения труб и деревянных деталей, нужно подготовить отверстия. Детали из дерева надёжно скрепляют между собой.
- Металлические трубы закрепляют в подготовленных отверстиях, используя болты и шайбы.
С помощью шарнирных креплений фиксируют опорные детали, ножки и рычаги. - Чтобы занятия на тренажёре были безопаснее, можно закрепить дополнительные поперечные планки. На ножках закрепляют плетёные шнуры-ограничители.
- Грузовые ленты крепят к нижней части столешницы, для фиксации ног. Такой же фиксатор можно закрепить в области груди.
- Чтобы ножки тренажёра не скользили по полу, на торцах закрепляют резиновые накладки. Готовый стол необходимо проверить на прочность.
По желанию тренажёр можно покрасить или обтянуть искусственной кожей.
Инверсионный стол: правильное использование.
Общие рекомендации и техника безопасности
При отсутствии опыта в использовании такого тренажёра, нужно действовать очень осторожно и следовать нескольким важным правилам:
- Если рост пользователя превышает допустимые параметры для конкретной модели, использование стола может быть травмоопасно.

- Для новичков на первых занятиях, не рекомендуются установка угла наклона больше 10 º, так как это может привести к головокружениям.
- Начинать занятия следует медленно и осторожно.
- Во время первых занятий лучше, чтобы рядом находился кто-то для подстраховки.
Мебель
Узнайте здесь о том, как сделать самодельный инверсионный стол
Вы когда-нибудь задумывались о том, как сделать самодельный инверсионный стол или как проводить инверсионную терапию без стола? Это может показаться невыполнимой задачей, но на самом деле это довольно просто, особенно если вы умеете работать по дому и имеете под рукой нужные инструменты и материалы. Вот шаги, которые нужно выполнить, чтобы сделать свой собственный домашний инверсионный стол, который будет столь же эффективен, как и те, которые продаются в магазинах за сотни долларов. Вопрос только в том, почему вы не сделали этого раньше?
Признаки и симптомы грыжи |.
..
Пожалуйста, включите JavaScript
Признаки и симптомы грыжи | Главная Лечение грыж Что такое инверсионный столИнверсионный стол — это приспособление, которое позволяет вам висеть вниз головой, как летучая мышь, и растягивать мышцы. Он предназначен для облегчения болей в спине и улучшения кровообращения.
Инверсионные столы и инверсионные стулья обычно используются как часть физиотерапии при травмах спины, хотя доказательств того, что они помогают людям с острой болью в спине, немного. Американский колледж врачей рекомендует их в качестве варианта лечения хронической боли в спине, но это считается альтернативной терапией.
Инверсионные столы могут быть дорогими, но вы можете сделать их дома, используя материалы, купленные в местном хозяйственном магазине или магазине товаров для дома. Вот как:
Шаг 1: Купите материалы
Как и в большинстве подобных самодельных проектов, важно использовать высококачественные материалы.
Для вашей рамы купите древесину 2×2 и убедитесь, что вы выбрали пиломатериал хорошего качества, прямой, однородный, без гнили или трещин. Используйте 1/4 фанеры для столешницы и обратите внимание на то, насколько она ровная, прежде чем прикручивать ее на место. Если у вас нет доступа к дереву, металлические шпильки — еще один отличный вариант как для ног, так и для столешницы.
Однако, если вы используете шпильки, помните, что они будут ржаветь, поэтому вы, возможно, захотите сначала покрасить их или покрыть грунтовкой на масляной основе. Какой бы материал вы ни выбрали, убедитесь, что он достаточно прочный, чтобы выдержать ваш вес. Последнее, что вам нужно, это чтобы что-то рухнуло в перевернутом положении!
Шаг 2: Отрежьте деревянные детали по размеру
Отрежьте 2×4 до нужной длины. Измерьте ширину 2х4 и обрежьте их по размеру. Верхняя часть стола должна быть около 18 дюймов в длину, а ширина должна быть около 22 дюймов. Отрежьте по две ножки для каждой стороны стола размером примерно 39 см.
дюймов в длину.
Отрежьте кусок фанеры, чтобы поместиться поверх ваших 2х4. Фанера должна быть такой же ширины, как столешница вашего стола, и такой же длины, как обе стороны его ножек. Это будет платформа вашего стола, поэтому она должна быть достаточно прочной, чтобы выдерживать вес вашего тела в перевернутом положении. Если у вас нет доступа к фанере, вы можете использовать любой прочный материал, чтобы выдержать свой вес в перевернутом положении.
Отрежьте еще один кусок фанеры или другого большого материала, чтобы покрыть все четыре стороны рамы (верхнюю и три стороны). Это будет использоваться в качестве основы для вашей рамки; он должен быть толщиной не менее 1/2 дюйма, но не толще 3/4 дюйма, чтобы он не слишком утяжелял верхнюю часть рамы.
Шаг 3. Сборка рамы
Для сборки рамы вам понадобится дрель, молоток и несколько шурупов.
- Поместите две боковые части друг на друга так, чтобы их края были на одном уровне. Просверлите направляющие отверстия в обеих частях и закрепите их шурупами, убедившись, что шурупы затянуты достаточно, чтобы они не двигались и не выскальзывали, но не настолько, чтобы треснуть древесина.

- Поместите две боковые части друг на друга так, чтобы их края были на одном уровне. Просверлите направляющие отверстия в обеих частях и закрепите их шурупами, убедившись, что шурупы затянуты достаточно, чтобы они не двигались и не выскальзывали, но не настолько, чтобы треснуть древесина.
- Повторите этот процесс с двумя концами, убедившись, что все четыре детали находятся на одном уровне друг с другом и на одном уровне.
- Поместите доску в центр одного конца и просверлите направляющие отверстия через все четыре стороны доски в каждом куске дерева. Закрепите его, ввинтив его на место через эти отверстия, снова убедившись, что они туго затянуты, но не слишком туго, чтобы не сломать доску.
Шаг 4. Сборка столешницы
На этом этапе вы создадите столешницу. Это небольшой стол, который выдержит ваш вес, когда вы перевернетесь.
Измерьте и отрежьте доски 2х2 по длине. Вам нужно три детали: две 30-дюймовые и одна 36-дюймовая.
С помощью дрели предварительно просверлите отверстия в центре каждого конца каждой доски.
Соедините доски вместе с помощью шурупов и финишных гвоздей. Начните с прикрепления одного конца 36-дюймовой доски к одному концу 30-дюймовой доски, затем прикрепите другой конец той же 36-дюймовой доски к другому концу той же 30-дюймовой доски, образуя букву «L».
. Повторите этот процесс с другой 30-дюймовой деталью, чтобы перед вами были две буквы «L».
Переверните их друг на друга так, чтобы их концы были заподлицо и выровнены, затем привинтите все четыре слоя, используя 2-дюймовые или более длинные винты, если это возможно.
Шаг 5: Прикрепите столешницу к раме
Положите верхнюю часть стола на верхнюю часть рамы по центру передней и задней направляющих. Убедитесь, что он перпендикулярен раме, измерив расстояние от угла до угла и отметив каждый угол карандашом.
Вкрутите по два шурупа в каждый угол, убедившись, что они вошли в стойку или балку за гипсокартоном (не сквозь сам гипсокартон). Если за гипсокартоном нет стоек или балок, вы можете использовать рычажный болт или молли, если вы знаете, где они расположены в вашей стене (метиленхлорид растворит их). В противном случае вы можете использовать дрель с анкерным наконечником, чтобы просверлить гипсокартон в этих скрытых местах.
Прикрепите один конец уровня к головке каждого винта и убедитесь, что оба конца находятся на одном уровне.
Если какой-либо конец не выровнен, ослабьте этот винт и отрегулируйте, пока он не выровняется. Как только оба конца выровняются, крепко затяните их, пока не перестанете двигаться, когда будете стучать по ним пальцами или резиновым молотком.
Как работает инверсионный стол?
Как работает инверсионный столИнверсионные столы — эффективный способ лечения болей в спине и других проблем со здоровьем. Они работают, переворачивая ваше тело, когда ваша голова находится ниже вашего сердца. Это оказывает давление на диски в позвоночнике, что помогает им декомпрессировать. Эта декомпрессия приводит к улучшению кровотока и уменьшению воспаления, что помогает облегчить боль в спине.
Инверсионные столы также используются для декомпрессии позвоночника после операции или травмы. Гравитация притягивает ваше тело со всех сторон, когда вы лежите. Когда вы стоите, гравитация тянет вниз только в одном направлении, потому что ваши ноги закреплены на земле. Но когда вы перевернуты (вверх ногами), гравитация по-прежнему притягивает ваше тело, но на этот раз она притягивает к потолку, а не к полу.
Это означает, что любое давление, возникающее в вашем позвоночнике, будет снято, как только вы перевернетесь на инверсионный стол и позволите гравитации тянуть его сверху, а не снизу.
Сделайте свой домашний инверсионный стол сегодня!
Итак, вас, наверное, интересует безопасность вашего самодельного инверсионного стола. Дело в том, что инверсионные столы, как было доказано, обеспечивают множество общих преимуществ для здоровья. На протяжении десятилетий они использовались хиропрактиками, специалистами по реабилитации и физиотерапевтами в самых разных условиях.
Дело в том, что изготовленные этими профессионалами инверсионные столы стоят немалых денег. Можно сэкономить много денег, соорудив собственный инверсионный стол дома, при условии, что вы правильно его спланируете.
Инверсионная терапия без таблицы: 6 лучших альтернатив
В жизни есть много вещей, которые могут заставить вас сказать: «это головная боль», но что происходит когда это действительно так?
Кому не следует использовать вкладку инверсии.
..
Пожалуйста, включите JavaScript
Кому не следует использовать инверсионный стол?Возможно, вы уже знакомы с инверсионной терапией, но что, если инверсионный стол вам больше не подходит? Беспокоитесь, что в вашем доме недостаточно места для полноразмерного стола?
Ну, не беспокойтесь, вы можете проводить инверсионную терапию без стола !
Хотя инверсионные столы являются отличным оборудованием для инверсии, особенно если вы страдаете от болей в спине, суставах, шее или мышечных спазмов, они могут вам не подойти.
Вы научитесь висеть вниз головой без инверсионного стола. У каждого варианта есть свои плюсы и минусы, которые помогут вам понять, что лучше всего соответствует вашим потребностям.
От духовно успокаивающих инверсий в йоге до уникального звучащего табурета в стойке на голове — вот все, что вам нужно знать о подвешивании вверх ногами без инверсионного стола!
Подберем для вас идеальную альтернативу!
Альтернативы инверсионному столу
Вот шесть альтернатив инверсионному столу.
- Йога
- Гравитационные ботинки
- Мяч для упражнений
- Скамья для стойки на голове
- Трапеция для йоги
- Инверсионный стул
Существует множество альтернативных способов повисания стороной вниз без использования инверсионных столов.
Большинство альтернатив дешевле и меньше по размеру, чем инверсионный стол, что делает их идеальными для людей с ограниченным бюджетом или тех, у кого мало места.
То, что у вас нет тренажерного зала, не означает, что вы не можете включать инверсионную терапию в свои тренировки.
Ниже вы найдете несколько отличных альтернатив инверсионным столам для подвешивания вверх ногами. Вы обязательно найдете ту, которая лучше всего соответствует вашим потребностям.
#1 Позы йоги
Йога — это один из многих способов успокоить тело и снять стресс, а также невероятный метод упражнений для снятия напряжения с позвоночника и других частей тела.
Каждая должность предлагает свои уникальные преимущества, так что вы обязательно найдете то, что подходит именно вам.
Лучшая альтернатива инверсионному столу без использования оборудования — это инверсионная йога. Это позволит вам получить пользу для здоровья от висения вниз головой без необходимости в каком-либо дорогом оборудовании или специальном пространстве для упражнений.
Что делает этот идеал идеальным, так это то, что он невероятно доступен как любителям, так и профессионалам.
Многие люди подумывали о том, чтобы заняться йогой, но решили немного приправить ее и попробовать инверсионную йогу.
Каждому может быть полезно добавить йогу в свою ежедневную тренировку — соедините ее с инверсионной терапией, и вы никогда не оглянетесь назад!
#2 Ботинки для гравитации (инверсионные ботинки)
Как бы футуристично ни звучала технология, гравитационные или инверсионные ботинки являются довольно традиционным оборудованием для упражнений.
Они предлагают спортсменам и любителям упражнений возможность висеть вниз головой, а любителям — возможность не отставать от профессионалов.
Как правило, вы будете использовать стандартную перекладину вместе с гравитационными ботинками, чтобы переворачивать свое тело на определенное время, обеспечивая позвоночнику необходимую декомпрессию.
Поскольку гравитационные сапоги чаще всего используются рядом со стойкой, вы можете закрепить их на дверном косяке или в другом безопасном месте в вашем доме.
Это чрезвычайно универсальное оборудование предлагает вам множество способов успокоить компрессию позвоночника и облегчить боль в спине, а также другие преимущества инверсионной терапии.
Обязательно ознакомьтесь с ними, если хотите разнообразить свою тренировку.
#3 Мяч для упражнений
Вы, вероятно, уже знакомы с универсальным мячом для упражнений, стабилизирующим мячом и невероятными преимуществами, которые они могут вам предложить.
Но мало кто знает, что его можно использовать в качестве альтернативы инверсионному столу, не жертвуя преимуществами, которые вы можете получить, перевернув свое тело.
Несмотря на то, что вы не висите вверх ногами непосредственно на мяче для упражнений, вы все равно сможете выполнять некоторые упражнения с переворотом с минимальными усилиями.
Одним из самых больших преимуществ для здоровья от использования мяча для упражнений является снятие стресса, которое он обеспечивает. Вы можете легко внедрить его в свою повседневную жизнь.
Если вы хотите воспользоваться преимуществами инверсионной терапии, не покупая специальный инструмент, такой как инверсионный стол, это может быть идеальным вариантом для вас.
#4 Скамья для стойки на голове
Если вам нужна дешевая альтернатива дорогим инверсионным столам, которую можно использовать дома без риска получить травму или упасть, то скамья для стойки на голове — лучший вариант для вас.
Скамья в стойке на голове — идеальный способ повиснуть вверх ногами, не беспокоясь о равновесии, скольжении или опрокидывании. Кроме того, вы можете наслаждаться вращением вверх ногами без какого-либо давления на шею и позвоночник!
Вы можете выполнять всевозможные упражнения на скамье со стойкой на голове, от упражнений для йоги до упражнений для талии, упражнений для ног, движений бедер и многих других поз йоги.
Это достаточно просто для новичков и достаточно сложно для экспертов, так что вы сможете извлечь из этого максимум пользы!
Кроме того, скамья в стойке на голове намного компактнее инверсионного стола, что облегчает ее использование в небольших помещениях, например, в квартирах-студиях или комнатах общежития — для нее всегда достаточно места (плюс, никто никогда не жаловался на слишком много хранилище!).
#5 Йога-трапеция
Сочетание йоги и инверсионной терапии с использованием йога-трапеции — это невероятный способ обеспечить телу и разуму превосходное снятие стресса.
Трапеция для йоги почти не занимает места, так как ее можно повесить в разных местах, в отличие от другого инверсионного оборудования.
Трапеция для йоги сочетает в себе все преимущества традиционной инверсионной терапии с тем преимуществом, что она гораздо более доступна.
Они обеспечивают безупречную поддержку для любого положения и поз йоги, которые вы можете принять, что делает их идеальными для занятий йогой.
Если вы любите домашнюю йогу, попробуйте йога-трапецию!
#6 Инверсионный стул
Если основная причина, по которой вы ищете альтернативу инверсионному столу, заключается в том, что вам трудно переворачиваться стоя, то инверсионный стул может быть тем, что вам нужно.
Хотя полностью висеть на стуле вниз головой невозможно, вы все равно можете получить все преимущества, используя его.
Одним из самых больших преимуществ инверсионных кресел является то, что они могут снимать давление с других частей тела, таких как ноги, ступни и бедра.
Вы даже можете комбинировать занятия йогой с инверсионным креслом для чрезвычайно эффективного облегчения болей в пояснице и шее. №
Инверсионный стул идеально подходит для любителей фитнеса, которые в настоящее время занимаются реабилитацией после травм, но хотят позаботиться о своем здоровье.
Как безопасно переворачивать тело
Во время тренировок с переворотом кровь приливает к голове, что может быть опасно, если не выполнять его должным образом.
Это означает, что вы всегда должны заранее готовиться к упражнениям и заранее обсуждать с врачом, помогут ли они вам.
Было бы лучше, если бы рядом с вами всегда был кто-то, кому вы можете доверять, особенно при полной инверсии.
Поскольку дополнительное давление на голову из-за гравитации может привести к потере сознания, если вы будете выполнять это неправильно или дольше, чем рекомендуется.
Ознакомьтесь с правильной процедурой, просмотрев информационные видеоролики и поговорив с профессионалом, чтобы убедиться, что вы в безопасности и получаете максимальную отдачу от инверсионных упражнений.
Как бы ни было заманчиво добавить новое упражнение в свою программу, всегда лучше перестраховаться, чем сожалеть.
Часто задаваемые вопросы
Как долго нужно висеть вниз головой?
Это полностью зависит от вашего опыта и от того, новичок ли вы в этом упражнении, в котором вы висите вниз головой.
Как правило, мы не рекомендуем висеть вверх ногами дольше 1 минуты, если это ваш первый раз.
После небольшой практики вы можете увеличить это время примерно до 2-3 минут. Делайте только то, что вам удобно, и обязательно обратитесь за профессиональной помощью, если вы не уверены. Это особенно верно, если вы в настоящее время проходите реабилитацию после травмы.
Помогают ли инверсионные столы в выравнивании позвоночника?
Инверсионные упражнения обеспечивают декомпрессию позвоночника наряду со следующими преимуществами для здоровья.
– Облегчение боли в спине
– Уменьшение потребности в хирургии
– Расслабление напряженных мышц
– Уменьшение нервного давления
– Облегчение стресса
– Улучшение здоровья суставов
– Улучшение физической формы и укрепление мышц кора
– Увеличение притока крови к мозгу для функционирования лучше и быстрее
Будь то использование мяча для упражнений или инверсионных стульев, вы сразу заметите эффект, который они оказывают на вашу спину и окружающие области.
Тем не менее, мы рекомендуем вам обратиться за консультацией к обученному медицинскому работнику, прежде чем пробовать его.
Как и большинство упражнений, инверсия не является панацеей от всех болезней. Проконсультировавшись сначала с врачом, вы сможете найти лучшее лечение для ваших обстоятельств!
Кому НЕ следует применять инверсионную терапию?
Людям с высоким кровяным давлением, заболеваниями сердца или глаукомой не следует пытаться практиковать инверсию без консультации со специалистом в области здравоохранения.
Это также верно, если вы беременны или у вас есть история инсульта в вашей семье.
Несмотря на то, что переворачивание является отличным видом упражнений, вам всегда следует обращаться за дополнительной информацией к доверенному врачу или медицинскому работнику.
Если вам дал добро выбранный вами специалист, желательно висеть вниз головой, продолжительностью не более 30 секунд до минуты. Когда вы начнете больше практиковаться, вы можете увеличить время инвертирования.
Можете ли вы провести инверсионную терапию самостоятельно?
Хотя и можно использовать инверсионный стол самостоятельно, особенно если вы очень здоровы, это не рекомендуется.
Поскольку вы можете долгое время находиться в перевернутом положении, подобно поднятию тяжестей, рекомендуется иметь рядом кого-то, кому вы можете доверять.
Во время тренировок всегда лучше быть максимально безопасным. Инверсионные упражнения полезны для вашего здоровья, но вы также должны выполнять их безопасно.
Попробуйте завершить тренировку с кем-то, кто, как вы знаете, поможет, если что-то пойдет не так.
Прежде чем идти
Независимо от того, какой инструмент вы выберете, будь то табурет со стойкой на голове или инверсионный стул, у инверсии есть множество преимуществ.
Вам не придется грабить банк, если вы найдете правильный тренажер для вас.
Попрощайтесь с компрессией позвоночника и проблемами со спиной.

Инверсионный стол можно использовать и для терапевтических целей, и для профилактических.
Крепление закончено. Оно надежнее, чем первый вариант. Хотя и его можно усилить, вставив болт в шарнирное соединение. Под шляпку болта и под гайку укладывается широкая шайба. Болты должны быть длинными, потому что в этом случае они станут опорой для столешницы.
С помощью шарнирных креплений фиксируют опорные детали, ножки и рычаги.
